Suche Vorschläge für Grundriss Doppelhaushälfte

4,40 Stern(e) 5 Votes
Zuletzt aktualisiert 18.11.2025
Sie befinden sich auf der Seite 6 der Diskussion zum Thema: Suche Vorschläge für Grundriss Doppelhaushälfte
>> Zum 1. Beitrag <<

Y

ypg

Ich hab gestern mal selbst 2 erstellt, bin aber unzufrieden... Hab noch eine Idee, die ich umsetzen will. Ich bin am Ball, auch zeitnah, da ich Herausforderungen liebe... Aber diese hier ist echt schwer :/
Für dich den Tipp in der Zwischenzeit, mal bei Verkaufsofferten in gängigen Portalen nach Doppelhaushälfte oder ERH zu schauen, auch die älteren, die haben oft andere Entwürfe als die aktuellen.
 
T

Tichu78

bei Verkaufsofferten in gängigen Portalen nach Doppelhaushälfte oder ERH zu schauen, auch die älteren, die haben oft andere Entwürfe als die aktuellen.
Puh, was meinst du denn mit Verkaufsofferten und ERH? (evtl. Einfamilienhaus?)
Meine Standardsuche ist in Google Bilder nach Grundriss Doppelhaushälfte. Da gibt es aber nur ganz ganz wenige Grundrisse, die besondere Ideen zeigen. Die suche Architekt Doppelhaushälfte ist schon besser
Ich habe jetzt 2 Architekten meinen Entwurf vorgestellt aber bisher noch keine Ergebnisse bekommen.
Mal schauen was draus wird.
Freut mich, daß du das hier als eine Herausforderung ansiehst ... denn einfach kann jeder
 
Y

ypg

Puh, was meinst du denn mit Verkaufsofferten und ERH? (evtl. Einfamilienhaus?)
Meine Standardsuche ist in Google Bilder nach Grundriss Doppelhaushälfte. Da gibt es aber nur ganz ganz wenige Grundrisse, die besondere Ideen zeigen. Die suche Architekt Doppelhaushälfte ist schon besser
Ich habe jetzt 2 Architekten meinen Entwurf vorgestellt aber bisher noch keine Ergebnisse bekommen.
Mal schauen was draus wird.
Freut mich, daß du das hier als eine Herausforderung ansiehst ... denn einfach kann jeder
Endreihenhäuser bei Immonet suchen... Auch mal andere Regionen eingeben, einfach mal schauen
 
Y

ypg

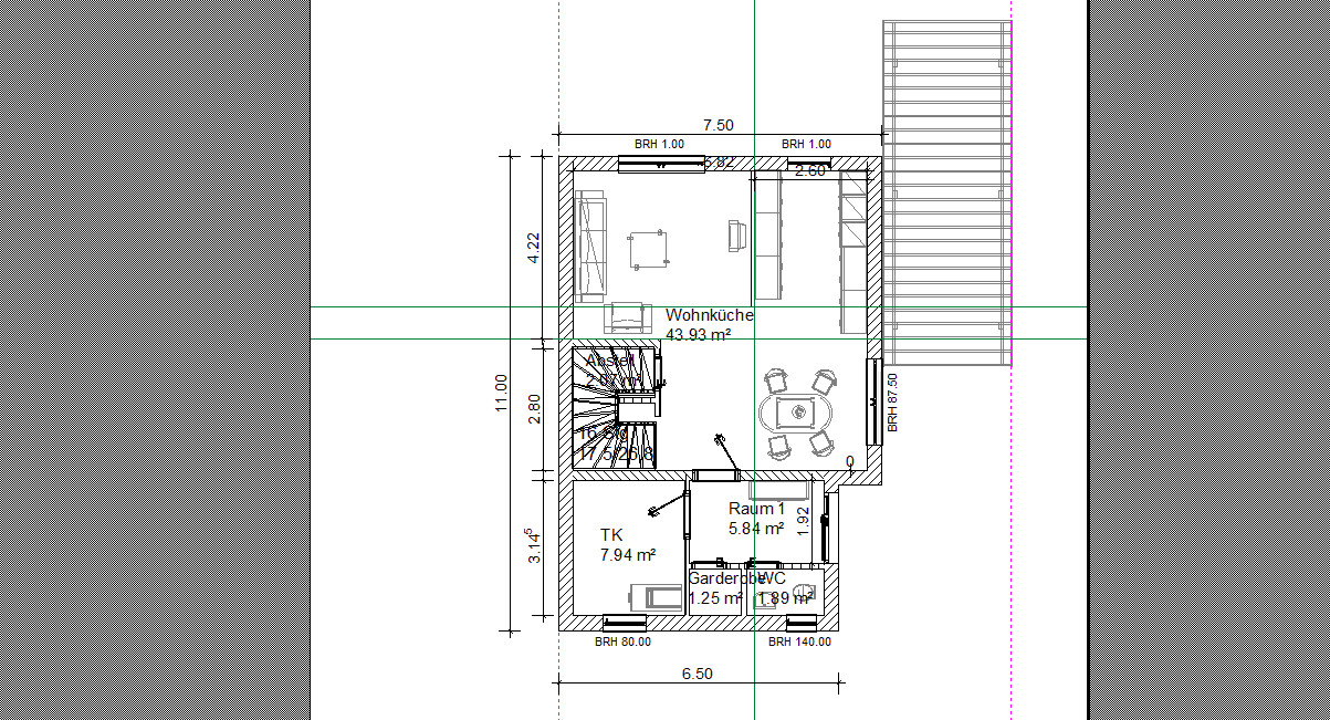
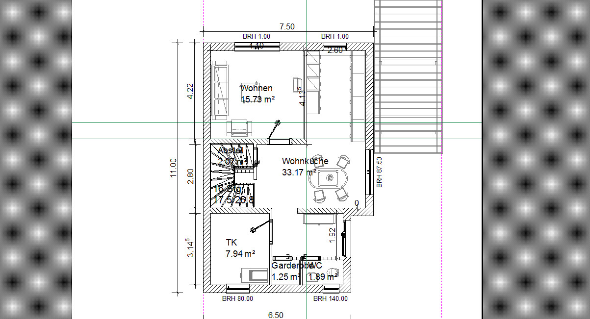
So, ich habe einige Vorschläge.
Dieses Doppelhaushälfte ist eine Herausforderung, weil a) der Kniestock von einem Meter im Norden nicht gerade berauschend ist, dann die b) Treppenlage, die aber in jedem Doppelhaushälfte oder RH besch... liegen muss, damit das DG gut zu erreichen ist. Ich habe eine Treppe vom OG in den DG mit eingeplant, da das DG seine 33 qm vorweist, welches nicht zu verachten wäre.
Außerdem soll alles hell sein; Bad- und Toilettenlage ist mit dem Wunsch der Lage des Schlafzimmers schon vorgestempelt, nämlich im Nordosten mit einer besch... Schräge und Dachfenster.
Ich habe in V5 versucht, eine andere Treppe einzuzeichnen - das ist misslungen, da es hier und da knapp wäre.
Ich bin ab V4 - glaube ich - auf eine andere Fensterart gekommen, um mehr im OG Stellfreiheit zu bekommen. Den Grundriss oben habe ich nicht sinnvoll anders entwerfen können. Dabei habe ich die Überlegung einbezogen, dass man zwar Kind oder Eltern ins DG verfrachten könnte, der Ausbau aber erst mal finanziell nicht drin ist. Also: nach oben erweitern kann man, muss man aber nicht.
Möbel habe ich nur als Platzhalter eingesetzt.

Vernachlässigt habe ich Details (Farben und Beläge), auch die Fenster könnten überarbeitet werden. Wahrscheinlich auch die Türanschläge, dafür einige wichtige Maßangaben. Außenwände von 34cm, Innenwände von 12 bzw 24 cm ... wie auch immer: ich bin keine Architektin, musste den alten PC von meinem Mann wieder aktivieren. da mein Programm nicht aufm Mac läuft. Per Mail die bmps auf meinem Rechner, dass tichu was zum arbeiten hat
Grundsätzlich denke ich, dass es einen Favoriten gibt. Zumindest für mich.

Tzzzz..... gehen hier keine bmps???? So ein Dreck
 
Zuletzt aktualisiert 18.11.2025
Im Forum Grundrissplanung / Grundstücksplanung gibt es 2536 Themen mit insgesamt 87966 Beiträgen


Ähnliche Themen zu Suche Vorschläge für Grundriss Doppelhaushälfte
Nr.ErgebnisBeiträge
1Grundriss Doppelhaushälfte-Kleinstgrundstück - Seite 539
2Grundriss EG + OG für Doppelhaushälfte 29
3Grundriss-Optimierung | Doppelhaushälfte am Hang mit 192m² Wohnfläche - Seite 1387
4Grundriss Optimierung - Doppelhaushälfte ca. 150qm - Seite 1279
5Einschätzung & Hilfe Doppelhaushälfte, ca 180 qm im DIY-Grundriss 62
6Grundriss für den Bau einer Doppelhaushälfte - Ideen - Seite 647
7Neubau einer ca. 8x11 Doppelhaushälfte, Einschätzung Grundriss und Fenster 35
8Grundriss-Feedback: Doppelhaushälfte für 4-köpfige Familie, selbstgeplant 24
9Grundriss-Planung Doppelhaushälfte, Erdgeschoss Einschätzung 20
10Grundriss für 2 Doppelhaushälfte - breit und schmal bzw. quadratisch 25
11Grundriss Doppelhaushälfte mit Pultdach und Balkonterrasse - Feedback 49
12Bewertung Grundriss Doppelhaushälfte 150 qm ohne Keller 29
13Treppe im Flur, Grundriss steht eigentlich schon :o( 20
14Frage zu Grundriss, insbesondere Treppe 13
15Treppe Grundriss Planung, Auftritt und Unterzug 21
16Grundriss: Kritisches Feedback sehr erwünscht :) 36
17Meinungen zu Grundrissen Doppelhaushälfte, die Aufteilung in Ordnung? 12
18Rat für eine Doppelhaushälfte - Seite 318
19Planung Wohnraum & Küche eines Doppelhaushälfte in Nürnberg 13
20DIY Grundriss EG von Doppelhaushälfte - Seite 227

Oben