Suche Vorschläge für Grundriss Doppelhaushälfte

4,40 Stern(e) 5 Votes
Zuletzt aktualisiert 21.11.2025
Sie befinden sich auf der Seite 3 der Diskussion zum Thema: Suche Vorschläge für Grundriss Doppelhaushälfte
>> Zum 1. Beitrag <<

Y

ypg

Ja, der Entwurf liegt auch schon beim Architekt. Macht einfach Spaß selbst etwas zu knobeln.
Ich sehe da nirgendwo einen Raum für ein passables Schlafzimmer. Habt Ihr keinen Kleiderschrank? Wenn Euer Architekt ein Abzeichner mit Stempelmacht ist, achtet bitte selbst darauf, dass Ihr Platz für eine vernünftigen Schrank findet.
Auch die Treppe muss für Möbel funktionieren: wenn Ihr Euch die Einzelteile von Ikea durchs Fenster ins OG hiefen müsst, macht das Wohnen auf Dauer keinen Spass.
Toiletten gehören Optimum übereinander - hier bietet sich an, Schlaf mit Bad zu tauschen (zumindest die Lage des Bades), damit das Fallrohr in einer Ecke bleibt. 10qm fürs Bad sollte ausreichen - ansonsten auf die T-Lösung verzichten, die nimmt sehr viel Platz vom Raum.
Toilette im Gäste-WC an die Außenwand legen, damit die Leitung auf kürzestem Weg nach draußen geht.
 
L

Legurit

schiebe die mittlere Wand weitere 20 cm Richtung Osten - 3,5 m breite für ein Schlafzimmer ist grenzwertig, mag aber gehen. Schrank habt ihr dann aber immer noch nicht. Die Berechnungen stimmen so nicht - das Bad hat derzeit über 13 m² keine 10,5 m². 8 m² Bad sind ausreichend - versucht lieber noch Platz für nen Schrank zu finden...
 
T

Tichu78

Ich sehe da nirgendwo einen Raum für ein passables Schlafzimmer. Habt Ihr keinen Kleiderschrank? Wenn Euer Architekt ein Abzeichner mit Stempelmacht ist, achtet bitte selbst darauf, dass Ihr Platz für eine vernünftigen Schrank findet.
Auch die Treppe muss für Möbel funktionieren: wenn Ihr Euch die Einzelteile von Ikea durchs Fenster ins OG hiefen müsst, macht das Wohnen auf Dauer keinen Spass.
Toiletten gehören Optimum übereinander - hier bietet sich an, Schlaf mit Bad zu tauschen (zumindest die Lage des Bades), damit das Fallrohr in einer Ecke bleibt. 10qm fürs Bad sollte ausreichen - ansonsten auf die T-Lösung verzichten, die nimmt sehr viel Platz vom Raum.
Toilette im Gäste-WC an die Außenwand legen, damit die Leitung auf kürzestem Weg nach draußen geht.
Der Schrank steht im Büro. Haben wir jetzt so, wollen wir wieder so.
Die Treppe ist das Problem an der ganzen Sache ... ist diese breiter wird der Wohnbereich zu schmal. Ist die Treppe länger wird das Schlafzimmer zu klein. Schiebe ich die Treppe mehr nach Süden wird das Büro/Ankleidezimmer kleiner.
Ich weiß es ist schwierig zu verstehen, aber das Schlafzimmer nutzen wir wirklich nur zum Schlafen. Nachts rein ... morgens raus. Da reicht das Minimum an Fläche wirklich! Haben wir jetzt so, wollen wir wieder so
Hauswirtschaftsraum, Bad und WC liegen meines Erachtens ideal zusammen ... keine langen Wege im OG und DG für die Sanitärleitungen. Im EG wäre es noch besser wenn die Küche direkt am Hauswirtschaftsraum angrenzen würde, aber da ist zu wenig Licht. Wir sitzen eh nur Abends auf der Couch, da brauchen wir kein Tageslicht.
Wenn wir Bad und Schlafzimmer tauschen haben wir ein Dachfenster im Schlafzimmer, ein nogo. Außerdem ist auf der Nordseite eine Dachschräge mit einem Kniestock von knapp 1m im OG.
Da wird das Bad zu klein. Die 10m² stimmen nicht. Wohnbereich zwischen 1 und 2 Meter zählt ja nur 50%.
Auf die T Lösung kann ich gerne verzichten ... war nur so eine Idee.

Das mit den Rohren und Stromleitungen habe ich natürlich nicht berücksichtigt, genauso wenig wie die Statik. Das ist dann Optimierungsarbeit für den Architekt
Hoffentlich ist das lösbar.
 
T

Tichu78

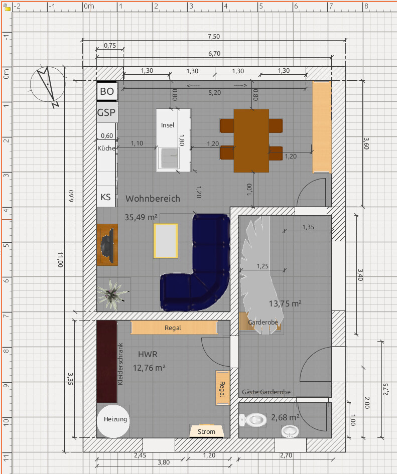
Ich habe noch mal etwas geändert. Die Treppe liegt jetzt innen und die Küche auf der anderen Seite. Die Garderobe ist unter die Treppe eingebaut.
Es gibt noch mal eine Gästegarderobe gegenüber.
Positiv: die Lösung Hauswirtschaftsraum - Eingangsbereich - Gäste-WC. Außerdem eine bessere Interaktion Küche<->Wohnbereich.
Was mir noch nicht so gefällt ist der Hauswirtschaftsraum, man verliert doch Raum im inneren wo keine Stellfläche ist. Die Treppe könnte etwas dunkel werden. Wenn man ins Wohnzimmer kommt schaut man erst mal auf das Regal. Das OG unterteilt sich in 3 Räume: Südseite Kinderzimmer, Nordseite Elternzimmer (incl. Ankleide und Büro) und hinter der Treppe das Bad. Vermutlich macht eine Gaube auf der Nordseite Sinn.

Insgesamt habe ich aber das Gefühl, daß diese Lösung Vorteile hat gegenüber dem anderen Entwurf.


Grundriss: Offener Wohn- und Küchenbereich mit Insel, Esstisch, Sofa.
 
Y

ypg

Ich habe noch mal etwas geändert.
... und dabei völlig das OG aus den Augen verloren...

Der Schrank steht im Büro. Haben wir jetzt so, wollen wir wieder so.
Jepp, aber Zeiten können sich ändern, 2tes Kind oder Verkauf der Immobilie aus welchen Gründen auch immer: da muss man auch mal konservativ denken und ein Mittelmaß zwischen Individualität und Standard finden.
Wir haben früher auch den Schrank im Büro gehabt (das war zuerst eine Notlösung), weil eben das Schlafzimmer ein Defizit hinsichtlich eines normalen 3-Meter-Schrankes hatte. Fanden das später aber gut.
Jetzt im neuen Haus haben wir ein separates Ankleidezimmer, aber darauf geachtet, dass im Schlafzimmer ein gängiger Schrank reinpasst - es kann ja sein, dass die Zeit kommt, aus der Ankleide ein Büro zu machen, dann braucht man wieder Schrankplatz im Schlafzimmer.

Gruss Yvonne
 
Zuletzt aktualisiert 21.11.2025
Im Forum Grundrissplanung / Grundstücksplanung gibt es 2535 Themen mit insgesamt 87982 Beiträgen


Ähnliche Themen zu Suche Vorschläge für Grundriss Doppelhaushälfte
Nr.ErgebnisBeiträge
1Ankleide/Schlafzimmer Problem - Grundrissdiskussion 25
2Planung Gäste-WC im Neubau - Wie groß muss es sein? (DIN?) - Seite 5107
3WC-Fenster Gäste-WC neben der Eingangstür - inzwischen nogo? - Seite 744
4Grundriss - 135qm, 1,5-Geschosse, Satteldach 138
5Grundriss Verbesserungs-Ideen? - Seite 331
6Anregungen zum Grundriss Einfamilienhaus ca. 175 qm, Satteldachhaus - Seite 12167
7Idee Schlafzimmer - Bett / Schrank Anordnung 32
8 2 Vollgeschosse, Durchgang Garage, Hauswirtschaftsraum unter Treppe 25
9Stadtvilla mit gerader Treppe, offene moderne Bauweise, 140m² 18
10REH - Grundrissplanung - Küche zu klein 30
11Hausplan von Architekt 2 Geschosse mit Keller 18
12Grundriss Einfamilienhaus ohne Keller/Schlafzimmer und Bad im EG - Seite 427
13Wohnbereich Grundriss einplanen - Seite 462
14Neubau Einfamilienhaus ca. 174 m² Grundriss Architekt - Seite 555
15Reicht der Hauswirtschaftsraum auch als Abstellkammer aus? - Seite 422
16Grundriss EFH165 qm erster Entwurf - Architekt unzufrieden - Seite 374
17Planung Einfamilienhaus in Norden NRW´s - Meinungen zur Planung gewünscht... - Seite 213
18Grundriss Einfamilienhaus. Bitte um Feedback bzw Ideen :-) - Seite 425
19Grundriss Einfamilienhaus, ca. 200qm ohne Keller - Einschätzung - Seite 9172
20Hausentwurf (2-geschossig. Kniestock ca. 180 cm) - Seite 333

Oben