Was für eine erfrischende Bad- und Teeanagerdiskussion hier

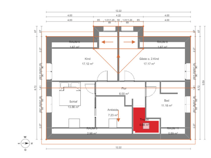
Interessante Einblicke in eure Badroutinen! Bei uns ist es so, dass nie jemand gleichzeitig im Bad ist, es sei denn, das Kind wird gebadet. Und wenn es da später Stau geben sollte, haben wir ja im EG eine Ausweichmöglichkeit. Dafür macht uns der Gedanke irre, nach dem Duschen über eine nasse Fläche laufen zu müssen, daher ist die Dusche so geplant, wie sie ist und der Spritzbereich höchstens "Verkehrsfläche" auf dem Weg zum Fenster.
@hanghaus2023 Danke für deinen Input! Wir mögen Toilette und Waschbecken nicht nebeneinander haben (würde gerne einen ekligen Artikel verlinken, wo Forscher mal die Keimwolke sichtbar gemacht haben, die beim Spülen aufgewirbelt wird, deshalb darf zu unseren Zahnbürsten ruhig etwas Abstand sein
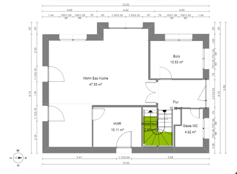
Ansonsten, liebe Leute: der Grundriss steht! Wir haben unsere möbel schon in 3D dort ausprobiert und alles passt. Wir sind sehr zufrieden. Ach so und das Bett im Schlafzimmer steht auf der falschen Seite, das kommt unter die Schräge. Wer jetzt noch Fehler findet, darf sie behalten

Nein, gerne her mit Kritik, aber wir sind jetzt sehr glücklich und werden vermutlich nicht mehr viel verändern. Nach dem Urlaub folgen hoffentlich noch eine wegweisende Signatur und natürlich die Einzeichnung der Möbel. Aber wir wollten euch schonmal teilhaben lassen