ᐅ Grundrissplanung für Einfamilienhaus mit Keller und Garage/Carport
Erstellt am: 31.12.19 13:07
F
fly-kaiHallo,
wir sind seit fast einem halben Jahr an der finalen Planung eines Grundrisses für Massivhaus. Mit dem bevorzugten Bauträger haben wir den Grundriss bereits besprochen, die Gespräche mit dem eigentlichen Architekten folgen demnächst.
Eigentlich würden wir das Haus gerne noch etwas kleiner machen, leider fehlt uns dann der Platz im OG. Evtl. hat hier ja jemand noch einen Tipp.
Bebauungsplan/Einschränkungen
Größe des Grundstücks: 850m^2
Hang: nein
Geschossigkeit: 2 Vollgeschosse
Dachform: Walmdach/Zeltdach
Stilrichtung: Stadtvilla
Ausrichtung: Haus und Grundstück sind nach Süden ausgerichtet
Anforderungen der Bauherren
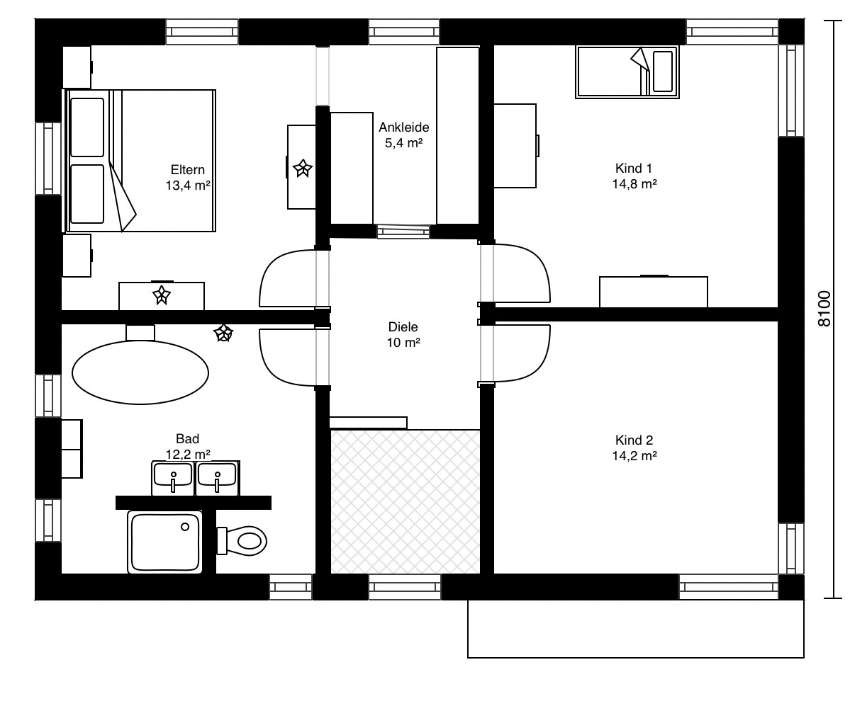
2 Kinderzimmer
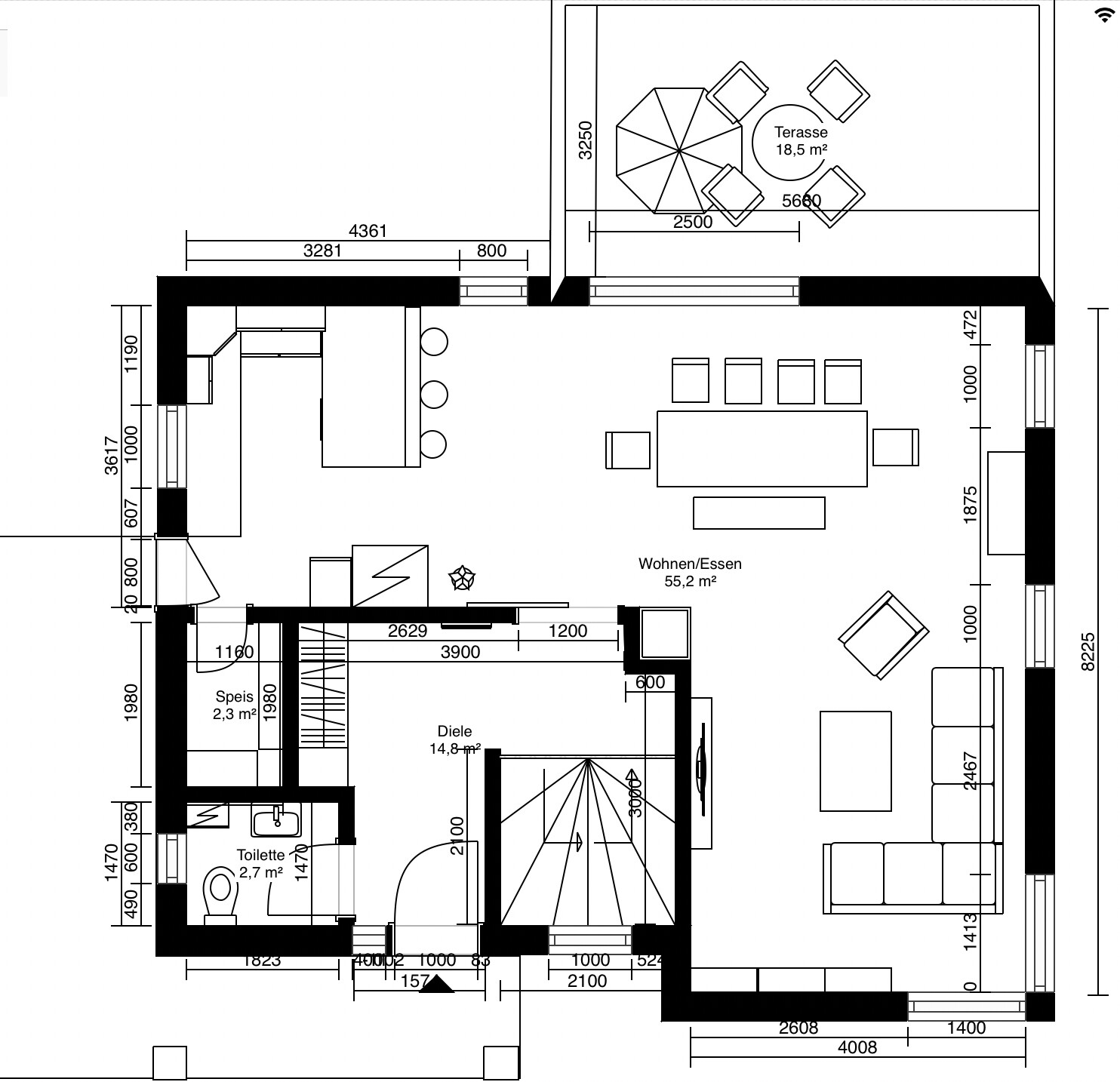
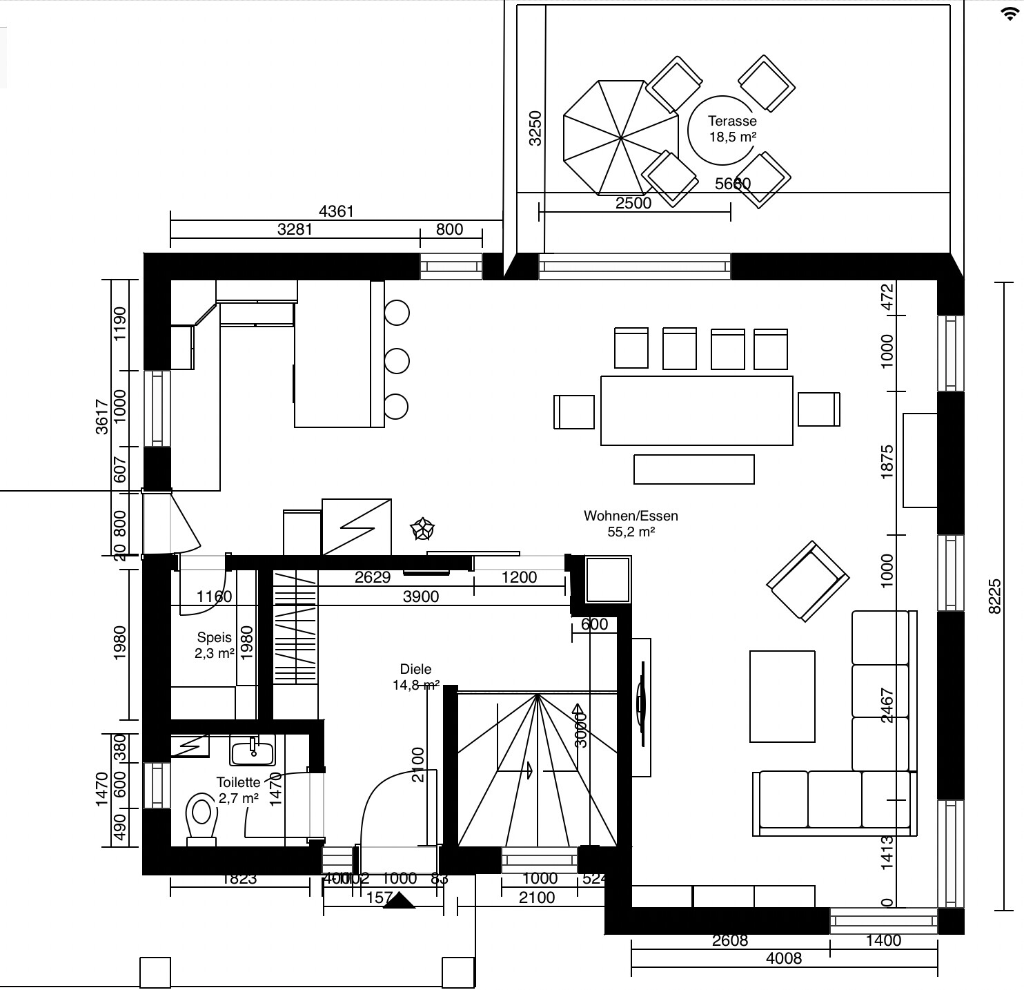
offener Koch-/ Wohn-/ Essbereich
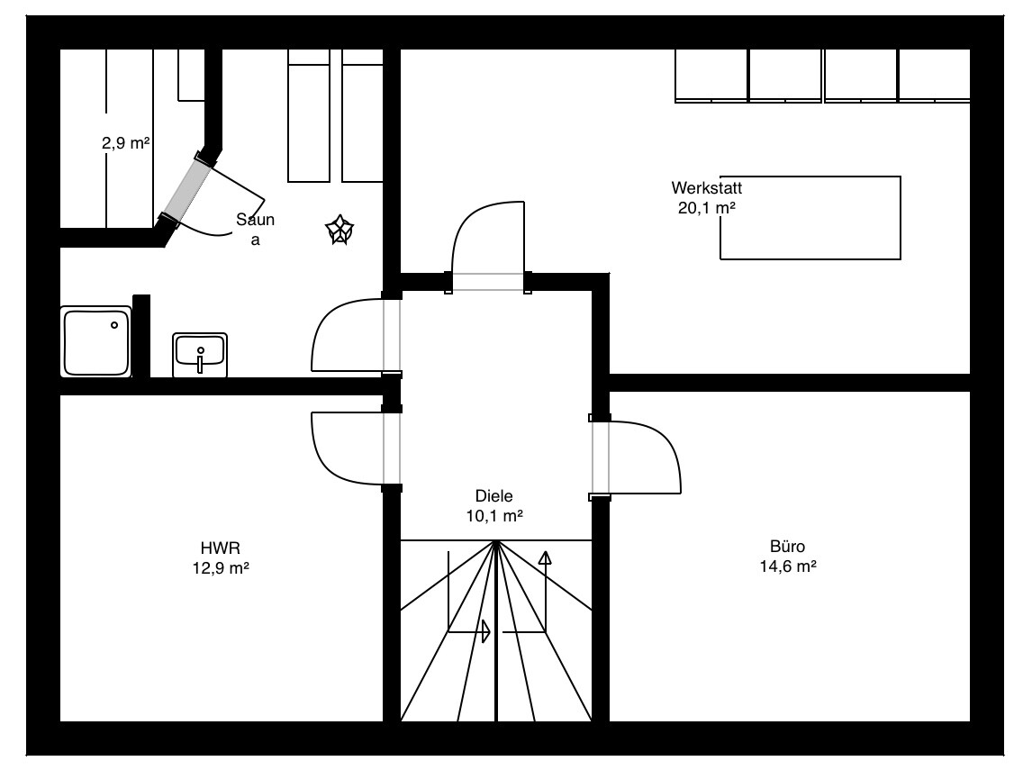
Geschossigkeit: 2 Vollgeschosse + Keller für Hauswirtschaftsraum, Sauna, Werkstatt, …
Anzahl der Personen 2 + 1 oder 2 Kinder
Gäste-WC im EG, allerdings ohne Dusche, diese soll später im Keller zur Sauna
Schlafgäste pro Jahr: praktisch 0
moderne Bauweise
offene Küche, Kochinsel
Kamin als Raumteiler (Wohn- zu Essbereich), oder in die Wand integriert wie im Plan.
Einzel-Fertiggarage mit Überdachung bis zum Haus = Carport
Hausentwurf
Was gefällt/nicht?
Der Erker im EG (Wohnzimmer-unten/rechts) ist eigentlich nicht nötig, ohne diesen sieht es aber von außen so langweilig aus. Eine Idee wäre, den Erker ins OG zu setzen (gleiche Position in x und y) und so ein größeres Kinderzimmer zu bekommen. Ich denke dass die Kosten dafür aber sehr hoch werden.
favorisierte Heiztechnik:
Das Haus wird ein Massivhaus aus 36,5er Ziegel. Am geplanten Grundstück ist Gas vorhanden. Wir schwanken zwischen Luft-Wasser-Wärmepumpe oder konventioneller Gasheizung mit Solarthermie. Habe schon viel verglichen, aber am Ende kommt man bei den Betriebskosten immer ungefähr gleich raus. Was würdet ihr empfehlen ?
Wenn Ihr verzichten müsst, auf welche Details/Ausbauten
- auf den Erker
Warum ist der Entwurf so geworden, wie er jetzt ist? ZB
Wir haben uns viele Grundrisse angesehen. Einen haben wir auf unsere Bedürfnisse angepasst.
Was ist die wichtigste/grundlegende Frage zum Grundriss in 130 Zeichen zusammengefasst?
Ist dieser Grundriss sinnvoll ?
Wie könnte man diesen noch etwas verkleinern ohne zu viel Platz im OG zu verlieren ?
Mit freundlichen Grüßen
Kai



wir sind seit fast einem halben Jahr an der finalen Planung eines Grundrisses für Massivhaus. Mit dem bevorzugten Bauträger haben wir den Grundriss bereits besprochen, die Gespräche mit dem eigentlichen Architekten folgen demnächst.
Eigentlich würden wir das Haus gerne noch etwas kleiner machen, leider fehlt uns dann der Platz im OG. Evtl. hat hier ja jemand noch einen Tipp.
Bebauungsplan/Einschränkungen
Größe des Grundstücks: 850m^2
Hang: nein
Geschossigkeit: 2 Vollgeschosse
Dachform: Walmdach/Zeltdach
Stilrichtung: Stadtvilla
Ausrichtung: Haus und Grundstück sind nach Süden ausgerichtet
Anforderungen der Bauherren
2 Kinderzimmer
offener Koch-/ Wohn-/ Essbereich
Geschossigkeit: 2 Vollgeschosse + Keller für Hauswirtschaftsraum, Sauna, Werkstatt, …
Anzahl der Personen 2 + 1 oder 2 Kinder
Gäste-WC im EG, allerdings ohne Dusche, diese soll später im Keller zur Sauna
Schlafgäste pro Jahr: praktisch 0
moderne Bauweise
offene Küche, Kochinsel
Kamin als Raumteiler (Wohn- zu Essbereich), oder in die Wand integriert wie im Plan.
Einzel-Fertiggarage mit Überdachung bis zum Haus = Carport
Hausentwurf
Was gefällt/nicht?
Der Erker im EG (Wohnzimmer-unten/rechts) ist eigentlich nicht nötig, ohne diesen sieht es aber von außen so langweilig aus. Eine Idee wäre, den Erker ins OG zu setzen (gleiche Position in x und y) und so ein größeres Kinderzimmer zu bekommen. Ich denke dass die Kosten dafür aber sehr hoch werden.
favorisierte Heiztechnik:
Das Haus wird ein Massivhaus aus 36,5er Ziegel. Am geplanten Grundstück ist Gas vorhanden. Wir schwanken zwischen Luft-Wasser-Wärmepumpe oder konventioneller Gasheizung mit Solarthermie. Habe schon viel verglichen, aber am Ende kommt man bei den Betriebskosten immer ungefähr gleich raus. Was würdet ihr empfehlen ?
Wenn Ihr verzichten müsst, auf welche Details/Ausbauten
- auf den Erker
Warum ist der Entwurf so geworden, wie er jetzt ist? ZB
Wir haben uns viele Grundrisse angesehen. Einen haben wir auf unsere Bedürfnisse angepasst.
Was ist die wichtigste/grundlegende Frage zum Grundriss in 130 Zeichen zusammengefasst?
Ist dieser Grundriss sinnvoll ?
Wie könnte man diesen noch etwas verkleinern ohne zu viel Platz im OG zu verlieren ?
Mit freundlichen Grüßen
Kai
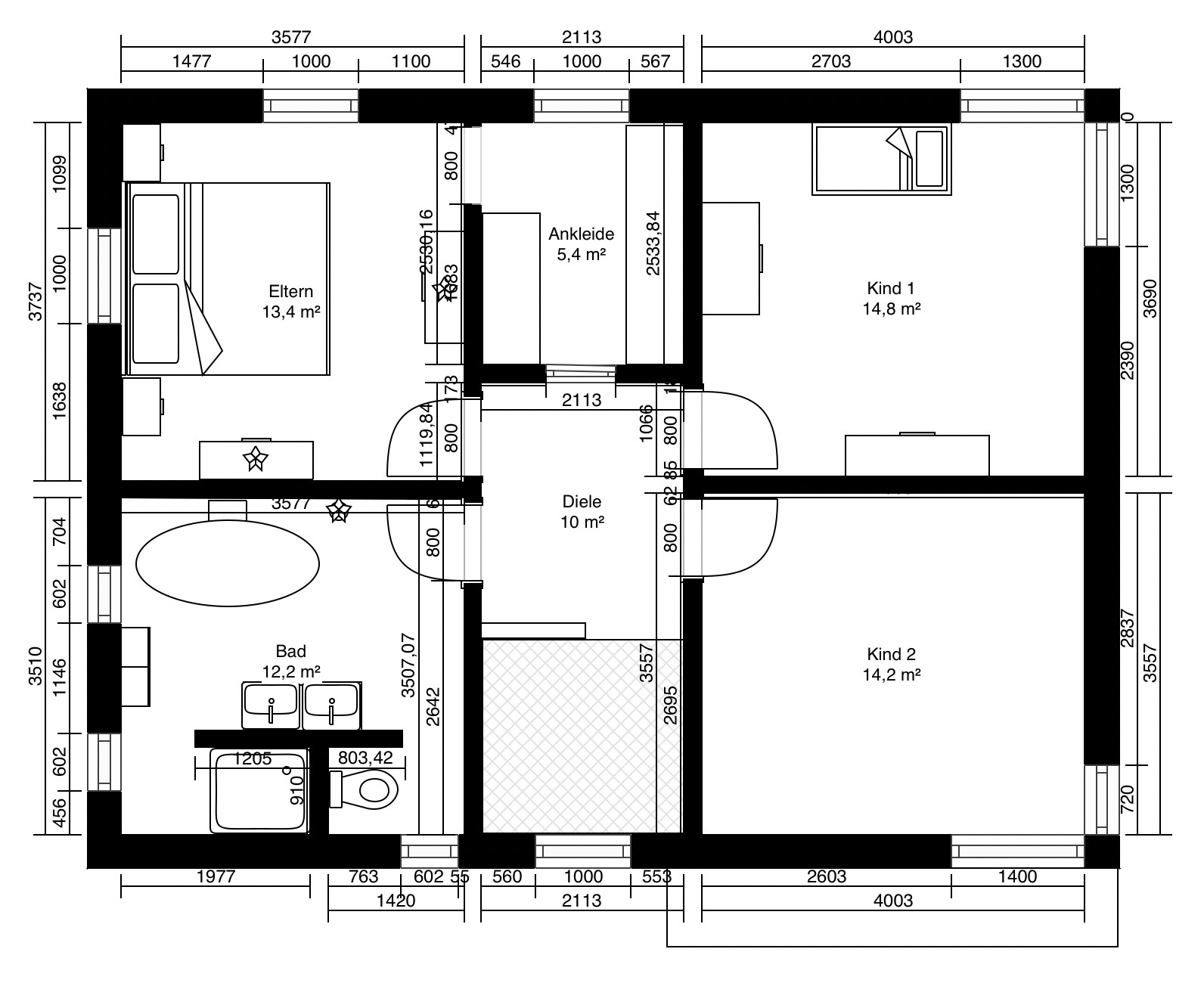
Die Bemaßung sieht seltsam aus ... im OG 810 cm incl. Wänden = innen ca. 737 minus Innenwand = ca. 720 cm ... = 360 cm je Kinderzimmer ... da sind dann aber keine realistischen Möbel eingezeichnet.
Treppenmaße?
Welche Geschosshöhe?
Welche Maße hat das Grundstück?
Den Erker halte ich auch für unnötig.
Treppenmaße?
Welche Geschosshöhe?
Welche Maße hat das Grundstück?
Den Erker halte ich auch für unnötig.
Hallo,
die Geschosshöhe sollte erst mal Standard sein, also 2,50m.
Die Treppe habe ich mal mit 2x2m gezeichnet. Das sollte doch ungefähr hinkommen für eine halbgewendelte Treppe ?
Mit den Möbeln im Kinderzimmer hast du recht. Da ist im Moment nur die Wickelkommode und ein Babybett eingezeichnet, das ist also kein normales Bett
Das Grundstück ist ca. 26m Breit und 34m lang, wobei vorne links ne Ecke fehlt (bei der Einfahrt).
Mit freundlichen Grüßen
Kai
die Geschosshöhe sollte erst mal Standard sein, also 2,50m.
Die Treppe habe ich mal mit 2x2m gezeichnet. Das sollte doch ungefähr hinkommen für eine halbgewendelte Treppe ?
Mit den Möbeln im Kinderzimmer hast du recht. Da ist im Moment nur die Wickelkommode und ein Babybett eingezeichnet, das ist also kein normales Bett
Das Grundstück ist ca. 26m Breit und 34m lang, wobei vorne links ne Ecke fehlt (bei der Einfahrt).
Mit freundlichen Grüßen
Kai
Ähnliche Themen