ᐅ Einfamilienhaus 160m2 mit Keller, 500m2 Grundstück
Erstellt am: 09.06.20 18:34
M
Murmelstein09.06.20 18:34Hi,
Wir haben ein 500m2 Grundstück auf dem wir gerne bauen würden.
Nun haben wir von unserer bevorzugten Baufirma die ersten Pläne bekommen.
Wir benötigen den Keller, da meine Frau und ich beide im Home Office arbeiten und wir drei Kinder haben, die sich keine Zimmer teilen sollen.
Dachboden ist nicht wirklich eine gute Option wegen des kleinen Baufensters und einer Bauhöhebegrenzung von 9 Metern. Keller geht richtig ins Geld, da Lehmboden, aber im Endeffekt ist die Entscheidung pro Keller gefallen und die ersten simulierten Finanzierungen passen soweit für ca 680k Hausbaukosten inkl Baunebenkosten. Exklusive Grundstück natürlich.
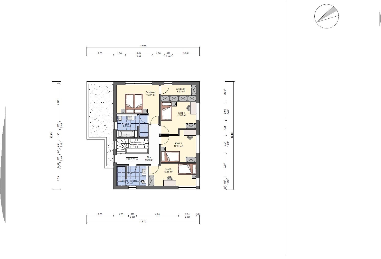
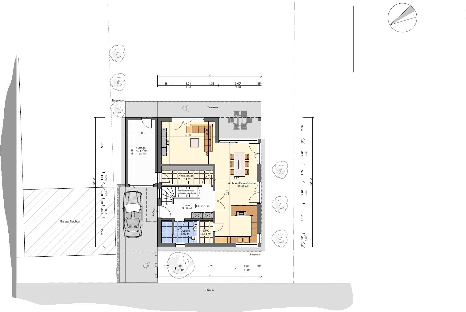
Ich finde die Pläne bereits ganz gut, aber ich habe natürlich keine große Ahnung. Elternbad war unser Wunsch. Duschbad im EG ist da weil wir wirklich sehr oft Gäste bei uns wohnen haben.
Speisekammer kann man weglassen meiner Meinung nach.
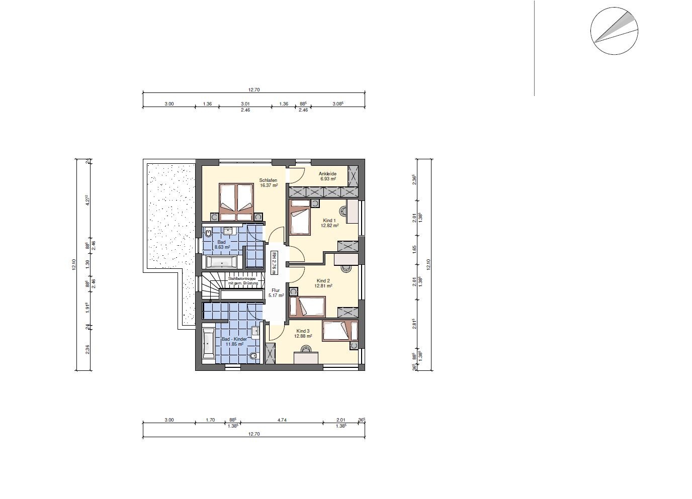
Flur im OG habe ich einmal größer und einmal kleiner zugunsten eines größeren Kinderbades.
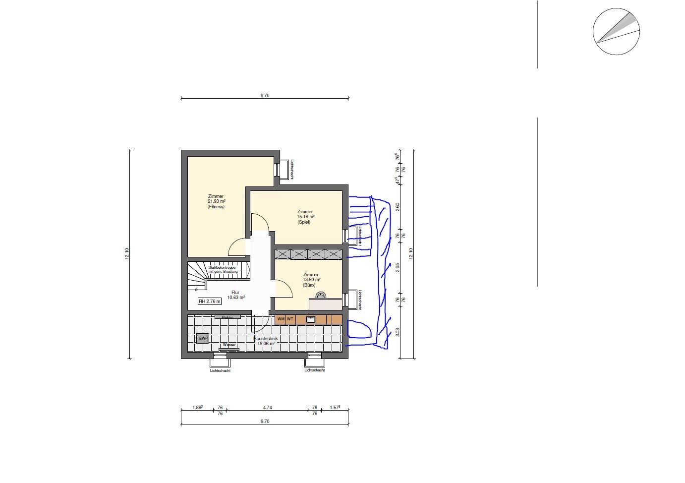
Mir fehlt die Außentreppe zum Keller. Wenn man auf der rechten Seite die Treppe hätte, dann bekommt man auch "normale" Fenster hin im Keller in den Büros. Ich habe es angedeutet. Zumal die strasse von links nach rechts am Haus entlang ungefähr einen Meter runter geht.
Was der Schnitt des "Fitness" Raums soll weiss ich noch nicht, ich denke das ist vielleicht statisch so notwendig. Ich wollte die Architektin erst nerven, wenn wir uns zu 100% sicher sind, dass es diese Baufirma werden soll.
Was mir derzeit allgemein nicht gefällt ist dieses 08/15 Feeling wenn man darauf schaut, aber das Haus ist nun mal einfach nur ein 08/15 2-Geschosse Haus mit Satteldach von 30°.
Sehr gerne würde ich wissen ob diese überdachte Terrasse nach euren Erfahrungen etwas gutes ist oder nicht.
Danke schon mal




Wir haben ein 500m2 Grundstück auf dem wir gerne bauen würden.
Nun haben wir von unserer bevorzugten Baufirma die ersten Pläne bekommen.
Wir benötigen den Keller, da meine Frau und ich beide im Home Office arbeiten und wir drei Kinder haben, die sich keine Zimmer teilen sollen.
Dachboden ist nicht wirklich eine gute Option wegen des kleinen Baufensters und einer Bauhöhebegrenzung von 9 Metern. Keller geht richtig ins Geld, da Lehmboden, aber im Endeffekt ist die Entscheidung pro Keller gefallen und die ersten simulierten Finanzierungen passen soweit für ca 680k Hausbaukosten inkl Baunebenkosten. Exklusive Grundstück natürlich.
Ich finde die Pläne bereits ganz gut, aber ich habe natürlich keine große Ahnung. Elternbad war unser Wunsch. Duschbad im EG ist da weil wir wirklich sehr oft Gäste bei uns wohnen haben.
Speisekammer kann man weglassen meiner Meinung nach.
Flur im OG habe ich einmal größer und einmal kleiner zugunsten eines größeren Kinderbades.
Mir fehlt die Außentreppe zum Keller. Wenn man auf der rechten Seite die Treppe hätte, dann bekommt man auch "normale" Fenster hin im Keller in den Büros. Ich habe es angedeutet. Zumal die strasse von links nach rechts am Haus entlang ungefähr einen Meter runter geht.
Was der Schnitt des "Fitness" Raums soll weiss ich noch nicht, ich denke das ist vielleicht statisch so notwendig. Ich wollte die Architektin erst nerven, wenn wir uns zu 100% sicher sind, dass es diese Baufirma werden soll.
Was mir derzeit allgemein nicht gefällt ist dieses 08/15 Feeling wenn man darauf schaut, aber das Haus ist nun mal einfach nur ein 08/15 2-Geschosse Haus mit Satteldach von 30°.
Sehr gerne würde ich wissen ob diese überdachte Terrasse nach euren Erfahrungen etwas gutes ist oder nicht.
Danke schon mal
M
Murmelstein09.06.20 19:38Sorry irgendwie hat sich das hier gelöscht:
Bebauungsplan/Einschränkungen
Größe des Grundstücks 500m2
Hang von links nach rechts geht es einen Meter runter
Grundflächenzahl 0,4
Geschossflächenzahl ?
Baufenster, Baulinie und -grenze Ist im Plan eingezeichnet
Randbebauung 3 Meter zu allen Seiten
Anzahl Stellplatz 2
Geschossigkeit 2 Vollgeschosse
Dachform SD 30-38°
Stilrichtung
Ausrichtung
Maximale Höhen/Begrenzungen 9 Meter
weitere Vorgaben
Anforderungen der Bauherren
Stilrichtung, Dachform, Gebäudetyp - wir sind da recht simpel
Keller, Geschosse wenn man alle Räume ohne Keller gut hinbekommt, braucht man den nicht
Anzahl der Personen, Alter , 2 Erwachsene und 3 Kinder
Raumbedarf im EG, OG Raum im Plan scheint mir schon ganz gut
Büro: Familiennutzung oder Homeoffice? beide Erwachsene arbeiten von zu Hause
Schlafgäste pro Jahr jedes dritte Wochenende 3-4 Gäste
offene oder geschlossene Architektur - nicht entschieden
konservativ oder moderne Bauweise - nicht entschieden
offene Küche, Kochinsel - Kochinsel mit 3 Sitzplätzen
Anzahl Essplätze 8
Kamin - Wurde uns irgendwie von allen BU ausgeredet
Hausentwurf
Von wem stammt die Planung:
-Planer eines Bauunternehmens
Was gefällt besonders? Platzangebot
Was gefällt nicht? kein Kellerzugang von außen
Preisschätzung lt Architekt/Planer: 680k€ inkl Baunebenkosten und Außenanlagen
Persönliches Preislimit fürs Haus, inkl Ausstattung: 700k€
favorisierte Heiztechnik: Erdwärmepumpe mit Kühlungsoption
Warum ist der Entwurf so geworden, wie er jetzt ist? ZB
wir wollten die 3 Kinderzimmer und zwei Bäder oben.
wir wollten zwei getrennte Büros und einen Hobby Raum für die Famillie
Bebauungsplan/Einschränkungen
Größe des Grundstücks 500m2
Hang von links nach rechts geht es einen Meter runter
Grundflächenzahl 0,4
Geschossflächenzahl ?
Baufenster, Baulinie und -grenze Ist im Plan eingezeichnet
Randbebauung 3 Meter zu allen Seiten
Anzahl Stellplatz 2
Geschossigkeit 2 Vollgeschosse
Dachform SD 30-38°
Stilrichtung
Ausrichtung
Maximale Höhen/Begrenzungen 9 Meter
weitere Vorgaben
Anforderungen der Bauherren
Stilrichtung, Dachform, Gebäudetyp - wir sind da recht simpel
Keller, Geschosse wenn man alle Räume ohne Keller gut hinbekommt, braucht man den nicht
Anzahl der Personen, Alter , 2 Erwachsene und 3 Kinder
Raumbedarf im EG, OG Raum im Plan scheint mir schon ganz gut
Büro: Familiennutzung oder Homeoffice? beide Erwachsene arbeiten von zu Hause
Schlafgäste pro Jahr jedes dritte Wochenende 3-4 Gäste
offene oder geschlossene Architektur - nicht entschieden
konservativ oder moderne Bauweise - nicht entschieden
offene Küche, Kochinsel - Kochinsel mit 3 Sitzplätzen
Anzahl Essplätze 8
Kamin - Wurde uns irgendwie von allen BU ausgeredet
Hausentwurf
Von wem stammt die Planung:
-Planer eines Bauunternehmens
Was gefällt besonders? Platzangebot
Was gefällt nicht? kein Kellerzugang von außen
Preisschätzung lt Architekt/Planer: 680k€ inkl Baunebenkosten und Außenanlagen
Persönliches Preislimit fürs Haus, inkl Ausstattung: 700k€
favorisierte Heiztechnik: Erdwärmepumpe mit Kühlungsoption
Warum ist der Entwurf so geworden, wie er jetzt ist? ZB
wir wollten die 3 Kinderzimmer und zwei Bäder oben.
wir wollten zwei getrennte Büros und einen Hobby Raum für die Famillie
P
Pinky030109.06.20 19:54Hallo,
wofür braucht ihr denn die Außentreppe in den Keller? Ist die beruflich nötig? Ansonsten sehe ich da keinen Mehrwert, eher eine Möglichkeit für Einbrecher.
Das OG gefällt mir. Die Aufteilung ist für die Grundfläche gut. Ich finde das kleine Kinderbad ausreichend, den Flur davor aber nicht nötig. Vielleicht kann man da einen Platz für die Waschmaschine schaffen? Finde es praktischer, da zu waschen, wo auch die Wäsche ist.
Du schreibst, dass ihr eine Dusche im EG wollt für Besuch. Aber wo schläft der Besuch denn?
Wieso geht die Garage nicht bis an die Grenze? Ich denke, dass sie zu schmal ist, um darin z. B. noch Fahrräder unterzubringen. Ist es nicht auch so, dass nur entweder Grenzbebauung oder 3m Abstand geht? Hab ich aber vielleicht auch falsch im Kopf.
Mir gefällt auch gut, dass ihr Garderobenplatz eingeplant habt, und dass das Wohnzimmer etwas abgeschieden ist, also Ruhebereich.
wofür braucht ihr denn die Außentreppe in den Keller? Ist die beruflich nötig? Ansonsten sehe ich da keinen Mehrwert, eher eine Möglichkeit für Einbrecher.
Das OG gefällt mir. Die Aufteilung ist für die Grundfläche gut. Ich finde das kleine Kinderbad ausreichend, den Flur davor aber nicht nötig. Vielleicht kann man da einen Platz für die Waschmaschine schaffen? Finde es praktischer, da zu waschen, wo auch die Wäsche ist.
Du schreibst, dass ihr eine Dusche im EG wollt für Besuch. Aber wo schläft der Besuch denn?
Wieso geht die Garage nicht bis an die Grenze? Ich denke, dass sie zu schmal ist, um darin z. B. noch Fahrräder unterzubringen. Ist es nicht auch so, dass nur entweder Grenzbebauung oder 3m Abstand geht? Hab ich aber vielleicht auch falsch im Kopf.
Mir gefällt auch gut, dass ihr Garderobenplatz eingeplant habt, und dass das Wohnzimmer etwas abgeschieden ist, also Ruhebereich.
M
Murmelstein09.06.20 19:58Garage ist so wegen Höhenunterschied zu dem Hof des Nachbarn. Aber kann man bestimmt ändern.
Werde Die Architektin mal fragen.
Meine Frau wollte richtige Fenster in den Büros und die Möglichkeit mit der Wäsche direkt raus gehen zu können.
Gäste sollen in einem der Büros schlafen bzw im dritten Kellerraum. Gästezimmer kommt irgendwie sonst nirgends unter.
Werde Die Architektin mal fragen.
Meine Frau wollte richtige Fenster in den Büros und die Möglichkeit mit der Wäsche direkt raus gehen zu können.
Gäste sollen in einem der Büros schlafen bzw im dritten Kellerraum. Gästezimmer kommt irgendwie sonst nirgends unter.
P
Pinky030109.06.20 20:14Ok, ich trockne Wäsche nie draußen, da kann ich dann nichts zu sagen. Aber richtige Fenster sollten ja auch ohne Treppe möglich sein, gibt da schöne Bilder im Internet mit Abgrabungen oder so.
Habe eben erst den großen Waschraum im Keller entdeckt, das ist natürlich ein Argument gegen Waschmaschine oben. Würde allerdings versuchen, einen Wäscheschacht einzuplanen. Dann muss man nur die frische Wäsche über die Treppe tragen und unten kann man schön vorsortieren. Wir haben da z. B. ein Ikea-gestell mit ausziehbaren Drahtkörben für.
Wenn die Gäste im Keller schlafen (find ich total ok) macht auch das Duschbad im EG Sinn
Habe eben erst den großen Waschraum im Keller entdeckt, das ist natürlich ein Argument gegen Waschmaschine oben. Würde allerdings versuchen, einen Wäscheschacht einzuplanen. Dann muss man nur die frische Wäsche über die Treppe tragen und unten kann man schön vorsortieren. Wir haben da z. B. ein Ikea-gestell mit ausziehbaren Drahtkörben für.
Wenn die Gäste im Keller schlafen (find ich total ok) macht auch das Duschbad im EG Sinn
M
Murmelstein09.06.20 20:17Ja wir sind mit der Waschmaschinenfrage auch noch nicht durch. Derzeit ist diese im Schlafbereich und stört niemanden, da wir uns hier nicht aufhalten tagsüber. Also Platz wäre im OG dafür schon. Hast du ein Link zu aufgrabungen, dass ich mir das mal ansehen kann?
Ähnliche Themen