ᐅ Einfamilienhaus 220qm mit Keller auf 700qm Grundstück
Erstellt am: 08.07.20 21:17
Hallo zusammen,
wir haben ein 750qm Grundstück auf dem wir planen ca. 220qm + Keller + Garagen zu bauen.
Nach ersten Gesprächen mit Baufirmen finden wir folgenden Grundriss nicht schlecht, da dieser sowohl im EG als auch im OG unsere Raumgrößen umsetzt.
EG:
Zwei Hauptfragen beschäftigen uns weiterhin:
1) Sollen Küche/Esszimmer links hin oder soll das Wohnzimmer lieber dorthin?
Wegen Licht ist die zurückgesetzte Küche links gut und insbesondere auch, da wir die Treppe sonst nicht ordentlich unterbringen können. Das Wohnzimmer links wäre eigentlich schön, da wir hier bis 21:30 im Sommer Sonne haben, auf der rechten Seite ist um 18:30 Schatten. Geschmackssache wo man wann das Licht haben möchte, aber eure Meinungen wären hier interessant.
2) Wo kommt die Treppe hin und wie vermeiden wir es viel Platz im OG zu verlieren?
Wir haben eigentlich nur die Lösung bisher gefunden.
Bevorzugt wird eine 180Grad Treppe, 90 wären auch ok, dazu mit Podest da wir keine schrägen Treppenstufen wollen.
Sonstiges:
Es fehlt eine Speisekammer, diese hatten wir mal im Durchgang von der Garage in die Diele angedacht, dafür ist aber kein Platz. Kommt nun in den Keller.
Zudem haben wir in der Diele keine besonders große Garderobe, daher die Idee einen Teil von der Küche/Gästezimmer abzuzwacken. Das Duschbad im EG könnte etwas größer sein.
OG:
Oben brauchen wir den Platz, wir wollten die 2 Kinderzimmer, ein Arbeitszimmer und zwei Bäder oben + Elternbereich und Hauswirtschaftsraum. Nur mit dieser Treppenplatzierung und den Einschränkungen bei Elternankleide und Elternbad haben wir alles ordentlich untergebracht, die Zimmergrößen und Ausrichtungen gefallen uns dafür.
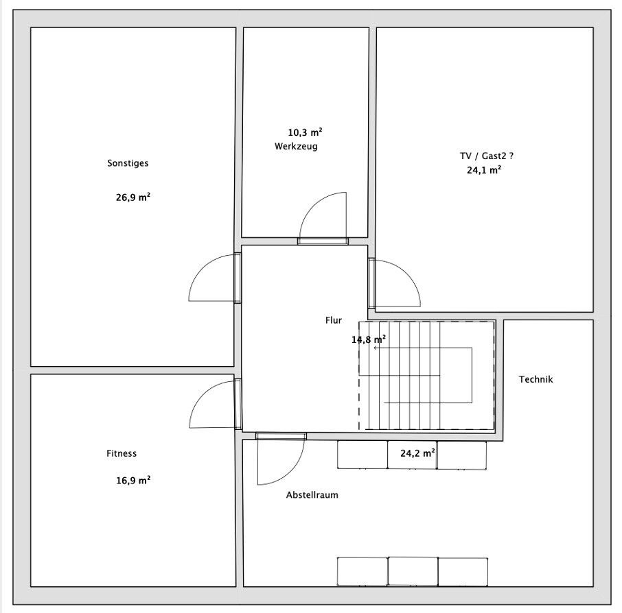
Keller:
Ja, weiße Wanne benötigt. Wollen wir haben wegen Abstellraum und Technik, das wäre oben nicht unterzubringen. Die anderen Räume wie Fitness sind nett, aber kein Muss, dennoch wollen wir den Keller auch wg. möglichem Wiederverkaufswert und Flexibilität. Aufgrund der Kosten wollen wir hier nur teilweise ausbauen. Grundriss im Keller daher wie gesagt erst einmal nebensächlich.
Sehr gerne würden wir von euch hören, was ihr zu unseren Ideen sagt und welche Dinge ihr gut bzw. vor allem auch was euch am Grundriss stören würde.
Vielen Dank schon einmal!
Bebauungsplan/Einschränkungen
Größe des Grundstücks 750m2
Eben
Grundflächenzahl - kein Bebauungsplan
Geschossflächenzahl - kein Bebauungsplan
Baufenster, 12x15m, wir planen ca. 12x12 zu bebauen
Randbebauung 3 Meter zu allen Seiten
Anzahl Stellplatz 2
Geschossigkeit 1-2 Vollgeschosse
Dachform: FD gewünscht, flaches Satteldach auch ok (Bauvorbescheid geplant)
Stilrichtung:
Ausrichtung: Garten Richtung Süd-West
Maximale Höhen/Begrenzungen ca. 8 Meter (Vermessung steht aus)
weitere Vorgaben
Anforderungen der Bauherren
Stilrichtung, Dachform, Gebäudetyp - keine Erker oder Balkone, FD
Keller: Ja
Anzahl der Personen, Alter , 2 Erwachsene und 2 kleine Kinder
Raumbedarf im EG, OG: Raum im Plan gefällt uns gut
Büro: Familiennutzung oder Homeoffice? beide arbeiten knapp 50% im HO
Schlafgäste pro Jahr: Regelmäßig Gäste mit Kindern
offene oder geschlossene Architektur - oben geschlossen, unten offen
konservativ oder moderne Bauweise - nicht entschieden
offene Küche, Kochinsel - Kochinsel mit 2 Sitzplätzen
Anzahl Essplätze 6
Kamin - Ja (keine Kohle)
Hausentwurf
Von wem stammt die Planung:
-Planer eines Bauunternehmens, abgeändert von uns
Was gefällt besonders? Größe der Räume
Was gefällt nicht? Elternbereich - Ankleide und Bad eng. Diele mit Treppe so praktisch? Küche auf der linken Seite praktisch wegen Licht, aber im Sommer ab 19 Uhr keine Sonne im Wohnzimmer? Evtl. Sofa im Wohnzimmer anders stellen wg. TV
Preisschätzung lt Architekt/Planer: 700k€ inkl Keller, Garagen und Baunebenkosten (ohne Grundstück)
Persönliches Preislimit fürs Haus, inkl Ausstattung: 750k€ (50k€ für Küche, Außenanlagen)
favorisierte Heiztechnik: Erdwärmepumpe mit Kühlungsoption
Warum ist der Entwurf so geworden, wie er jetzt ist? ZB
Oben brauchen wir den Platz, wir wollten die 2 Kinderzimmer, ein Arbeitszimmer und zwei Bäder oben + Hauswirtschaftsraum.



wir haben ein 750qm Grundstück auf dem wir planen ca. 220qm + Keller + Garagen zu bauen.
Nach ersten Gesprächen mit Baufirmen finden wir folgenden Grundriss nicht schlecht, da dieser sowohl im EG als auch im OG unsere Raumgrößen umsetzt.
EG:
Zwei Hauptfragen beschäftigen uns weiterhin:
1) Sollen Küche/Esszimmer links hin oder soll das Wohnzimmer lieber dorthin?
Wegen Licht ist die zurückgesetzte Küche links gut und insbesondere auch, da wir die Treppe sonst nicht ordentlich unterbringen können. Das Wohnzimmer links wäre eigentlich schön, da wir hier bis 21:30 im Sommer Sonne haben, auf der rechten Seite ist um 18:30 Schatten. Geschmackssache wo man wann das Licht haben möchte, aber eure Meinungen wären hier interessant.
2) Wo kommt die Treppe hin und wie vermeiden wir es viel Platz im OG zu verlieren?
Wir haben eigentlich nur die Lösung bisher gefunden.
Bevorzugt wird eine 180Grad Treppe, 90 wären auch ok, dazu mit Podest da wir keine schrägen Treppenstufen wollen.
Sonstiges:
Es fehlt eine Speisekammer, diese hatten wir mal im Durchgang von der Garage in die Diele angedacht, dafür ist aber kein Platz. Kommt nun in den Keller.
Zudem haben wir in der Diele keine besonders große Garderobe, daher die Idee einen Teil von der Küche/Gästezimmer abzuzwacken. Das Duschbad im EG könnte etwas größer sein.
OG:
Oben brauchen wir den Platz, wir wollten die 2 Kinderzimmer, ein Arbeitszimmer und zwei Bäder oben + Elternbereich und Hauswirtschaftsraum. Nur mit dieser Treppenplatzierung und den Einschränkungen bei Elternankleide und Elternbad haben wir alles ordentlich untergebracht, die Zimmergrößen und Ausrichtungen gefallen uns dafür.
Keller:
Ja, weiße Wanne benötigt. Wollen wir haben wegen Abstellraum und Technik, das wäre oben nicht unterzubringen. Die anderen Räume wie Fitness sind nett, aber kein Muss, dennoch wollen wir den Keller auch wg. möglichem Wiederverkaufswert und Flexibilität. Aufgrund der Kosten wollen wir hier nur teilweise ausbauen. Grundriss im Keller daher wie gesagt erst einmal nebensächlich.
Sehr gerne würden wir von euch hören, was ihr zu unseren Ideen sagt und welche Dinge ihr gut bzw. vor allem auch was euch am Grundriss stören würde.
Vielen Dank schon einmal!
Bebauungsplan/Einschränkungen
Größe des Grundstücks 750m2
Eben
Grundflächenzahl - kein Bebauungsplan
Geschossflächenzahl - kein Bebauungsplan
Baufenster, 12x15m, wir planen ca. 12x12 zu bebauen
Randbebauung 3 Meter zu allen Seiten
Anzahl Stellplatz 2
Geschossigkeit 1-2 Vollgeschosse
Dachform: FD gewünscht, flaches Satteldach auch ok (Bauvorbescheid geplant)
Stilrichtung:
Ausrichtung: Garten Richtung Süd-West
Maximale Höhen/Begrenzungen ca. 8 Meter (Vermessung steht aus)
weitere Vorgaben
Anforderungen der Bauherren
Stilrichtung, Dachform, Gebäudetyp - keine Erker oder Balkone, FD
Keller: Ja
Anzahl der Personen, Alter , 2 Erwachsene und 2 kleine Kinder
Raumbedarf im EG, OG: Raum im Plan gefällt uns gut
Büro: Familiennutzung oder Homeoffice? beide arbeiten knapp 50% im HO
Schlafgäste pro Jahr: Regelmäßig Gäste mit Kindern
offene oder geschlossene Architektur - oben geschlossen, unten offen
konservativ oder moderne Bauweise - nicht entschieden
offene Küche, Kochinsel - Kochinsel mit 2 Sitzplätzen
Anzahl Essplätze 6
Kamin - Ja (keine Kohle)
Hausentwurf
Von wem stammt die Planung:
-Planer eines Bauunternehmens, abgeändert von uns
Was gefällt besonders? Größe der Räume
Was gefällt nicht? Elternbereich - Ankleide und Bad eng. Diele mit Treppe so praktisch? Küche auf der linken Seite praktisch wegen Licht, aber im Sommer ab 19 Uhr keine Sonne im Wohnzimmer? Evtl. Sofa im Wohnzimmer anders stellen wg. TV
Preisschätzung lt Architekt/Planer: 700k€ inkl Keller, Garagen und Baunebenkosten (ohne Grundstück)
Persönliches Preislimit fürs Haus, inkl Ausstattung: 750k€ (50k€ für Küche, Außenanlagen)
favorisierte Heiztechnik: Erdwärmepumpe mit Kühlungsoption
Warum ist der Entwurf so geworden, wie er jetzt ist? ZB
Oben brauchen wir den Platz, wir wollten die 2 Kinderzimmer, ein Arbeitszimmer und zwei Bäder oben + Hauswirtschaftsraum.
EFH2020 schrieb:
Von wem stammt die Planung:
-Planer eines Bauunternehmens, abgeändert von unsZeigt ´mal die Planung vor der Änderung. Das sieht ein bißchen wild aus, da vermute ich Potential für bessere Änderungen.https://www.instagram.com/11antgmxde/
https://www.linkedin.com/company/bauen-jetzt/
11ant schrieb:
Zeigt ´mal die Planung vor der Änderung. Das sieht ein bißchen wild aus, da vermute ich Potential für bessere Änderungen.Die Änderungen sind lediglich im EG mit der Ausbuchtung in der Küche und im Arbeitszimmer
Hallo,
gibt's einen Lageplan? Plan mit Grundstück. Bitte mit Nordpfeil.
Vielleicht bin ich noch nicht wach aber ich habe die Ausrichtung noch nicht ganz verstanden...links (Westen?) bis 21:30 Sonne/Garten nach Süd-West?
Mit so vielen QM kann man natürlich was anfangen.
- Kommen die Fahrräder bei geparktem Auto aus der Garage?
- Ankleide Eltern ungelenk
- würde die Abtrennungswand im Allraum eher zum Wohnzimmer machen.
Genauer hab ich's dann noch nicht angeschaut...
gibt's einen Lageplan? Plan mit Grundstück. Bitte mit Nordpfeil.
Vielleicht bin ich noch nicht wach aber ich habe die Ausrichtung noch nicht ganz verstanden...links (Westen?) bis 21:30 Sonne/Garten nach Süd-West?
Mit so vielen QM kann man natürlich was anfangen.
- Kommen die Fahrräder bei geparktem Auto aus der Garage?
- Ankleide Eltern ungelenk
- würde die Abtrennungswand im Allraum eher zum Wohnzimmer machen.
Genauer hab ich's dann noch nicht angeschaut...
Lumpi_LE schrieb:
Wenn man soviel Geld in die Hand nimmt, warum dann nicht zu einem guten Architekt gehen und was ordentliches planen lassen?Die Idee hatten wir auch, war ernüchternd. Die Entwürfe der Architekten haben hier kaum wertvollen neuen Input gegeben, dieser Entwurf sagt uns mehr zu.Ähnliche Themen