Planung Grundriss / Erster Entwurf für erstes Feedback

4,60 Stern(e) 5 Votes
Zuletzt aktualisiert 21.11.2025
Sie befinden sich auf der Seite 6 der Diskussion zum Thema: Planung Grundriss / Erster Entwurf für erstes Feedback
>> Zum 1. Beitrag <<

Jaydee

Jaydee

Ich korrigiere noch mal meinen Post #23. Ich bin beim 2-Geschosser von einer Zeltdachvariante ausgegangen. Diese soll mW nach eifrigem Lesen günstiger als Satteldach sein...
Das kann ich so nicht bestätigen. Wir konnten unser Haus von der Grundfläche her größer bauen, als wir von Zelt- auf Satteldach umgeplant haben.

Beim Zeltdach lagen wir bei einer Grundfläche von 8,84 x 9,44, mit Satteldach haben wir jetzt 8,84 x 10,64 - bei gleichem Preis.
 
L

LiquidSky

@Wanderdüne: Durch den Bebauungsplan sind die Bauflächen ja vorgegeben und so lange ich mich daran halte, sollten auch die Abstandsflächen kein Problem sein.
Änderungen am Bebauungsplan müssen wir uns aber wohl leider abschminken. Wir hätten gerne das Baufenster für die Garage 3-4 m weiter hinter aufs Grundstück gesetzt. Das haben wir über den Architekten beim zuständigen Amt anfragen lassen. Der Sachbearbeiter hatte sich aber völlig stur gestellt. Es soll keine Ausnahmen geben, außer der Bau an sich ist z.B. wegen Geländegegebenheiten nicht möglich.
__________________________________
Wir müssen laut Bebauungsplan sowieso mit Satteldach bauen.
Ich habe mir am Wochenende nochmal ein paar Gedanken gemacht wie wir die Terrasse etwas abschirmen können und trotzdem in der 13m Lücke des Baufenster zu bleiben um nicht tiefer ins Grundstück rücken zu müssen.
Die Idee wird zwar noch ein paar Tausender für das Dach über der Garage extra kosten, aber so sieht die Garage nicht wie danebengesetzt aus und schirmt die Terrasse etwas ab. Gleichzeitig sparen wir beim Hauswirtschaftsraum etwas Geld weil die Leitungen kürzer werden. Aber schaut selbst (beim 3D Modell fehlen die Dächer und die Dachschräge soll gerade durchgehen) und gebt mir gerne Feedback.

Moderne 3D-Haus-Außenansicht mit Carport und mehreren Gebäudeteilen


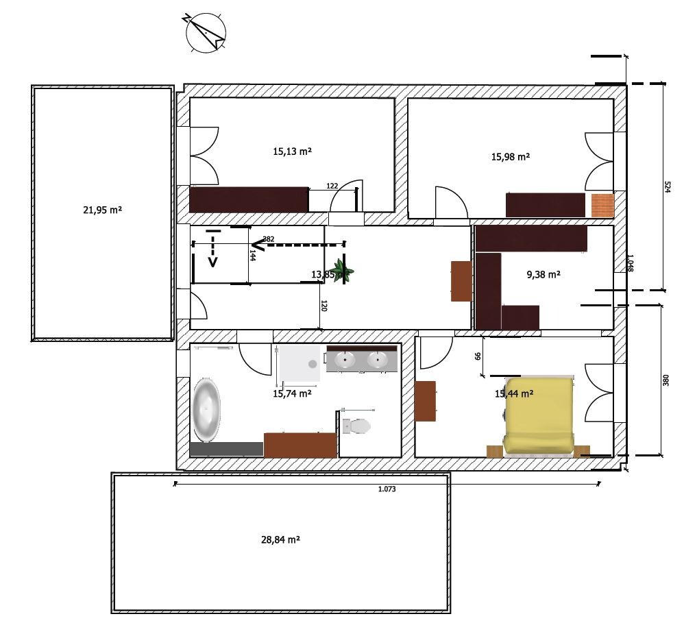
Grundrissplan eines Hauses mit mehreren Zimmern, Badezimmer, Küche und Flur


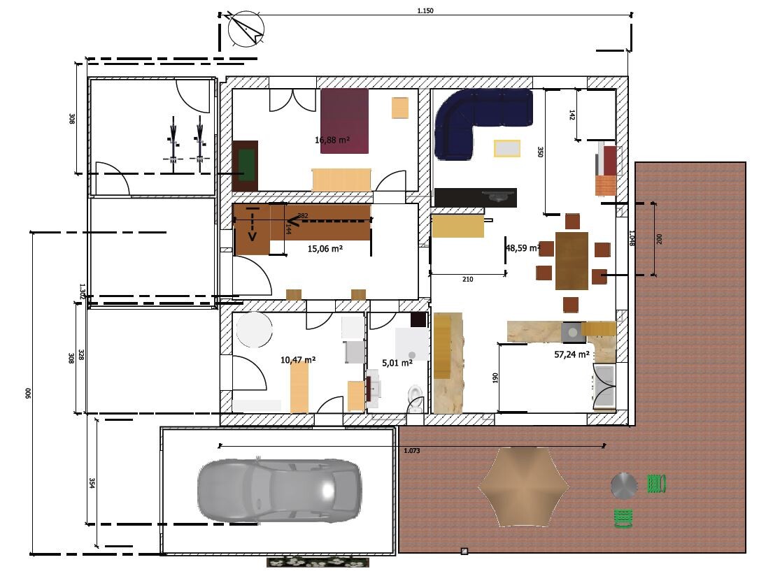
Detaillierter Hausgrundriss mit Terrasse, Garage und möblierten Zimmern
 
Zuletzt aktualisiert 21.11.2025
Im Forum Grundrissplanung / Grundstücksplanung gibt es 2535 Themen mit insgesamt 87982 Beiträgen


Ähnliche Themen zu Planung Grundriss / Erster Entwurf für erstes Feedback
Nr.ErgebnisBeiträge
1Position Garage auf Grundstück, Vorgabe im Bebauungsplan 22
2Grundstück - Baufenster - Lage von Haus und Garage - Seite 244
3Nettes Grundstück, aber Bebauungsplan zu einschränkend? 21
4Terrasse vom Nachbar grenzt an Garage 11
5Haus, Garage / Carport auf dem Grundstück platzieren 93
6Fragen/vernachlässigtes Grundstück/Wiese, Baumaßnahmen eruieren - Seite 344
7Einfamilienhaus 11,35x9,65 Grundrissplanung und platzierung auf dem Grundstück 29
8Planung Einfamilienhaus ca. 190m² mit Satteldach, Keller, Doppelgarage 11
9Bebauung / Grundriss hinterliegendes Grundstück - Seite 753
10Bau Garage auf Grenze geht lt. Architekt nicht. 11
11Abweichung vom Bebauungsplan in Neubaugebiet möglich - Seite 16118
12Grundstück die Zweite - Bitte um Beurteilung - Seite 444
13Bauvorhaben auf Grundstück mit leichter Hanglage - Seite 324
14bevorstehender Grundstückskauf - Fragen zum Bebauungsplan - Seite 220
15Hang-Grundstück, Carport abfangen - Seite 322
16Garagenposition am Grundstück - Entscheidunghilfe 36
17Grundriss Bungalow 125qm konisches Grundstück 39
18Grundriss-Entwurf: Einfamilienhaus; mit Keller; 800qm Grundstück 10
19Welches Grundstück würdet ihr wählen? Einfamilienhaus mit Doppelgarage - Seite 444
20Grundstück 1250m², Wohnfläche 200m², 4 Personen Haushalt 25

Oben