ᐅ Lichtplanung Einfamilienhaus mit LED Einbauspots - Anzahl und Position
Erstellt am: 30.01.22 22:58
S
SamantheusS
Samantheus30.01.22 22:58Hallo zusammen,
ich bin gerade bei der Lichtplanung von unserem Einfamilienhaus Bauprojekt, weil die Bestellung der Decken langsam ansteht. Der allgemeine Grundriss Planungsthread war hier: https://www.hausbau-forum.de/threads/grundriss-planung-und-platzierung-efh-ca-200qm-auf-900qm-Grundstück.39104/
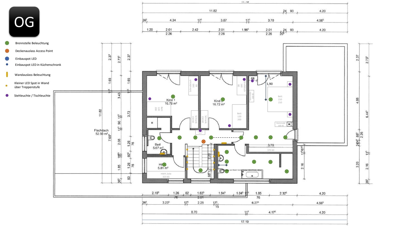
Im Anhang 3 Bilder mit den eingezeichneten Beleuchtungen die hoffentlich selbsterklärend sein sollen.
Vorweg als allgemeine Information: Wir mögen es gerne heller als vielleicht manche andere Menschen. Ich nehme oft Räume als zu dunkel war, zu hell ist mir noch nie passiert. Weiterhin hat meine Frau eine starke Abneigung gegen LED Paneele, LED Stripes und alles was in diese Richtung geht. Smart Home, Präsenzmelder etc. ist nicht geplant.
Generell ist unsere Grundüberlegung das jeder Raum eine "Primärbeleuchtung" haben sollte die von der Helligkeit her an die Raumnutzung angepasst ist:
Arbeitsräume (Bad, Küche, Flur, Büro, Keller, Garage): sehr hell
Wohnen, Essen, Schlafen: "gemütlich"
Kind: so irgendwie dazwischen
Zusätzlich planen wir eine "Sekundärbeleuchtung" für Gemütlichkeit wenn man es mal nicht so hell haben möchte.
Die Anzahl und Platzierung der LED Einbau Spots haben wir "so grob" mit unserem Elektriker besprochen.
Kurze Erklärung zu den Räumen die etwas komplexer sind:
Eltern Bad: Spots zur Primärbeleuchtung wenn man es hell braucht. Eine Stimmungslicht gegenüber der Badewanne wenn man es sich in der Badewanne gemütlich machen möchte oder nachts nur mal schnell auf die Toilette möchte ohne viel Licht. Lichtauslass am Spiegel für Spiegelbeleuchtung.
Kinder Bad: Analog Eltern, nur ohne Stimmungslicht.
Schlafen: nachttischlampe/Leselampe am Bett, kleine Tischleuchte oder Stehlampe in der Ecke und eine gemütliche Deckenleuchte. Vor der Schrankwand ein paar Spots damit der schrank gut beleuchtet ist und man die Sachen beim auswählen und anziehen auch gut sieht.
Flure: Die Deckenspots wenn man es wirklich hell braucht (z.B. Anziehen, Einkauf, Sachen schleppen), die Tischleuchten auf den Kommoden als Dauerbeleuchtung in den Abendstunden wenn man nur mal durchgeht.
Flur OG: Die Lücke bei den Spots kammt daher, das dort eine DG Einschubtreppe ist.
Treppen: So kleine Mini LEDs in den Wänden über jeder zweiten oder dritten Stufe für eine Akzentbeleuchtung, die dauerhaft in den Abendstunden an ist. Wenn es hell sein soll, seitlich je eine Wandleuchte. Alternativ im OG ein Deckenauslass über dem Podest für eine lange Hängeleuchte.
Wohnen / Essen / Kochen: 6 Einbaustrahler sind in der Küche verbaut unter den Hängeschränken. Dann 6 LED Spots damit die Arbeitsplatte und der Herd (Halbinsel) gut beleuchtet ist. Bei den 3 Deckenauslässen befindet sich eine Theke, da sollen 3 kleine Hängeleuchten hin. Über den Esstisch eine große Hängeleuchte. In die Ecke zwischen Kaminwand und Esstisch eine größere Stehlampe. Gegenüber der Kaminwand rechts neben der Schiebetür eine Wandleuchte, genau wie links und rechts vom Fenster im rechten Bereich (Wohnbereich). Bei dem Fenster handelt es sich um ein Sitzfenster. Über dem Sofa eine Leseleuchte (Wandmontage) und neben dem Sofa ggf. eine Stehlampe mit Schirm und kleiner Leseleuchte sodass man auch im Sessel gut lesen kann.
Das zu unseren Überlegungen soweit, bei folgenden Punkte hoffe ich auch kreatives Feedback:
1. Anzahl und Anordnung der LED Spots in Fluren und Bädern - passt das aus eurer Sicht soweit?
2. Ich habe gesehen, dass in Fluren die LED Spots teilweise nicht mittig sondern eher nah an einer Wandseite gesetzt werden und dann eine Wand stärker angestrahlt wird. Hat da jemand Erfahrung mit? Gut oder schlecht?
3. Würdet ihr die erste Reihe LED Spots in den Bädern vor dem Waschtisch weglassen wenn man einen Spiegel mit Beleuchtung plant, oder trotzdem machen?
4. Meint ihr das die OG Treppe mit einer Hängeleuchte bei dem Deckenauslass gut beleuchtet werden kann und dann auf die Wandleuchten verzichtet werden kann?
5. Passt die Schrankbeleuchtung im Schlafzimmer aus eurer Sicht? Oder besteht da Gefahr das zu viel Schatten geworfen werden und es nicht richtig hell ist im Schrank?
6. Fällt allgemein etwas auf? Irgendein Raum zu viel oder zu wenig eingeplant?
Vorab vielen Dank für jedes Feedback!



ich bin gerade bei der Lichtplanung von unserem Einfamilienhaus Bauprojekt, weil die Bestellung der Decken langsam ansteht. Der allgemeine Grundriss Planungsthread war hier: https://www.hausbau-forum.de/threads/grundriss-planung-und-platzierung-efh-ca-200qm-auf-900qm-Grundstück.39104/
Im Anhang 3 Bilder mit den eingezeichneten Beleuchtungen die hoffentlich selbsterklärend sein sollen.
Vorweg als allgemeine Information: Wir mögen es gerne heller als vielleicht manche andere Menschen. Ich nehme oft Räume als zu dunkel war, zu hell ist mir noch nie passiert. Weiterhin hat meine Frau eine starke Abneigung gegen LED Paneele, LED Stripes und alles was in diese Richtung geht. Smart Home, Präsenzmelder etc. ist nicht geplant.
Generell ist unsere Grundüberlegung das jeder Raum eine "Primärbeleuchtung" haben sollte die von der Helligkeit her an die Raumnutzung angepasst ist:
Arbeitsräume (Bad, Küche, Flur, Büro, Keller, Garage): sehr hell
Wohnen, Essen, Schlafen: "gemütlich"
Kind: so irgendwie dazwischen
Zusätzlich planen wir eine "Sekundärbeleuchtung" für Gemütlichkeit wenn man es mal nicht so hell haben möchte.
Die Anzahl und Platzierung der LED Einbau Spots haben wir "so grob" mit unserem Elektriker besprochen.
Kurze Erklärung zu den Räumen die etwas komplexer sind:
Eltern Bad: Spots zur Primärbeleuchtung wenn man es hell braucht. Eine Stimmungslicht gegenüber der Badewanne wenn man es sich in der Badewanne gemütlich machen möchte oder nachts nur mal schnell auf die Toilette möchte ohne viel Licht. Lichtauslass am Spiegel für Spiegelbeleuchtung.
Kinder Bad: Analog Eltern, nur ohne Stimmungslicht.
Schlafen: nachttischlampe/Leselampe am Bett, kleine Tischleuchte oder Stehlampe in der Ecke und eine gemütliche Deckenleuchte. Vor der Schrankwand ein paar Spots damit der schrank gut beleuchtet ist und man die Sachen beim auswählen und anziehen auch gut sieht.
Flure: Die Deckenspots wenn man es wirklich hell braucht (z.B. Anziehen, Einkauf, Sachen schleppen), die Tischleuchten auf den Kommoden als Dauerbeleuchtung in den Abendstunden wenn man nur mal durchgeht.
Flur OG: Die Lücke bei den Spots kammt daher, das dort eine DG Einschubtreppe ist.
Treppen: So kleine Mini LEDs in den Wänden über jeder zweiten oder dritten Stufe für eine Akzentbeleuchtung, die dauerhaft in den Abendstunden an ist. Wenn es hell sein soll, seitlich je eine Wandleuchte. Alternativ im OG ein Deckenauslass über dem Podest für eine lange Hängeleuchte.
Wohnen / Essen / Kochen: 6 Einbaustrahler sind in der Küche verbaut unter den Hängeschränken. Dann 6 LED Spots damit die Arbeitsplatte und der Herd (Halbinsel) gut beleuchtet ist. Bei den 3 Deckenauslässen befindet sich eine Theke, da sollen 3 kleine Hängeleuchten hin. Über den Esstisch eine große Hängeleuchte. In die Ecke zwischen Kaminwand und Esstisch eine größere Stehlampe. Gegenüber der Kaminwand rechts neben der Schiebetür eine Wandleuchte, genau wie links und rechts vom Fenster im rechten Bereich (Wohnbereich). Bei dem Fenster handelt es sich um ein Sitzfenster. Über dem Sofa eine Leseleuchte (Wandmontage) und neben dem Sofa ggf. eine Stehlampe mit Schirm und kleiner Leseleuchte sodass man auch im Sessel gut lesen kann.
Das zu unseren Überlegungen soweit, bei folgenden Punkte hoffe ich auch kreatives Feedback:
1. Anzahl und Anordnung der LED Spots in Fluren und Bädern - passt das aus eurer Sicht soweit?
2. Ich habe gesehen, dass in Fluren die LED Spots teilweise nicht mittig sondern eher nah an einer Wandseite gesetzt werden und dann eine Wand stärker angestrahlt wird. Hat da jemand Erfahrung mit? Gut oder schlecht?
3. Würdet ihr die erste Reihe LED Spots in den Bädern vor dem Waschtisch weglassen wenn man einen Spiegel mit Beleuchtung plant, oder trotzdem machen?
4. Meint ihr das die OG Treppe mit einer Hängeleuchte bei dem Deckenauslass gut beleuchtet werden kann und dann auf die Wandleuchten verzichtet werden kann?
5. Passt die Schrankbeleuchtung im Schlafzimmer aus eurer Sicht? Oder besteht da Gefahr das zu viel Schatten geworfen werden und es nicht richtig hell ist im Schrank?
6. Fällt allgemein etwas auf? Irgendein Raum zu viel oder zu wenig eingeplant?
Vorab vielen Dank für jedes Feedback!
Willkommen im Forum,
Sucht euch doch schöne Leuchten und plant mit denen die Ausleuchtung der verschiedenen Räume und Bereiche.
Samantheus schrieb:und du planst mit LED Spots die Decken zu löchern, das wiederspricht sich doch.
Weiterhin hat meine Frau eine starke Abneigung gegen LED Paneele, LED Stripes und alles was in diese Richtung geht.
Sucht euch doch schöne Leuchten und plant mit denen die Ausleuchtung der verschiedenen Räume und Bereiche.
S
Samantheus31.01.22 00:16Vielen Dank!
In den Fluren sind wir tatsächlich am überlegen auf Spots zu verzichten und im EG einfach 3 Deckenauslässe und im OG 1-2 Deckenauslässe zu nehmen.
Nida35a schrieb:Nein, das ist irgendwie was ganz anderes. Deckeneinbau Spots vermitteln, zumindest bei uns, eher ein konservatives klassisches Bild und ergänzen sich gut mit Tischleuchten oder Stehlampen mit großen Lampenschirmen aus Stoff etc.. Während LED Deckenpaneele und LED Stripes eher einen modernen, puristischen Stil haben und daher vermutlich nicht so gut zu unserer Einrichtung passen. Mag natürlich subjektive Wahrnehmung sein. Wir haben aktuell Halogen Deckenspots in Bad und Flur und finden die (abgesehen vom Stromverbrauch) sehr schön. In der Küche haben wir keine und es ist uns da immer viel zu dunkel.
und du planst mit LED Spots die Decken zu löchern, das wiederspricht sich doch.
Sucht euch doch schöne Leuchten und plant mit denen die Ausleuchtung der verschiedenen Räume und Bereiche.
In den Fluren sind wir tatsächlich am überlegen auf Spots zu verzichten und im EG einfach 3 Deckenauslässe und im OG 1-2 Deckenauslässe zu nehmen.
S
Samantheus31.01.22 00:42Ich habe mal eine EG und OG Planung ohne Flur Spots erstellt. Das könnte ich mir dann so vorstellen bei den Deckenauslässen.
Im Kochbereich hätte ich Angst das ich es nicht hell genug bekomme ohne da irgendwie Schatten zu werfen.
Im Bad stelle ich es mir schwer vor schöne zu finden die entsprechende Schutzklassen haben (insb. für in der Dusche). Wenn man es mixt, kann es ggf. dann auch schnell zerstückelt aussehen....


Im Kochbereich hätte ich Angst das ich es nicht hell genug bekomme ohne da irgendwie Schatten zu werfen.
Im Bad stelle ich es mir schwer vor schöne zu finden die entsprechende Schutzklassen haben (insb. für in der Dusche). Wenn man es mixt, kann es ggf. dann auch schnell zerstückelt aussehen....
wir haben auch nur Deckenauslässe in Fluren und Bädern, die Leuchten machen ein schattenfreies Licht.
Wir haben LED Panels, dimmbar, 3000K (umschaltbar auf 4000/6000K, max 2000lm), die Bilder zeigen gedimmt und Nachtlicht mit Bewegungsmelder.
Fast alle Leuchten sind bei uns mit E14/E27 Fassungen, da ist die Möglichkeit jeder Lampentechnik gegeben.
In der Küche Strahler, die gleichzeitig nach oben und unten strahlen, auch für keine Schatten



Wir haben LED Panels, dimmbar, 3000K (umschaltbar auf 4000/6000K, max 2000lm), die Bilder zeigen gedimmt und Nachtlicht mit Bewegungsmelder.
Fast alle Leuchten sind bei uns mit E14/E27 Fassungen, da ist die Möglichkeit jeder Lampentechnik gegeben.
In der Küche Strahler, die gleichzeitig nach oben und unten strahlen, auch für keine Schatten
Samantheus schrieb:
starke Abneigung gegen LED Paneele, LED StripesLiegt das jetzt an den LEDs? Ohne dürfte heutzutage nämlich schwierig bis unmöglich werden.
Samantheus schrieb:
1. Anzahl und Anordnung der LED Spots in Fluren und Bädern - passt das aus eurer Sicht soweit?Welche Strahler hast Du denn dafür vorgesehen? Das richtet sich ja vor allem nach Abstrahlwinkel und Lichtstrom sowie der gewünschten Helligkeit. Mit der aktuell geplanten Anzahl fasst Du wohl die üblichen 300 - 500 lm GU10-Varianten ins Auge, oder?
Samantheus schrieb:
2. Ich habe gesehen, dass in Fluren die LED Spots teilweise nicht mittig sondern eher nah an einer Wandseite gesetzt werden und dann eine Wand stärker angestrahlt wird. Hat da jemand Erfahrung mit? Gut oder schlecht?Eine nackte angetrahlte Wand bringt (mir) nichts, aber wenn dort ein schönes Bild hängt o. ä., dann kann das ganz anders wirken. Betrachte die Beleuchtung im Zusammenhang mit Eurer geplanten Möblierung. Ansonsten bin ich bei den typischen Verkehrsflächen eher bei einer gleichmäßigen hellen Ausleuchtung.
Samantheus schrieb:
3. Würdet ihr die erste Reihe LED Spots in den Bädern vor dem Waschtisch weglassen wenn man einen Spiegel mit Beleuchtung plant, oder trotzdem machen?Nun, die Bäder sind schon ein Fall für sich mit tlw. zweistelligen Strahlerbatterien. Wenn Du ohnehin einen beleuchteten Spiegel planst, können sie so bleiben, ansonsten würde ich sie näher an die Wand rücken, um Schattenwurf zu vermeiden.
Samantheus schrieb:
4. Meint ihr das die OG Treppe mit einer Hängeleuchte bei dem Deckenauslass gut beleuchtet werden kann und dann auf die Wandleuchten verzichtet werden kann?Wie immer: Es kommt auf die Leuchte an, wobei diese ja in mehrere Richtungen strahlen muss und entsprechend Power braucht. Ich würde vermutlich eher zwei Auslässe nehmen (einen pro Treppenlauf). Die Wandleuchten erfüllen aber i. d. R. einen anderen Zweck. Wenn Ihr den nicht nutzen wollt, würde ich sie weglassen.
Samantheus schrieb:
5. Passt die Schrankbeleuchtung im Schlafzimmer aus eurer Sicht? Oder besteht da Gefahr das zu viel Schatten geworfen werden und es nicht richtig hell ist im Schrank?Nein, sie ist zu weit weg vom Schrank, was zu Schatten führt. Man kann aber natürlich auch Beleuchtung am/im Schrank selbst vorsehen, um das auszugleichen.
Samantheus schrieb:
6. Fällt allgemein etwas auf? Irgendein Raum zu viel oder zu wenig eingeplant?Wie hier schon geschrieben: Denk mal über die schiere Zahl an Strahlern nach. Mit "ordentlichen" (stärkeren, breiter strahlenden) Exemplaren kann man die drastisch reduzieren. Außerdem solltet Ihr bereits jetzt drüber nachdenken, wie Ihr die verschiedenen Lampen gruppieren wollt. Ohne programmierbare Unterstützung wird das vermutlich zu größeren Schalteragglomerationen führen.
Ähnliche Themen