ᐅ 2 Vollgeschosse, Durchgang Garage, Hauswirtschaftsraum unter Treppe
Erstellt am: 19.08.15 21:39
G
GrymWir hatten mittlerweile einige vertiefter Gespräche, nach dem die Idee mit der Nutzung des Raums unter der Treppe als Hauswirtschaftsraum-Erweiterung sowie die Idee direkter Durchgang zur Garage gereift sind. Hier die Erkenntnisse, sind im Prinzip nah dran an dem Entwurf, welche die eine Baufirma jetzt mal fertig zeichnen und bepreisen möchte:
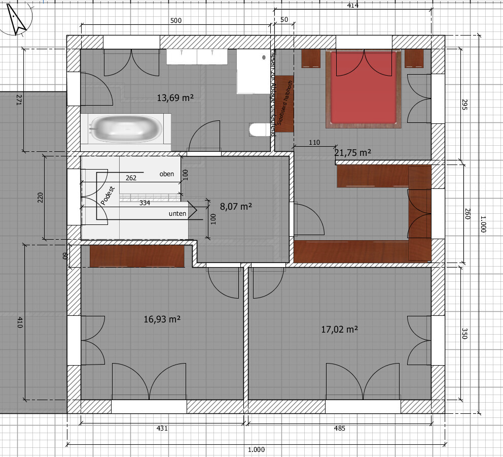
Durchgang Garage in Hauswirtschaftsraum haben wir jetzt in 2 Privathäusern (eins von Bekannten) gesehen und das scheint schon sehr sinnvoll, wollen wir haben. Die Treppe ist geschlossen und quasi asymmetrisch. Es geht ca. 9 Stufen nach oben, dann Podest, dann noch mal 6 Stufen. Mit dem Podest ergibt das 16 Stufen, also 17 Steigungen. Da kann bei der zweiten Steigung problemlos eine Stufe dazu oder eine Stufe weg, je nach Bedarf.
Meine Gedanken zu einzelnen Räumen:
- Beide Kinderzimmer rechteckig und ca. 17qm. Die Schranknische in Kinderzimmer links sehe ich jetzt nicht als Einschränkung. Sind m.E. 2 großzügige Kinderzimmer, auch für Jugendliche; Süd- und Gartenausrichtung für die Kinderzimmern
-> Kinderzimmer ok oder nicht?
- Schlafzimmer breit genug, Durchgang unten breit genug, Ost-Ausrichtung, Ankleide hat über 7 Schrankmeter und innen eine Bewegungsfläche von 1,20m in der Breite
-> Schlafzimmer/Ankleide ok oder nicht?
- Bad ergibt sich von der Größe her mehr oder minder als Restfläche. Ich mag keine kleinen Bäder, ich mag keine Toilette direkt neben der Badewanne. Wir wollen Doppelwaschbecken. Wir wollen kein separates Kinderbad.
-> Bad evtl. zu groß für manchen Geschmack aber ansonsten ok oder nicht?
- Wir wollen Wohnen/Essen/Küche über Eck, 4,07m für den Wohnbereich habe ich mal live gesehen bei Bekannten und fand es gut; 3,60m für den Essbereich mit Tisch 90-100cm sollte auch passen? Küche hat 6 Schrankmeter plus großen Kühl- und Gefrierschrank separat. Schiebetür ist geplant, damit man niemanden beim öffnen erschlägt; Generell ist es eher geplant, dass sowohl Küchentür als auch Wohnzimmertür offen stehen und nur bei Bedarf geschlossen werden. So ist das bei uns zuhause auch schon.
-> Wohnen/Essen/Küche ok oder nicht?
- Der Flur hat jetzt 1,80. Wir haben 2,00m gesehen (extrem großzügig; Verschwendung?), 1,30m (bei einem Doppelhaus, funktional, geht; wirkt nicht, aber funktioniert) und 1,40-1,50m (Musterhäuser; ist uns weder positiv noch negativ aufgefallen). Die Garderoben-Nische bekommt Bügel quer zur Flurrichtung, wo man Jacken etc. aufhängen kann; evtl. kommt auch noch eine Garderobe in den Hauswirtschaftsraum als Durchgangsraum zur Garage, weil man ja doch öfters dort lang geht. Die größere Schuhvorräte müssen auch in den Hauswirtschaftsraum, aber einige Paar Schuhe (bei mir ein einziges Paar, bei meiner Frau ein paar Paare) können im Flur bleiben (z.B. zwischen WC-Tür und Hauswirtschaftsraum-Tür oder zwischen AZ-Tür und Außenwand oder in die Garderoben-Nische). Das WC ist mehr oder minder aus optischen Gründen mit Dusche geplant, na gut, ab und zu wird diese sicher genutzt. 2,5-3,0qm sind optisch einfach zu wenig für einen Aufenthaltsraum (und wenn man sich dort nur ein paar Minuten aufhält). Der Arbeitsbereich vor der Anschlussnische ist tlw. eh Durchgangsbereich, tlw. würde ich dort einfach mal Getränkekisten lagern, welche ja bei Bedarf weggeschoben werden können. Daneben sind noch mal gut 2 Schrankmeter, gegenüber finden Waschmaschine und Trockner unter der Treppe Platz. Warmwasserspeicher könnte evtl. in die hinterste Ecke des Hauswirtschaftsraum geschoben werden, dort muss man doch im Regelfall nicht ran? (Podest ist 10. Stufe; Höhe Podestunterseite und Höhe Warmwasserspeicher muss natürlich im Detail gerechnet und geplant werden) Oder welches andere notwendige technische Geräte bietet sich dort an? Zur Not bleibt es ungenutzt. Neben der Waschmaschine und dem Trockner sind noch mal min 1,20m für weitere technische Geräte oder die erwähnte zweite Garderobe. Falls es nicht anders geht, müssen die gut 2 Schrankmeter durch notwendige technische Geräte ersetzt werden, aber so viele gibt es dann doch auch nicht?
-> Flur, Hauswirtschaftsraum, WC/Dusche ok oder nicht?
- Und dann ist dann noch ein Arbeitszimmer, nennen wir es eher PC-Zimmer. Dort steht der PC, paar Schränke, weitere Stauraum vor allem für Dokumente
-> AZ ok?
So, jetzt noch die Details:
Bebauungsplan/Einschränkungen
Größe des Grundstücks: 600 qm
Hang: 2-7 Prozent, wird großteils eingeebnet von uns
Grundflächenzahl: 0,4 plus 50 Prozent Überschreitung
Geschossflächenzahl: Nein
Baufenster, Baulinie und -grenze: Nein
Randbebauung: Nein
Anzahl Stellplatz: 2 gefordert
Geschossigkeit: maximal 2
Dachform: SD,WD, 25-40 -> Bei uns geplant: WD 25 Grad
Stilrichtung: noch nicht final heraus; womöglich modern mit hellem Putz, anthrazitfarbenen Dachsteinen und außen dunkel folierten Fenstern
Ausrichtung: SSW
Maximale Höhen/Begrenzungen: Traufhöhe 6,30m
weitere Vorgaben: Eckgrundstück, Spielstraße in Nord und Ost; Garage oder Carport nur hinter straßenseitigen Bauflucht, d.h. an der jetzigen Stelle oder direkt in den Südgarten; d.h. nur an der jetzigen Stelle möglich
Anforderungen der Bauherren
Stilrichtung, Dachform, Gebäudetyp: 2 Vollgeschosse, Rest im Prinzip zweitrangig; zur Not auch 2,25m Kniestock und Satteldach
Keller, Geschosse: 2 Vollgeschosse auf Bodenplatte
Anzahl der Personen, Alter
Raumbedarf im EG, OG: Die Räume wir dargestellt
Büro: Familiennutzung oder Homeoffice?: PC-Zimmer, Aktenschrank
Schlafgäste pro Jahr: Nö
offene oder geschlossene Architektur: eher offen
konservativ oder moderne Bauweise: hm? Ziegel oder Kniestock plus Außendämmung, also würde ich mal sagen modern
offene Küche, Kochinsel: ja, siehe Plan
Anzahl Essplätze: 3 oder 4 bis open-End
Kamin: Doch nicht in einem hochgedämmten Neubau - Nein
Musik/Stereowand: Surround-Sound natürlich (keine Priorität; keine Beschallung anderer Zimmer mit der zentralen Anlage; integrierte Steckdosengroße Radios in Küche, WC und Bad geplant mit Bluetooth-Empfänger und ebenfalls Steckdosengroßen Boxen)
Balkon, Dachterrasse: Nein
Garage, Carport: Doppelgarage mit Abstellraum hinten für Gartenzeug, Fahrräder, Kinderspielzeug, ...
Nutzgarten, Treibhaus: Nö
weitere Wünsche/Besonderheiten/Tagesablauf: Nö
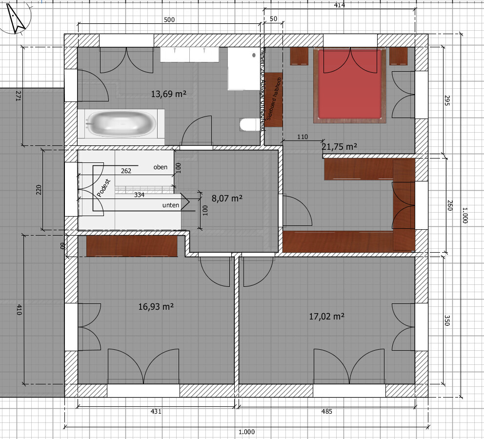
Durchgang Garage in Hauswirtschaftsraum haben wir jetzt in 2 Privathäusern (eins von Bekannten) gesehen und das scheint schon sehr sinnvoll, wollen wir haben. Die Treppe ist geschlossen und quasi asymmetrisch. Es geht ca. 9 Stufen nach oben, dann Podest, dann noch mal 6 Stufen. Mit dem Podest ergibt das 16 Stufen, also 17 Steigungen. Da kann bei der zweiten Steigung problemlos eine Stufe dazu oder eine Stufe weg, je nach Bedarf.
Meine Gedanken zu einzelnen Räumen:
- Beide Kinderzimmer rechteckig und ca. 17qm. Die Schranknische in Kinderzimmer links sehe ich jetzt nicht als Einschränkung. Sind m.E. 2 großzügige Kinderzimmer, auch für Jugendliche; Süd- und Gartenausrichtung für die Kinderzimmern
-> Kinderzimmer ok oder nicht?
- Schlafzimmer breit genug, Durchgang unten breit genug, Ost-Ausrichtung, Ankleide hat über 7 Schrankmeter und innen eine Bewegungsfläche von 1,20m in der Breite
-> Schlafzimmer/Ankleide ok oder nicht?
- Bad ergibt sich von der Größe her mehr oder minder als Restfläche. Ich mag keine kleinen Bäder, ich mag keine Toilette direkt neben der Badewanne. Wir wollen Doppelwaschbecken. Wir wollen kein separates Kinderbad.
-> Bad evtl. zu groß für manchen Geschmack aber ansonsten ok oder nicht?
- Wir wollen Wohnen/Essen/Küche über Eck, 4,07m für den Wohnbereich habe ich mal live gesehen bei Bekannten und fand es gut; 3,60m für den Essbereich mit Tisch 90-100cm sollte auch passen? Küche hat 6 Schrankmeter plus großen Kühl- und Gefrierschrank separat. Schiebetür ist geplant, damit man niemanden beim öffnen erschlägt; Generell ist es eher geplant, dass sowohl Küchentür als auch Wohnzimmertür offen stehen und nur bei Bedarf geschlossen werden. So ist das bei uns zuhause auch schon.
-> Wohnen/Essen/Küche ok oder nicht?
- Der Flur hat jetzt 1,80. Wir haben 2,00m gesehen (extrem großzügig; Verschwendung?), 1,30m (bei einem Doppelhaus, funktional, geht; wirkt nicht, aber funktioniert) und 1,40-1,50m (Musterhäuser; ist uns weder positiv noch negativ aufgefallen). Die Garderoben-Nische bekommt Bügel quer zur Flurrichtung, wo man Jacken etc. aufhängen kann; evtl. kommt auch noch eine Garderobe in den Hauswirtschaftsraum als Durchgangsraum zur Garage, weil man ja doch öfters dort lang geht. Die größere Schuhvorräte müssen auch in den Hauswirtschaftsraum, aber einige Paar Schuhe (bei mir ein einziges Paar, bei meiner Frau ein paar Paare) können im Flur bleiben (z.B. zwischen WC-Tür und Hauswirtschaftsraum-Tür oder zwischen AZ-Tür und Außenwand oder in die Garderoben-Nische). Das WC ist mehr oder minder aus optischen Gründen mit Dusche geplant, na gut, ab und zu wird diese sicher genutzt. 2,5-3,0qm sind optisch einfach zu wenig für einen Aufenthaltsraum (und wenn man sich dort nur ein paar Minuten aufhält). Der Arbeitsbereich vor der Anschlussnische ist tlw. eh Durchgangsbereich, tlw. würde ich dort einfach mal Getränkekisten lagern, welche ja bei Bedarf weggeschoben werden können. Daneben sind noch mal gut 2 Schrankmeter, gegenüber finden Waschmaschine und Trockner unter der Treppe Platz. Warmwasserspeicher könnte evtl. in die hinterste Ecke des Hauswirtschaftsraum geschoben werden, dort muss man doch im Regelfall nicht ran? (Podest ist 10. Stufe; Höhe Podestunterseite und Höhe Warmwasserspeicher muss natürlich im Detail gerechnet und geplant werden) Oder welches andere notwendige technische Geräte bietet sich dort an? Zur Not bleibt es ungenutzt. Neben der Waschmaschine und dem Trockner sind noch mal min 1,20m für weitere technische Geräte oder die erwähnte zweite Garderobe. Falls es nicht anders geht, müssen die gut 2 Schrankmeter durch notwendige technische Geräte ersetzt werden, aber so viele gibt es dann doch auch nicht?
-> Flur, Hauswirtschaftsraum, WC/Dusche ok oder nicht?
- Und dann ist dann noch ein Arbeitszimmer, nennen wir es eher PC-Zimmer. Dort steht der PC, paar Schränke, weitere Stauraum vor allem für Dokumente
-> AZ ok?
So, jetzt noch die Details:
Bebauungsplan/Einschränkungen
Größe des Grundstücks: 600 qm
Hang: 2-7 Prozent, wird großteils eingeebnet von uns
Grundflächenzahl: 0,4 plus 50 Prozent Überschreitung
Geschossflächenzahl: Nein
Baufenster, Baulinie und -grenze: Nein
Randbebauung: Nein
Anzahl Stellplatz: 2 gefordert
Geschossigkeit: maximal 2
Dachform: SD,WD, 25-40 -> Bei uns geplant: WD 25 Grad
Stilrichtung: noch nicht final heraus; womöglich modern mit hellem Putz, anthrazitfarbenen Dachsteinen und außen dunkel folierten Fenstern
Ausrichtung: SSW
Maximale Höhen/Begrenzungen: Traufhöhe 6,30m
weitere Vorgaben: Eckgrundstück, Spielstraße in Nord und Ost; Garage oder Carport nur hinter straßenseitigen Bauflucht, d.h. an der jetzigen Stelle oder direkt in den Südgarten; d.h. nur an der jetzigen Stelle möglich
Anforderungen der Bauherren
Stilrichtung, Dachform, Gebäudetyp: 2 Vollgeschosse, Rest im Prinzip zweitrangig; zur Not auch 2,25m Kniestock und Satteldach
Keller, Geschosse: 2 Vollgeschosse auf Bodenplatte
Anzahl der Personen, Alter
Raumbedarf im EG, OG: Die Räume wir dargestellt
Büro: Familiennutzung oder Homeoffice?: PC-Zimmer, Aktenschrank
Schlafgäste pro Jahr: Nö
offene oder geschlossene Architektur: eher offen
konservativ oder moderne Bauweise: hm? Ziegel oder Kniestock plus Außendämmung, also würde ich mal sagen modern
offene Küche, Kochinsel: ja, siehe Plan
Anzahl Essplätze: 3 oder 4 bis open-End
Kamin: Doch nicht in einem hochgedämmten Neubau - Nein
Musik/Stereowand: Surround-Sound natürlich (keine Priorität; keine Beschallung anderer Zimmer mit der zentralen Anlage; integrierte Steckdosengroße Radios in Küche, WC und Bad geplant mit Bluetooth-Empfänger und ebenfalls Steckdosengroßen Boxen)
Balkon, Dachterrasse: Nein
Garage, Carport: Doppelgarage mit Abstellraum hinten für Gartenzeug, Fahrräder, Kinderspielzeug, ...
Nutzgarten, Treibhaus: Nö
weitere Wünsche/Besonderheiten/Tagesablauf: Nö
B
Bieber081519.08.15 22:05Küche würde ich offen machen, ohne Tür Küche/Diele, dafür mit einer Insel.
Arbeitszimmer könnte zugunsten des Flurs etwas kleiner ... Nur eine Idee.
Braucht ihr die Dusche unten? Hier wäre auch Potential.
Fazit: Spontan gut, bis auf den gefühlt engen, schlauchartigen Flur (immerhin 180 cm breit ... man vergleiche es mit real-existierenden Häusern, vielleicht Jammern auf hohem Niveau, ich weiß es nicht ...).
Edit: Gute Frage, soll die Heizung hinter die Waschmaschine? Wenn das mal passt ...
Arbeitszimmer könnte zugunsten des Flurs etwas kleiner ... Nur eine Idee.
Braucht ihr die Dusche unten? Hier wäre auch Potential.
Fazit: Spontan gut, bis auf den gefühlt engen, schlauchartigen Flur (immerhin 180 cm breit ... man vergleiche es mit real-existierenden Häusern, vielleicht Jammern auf hohem Niveau, ich weiß es nicht ...).
Edit: Gute Frage, soll die Heizung hinter die Waschmaschine? Wenn das mal passt ...
Wir haben in einem Privathaus eines Hausverkäufers folgendes gesehen: Ausrichtung der Couch wie im Bild oben, TV in der Ecke links unten. so viel TV schauen wir eigentlich gar nicht, ab und zu natürlich schon. Wobei wir aber darauf achten, dass der TV nie läuft, wenn unsere Tochter dabei ist (6 Monate), so fällt die Zeit bis ca. 20h im Moment schon mal so oder so flach.
Man könnte die Couch auch umgekehrt stellen mit Blick auf die Wand, da hast du Recht. TV-Dosen und ausreichend Steckdosen würde ich sowieso an beiden Seiten oder evtl. an 3 Seiten sogar vorsehen. Außerdem einen Kabelschacht.
Eine Garderobe ist (d.h. wir würden dort eine Stange mit Kleiderbügeln machen) vor dem Treppenantritt. Der Rest der Garderobe, Idee wieder rum aus einem real bewohnten Privathaus, gerne auch eher bisschen Richtung Hauswirtschaftsraum als Durchgangszimmer zum Auto (und selbst als Durchgang zum Fahrrad).
Die Inneneinrichtung ist nicht komplett, eher sind Schränke exemplarisch. Beim Planer heißt sowas ja immer Stellnachweis. Wegen Schrankthema kommt mal wohl nicht umhin, die Couch um 180 Grad zu drehen. Evtl. ist die Fensterfront zum Garten doch noch etwas zu groß, evtl. werden es auch nur 2 große Hebe-Schiebetüren, dann ist in der Mitte Platz.
Man könnte die Couch auch umgekehrt stellen mit Blick auf die Wand, da hast du Recht. TV-Dosen und ausreichend Steckdosen würde ich sowieso an beiden Seiten oder evtl. an 3 Seiten sogar vorsehen. Außerdem einen Kabelschacht.
Eine Garderobe ist (d.h. wir würden dort eine Stange mit Kleiderbügeln machen) vor dem Treppenantritt. Der Rest der Garderobe, Idee wieder rum aus einem real bewohnten Privathaus, gerne auch eher bisschen Richtung Hauswirtschaftsraum als Durchgangszimmer zum Auto (und selbst als Durchgang zum Fahrrad).
Die Inneneinrichtung ist nicht komplett, eher sind Schränke exemplarisch. Beim Planer heißt sowas ja immer Stellnachweis. Wegen Schrankthema kommt mal wohl nicht umhin, die Couch um 180 Grad zu drehen. Evtl. ist die Fensterfront zum Garten doch noch etwas zu groß, evtl. werden es auch nur 2 große Hebe-Schiebetüren, dann ist in der Mitte Platz.
Die Heizung kann neben die Waschmaschine in Richtung rechts/Osten. Auch die Heizung unter das Podest zu machen, habe ich noch gar nicht überlegt. Evtl. können einige technische Spielereien sogar in die Garage, die soll eine gedämmte Holzständerkonstruktion werden und daher frostfrei. Bei Bekannten war beispielsweise der komplette Stromanschlusskasten, Zähler und Sicherungskasten in der Garage. So weit sind die Detailplanungen auch noch nicht. Wenn es "nur" eine Gastherme wird, dann findet die evtl. Platz in der Anschlussnische.
Die Dusche brauchen wir nicht zwingend, aber wir haben mittlerweile viele WCs mit und ohne Dusche gesehen. Es gibt auch ein deutlich besseres Raumgefühl und wenn es doch mal schnell gehen muss, können 2 Personen gleichzeitig duschen.
Der Flur ist eher großzügig würde ich sagen. Da ist auch keine Treppe, sollte man nicht vergessen, es sind echte 1,80m. Wir waren jetzt in einem Haus mit 2,00m Flur und das war eher schon ein Palasteingang vom Platzempfinden her. Schuhe, die oft genutzten und die von Gästen, finden z.B. zwischen AZ und Außenwand (hinter Eingangstür) Platz oder zwischen WC-Tür und Hauswirtschaftsraum-Tür. Die meisten Eingangsflure sind m.W. eher so 1,40 bis 1,50. Die Stadtvilla Potsdam von Kampa im Musterhauspark Chemnitz hat 1,40m, dazu findet man online ein Video auf YouTube. Selbst diese 1,40m (falls der Online-Grundriss maßstabsgerecht ist) finde ich gut und groß.
Die Dusche brauchen wir nicht zwingend, aber wir haben mittlerweile viele WCs mit und ohne Dusche gesehen. Es gibt auch ein deutlich besseres Raumgefühl und wenn es doch mal schnell gehen muss, können 2 Personen gleichzeitig duschen.
Der Flur ist eher großzügig würde ich sagen. Da ist auch keine Treppe, sollte man nicht vergessen, es sind echte 1,80m. Wir waren jetzt in einem Haus mit 2,00m Flur und das war eher schon ein Palasteingang vom Platzempfinden her. Schuhe, die oft genutzten und die von Gästen, finden z.B. zwischen AZ und Außenwand (hinter Eingangstür) Platz oder zwischen WC-Tür und Hauswirtschaftsraum-Tür. Die meisten Eingangsflure sind m.W. eher so 1,40 bis 1,50. Die Stadtvilla Potsdam von Kampa im Musterhauspark Chemnitz hat 1,40m, dazu findet man online ein Video auf YouTube. Selbst diese 1,40m (falls der Online-Grundriss maßstabsgerecht ist) finde ich gut und groß.
Ähnliche Themen