ᐅ Grundrissplanung für Stadtvilla mit 168 qm - Wer hat Ideen?
Erstellt am: 14.10.16 11:13
Liebe Forenmitglieder,
wir bitten euch um Rat bei der Planung einer Stadtvilla. Einen Hausbauvertrag haben wir bereits mit freier Grundrissplanung unterschrieben. Bald haben wir dann ein Gespräch mit dem Architekten. Zuvor wollten wir uns bereits gründliche Gedanken machen und haben einen ERSTEN Entwurf erstellt. Da wir absolute Laien auf dem Gebiet sind, ist es für uns nicht leicht, alle Dinge zu beachten, die bei solch einer Planung wichtig sind. Wir hoffen, dass ihr uns passende Tipps geben könnt. Vielen Dank dafür schon einmal im Voraus. Die Maße im Grundriss sind übrigens manchmal nicht exakt. Die Treppe ist ebenfalls nicht richtig eingebaut. Ich habe es mit dem Programm (Architekt 3D) leider nicht besser hinbekommen.
Bebauungsplan/Einschränkungen/Grundstückdetails
Größe des Grundstücks: 1000 qm (28m breit x 36m tief)
Hang: leicht, im hinteren Bereich, von West nach Osten
Grundflächenzahl: 0,2 nach Satzung
Bebauung: sonst nach Baugesetzbuch §34
Westen: wenig befahrene Straße ohne Fußweg
Süden und Norden: Nachbargrundstücke
Osten: Wiese, Wald
Anforderungen der Bauherren
Stilrichtung, Dachform, Gebäudetyp: Stadtvilla, ca. 168 qm nach DIN, Walmdach, 25% Neigung, verblendet, 11m x 9,50m Außenmaß
Keller, Geschosse: kein Keller, 2 Vollgeschosse, jeweils 2,745 m lichte Raumhöhe
Anzahl der Personen, Alter: 3 Personen (37, 37, 1), keine weiteren Kinder geplant
Schlafgäste pro Jahr: 5
Büro: gewerbliche Nutzung
offene Küche
Anzahl Essplätze: 6
Carport
Hausentwurf
Von wem stammt die Planung: selbst erstellt
favorisierte Heiztechnik und weitere Details: Gas mit Solar, Fußbodenheizung, Rollläden an allen Fenstern, zentrale Lüftungsanlage mit Wärmerückgewinnung
Was gefällt besonders: großes Zimmer für unsere Tochter, Terrassen im Osten und Süden, viele Fenster, Symmetrie der Außenansicht im Westen und Süden, oberer Flur mit Fenster (Licht) und weiteren Abstellflächen
Wichtig für uns:
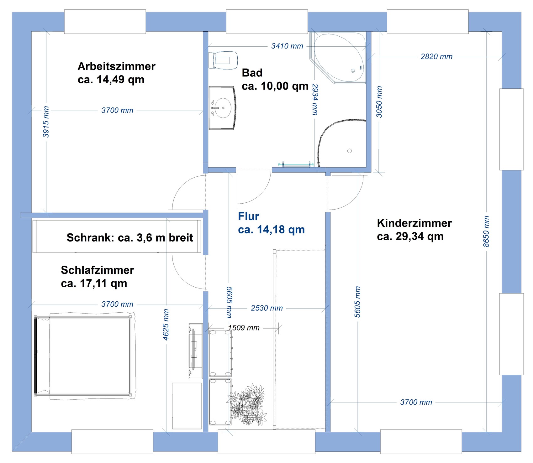
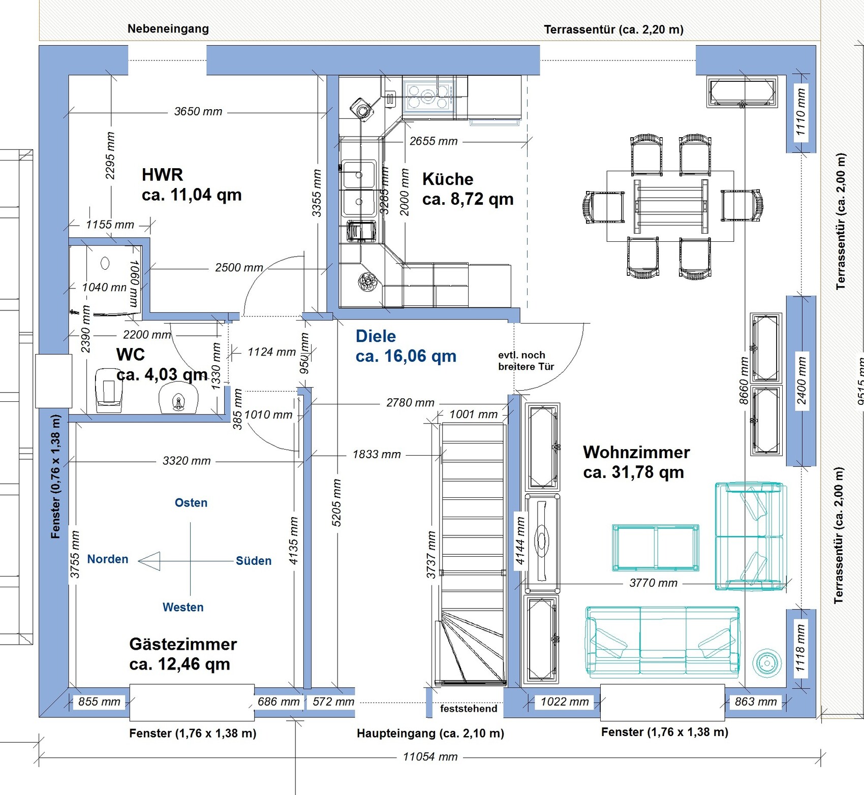
Aufteilung und Anordnung der Räume soll in etwa so bleiben: Hauswirtschaftsraum im Osten zum Garten hinaus, Wohnzimmer im Süden, Küche mit Zugang zur Terrasse im Osten hinaus, großes Kinderzimmer im Süden, Schlafzimmer soll nicht an das Bad sowie das Kinderzimmer angrenzen (kann zur Not aber auch mit dem Arbeitszimmer später getauscht werden)
Was gefällt nicht / Probleme:

wir bitten euch um Rat bei der Planung einer Stadtvilla. Einen Hausbauvertrag haben wir bereits mit freier Grundrissplanung unterschrieben. Bald haben wir dann ein Gespräch mit dem Architekten. Zuvor wollten wir uns bereits gründliche Gedanken machen und haben einen ERSTEN Entwurf erstellt. Da wir absolute Laien auf dem Gebiet sind, ist es für uns nicht leicht, alle Dinge zu beachten, die bei solch einer Planung wichtig sind. Wir hoffen, dass ihr uns passende Tipps geben könnt. Vielen Dank dafür schon einmal im Voraus. Die Maße im Grundriss sind übrigens manchmal nicht exakt. Die Treppe ist ebenfalls nicht richtig eingebaut. Ich habe es mit dem Programm (Architekt 3D) leider nicht besser hinbekommen.
Bebauungsplan/Einschränkungen/Grundstückdetails
Größe des Grundstücks: 1000 qm (28m breit x 36m tief)
Hang: leicht, im hinteren Bereich, von West nach Osten
Grundflächenzahl: 0,2 nach Satzung
Bebauung: sonst nach Baugesetzbuch §34
Westen: wenig befahrene Straße ohne Fußweg
Süden und Norden: Nachbargrundstücke
Osten: Wiese, Wald
Anforderungen der Bauherren
Stilrichtung, Dachform, Gebäudetyp: Stadtvilla, ca. 168 qm nach DIN, Walmdach, 25% Neigung, verblendet, 11m x 9,50m Außenmaß
Keller, Geschosse: kein Keller, 2 Vollgeschosse, jeweils 2,745 m lichte Raumhöhe
Anzahl der Personen, Alter: 3 Personen (37, 37, 1), keine weiteren Kinder geplant
Schlafgäste pro Jahr: 5
Büro: gewerbliche Nutzung
offene Küche
Anzahl Essplätze: 6
Carport
Hausentwurf
Von wem stammt die Planung: selbst erstellt
favorisierte Heiztechnik und weitere Details: Gas mit Solar, Fußbodenheizung, Rollläden an allen Fenstern, zentrale Lüftungsanlage mit Wärmerückgewinnung
Was gefällt besonders: großes Zimmer für unsere Tochter, Terrassen im Osten und Süden, viele Fenster, Symmetrie der Außenansicht im Westen und Süden, oberer Flur mit Fenster (Licht) und weiteren Abstellflächen
Wichtig für uns:
Aufteilung und Anordnung der Räume soll in etwa so bleiben: Hauswirtschaftsraum im Osten zum Garten hinaus, Wohnzimmer im Süden, Küche mit Zugang zur Terrasse im Osten hinaus, großes Kinderzimmer im Süden, Schlafzimmer soll nicht an das Bad sowie das Kinderzimmer angrenzen (kann zur Not aber auch mit dem Arbeitszimmer später getauscht werden)
Was gefällt nicht / Probleme:
- Diele: ich weiß nicht, ob die Treppe so passt; Blick auf eine Wand, wenn man hinein kommt; Nische und Türen zum Hauswirtschaftsraum, Gästezimmer und WC
- Bad im OG: noch keine weiteren Gedanken gemacht, wo etwas stehen kann
- Wohnzimmer: verlorener Raum in der Mitte; recht kleine Breite von ca. 3,70 m in der Fernsehecke, Eingang zum Wohnzimmer (eventuell Schiebetür?)
- momentan noch keine Fenster auf der Nordseite im Arbeitszimmer und Schlafzimmer eingezeichnet (ich weiß nicht, ob wir diese wirklich noch brauchen, siehe nächster Punkt)
- Einblick von außen ins Schlafzimmer (wenn Rollladen runter, dann dunkel), vielleicht doch noch ein Fenster an der Nordseite
Ich würde als erstes die Treppe vom Eingang entfernen. Der Rest vom Entwurf wird dann anders, deshalb gibt es keine Details von mir.
Und mal etwas Off Topic, auch gern für andere, die die Grenze nicht mehr sehen: ich hatte als Einzelkind einen Raum von 24qm zur Verfügung. Mit 16 bin ich dann in die Nachbarkammer mit 8qm gezogen, weil es gemütlicher war. Meine Eltern hatten dann das Problem, aus dem Riesenzimmer zwei zu bekommen, weil sie ja einen neuen Abstellraum brauchten.
Ist also nicht alles schön, was groß ist
Grüsse
Und mal etwas Off Topic, auch gern für andere, die die Grenze nicht mehr sehen: ich hatte als Einzelkind einen Raum von 24qm zur Verfügung. Mit 16 bin ich dann in die Nachbarkammer mit 8qm gezogen, weil es gemütlicher war. Meine Eltern hatten dann das Problem, aus dem Riesenzimmer zwei zu bekommen, weil sie ja einen neuen Abstellraum brauchten.
Ist also nicht alles schön, was groß ist
Grüsse
B
Bieber081514.10.16 13:30Meine bescheidene und gut gemeinte Meinung: Werft den Entwurf weg! Schreibt euch stichpunktförmig auf, was ihr haben wollt und geht damit unvoreingenommen zum Architekten. Der soll dann etwas vorschlagen.
Zum Nachdenken: Braucht/wollt ihr wirklich eine "Stadtvilla"? Warum? Das zielt in die gleiche Richtung, klärt euren Bedarf, eure Wünsche und lasst euch dann vom Architekten unter Beachtung der Randbedingungen (Bebauungsplan, Budget) einen Vorschlag machen. Zur Not auch aus seinem Katalog .
Ihr habt ein tolles Grundstück und offenbar Geld. Macht etwas daraus!
Zum Nachdenken: Braucht/wollt ihr wirklich eine "Stadtvilla"? Warum? Das zielt in die gleiche Richtung, klärt euren Bedarf, eure Wünsche und lasst euch dann vom Architekten unter Beachtung der Randbedingungen (Bebauungsplan, Budget) einen Vorschlag machen. Zur Not auch aus seinem Katalog .
Ihr habt ein tolles Grundstück und offenbar Geld. Macht etwas daraus!
Ähnliche Themen