ᐅ Grundrissfrage: Tausch gerader Treppe durch L-Treppe
Erstellt am: 29.06.23 21:59
Hallo zusammen
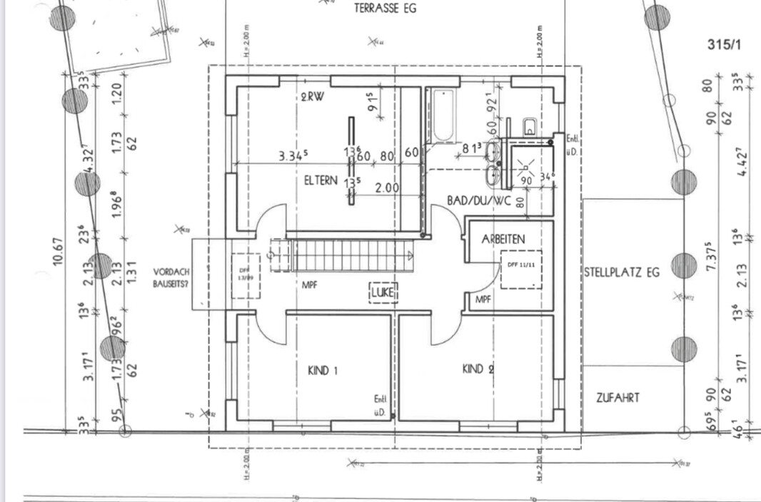
Momentan haben wir bei uns eine gerade Treppe geplant. Raumhöhe ist 2,65Meter. Siehe dazu auch die Haus-Skizze.
Flur ist oben wir unten gleich breit. Ich frage mich, ob ich es schaffe durch eine L-Treppe den Eingang ins Schlafzimmer durch die Ankleide zu bekommen, siehe rote Markierung. Ohne dabei aber die Breite des Flurs ändern zu müssen? Die L-Treppe könnte dann natürlich weiter nach vorne kommen und ich hätte hoffentlich wenn ich oben ankomme direkt Platz für die Türe in die Ankleide/Schlafzimmer. Wäre das möglich?
Danke im Voraus


Momentan haben wir bei uns eine gerade Treppe geplant. Raumhöhe ist 2,65Meter. Siehe dazu auch die Haus-Skizze.
Flur ist oben wir unten gleich breit. Ich frage mich, ob ich es schaffe durch eine L-Treppe den Eingang ins Schlafzimmer durch die Ankleide zu bekommen, siehe rote Markierung. Ohne dabei aber die Breite des Flurs ändern zu müssen? Die L-Treppe könnte dann natürlich weiter nach vorne kommen und ich hätte hoffentlich wenn ich oben ankomme direkt Platz für die Türe in die Ankleide/Schlafzimmer. Wäre das möglich?
Danke im Voraus
s_mhofma schrieb:
Ich frage mich, ob ich es schaffe durch eine L-Treppe den Eingang ins Schlafzimmer durch die Ankleide zu bekommen, siehe rote Markierung. Ohne dabei aber die Breite des Flurs ändern zu müssen? Die L-Treppe könnte dann natürlich weiter nach vorne kommen und ich hätte hoffentlich wenn ich oben ankomme direkt Platz für die Türe in die Ankleide/Schlafzimmer. Wäre das möglich?[Zunächst einmal zur Erhellung die Fundstelle des Hausplanungsthreads: https://www.hausbau-forum.de/threads/grundriss-175qm-satteldach-ohne-keller.45056/] was ist denn überhaupt die Motivation dieses Umwerfens der Planung ?Bedenke, daß eine solche Operation mehr oder weniger eine Geschlechtsumwandlung des Grundrisses darstellt. Eine Treppenform ist für einen Hausentwurf mehr als nur ein Haarschnitt.
https://www.instagram.com/11antgmxde/
https://www.linkedin.com/company/bauen-jetzt/
kbt09 schrieb:
Bei dem Blick auf den Grundriss ... was ist das eigentlich für ein Schlauchloch im Badezimmer?Das hat bestimmt etwas mit Wäschewaschen zu tun: Waschturm oder Schacht. Irre! Wer will sich in so etwas dunkles reinquetschen? Würde so etwas immer breiter als beispw Dusche planen, weil man sich ja umdrehen muss mit etwas in der Hand, also eine Aktivität, ggf bückend ausführen.Dafür ist an der Dusche ein Fenster…irre.
ypg schrieb:
Das hat bestimmt etwas mit Wäschewaschen zu tun: Waschturm oder Schacht. Irre! Wer will sich in so etwas dunkles reinquetschen? Würde so etwas immer breiter als beispw Dusche planen, weil man sich ja umdrehen muss mit etwas in der Hand, also eine Aktivität, ggf bückend ausführen.
Dafür ist an der Dusche ein Fenster…irre.Das ist nicht das fertige Badezimmer. Die Raumaufteilung im Badezimmer steht noch nicht fest. Natürlich wird es nicht diesen „Schlauch“ geben. Aber bei meiner Frage ging es auch nicht um das Badezimmer.Wie oben beschrieben, war die Überlegung die Türe ins Schlafzimmer zu verschieben. Momentan muss man einmal um die Treppe laufen um ins Schlafzimmer zu kommen.
und mir ist auch bewusst, dass eine Treppe viel ändert. Deswegen auch die Frage ob es bei dem jetzigen Flur überhaupt möglich wäre. Dann wären die Änderungen sehr gering.
Damit sich niemand mehr mit dem Schlauch oder dem Fenster in der Dusche beschäftigen muss, der aktuelle Plan des Badezimmer:
Ähnliche Themen