Grundrissplanung für Stadtvilla mit 168 qm - Wer hat Ideen?

4,30 Stern(e) 3 Votes
Zuletzt aktualisiert 04.10.2025
Sie befinden sich auf der Seite 3 der Diskussion zum Thema: Grundrissplanung für Stadtvilla mit 168 qm - Wer hat Ideen?
>> Zum 1. Beitrag <<

B

Bieber0815

Warum nicht? Warum muss der Wunsch der Bauherren nach einem bestimmten Haustyp hinterfragt werden?
1. Wenn sie eine Stadtvilla bauen wollen, können sie das meinethalben tun (wir haben selbst eine).
2. Siehe unten:

Wir haben bereits für eine Stadtvilla unterschrieben. Warum? Wir möchten keine schrägen Wände.
Dann sag dem Architekten, dass Du keine schrägen Wände haben möchtest und dann warte seinen Vorschlag ab. Dazu ist der doch da.

Ich will mich auch gar nicht an der Stadtvilla aufhängen. Mir geht's ums Prinzip :p. Ihr wollt keine schrägen Wände --> sagt das so. Ihr wollt Stellfläche für Schränke --> sagt es so. Aber lasst das planen sein .
 
R

robert79

Liebe Forenmitglieder,

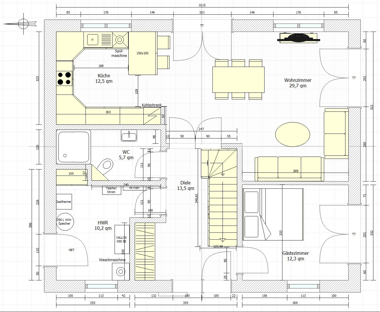
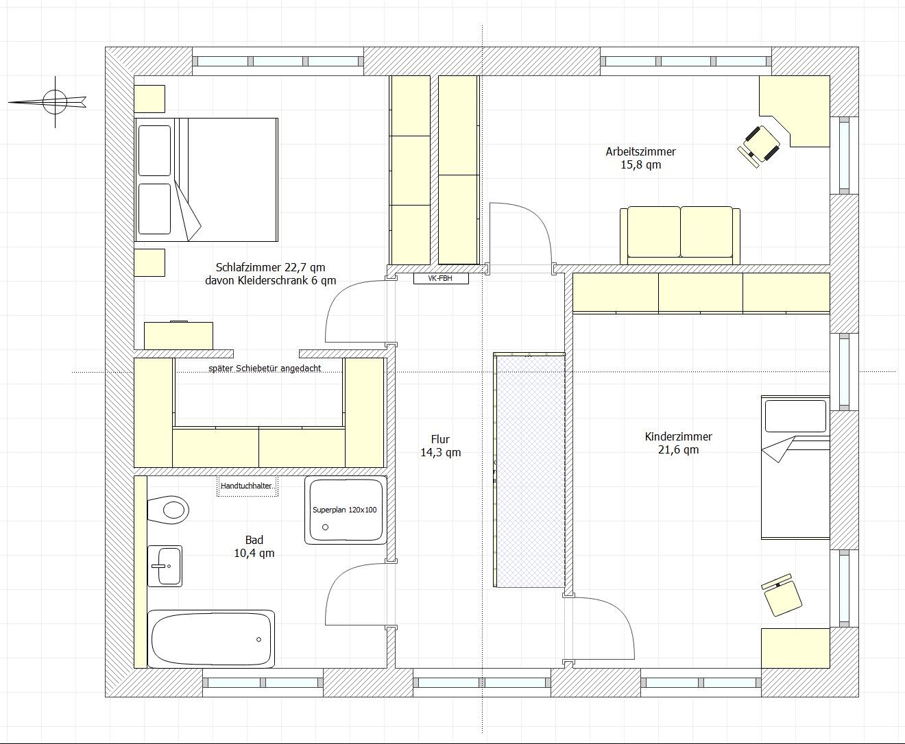
ich möchte euch heute meinen neuen Grundrissentwurf vorstellen. Ich habe versucht, mir eure Vorschläge zu Herzen zu nehmen und mich in die Hände eines Architekten begeben. Dem jetzigen Entwurf vorausgegangen war ein etwa vierstündiges Gespräch ihm. Er hatte sich meine vorigen Entwürfe angesehen (war ein Fehler, ich weiß) und diese dann mit mir durchgesprochen. Danach habe ich seine Vorschläge in einen neuen Entwurf eingearbeitet und würde gerne eure Meinung dazu hören. Der Architekt war zwar bemüht; so richtig glücklich war ich am Ende aber nicht. Wir haben glaube ich manchmal aneinander vorbei geredet. Einige Dinge habe ich noch geändert:

Treppe: So ist zum Beispiel die (offene) Treppe jetzt von mir gedreht worden. Meine Überlegung war, dass man nun mehr Platz am Hauseingang hat, weniger Schmutz auf die Treppe trägt und auch besser ins Gästezimmer kommt. Dafür ist momentan der Eingang des Kinderzimmers direkt am Austritt der Treppe (Tochter bei Einzug ca. 2,5 Jahre) und man muss zum Schlafzimmer und zum Arbeitszimmer etwas mehr laufen.

Gäste-WC: Ich wollte für den Hauswirtschaftsraum noch etwas Platz in Form einer Nische herausschinden und habe dem Gäste-WC etwas abgezwackt.

Küche: In der Küche habe ich nur für den ersten Blick die Geräte und paar Schränke eingezeichnet.

Was haltet ihr von dem Grundriss? Welche Fehler habe ich gemacht? Gefällt euch etwas überhaupt nicht? Was kann man besser machen?


Grundriss eines Hauses mit Küche, Wohnzimmer, Essbereich, Flur, WC, HWR, Gästezimmer.

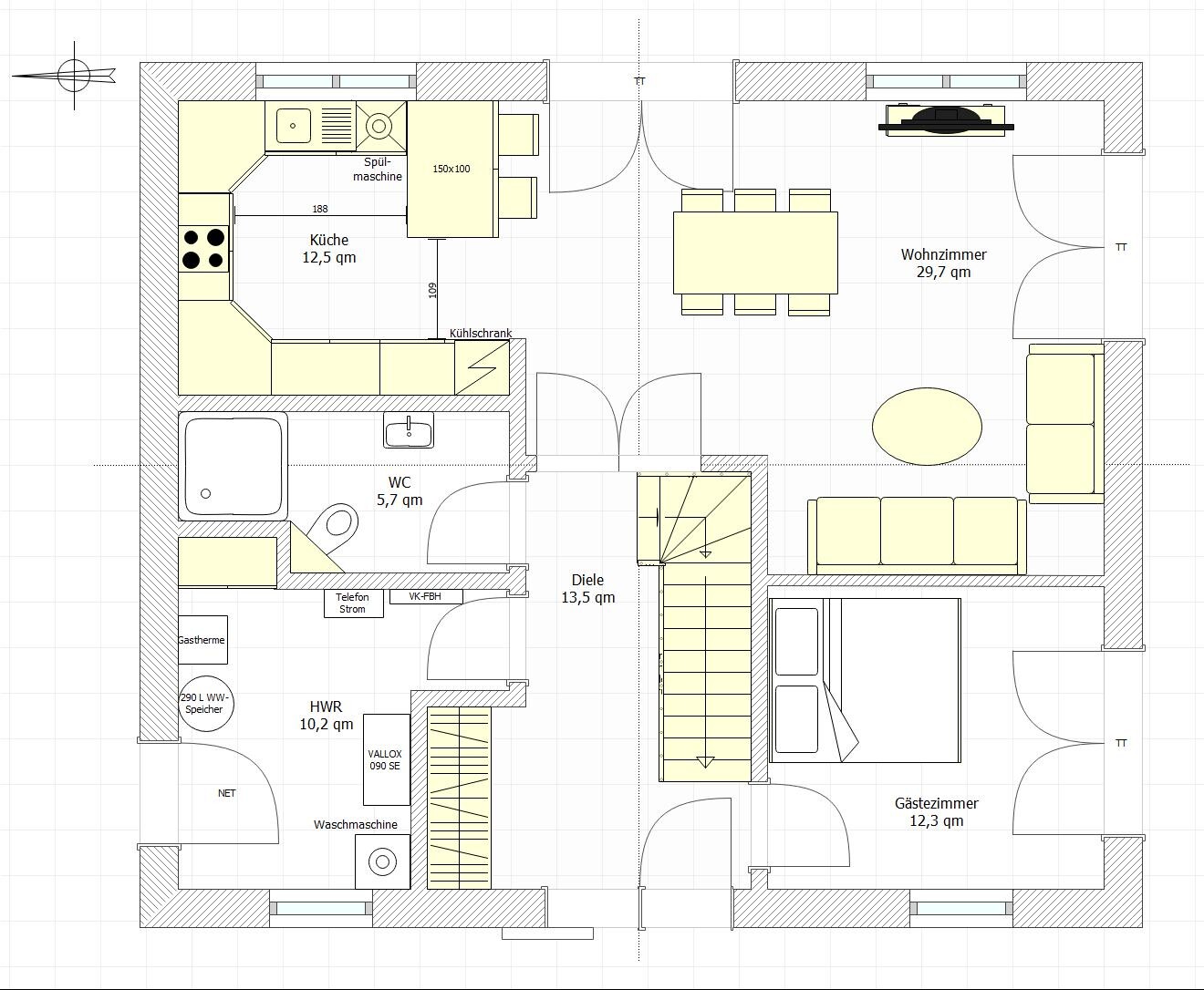
Grundriss: Küche links, Essbereich, Wohnzimmer rechts, WC, HWR, Diele, Gästezimmer unten rechts.

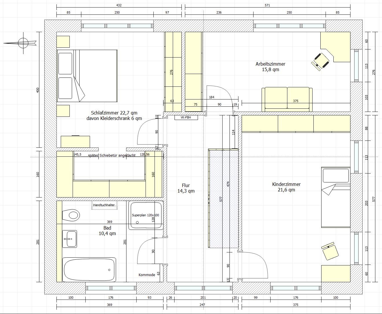
Grundriss einer Wohnung: Schlafzimmer, Arbeitszimmer, Kinderzimmer, Bad, Flur und Möbel.

Grundriss einer Wohnung: Schlafzimmer, Arbeitszimmer, Kinderzimmer, Bad und Flur.
 
Y

ypg

Ich finde das gar nicht so schlecht.
Absolutes Nogo finde ich die fehlende Zonierung Ess/WZ - der Tisch ragt mir schon zu viel in den Relaxbereich hinein.
Ich würde die Küche mehr einrücken, dafür muss etwas Platz vom Hauswirtschaftsraum und WC genommen werden (der Platz ist ja vorhanden), damit die Küche sich in Westrichtung ausdehnen kann.
Im OG fehlt definitiv Abstellfläche, insofern würde ich Ost Mitte die Ankleide machen, die jetzige Ankleide zu einem Abstellraum/Wäsche, die Südseite können sich Kind und Büro teilen (Kind kleiner!)

Der Architekt hat jetzt nicht für Euch eine Planung gemacht? Ihr habt nur ein Beratungsgespräch gehabt?


In aller Kürze Grüsse
 
kaho674

kaho674

Sind das jetzt die 11 m x 9,50m? sieht irgendwie weniger aus.
Gefallen tut es mir leider auch nicht, sorry.
 
Climbee

Climbee

Ich kann die Frage nach "muß es eine Stadtvilla sein" sehr gut verstehen. Momentan baut jeder eine irgendwie geartete Stadtvilla und das ganze führt zu uniformen Neubaugebieten, die mehr als langweilig sind. Deswegen find ich die Frage berechtigt. Ein bisserl mehr architektonischen Esprit und Eigenständigkeit würde ich mir oft wünschen, wenn ich so durch Neubaugebiete gehe. Die meisten Häuser sind austauschbar und, sorry, langweilig. Diese "Stadtvillen" kann ich persönlich schon lange nicht mehr sehen.

Aber das ist ja hier schon durch, wenn ich das richtig verstehe, oder? Vertrag ist unterschrieben, es wird also ein Haus von einem Bauanbieter und somit allerhöchstwahrscheinlich ein Standardgrundriss mit leichten persönlichen Modifizierungen. Sonst wäre die Entscheidung zwischen zwei fest definierten qm-Zahlen wohl nicht nötig gewesen, denn ein frei geplantes Haus muß sich ja nur der Grundflächenzahl und dem Bauplan beugen und dazwischen ist viel freier Raum für individuelle Planungen und, vor allem, Ideen!

Mir persönlich tut's weh, wenn immer so standardisiert gebaut wird und die Chance auf was wirklich kreatives nicht genutzt wird, obwohl offensichtlich die nötigen finanziellen Mittel durchaus vorhanden wären.
Schade!

Ein paar Überlegungen zum vorliegenden Grundriss von meiner Seite:
Ich arbeite gelegentlich von zu Hause und aktuell haben wir das Arbeitszimmer NICHT auf der gleichen Ebene wie Küche-/Wohnbereich. Ich kann das nicht empfehlen. Ich zumindest hole mir gern mal einen Tee/Kaffee/Wasser/Snack und jedes Mal latschee ich die Treppe rauf und runter. Dann kommt der Postbote, ich latschee wieder Treppe etc. Ich würde daher das Gästezimmer im EG eher als multifunktionalen Raum nutzen. Bei nur 5 Übernachtungsgästen/Jahr sollte das kein Problem werden. Und wenn mich meine kleinen, grauen Zellen nicht trügen, dann war auch von einer gewerblichen Nutzung die Rede. Könnte es sein, daß da auch mal Kunden oder sonst fremde Leute ins Arbeitszimmer müssen? Dann wäre für mich persönlich ein AZ im privaten Bereich ein absolutes NoGo (allein die Vorstellung, der Partner ist vielleicht krank und liegt im Bett und nebenan hat man eine Kunden im Büro und der Kranke will man über den Flur ins Bad...nääääää, geht gar nicht!).

Ich gebe euch recht, daß man, wenn man den Platz hat, den auch vor allem den Familienmitgliedern zur Verfügung stellt. Also ein großes Kinderzimmer ist schon schön. Die Frage muß man sich aber schon stellen lassen, inwiefern das auch genutzt wird. Als wir Kinder waren, haben wir vor allem im Kinderzimmer gespielt. Vielleicht am Wochenende mal im Wohnzimmer, aber dann wurde das Spielzeug abends auch schön wieder ins Kinderzimmer geräumt. In den seltensten Fällen durften wir mal über Nacht was im Wohnzimmer lassen. Uns Hauptaktionsraum war das Kinderzimmer und unsere Kinderzimmern waren mit 16qm für damalige Verhältnisse auch komfortabel groß.
Ich erlebe aber heute immer mehr, daß die meisten Kinder das Wohnzimmer okkupieren und der Großteil der Spielsachen sich auch dort befindet und die Kinder auch die meiste Zeit dort spielen. Da kann man jetzt eine Grundsatzdiskussion vom Zaun brechen, ob das ok ist und ob man nicht einen Raum haben kann, wo die Belange der Erwachsenen (Ordnung???) Vorrang haben oder nicht, aber überlegt, wie es bei euch ist.
Wenn die Kleine hauptsächlich im Wohnzimmer sein wird, macht so eine Riesensuite, wie ihr sie hier plant, nicht wirklich Sinn. Das wird ein Ballsaal, in dem sich ein kleines Kind abends, wenn es dunkel ist und sie allein im Zimmer liegt, nahezu verloren fühlen wird.
Und aus dem kleinen Kind wird irgendwann mal ein Pubertierender, dann ist ein größerer Raum durchaus angemessen, aber auch hier könnte man besser planen:
Wie wäre es, der Tochter eher eine kleine Wohneinheit im OG zu planen? Zwei Räume und ein kleines Bad dazwischen. Jetzt, als Kleinkind, nutzt sie einen Raum als Kinderzimmer, vielleicht den zweiten als Spielzimmer, wenn das eben nicht das Wohnzimmer ist. Oder ihr verwendet dieses Zimmer mit dem kleinen Bad nebenan als Gästezimmer, bis die Tochter es brauchen kann. (und solange ist das Büro im EG rein Büro und wird dann später eben das Multifunktionszimmer).
Denn, und das ist noch ein Punkt, den ich zum Nachdenken in den Raum werfe:
Das Bad oben ist nett, aber auch nicht mehr. Für drei Personen empfinde ich es als eher knapp bemessen, vor allem, da nicht einmal zwei Waschbecken geplant sind. Das gibt Engpässe, wenn nicht gerade schon mit Kleinkind, ganz sicher mit dem zu erwartenden Pubertierender!
Ich würde also hier schon ganz klar zwei Bereiche planen: eine Seite Eltern, eine Seite Tochter (mit 2 Zimmern, Schlafen - Wohnen und kleines Bad). Die Tochter wird ihre Seite aktuell nicht vollständig nutzen, aber später als Teenager glücklich über ihr eigenes kleines Reich sein. Es wäre sogar zu überlegen, ob man im späteren Wohnzimmer der Tochter ggf. die Anschlüsse für eine kleine Kücheneinheit schon mal anlegt. Ich hatte eine Freundin, die, als die Eltern neu bauten, so einen Bereich mit kleiner Küche für sich hatte. Ich fand das supertoll und war sehr neidisch!
Und ihr habt einen badzeitintensiven Teenager raus aus eurem Bad. Glaubt mir, das trägt zu eurem Wohlbefinden bei!
Mir würde die Ankleidelösung auch nicht so 100%ig gefallen, weil der, der früher aufsteht, den, der noch schlafen kann, so immer stören wird. Vielleicht kann man das auch noch etwas entschärfen.

Insgesamt ist der Entwurf nett, aber weit entfernt von innovativ.
Wie schaut es bei euch aus mit Zeit? Müßt ihr schnell bauen oder könnt ihr euch für die Planung entsprechend Zeit gönnen? Ich spreche aus Erfahrung, wir wollten eigentlich sehr schnell das Bauen anfangen und hatten auch einen durchaus guten Entwurf. Durch ein bisserl Ärger mit Bauamt und früheren Architekten hat sich das alles sehr verzögert und ich bin mittlerweile SEHR froh über diese Verzögerung. Wir beschäftigen uns jetzt bald ein Jahr mit dem Projekt und das tut dem Entwurf wirklich gut. Man sammelt viel mehr Input, wenn man sich Zeit dafür gönnt und viele Ungereimtheiten fallen einem erst im Laufe der Zeit auf. Daher: wenn ihr Zeit habt, nehmt sie euch!
Seid offen für neue Vorschläge, auch Sachen, wo ihr anfangs den Kopf schüttelt. Klammert nicht an Vorstellungen fest, die ihr jetzt im Kopf habt, werdet frei!
Ich glaube, dann werdet ihr langfristig eine bessere und für eure Situation individuell angepaßte Lösung finden. Das hier ist noch eher "Mainstream" mit ein paar Modifikationen. Da geht mehr!
 
E

Evolith

Climbee wow, das würdest du echt alles für dein Kind bauen?
Ich kann effektiv nur von meinen Erfahrungen reden.
Bad: wir haben ein knapp 8qm Bad. Da kommen wir mit einem Teenie, einem Kleinkind und uns 2 Erwachsenen super klar. Der Große geht eh dann ins Bad, wenn wir schon 2 Stunden wach sind. Gleiches habe ich bei mir selber und meinem Bruder erlebt, als wir noch Zuhause lebten. Nur über das Gäste-WC frohlocke ich regelmäßig.
Mein Ex hatte übrigens auch ein eigenes Bad ... da musstest aber Angst haben, dass dich was anfällt. Sprich er hat auch nur das Bad der Eltern genutzt.

Kinderzimmer-Größe: 15 qm reichen völlig für jegliches Alter (je nach Schnitt könnten auch 20 qm nett sein, wenn es recht verwinkelt ist). Wie ypg schon sagte, man ist als Teenie froh über jeden Meter weniger, den man sich schleppen muss und als kleines Kind wirken 15 qm riesig. Unser Kleinster (2 Jahre) ist von 8qm (mit üblen Schrägen) in das große Zimmer mit 24qm gezogen. Effektiv nutzt er 5 qm zum spielen, ist aber lieber bei uns unten. Wir haben für ihn im Wohnzimmer eine Spieleecke und die wird auch im Haus eingerichtet. So habe ich ihn im Blick und wir leisten uns Gesellschaft. Später wenn Freunde kommen, kann er immer noch in seinem Zimmer spielen. Ich habe meine Kindheit in Zimmern unter 11qm verbracht, mit sperrigen Möbeln. Hat mir völlig gereicht, ich habe nie was vermisst.

Kinder im Wohnzimmer: Bei uns wird im Wohnzimmer gespielt. Wenn der Kurze dann größer ist und Freunde mit bringt, dann müssen ihm 12 qm reichen. Dank toller Kombinationsmöbel ist das auch wunderbar machbar. Sprich ich verzichte auf Ordnung ( ) und fördere die Geselligkeit. Ich liebe es meinem Kind beim Spielen zuzusehen. Könnte mich da immer kringeln.
 
Zuletzt aktualisiert 04.10.2025
Im Forum Grundrissplanung / Grundstücksplanung gibt es 2509 Themen mit insgesamt 87151 Beiträgen


Ähnliche Themen zu Grundrissplanung für Stadtvilla mit 168 qm - Wer hat Ideen?
Nr.ErgebnisBeiträge
1Eigener Grundrissentwurf Stadtvilla 180qm mit Doppelgarage Feedback - Seite 762
2Grundriss Einfamilienhaus, ca. 200qm ohne Keller - Einschätzung - Seite 9172
3Grundriss 9x11.30m, 4 Personen, 2 Büros 27
4Grundriss erster Entwurf - Meinungen erwünscht - Seite 321
5Stadtvilla mit 165qm - erste Ideen? 13
6Einfamilienhaus als Reihenmittelhaus an Hanglage - Entwurf - Seite 318
7Bitte schaut kritisch über unseren Grundriss-Entwurf 13
8Grundriss Stadtvilla - Kinderzimmern mit Bodentiefen Fenstern - Seite 325
9Einfamilienhaus 1,5-Geschosser ca. 150qm Grundrissplanung Do-It-Yourself Entwurf 23
10Einfamilienhaus, ~160m², Bauhausstil; Erster Entwurf nach unseren Wünschen - Seite 3420
11Einfamilienhaus Grundriss 150m², Grundstücks: 420m² - Seite 1071
12160m2 Einfamilienhaus in Holzständerbauweise am Nordhang mit Keller 100
13WC-Fenster Gäste-WC neben der Eingangstür - inzwischen nogo? - Seite 744
14Grundrissplanung Einfamilienhaus 150qm - Tipps zur Verbesserung? - Seite 31441
15Grundriss - 135qm, 1,5-Geschosse, Satteldach 138
16Stadtvilla Grundriss 185m² - Bitte um Feedback! - Seite 2155
17Bungalow 148m² Grundstücksplanung / Grundrissplanung - Seite 45280
18Grundriss für 200qm Stadtvilla - Wünsche umsetzbar? - Seite 1498
19Fenster im Gäste-WC/Gästezimmer trotz Garage möglich? - Seite 433
20Grundriss ca. 170 m² Einfamilienhaus, ohne Keller mit Carport 89

Oben