Grundrissplanung für Stadtvilla mit 168 qm - Wer hat Ideen?

4,30 Stern(e) 3 Votes
Zuletzt aktualisiert 19.11.2025
Sie befinden sich auf der Seite 6 der Diskussion zum Thema: Grundrissplanung für Stadtvilla mit 168 qm - Wer hat Ideen?
>> Zum 1. Beitrag <<

Y

ypg

Also ich baue für mich und meine Ansprüche. Nicht für die Nachwelt oder potenzielle Käufer...
... das sagt der, der noch nie verkauft hat.
Es schadet nicht, kleine Kompromisse einzugehen bzw abzuwägen, mit welchen Planungen man selbst, aber auch eine andere Zielgruppe leben kann.

Wäre mein letztes Haus nicht ein REH mit oben nur zwei Zimmern ( ideal für uns, aber nicht ideal für eine wachsende Familie)
dann hätte ich jetzt wohl 30/40tsd mehr in der Tasche
 
11ant

11ant

Also ich baue für mich und meine Ansprüche. Nicht für die Nachwelt oder potenzielle Käufer...
Das ist eine schöne Haltung für Lottogewinner oder sonst jemanden, der mit einem Blankoscheck bauen kann. Wer jedoch wie die Mehrheit der Lieschen Müllers und Otto Normalverbrauchers finanziert baut, sollte das Verhältnis zwischen Marktwert und Hypothekenhöhe nicht zu locker sehen. Den Punkt, wo man "sein" Eigenheim finanzierungsmäßig auch wirklich in der eigenen Tasche hat, muß man ja erst mal erreichen. Arbeitslos (was heutzutage auch besten Facharbeitern passieren kann) eine Restschuldversicherung zu bedienen, ist kein Pappenstiel. Scheidung, unternehmerische Durststrecken, als "Nur-Hausfrau" Witwe zu werden o. dergl., die Liste der Eisberge auf offener See ist lang. Und mit dem Eis meine ich da nicht Mövenpick
 
RobsonMKK

RobsonMKK

Das ist eine schöne Haltung für Lottogewinner oder sonst jemanden, der mit einem Blankoscheck bauen kann. Wer jedoch wie die Mehrheit der Lieschen Müllers und Otto Normalverbrauchers finanziert baut, sollte das Verhältnis zwischen Marktwert und Hypothekenhöhe nicht zu locker sehen.
Weder das eine noch das andere. Ich werde in meinem Leben ein Haus bauen, und das baue ich für mich. Wenn es scheiße läuft und ich verkaufen muss, dann ist es so.
Den Punkt, wo man "sein" Eigenheim finanzierungsmäßig auch wirklich in der eigenen Tasche hat, muß man ja erst mal erreichen.
Nennst sich durchdacht und umsichtige Finanzierung. Ich weiß wann ich frühestens und wann spätestens durch bin.
Arbeitslos (was heutzutage auch besten Facharbeitern passieren kann) eine Restschuldversicherung zu bedienen, ist kein Pappenstiel.
Die Restschuldversicherung brauche ich bei Arbeitslosigkeit nicht bedienen, dafür ist sie ja da. Aber wer bei einer solchen Summe eine RSV abschließt muss es mit dem Klammerbeutel gepudert sein oder einfach zu viel Geld haben.
Und zu dem Arbeitslosigkeit: woher nimmst du das? In einem Land das "quasi Vollbeschäftigung" hat finde ich solche Aussagen befremdlich. Dazu noch auf angesprochene Berufsgruppen. Wenn ein Facharbeiter in der heutigen Zeit keinen Job findet läuft irgendwas verkehrt. Ich kenne etliche Branchen wo einfach keine Leute da sind aber etliche freie Stellen.
Aber hey, lieber mal wieder irgendwas geschrieben um einen weiteren Post zu bekommen! Spitze!
... das sagt der, der noch nie verkauft hat.
Und woher nimmst du diese weise Erkenntnis?
 
R

robert79

@ypg und alle

Rückmeldung: Es ist doch das Mindeste zurückzuschreiben. Ich freue mich sehr darüber, dass mir hier fremde Menschen helfen wollen. Ich bin sehr froh, dass es Menschen wie euch gibt, die ihr Wissen weitergeben und daran Spaß daran haben. Wirklich klasse

Planungstermin: Wir haben unseren Termin mit dem Architekten der Baufirma am Valentinstag. Falls dieser uns nicht großartig beim Grundriss weiterhilft, werde ich mich höchstwahrscheinlich nach einem weiteren freien Architekten umschauen, der uns für ein paar Stunden beraten kann. Das Geld ist dann noch da. Ich würde dadurch einfach Zeit (und Geld) sparen, da die Planungsphase mit den Bauzeichnern nicht so lange dauern würde und früher gebaut werden könnte.

Freier Architekt: Falls jemanden einen guten Architekten in Berlin und Umgebung kennt, der solch kleinen Aufträge gerne bearbeitet, würde ich mich über die Kontaktdaten freuen.


@ypg

Bau mit Porenbeton: Im EG sind es 17,5 cm bei (fast) allen Wänden. Im OG sind es 11,5 cm Porenbetonsteine. Man könnte auch einige Wände mit Kalksandstein gegen Aufpreis erstellen lassen. Das habe ich aus dem Forum für TM-Bauherren.

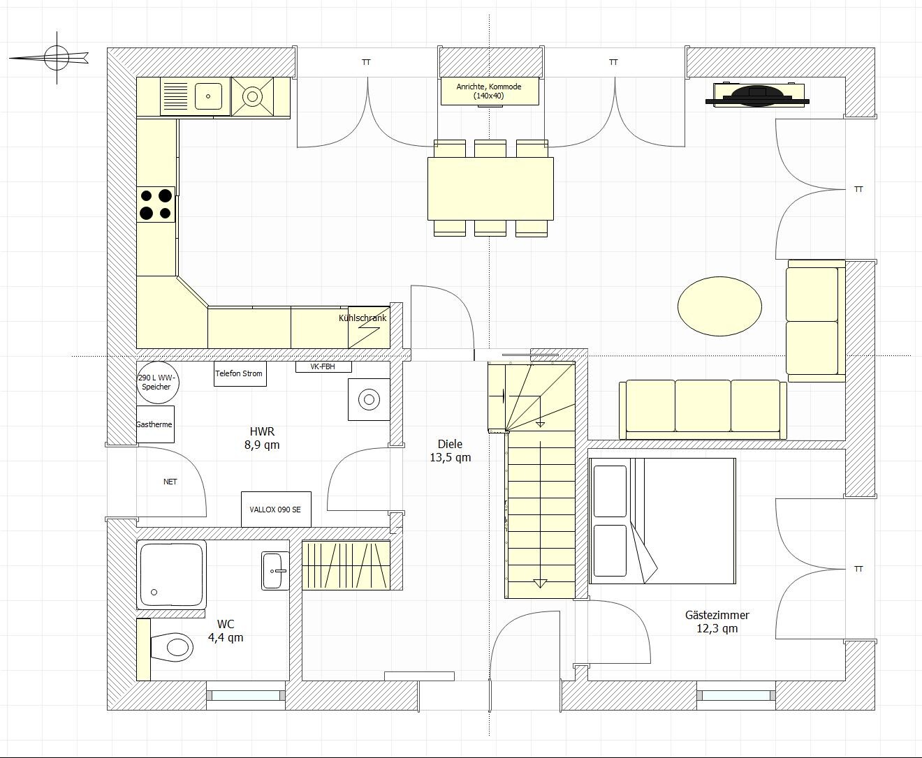
Eingang: Keine Sorge, ich möchte auch die Haupteingangstür nutzen. Ich habe nur oft gelesen, dass die Tür zum Hauswirtschaftsraum vielfach als normaler Eingang genutzt wird. Wie geschrieben, würde mich aber das Vorbeigehen an den Autos jetzt nicht wirklich stören. Der Lärm aus dem Hauswirtschaftsraum ist für mich allerdings schon ein Problem. Es ist allerdings sehr subjektiv. Manch einer hört die Lüftungsanlage/Waschmaschine/Gastherme gar nicht, andere fluchen darüber, dass sie den Hauswirtschaftsraum nicht weiter weg von der Küche bzw. vom Wohnzimmer geplant haben.


@ares83

Preise: Ja, das stimmt. Der Grundpreis ist recht niedrig. Wir rechnen mit mehr. Das Haus hat momentan einen Vetragspreis von 195.000 Euro. Dabei sind zusätzlich zum Standard enthalten: Verklinkerung, Fußbodenheizung und elektrische Rollläden im EG sowie OG, zentrale Lüftungsanlage, 5 qm Solaranlage, zusätzliche Dusche im EG
Mehrpreise erwarten wir in fast jedem Gewerk. Größere Posten sind die zusätzliche Elektrik und das besser ausgestattete Bad. "Kleinere" Dinge, wie z. B. eine bessere Treppe, schalldichtere Wände und andere Türen kommen noch hinzu. Unsere Schmerzgrenze liegt bei ca. 250.000 Euro. Darin sollten allerdings eine (günstige) Küche, die Maler- und Belegarbeiten (teilweise in Eigenleistung) sowie die Erschließung (ca. 12.000 Euro) bereits enthalten sein. Bei der Summe wäre unser Eigenkapital aufgebraucht. Der 100.000 Euro-Kredit dient als Puffer für unvorhergesehene Dinge, für die Inneneinrichtung und für die Außenanlagen (Carport, Terrasse, Gartengestaltung usw.). Wir möchten natürlich so wenig wie möglich vom Kredit aufbrauchen. Dann kann man das Geld noch gewinnbringend anlegen.


@11ant

Küche im OG: Einen separaten Eingang zu planen überfordert jetzt mein Laienwissen. Ich werde mich mal nach entsprechenden Grundrissen umschauen. Aber ich glaube, dass wird dann doch etwas zu teuer für uns. Ich habe jetzt auch so gar keine Idee, wo man noch eine Tür mit Treppe einbauen sollte. Oder man macht eine Außentreppe?! Keine Ahnung.

Unterlicht bei weiteren Fenstern: Gute Idee! Ich denke, dass wir das dann mit dem Fensterbauer direkt besprechen werden. Es gibt bestimmt noch weitere Fenster im Haus, denen ein Unterlicht steht. Da werde ich mal genauer drüber nachdenken.

Nur ein Kinderzimmer: Ich denke auch über einen möglichen Wiederverkauf nach. Es fällt mir allerdings schwer, dies auch entsprechend umzusetzen. Ich muss einen Mittelweg finden, damit es uns gefällt und auch ein Käufer in x Jahren zuschlagen würde. Deshalb ist die zweite Tür von mir eingezeichnet. Dann könnte man 2 kleine Zimmer mit jeweils ca. 10 qm aus dem Kinderzimmer machen. Das finde ich natürlich etwas klein. Oben wären dann aber 3 Zimmer für Kinder (mit dem Arbeitszimmer) und unten auch noch eins. Ich bin auf dem Gebiet absoluter Laie, aber meiner Meinung nach sollte das ausreichen. Ich lasse mich aber gerne überzeugen, es anders aufzuteilen.
 
R

robert79

@kaho674

Danke für die Tipps!

Treppe, Eingangsbereich: Ich verzweifle an der Treppe. Die Treppe war schon an mehreren Stellen im Flur. Der Architekt hat eine halbgewendelte Treppe (langgezogen mit kurzen Auftritten wie jetzt auch) vorgeschlagen, die ganz normal etwa 1,40 m nach der Eingangmauer startet. Diese wäre minimal kürzer als die jetzt eingezeichnete gewesen. Ich wollte aber oben nicht unbedingt auch noch eine Wendung drin haben. Wenn ich die 1/4 gewendelte Treppe nun wieder drehe und den Auftritt an den Hauseingang lege, habe ich diesen wieder im Weg. Da fand ich die Stufen oberhalb des Kopfes besser (als Laie). Ich habe auch die Haustür an der linken Seite aufgehen lassen. Dann wäre die Treppe nicht so im Weg. Aber dann kommt man schlechter an die Garderobe und Schuhe heran, wenn man die Tür erst zu machen muss. Oder täusche ich mich da. Es ginge auch zwei Seitenteile mit je 50 cm zu nehmen und die Tür somit in der Mitte zu haben. Das würde das ganze vielleicht auch etwas entschärfen. Aufpreis wären ca. 800 Euro zur Standarddoppeltür mit dem großen feststehendem Glas. Dazu gibt es dann auch eine ansehnlichere Tür. Das würden wir zahlen, wenn es dadurch praktischer wäre. Wie könnte man die Treppe besser anordnen?

Keine einflügeligen Terrassentüren im Wohnzimmer: Anbei findest du ein Beispiel mit einer kleinen Anrichte. Ist das so gemeint? Ja, der Stellplatz im WZ fehlt. Ich weiß aber nicht wo ich noch etwas dazupacken kann. Die Doppeltür planrechts würde ich gerne behalten. Aber notfalls wird es eine Einzeltür.

Doppeltür ins Wohnzimmer: Es kann auch rechts eine Festverglasung sein. Die rechte Tür wäre ja dann sinnlos, wenn die Treppe so bleiben würde. Mir persönlich würde auch eine Einzeltür reichen. Meine Freundin möchte sie aber als Doppeltür mit viel Licht (mit ohne Festverglasung) haben.


Ich habe ein paar 3D-Bilder und Grundrisse hinzugefügt. Bitte nicht wundern. Es sind jetzt Schiebetüren eingezeichnet. Fenster und normale Türen bekomme ich auf dem Grundriss nicht "geschlossen". Die Treppe ist auch aus mehreren zusammengebastelt. Sie hat dann auch Wangen an den Seiten. Für den ersten Eindruck reicht es hoffentlich.


Grundriss: Offener Küchen-, Ess- und Wohnbereich; Gästezimmer, HWR, WC, Treppe.

Innenansicht eines Flurs mit einer Treppe rechts und cremefarbenem Geländer, Tür am Ende.

Moderne Innenansicht: linke offene Treppe, Tür mit Fenster zeigt grüne Wiese und blauen Himmel.

Heller Innenraum mit offener gelber Treppe rechts, Tür mit Fensterfront und Blick ins Freie.

Heller Innenraum mit offener Treppe links und Doppeltür mit Fenstern, Blick auf grünen Rasen.

Innenansicht eines hellen Treppenhauses mit offenen, schwebenden Stufen und Geländer.

Heller moderner Essbereich mit Esstisch, Stühlen und TV vor großen Fenstern ins Grüne.

Heller Wohn- und Essbereich mit Esstisch, Stühlen, Sofa-Gruppe, TV auf Stand, große Fensterfront.
 
Zuletzt aktualisiert 19.11.2025
Im Forum Grundrissplanung / Grundstücksplanung gibt es 2536 Themen mit insgesamt 87975 Beiträgen


Ähnliche Themen zu Grundrissplanung für Stadtvilla mit 168 qm - Wer hat Ideen?
Nr.ErgebnisBeiträge
1Vorplanung mit dem Architekten - eigener Grundriss sinnvoll? 18
2Schallschutz Kinderzimmer 12
3Planung für Einfamilienhaus - Seite 566
4Treppe im Wohnzimmer als Hype - Pro & Contra? - Seite 426
5 2 Vollgeschosse, Durchgang Garage, Hauswirtschaftsraum unter Treppe 25
6Neubau Einfamilienhaus 160-170qm, 3 Kinderzimmer 39
7Minimale Grundfläche - Hauswirtschaftsraum und AZ im EG - Ohne Keller 19
8Grundriss Einfamilienhaus ohne Keller, 3 Kinderzimmer und Büro 18
9Grundriss 3 Kinderzimmer Einfamilienhaus - Potenziale? 43
10Speisekammer vs. größere Küche vs. Hauswirtschaftsraum 13
11Geschlossene Küche planen mit Durchgang zum Hauswirtschaftsraum - Seite 318
12Kombination Fliesen und Parkett im Wohnzimmer mit offener Küche - Seite 330
13Grundrissplanung Wohnzimmer-Küche 18
14Wohin mit der Treppe? Dachausbau Walmdachbungalow - Seite 319
15Grundrissfrage, Treppe, Fenster, Ausrichtung 12
16Grundrissfrage, Garage, Treppe - Seite 533
17Esstisch in einer kleinen Küche - Seite 449
18Grundrissplanung Hanghaus mit 5 Kinderzimmer - Seite 26370
19Grundriss für 150qm Einfamilienhaus mit Wohnzimmer nach Norden 21
20Grobe Schnitzer im Grundriss? Küche zu klein? - Seite 639

Oben