Grundriss Einfamilienhaus, ca. 200qm ohne Keller - Einschätzung

4,70 Stern(e) 3 Votes
Zuletzt aktualisiert 18.11.2025
Sie befinden sich auf der Seite 9 der Diskussion zum Thema: Grundriss Einfamilienhaus, ca. 200qm ohne Keller - Einschätzung
>> Zum 1. Beitrag <<

kbt09

kbt09

Vergleiche mal die Wege von Garage ins Haus:



und dann


Und vergleiche auch die Möglichkeiten, die jeweils die Diele bietet ... bei ca. gleicher Größe.

Wobei in deinem Bauträger-Grundriss die Treppe auch wieder recht steil und eng aussieht.

Gedanke hinter deinen ganzen Planungen war ja auch mal, oben und unten sinnvoll trennen zu können.
 
Y

ypg

Ich habe deine Beispiele aus dem WWW gesehen: normale Zimmer und Flure ohne irgendwelche Zusatznasen, die vom Flur ausgehen. Deine Vorschläge hier ähneln ansatzweise Labyrinthe.
 
S

Slammer0909

@kbt09: Der Weg durch den Garderobenraum ist ja genau das, was wir wollen.
Das wird kein normaler Technikraum. Sondern ein "Umkleideraum", in den man von der Garage aus geht und von dort aus ins Haus. Das ist bewusst so gewollt von uns, auch wenn andere in solch einem Raum anderes machen.
Es ist also ganz bewusst Bund explizit so, dass wir über diesen Raum gehen wollen.
Der schmale Gang im Beispiel der 1. Diele von dir zum Gästezimmer hoch, das sind doch auch nur 1m. Aber dieser schmale Schlauch zieht sich noch wesentlich länger, als in meinem letzten Entwurf der "Schlauch" mit Zugang zum Gäste-WC und Hauswirtschaftsraum/Garderobenraum.

Im letzten Entwurf von mir ist die Gästetoilette nicht am Eingang vorbei, das war eine Idee dabei. Eben kürzerer Weg vom Wohnzimmer zum Bad.

Ich finde im direkten Vergleich der Dielen bei mir ebenfalls mind. genauso viele Stellmöglichkeiten für Schränkchen oder Spiegel.
Es ist eben echt Ansichtssache. Wenn ich mir den verwinkelten Entwurf bei mir im Programm in 3D anschaue, dann finde ich es nicht verkehrt.
Es ist eben nicht das 0815 Hauptsache so effizient wie möglich, es ist etwas anderes. Was auch Chick hat. Man öffnet die Tür und die erste Wand geht schräg ab mit einem Schrank und einem Spiegel daneben, danach fällt der Blick in den 3m breiten Flur. Also beengt finde ich das nicht irgendwie.

@ypn: Vom Haus Mailand im Vergleich zu meiner Diele, ist das doch 90% vergleichbar. Mit dem Unterschied, das bei mir sowohl Länge als auch Breite größer sind.

Ich fürchte, dass es auch meinen Entwürfen auch immer etwas täuscht oder nur herangezoomt wirkt. Ich habe ja keine Außenmaße von 9x11 m oder so, sondern 12x12. Alle Türen im EG sind bei mir mit 1m Breite geplant/gezeichnet. Dementsprechend weiter öffnen sich auch die Flügel. Es sieht also evtl wie herangezoomt aus. Wenn man sich dann das Haus mit kleineren Abmaßen vorstellt, ist es sicherlich auch enger. Vielleicht weckt das den Eindruck, als wäre alles klein.
Aber ich denke in real ist es nicht so, wenn ich durch die Musterhäuser gehe, aber bei mir alles (vieles) größer ist...

In der Küche kann die Insel ja schmaler ausfallen, die muss keine 2m breit sein. Da reicht auch weniger, das kann man mit dem Küchebauer ja anpassen dann.

Würde ich die 15-20qm Hauswirtschaftsraum/Garderobenraum noch aus den 12x12m entfernen, hätte ich auch wesentlich mehr Freiheiten. Aber ich möchte meine Jacken und Schuhe nicht direkt in der Garage aufhängen. Wird würden wie gesagt diesen Raum gerne als "Zwischenraum" einrichten, durch welchen wir aus der Garage ins Haus gehen. Gästegarderobe ist wirklich dann eben für die Gäste.

Wir haben viele Anfordungen, dazu eben die Nordseite fast komplett verbaut durch Garage. Ich empfand meine neueren Entwürfe eigentlich als Verbesserung...
 
kbt09

kbt09

Wenn du auf der Halbinsel noch kochen willst, dann kann die von der Wand links Max. auf 180 cm schrumpfen um noch halbwegs sinnvoll zu sein. Generell, kommst du vom Flur, mußt du erst mal ca. 4m in die Küche laufen, um in den eigentlichen Küchenbereich zu kommen. In den Nicht-Bauträgervarianten hast du auch die Beule für das alte Küchenbuffet nicht mehr.

Wo ist eigentlich dein großes Sofa hin?

In meiner Variante ist der Gang Richtung Gästezimmer ca. 135 cm breit. Und auch in meiner Variante ist ein 18 qm großer Technik/Lagerraum in der eigentlichen Haushülle.

Ich denke, du siehst auch den Weg über die "Privatgarderobe" im Haustechnik-Raum zu illusorisch. Jedes Mal, wenn du das Haus Verlässt , mußt du da durch und dann durch die Garage nach draußen. Kommst du oder eure zukünftigen Kinder mit Freunden zusammen nach Hause .. ja, was passiert dann?

Schick empfinde ich schräge Wände dann, wenn sie eine besondere Bedeutung haben, nicht, weil sie schräg sind. Schick finde ich z. B. in einem großen Haus eine eher großzügige Treppe und nicht eine Treppe, die man auch in ein kleines Reihenhaus bauen würde. Da geht es halt nicht anders.

Ich erinnere noch mal, einer deiner Wünsche war auch, evtl. mal eine sinnvolle Hausteilung in EG und OG vornehmen zu können. Die sehe ich bei allen Varianten, weder Bauträger- noch deinen Änderungsvarianten, nicht.
 
W

willWohnen

Hallo,
es ist toll, dass wir uns Foren helfen und austauschen. Aber behalte im Auge, dass du aus den Tipps auswählen darfst und musst und dass es nicht deine Aufgabe ist, alle zu überzeugen oder zufrieden zu stellen. Du kennst eure Bedürfnisse am besten.
(Bei meiner Küchenplanung war es übrigens auch so, dass die Kritik teilweise daher kam, dass die Ratgeber die Dimensionen einfach völlig falsch eingeschätzt hatten.)
Ich würde alles mal sacken und das Unterbewusstsein arbeiten lassen. Letzteres liefert nach entsprechender Fütterung dann das entscheidende Bauchgefühl, wo du ändern und woran du festhalten solltest.
Grüße
 
S

Slammer0909

Ja da hast du Recht, willWohnen.

Die Meinungen gehen auseinander, allerdings darf man die eingezeichnete Möblierung nicht überbewerten, denke ich.
Ich habe in meinen Entwürfen die Hausdimensionen auch wieder auf 12x12m reduziert.

Das große Sofa habe ich mal exemplarisch gegen 2x 3 Sitzer getauscht. Aber ich rechne eben mit 3,5m von der Wand aus, ob es eine Sofalandschaft oder Einzelsitzer wird, entscheidet sich ja dann.
Ich möchte alles gestaltungsmäßig frei halten. Deshalb im Wohnzimmer zum Osten kein Fenster, dann kann da auch der TV stehen und Sofa mit Rücken zur Essecke.

Ich habe mir deinen Entwurf auch noch mal angesehen. Danke auch, dass du ja oft fast die gleichen Dimensionen angewendet hast und mir versuchst, mit kleinen Änderungen die Effekte darzustellen. Will da auch nicht undankbar klingen. Aber so richtig springt der Funke nicht über.
Die Argumente, die gegen "meine" Entwürfe stehen, sprechen teilweise eben genauso auch gegen deine.
Das Gästezimmer so breit zu machen, ist aus Gästezimmersicht (nicht Prio1 für mich) sicherlich gut. Dadurch wird das Wohnzimmer aber schmaler. Das wäre dann kleiner, als ich es momentan habe. Wohne in einer 140qm Doppelhaushälfte und das Wohnzimmer ist 4,6mx5,1m, und das ist mir zu schmal. Der Platz zwischen Sofa/Tisch und der Wohnwand ist zwar noch vorhanden, sobald ich aber rund um den Tisch sitzen möchte, stoße ich hinten mit den Stühlen schon bald gegen meine Wohnwand. Also 4,48m zu kurz.

Die Schräge für die Küchenvitrine ist erst mal bei mir (beim BU noch nicht) wieder rausgeflogen, da mir geraten wurde auch von der anderen Architektin (und euch), nicht so viele Ecken und Kanten einzubauen.

Auf 2,64m Breite im in deinem Entwurf im Hauswirtschaftsraum noch Regale längs in den Raum zu stellen denke ich wird auch eher nichts, dann werden die Durchgänge ja doch zu eng.

Wenn ich dann durch die Haustür reinkomme, empfängt mich auch keine große Diele, sondern erst mal der Knick (nicht mal ne Schräge ) nach links und dann wieder ein Schlenker nach rechts und final noch mal links einen "Flur" zum Gästezimmer. Die Haustür würde sogar an etwaige Am Haken befindliche Jacken anstoßen beim Öffnen...

Meine Abtrennungsvorstellungen habe ich mal eingezeichnet ganz grob nur.

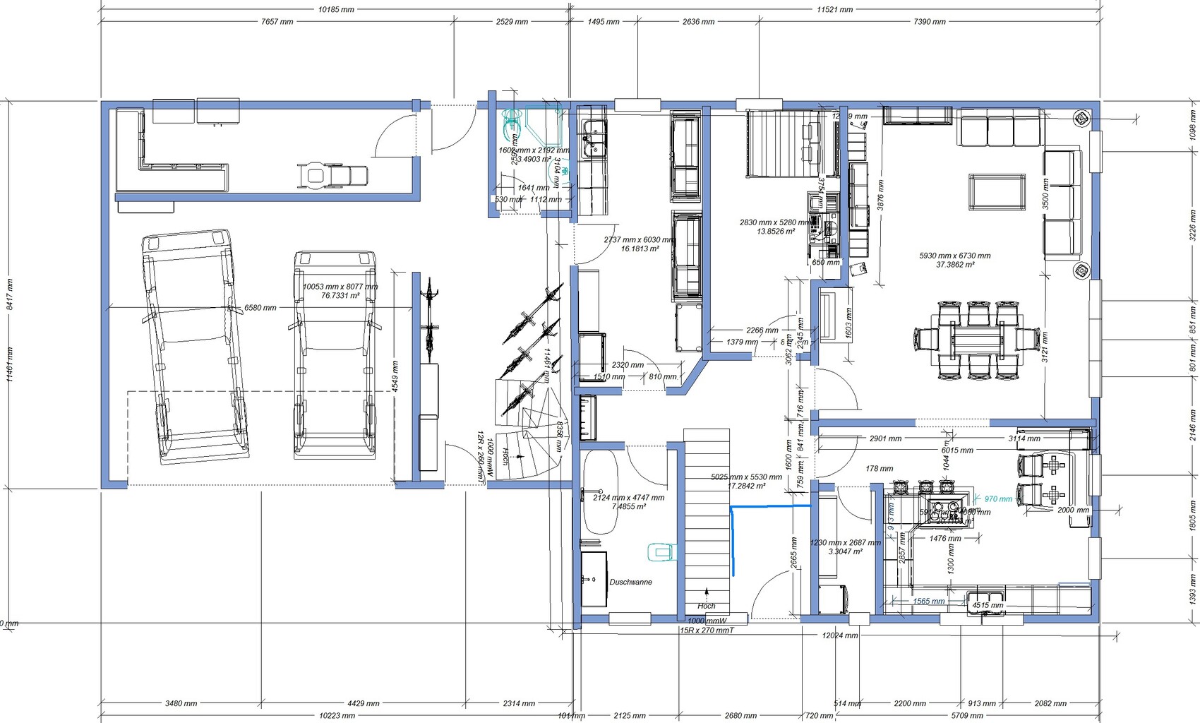
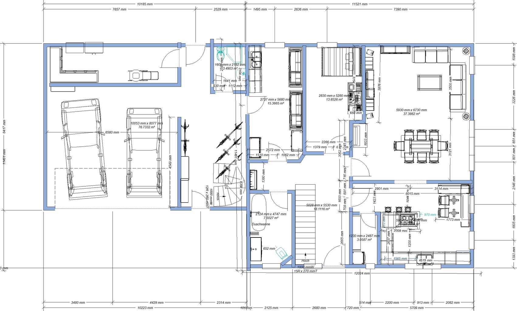
Grundriss eines Einfamilienhauses mit Garage, Flur, Küche, Wohnzimmer, Bad, Gäste-/Schlafzimmer.



Grundriss: Garage mit zwei Autos, Küche, Wohnzimmer, Esszimmer, Schlafzimmer, Bad, Treppenhaus.



Und durch eine leichte Verschieben der Wände kann ich ebenfalls die schmalen Gänge etwas verbreitern, ohne nennenswerte Einbußen in den anderen Räumen zu haben.
Ich habe das mal für den Bereich Eingang Gäste-WC und Küche gemacht.
Dort habe ich jetzt eine Breite von 1,4m, wenn die Wand etwas Richtung Hauswirtschaftsraum einrückt. Sollte ich den Knick dort ganz herausnehmen, habe ich einen Gang von 1,8m Breite. Geht auch, aber was soll ich da mit 1,8m?
Unser aktueller Flur ist komplett nur 1,75m breit in der aktuellen Doppelhaushälfte.

Anbei mal die Änderungen:

Grundriss eines Hauses: Garage mit zwei Autos, Küche, Wohn- und Essbereich, Treppe


Bei der Kochinsel planen wir einen Abstand von 1,3m einzuhalten zwischen Küchenschränken und Kochinsel. Sehr oft findet man weniger vor. Wenn ich dort auf 1,2m gehe, kann ich die Speisekammer etwas verkleinern nach unten und auch die Wand etwas verschieben. Schon habe ich da gute 1,4m Durchgangsbreite.
Ist aber die Frage nach dem Nutzen. Benötige ich da die 10-20cm mehr zum nur durchgehen, oder brauche ich diese lieber als Platz zwischen Kochinsel und Küchenzeile? Ich würde mich für letztere Entscheiden.
Evtl gefällt und sogar eine Küche komplett ohne Insel, dann wäre der Raum locker groß genug.

Ich würde nur in jedem Fall eher den jeweiligen Räumen den Mehrraum zugeben, anstatt breitere Flure...Der Hauptflur unter der Treppe wird dann 2,8m breit sein. Das ist doch auch nicht zu schmal, oder was meint ihr?

Mir würde Kritik in die Richtung (was kbt09 ja im Prinzip mit seinem Entwurf auch gemacht hat) helfen von wegen: " Wenn du diese Wand da und da hin machst, wird es aus dem und dem Grund besser.." oder sowas.

Nicht "alles blöd", das bringt mich nicht ans Ziel. Wobei ja selbst alles blöd auch Einzelmeinungen sind, das ist mir auch klar.


Ich finde zusammenfassend, dass mit den Entwürfen eben unsere Vorstellungen/Wünsche, welche nicht trivial sind, gut vereinbart werden. Es geht vieles anders, hat dann aber andere Vor und Nachteile.
Darüber hinaus finde ich, das die neue Generation mit Treppe in Hausmitte klarer strukturiert ist.
Aber es ist dann wieder "Standard". Man kommt durch die Haustür, an der Wand zieht sich die Treppe hoch, dahinter die Eingänge in alle Räume, bla bla.

Bei meinem anderen Entwurf wollte ich eben genau das nicht. Man kommt rein, und es sieht erst mal anders aus, als man es je gesehen hat.
Ich habe mal ein paar 3D Ansichten mit beigefügt. Darin sieht zwar auch alles "komischer" aus, weil man nicht den Weitwinkel des menschlichen. Auges hat, aber darüber könnt ihr sehen, was ich meine.

Auch hier über Farben etc keine Gedanken machen, ist nur so erst mal plakativ.
Rote Wand, freistehender Spiegel und weiße Kommoden, Garderobenleisten, dunkler Fliesenboden.






Innenansicht eines roten Flurs mit Treppe links, Rundspiegel, Kommode und Türen.






Flur mit roten Wänden, mehrere offene Türen zu Räumen; Esstisch und Stühle sichtbar.






Innenansicht: rote Wände, dunkler Fliesenboden, Treppe, offener Durchgang nach draußen.






Isometrischer 3D-Hausgrundriss: Garage, mehrere farbige Zimmer, Küche, Wohnzimmer und Garten.




Andersherum muss ich eben sagen, dass mir bei der neusten Generation das Bad besser gefällt, zumal man auch eine Wanne mit unterbringen kann.

Alles in allem kann man sagen, bin ich unentschlossen.

Viele Grüße

PS: großes Lob an die Software des Forums. Finde ich sehr sehr gut!!
 
Zuletzt bearbeitet:
Zuletzt aktualisiert 18.11.2025
Im Forum Grundrissplanung / Grundstücksplanung gibt es 2536 Themen mit insgesamt 87970 Beiträgen


Ähnliche Themen zu Grundriss Einfamilienhaus, ca. 200qm ohne Keller - Einschätzung
Nr.ErgebnisBeiträge
1Fenster im Gäste-WC/Gästezimmer trotz Garage möglich? - Seite 433
2 2 Vollgeschosse, Durchgang Garage, Hauswirtschaftsraum unter Treppe 25
3Planung Gäste-WC im Neubau - Wie groß muss es sein? (DIN?) - Seite 2107
4Grundriss erster Entwurf - Meinungen erwünscht 21
5Grundriss-Entwurf Stadtvilla mit Doppelgarage - Seite 238
6Grundrissplanung für Stadtvilla mit 168 qm - Wer hat Ideen? - Seite 347
7Grundriss Bungalow 150m² - Meinungen erwünscht - Seite 430
8Grundriss Stadtvilla 160 qm, ohne Keller - Eure Meinungen dazu? 167
9Entwurf Einfamilienhaus mit Garage/Carport - bitte um Bewertung 22
10Grundriss für 150qm Einfamilienhaus mit Wohnzimmer nach Norden - Seite 321
11REH - Grundrissplanung - Küche zu klein - Seite 430
12Grundriss-Entwurf für Einfamilienhaus 135 qm - Ideen und Ratschläge gesucht 29
13Grundriss Einfamilienhaus, 200m2, 2 Vollgeschosse, Garage, ohne Keller 39
14Unser Grundriss-Entwurf, eure Meinungen 20
15Haus-Entwurf Einfamilienhaus - Zukünftig als Zweifamilienhaus trennbar - Seite 572
16Bitte schaut kritisch über unseren Grundriss-Entwurf 13
17Grundriss, längliches Einfamilienhaus, integrierte Garage kein Keller 16
18Einfamilienhaus mit Einliegerwohnung & Garage 14
19Haus ohne Garage und Keller? Ausbau Dachboden? Fresswarze? - Seite 585
20Ankleide/Schlafzimmer Problem - Grundrissdiskussion 25

Oben