Grundrissplanung Einfamilienhaus ohne Keller / 4 Personen

4,90 Stern(e) 15 Votes
Zuletzt aktualisiert 19.11.2025
Sie befinden sich auf der Seite 9 der Diskussion zum Thema: Grundrissplanung Einfamilienhaus ohne Keller / 4 Personen
>> Zum 1. Beitrag <<

M

Mr.Graves138

Sieht doch schonmal seht gut aus!

Wären vielleicht zusätzliche Doppelflügelfenster im OG in allen Zimmern sinnvoll oder waren die nur nicht eingezeichnet?

Wir haben auch so einen Küchentresen, haben aber letztlich auf Barhocker verzichtet, weil daneben direkt der Esstisch steht und haben es auch nicht vermisst. Wäre sonst glaube ich "too much" und zu viele Stühle auf einmal. Wir haben da Regale tw. mit Türen Richtung Esstisch, da kann man dann auch gleich noch was lagern, was man vielleicht öfter mal für Essen braucht.

Machst so ein 2,79 m² AR Sinn? Euer Schlafzimmer ist doch ziemlich groß, vielleicht lieber da noch was wegnehmen? Wir haben im OG einen 6 m² AR und kleiner würde ich ihn nicht haben wollen, das bringt sonst wenig...
Das Doppelflügelfenster ist nur im Bad über dem WC geplant. Das Süd-Dach wird komplett mit Photovoltaik-Modulen belegt, daher kein Doppelflügelfenster. Der AR ist zwar klein, aber sollte ausreichend sein, um ein 40er Regal für Putzmittel, einen Wäschekorb und einen Staubsauger zu verstauen.

Einzig das Gästezimmer macht mir noch etwas Bauchschmerzen auf der Westseite wo auch der Carport ist. Die nächsten Wochen geht es in die Werkplanung.
 
M

Mr.Graves138

Hallo Zusammen,

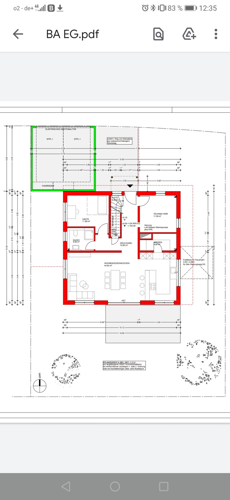
anbei die aktuellen Pläne für den Bauantrag.

Das Fenster im Bad musste leider verkleinert werden und in der Speisekammer ist jetzt ein großer Schacht für Lüftung, Heizung, Strom ect.
Sollte ich den Schacht besser in den Hauswirtschaftsraum/Technikraum verlegen lassen?

Habt ihr sonst noch Verbesserungsvorschläge?

Vielen Dank vorab!

Grundriss eines Wohnhauses: Schlafen, KIND 1, KIND 2, Bad, Diele, Abstellraum; rote Tragwände.


Grundriss EG: roter Gebäudekern, grün markierter Bereich, Wohnzimmer, Küche, Gästezimmer, Diele.


Südansicht eines Hauses mit hohem, vertikal gestreiftem Dach, Eingang und drei Personen.


Nordansicht eines Hauses mit Garage, Baum links, zwei Erwachsene und Kind vor Eingang, Maßlinien.


Ansicht von Westen: Zweigeschossiges Haus mit Garage, Fenstern und Bäumen.


Ostansicht eines Hauses mit Satteldach, Fenstern, Baum links und Personen rechts.


Querschnitt eines Hauses mit Satteldach, orange Balken, rote Stützen, grüne Bodenplatte, Treppe
 
11ant

11ant

Das Fenster im Bad musste leider verkleinert werden und in der Speisekammer ist jetzt ein großer Schacht für Lüftung, Heizung, Strom ect.
Sollte ich den Schacht besser in den Hauswirtschaftsraum/Technikraum verlegen lassen?
Ändere lieber das Format des Fensters, kreuzanalog zu dem in der Küche, und stelle die Frage ob ein Badfenster einen Rollladen braucht auf den Prüfstand. Woher nun plötzlich der große Schacht - hast Du einen Briefkasten-GU mit vielen Subs und wenig Detailplanung, der so Platz für viel Improvisation schaffen will ? - warum ist der Schacht allseits gemauert ? - nein, verlegt gehört er m.E. nicht. Was symbolisiert rot und grün in den Plänen ?
 
Y

ypg

Ich finde das alles ganz nett, schöne klare Räume.
Aber der Allraum gefällt mir gar nicht. Die Küche nimmt Dir den Platz von der Wohnzimmerecke: auch der Esstisch kippt in die Chillecke, nicht nur vom Eingang aus betrachtet. Ich würde der Küche mindestens 60cm klauen, alles nach planrechts ziehen und somit dem WZ mind. 60 cm fürs Sofa zusätzlich gönnen. Derzeit sind da ca. 2,40 für ein Sofa recht ungemütlich.
 
Y

ypg

Ich korrigiere auf einen ganzen Meter mindestens. Der Esstisch sollte in Flucht mit dem Fenster und Tür sein. Eine große Küche ist zwar schön, aber sollte sich harmonisch einfügen. Der Platz ist auch da.
Schlafzimmer kann etwas in Richtung Abstellraum abgeben, der Hauswirtschaftsraum etwas Garderobenschrank
 
M

Mr.Graves138

Ändere lieber das Format des Fensters, kreuzanalog zu dem in der Küche, und stelle die Frage ob ein Badfenster einen Rollladen braucht auf den Prüfstand. Woher nun plötzlich der große Schacht - hast Du einen Briefkasten-GU mit vielen Subs und wenig Detailplanung, der so Platz für viel Improvisation schaffen will ? - warum ist der Schacht allseits gemauert ? - nein, verlegt gehört er m.E. nicht. Was symbolisiert rot und grün in den Plänen ?
1. Wenn ich das Breitbandfenster der Küche in das Bad kopiere hätte ich ja ein Fenster in der Dusche!? :D Oder wie meinst du das? Auf Rollladen kann im Bad verzichtet werden und wird dann monetär in Abzug gebracht.
2. angesehener regionaler GU mit über 50 Mitarbeiter eigener Gewerke (70%) und wenigen Subs (30%).
3. Der Schacht wird für die Kontrollierte-Wohnraumlüftung benötigt und die Größe wird in der Werkplanung angepasst. Ob die gemauert sein muss hinterfrage ich morgen. Danke dafür.
4. Welche Ansicht meinst du mit rot und grün? Geländehöhe, Bodenplatte? Die Garage ist z. B. Grün eingezeichnet.
 
Zuletzt aktualisiert 19.11.2025
Im Forum Grundrissplanung / Grundstücksplanung gibt es 2536 Themen mit insgesamt 87971 Beiträgen


Ähnliche Themen zu Grundrissplanung Einfamilienhaus ohne Keller / 4 Personen
Nr.ErgebnisBeiträge
1Geschlossene Küche planen mit Durchgang zum Hauswirtschaftsraum - Seite 318
2Esstisch in einer kleinen Küche 49
3Speisekammer vs. größere Küche vs. Hauswirtschaftsraum 13
4Wohnen/Essen/Küche: Wie wohnt ihr oder werdet ihr wohnen? - Seite 852
5Planung Wohnraum & Küche eines Doppelhaushälfte in Nürnberg 13
6Wohnzimmer: Wie Sofa, TV und Schränke stellen? 32
7Mögliche Sofa- und TV-Position im Wohnzimmer gesucht. 15
8Lage Stadtvilla oder Einfamilienhaus auf 500 m2 Grundstück-Rechteck - Seite 31586
9Hauswirtschaftsraum Raum ohne Fenster - Lüftungsanlage ausreichend? - Seite 326
10Geschlossene oder offene Küche ? 11
11Grundriss Halboffene Küche mit großem Essbereich - Detailfragen 12
12 2 Vollgeschosse, Durchgang Garage, Hauswirtschaftsraum unter Treppe 25
13Unsere neue erste Ikea Küche - Planung und Vorbereitung - Seite 369
14Einteilung Grundriss Allraum Küche Wohnen Essen - Seite 358
15Küche: geschlossen oder offen? Welche Raumaufteilung? 86
16Grobe Schnitzer im Grundriss? Küche zu klein? - Seite 439
17LED-Einbaulampen in Allraum Küche, Wohn- und Essbereich - Seite 317
18Küche & Preis - Schnelle Einschätzung erwünscht!! - Seite 14165
19Bestandshaus umbauen - Mehr Platz für Küche und Bad - Ideen? - Seite 220
20Grundriss Bungalow 150qm geschlossene Küche, überdachte Terrasse - Seite 240

Oben