Grundrissentwurf für 220m² Einfamilienhaus

4,40 Stern(e) 7 Votes
Zuletzt aktualisiert 05.10.2025
Sie befinden sich auf der Seite 2 der Diskussion zum Thema: Grundrissentwurf für 220m² Einfamilienhaus
>> Zum 1. Beitrag <<

R

R.Hotzenplotz

Guten Morgen,

danke erst mal für die Reaktionen.

Als Anhang erst mal die Grundstücksausrichtung (mit Altbebauung; nordweisend).

Ebenfalls beigefügt habe ich die gewünschten jgp Dateien von EG und OG. Den Keller habe ich weg gelassen, da der nicht aktuell ist. Hatte ihn der Vollständigkeit aus einer vorherigen Version mit gepostet. Der wird angepasst, wenn wir mit EG und OG einig sind..... von daher bitte nicht im Detail beachten. Ich hatte das mit dem Gästezimmer und dem Lichtschacht nicht beachtet; das bleibt natürlich nicht so.

Auch mal zwei Fotos vom Grundstück.


Hallo,
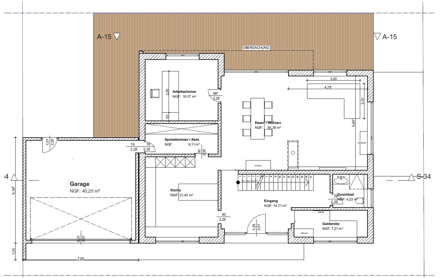
Beim Ankommen ins Haus schaut man erst mal auf eine Treppe. Kann interessant sein, kann den Eingangsbereich aber auch "ungemütlich" machen. Zumal ihr wegen der vielen Türen/ Flurabzweigung den Bereich wohl nur schlecht möblieren könnt.
Ja, das stimmt. Sicherlich ist das das Resultat daraus, dass unser Wohnbereich groß (und v. a. eigentlich 6,40m lang) sein sollte. Das muss man sich wirklich mal anschauen, wenn eine 3D Visualisierung erstellt wird und man virtuell durch das Haus durchlaufen kann. Dann können wir das besser greifen. Eine solche erstellt er, wenn wir mit einem Entwurf erst mal grundlegend einverstanden sind.


Hallo,
Ich tippe fest darauf, dass die Speis die Garderobe werden wird (auch wenn dort bisher noch eine Tür ins Haus fehlt ). Der als Garderobe bezeichnete Raum ist zu weit weg von der Garage und auch zu eng, um sich dort zu mehr gut zu bewegen.
Du wirst lachen. Ich hatte dem Architekten selbst mal einen Vorschlag aufgezeichnet, der so aussieht wie in der laienhaften Handskizze im Anhang. Er hat uns aber dann doch erst mal den geposteten Vorschlag mitgebracht, da die Anbindung Garage, Speisekammer, Küche am Ende höher gewogen hat als die Garderobe.... aber sicherlich ist beides möglich. Mir gefällt besser so die Richtung meiner Handskizze, meiner Frau gefällt der Architektenentwurf besser.


Der als Garderobe bezeichnete Raum ist zu weit weg von der Garage und auch zu eng, um sich dort zu mehr gut zu bewegen.

Die Küche kann ich mir nur schwer vorstellen, insb. wo eure Wege zur Terrasse sein sollen.

Die Terrasse vor dem Esstisch dürfte nicht existent sein, da ich das Fenster darunter im Gästezimmer so interpretiere, als ob da eine Abgrabung hin müsste.

Der Abstand zum TV ließ sich durch einen noch tieferen Vorsprung in der Wand lösen. Ob das dem Fassadenbild gut tut - keine Ahnung. Ich kann mir die vielen unterschiedlichen Versprünge aber auch jetzt schon nicht wirklich vorstellen mangels Fantasie...

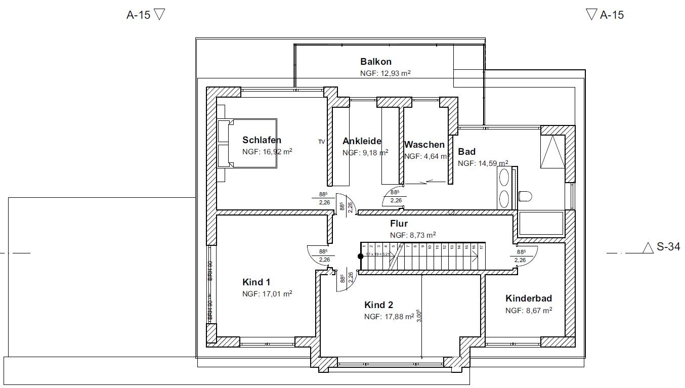
Im OG fällt mir eine absolute Kleinigkeit sehr negativ auf: die Tür in die Ankleide liegt so, dass man gegen einen Schrank läuft. Lässt sich ganz simpel ändern.

Was nicht mehr ganz so simpel werden könnte: wie sollen die Bäder denn mal möbliert werden? Unbedingt Möbel einzeichnen lassen! Und auch mal die Frage stellen, wie alles entwässert werden kann.

Ansonsten bin ich kein so großer Fan der schmalen, langen Flure. Geht schon irgendwie, aber in Relation zur Gesamtgröße schaut sowohl der im Keller als auch im OG schon sehr schmal aus- ich schramme auch in breiteren Fluren mal mitm Wäschekorb/ Handrücken an der Wand entlang. :-(

Joah, und sollte sich mein Verdacht bestätigen, dass entweder ein Kind das Zimmer oder der Balkon in Richtung Norden ausgerichtet ist, würden mich dafür die Gründe interessieren?

Vielleicht fällt mir morgen ausgeschlafen noch mehr auf. Find manche Ansätze auch gar nicht schlecht!

Jetzt wollt ich grad den Kamin als Beispiel loben, da fällt mir auf, dass da in den anderen Geschossen der Schornstein fehlen müsste?!

Könnte also evtl. doch noch mehr Änderungen geben :-(
Der als Garderobe bezeichnete Raum ist zu weit weg von der Garage und auch zu eng, um sich dort zu mehr gut zu bewegen.
Dito, ist mir auch aufgefallen. Entweder die Garderobe ist weit weg von der Garage oder der Vorratsraum. Mich stört das auch etwas aber eins von beiden wird wohl nur gehen. Wenn ich aber bedenke, wie viele Entwürfe wir schon gesehen haben (bei versch. Architekten), dann ist das schon ein Kompromiss, der denkbar ist. Wir haben bestimmt schon 15 Entwürfe gesehen und der hier ist am nächsten dran.


Die Küche kann ich mir nur schwer vorstellen, insb. wo eure Wege zur Terrasse sein sollen.
Die Küche ist tendenziell ein paar m² zu groß. Das ist deshalb weil der Architekt ermöglichen wollte, dass man von dort aus sowohl in den Essbereich kommt als auch die Küche durch den Flur betreten kann.

Dazu muss ich sagen, dass im vorherigen Entwurf Arbeitszimmer und Küche gedreht waren. Küche zur Terrasse und Arbeitszimmer vorne zur Straße raus. Das ist allerdings ein No Go gewesen, da ich sehr viel im Arbeitszimmer sitze und nicht auf die Straße und die vorbei laufenden Leute schauen möchte sondern in meinen Garten. Daher war unsere Vorgabe, die Küche unbedingt nach vorne hin zu legen. Dein Gedanke ist nachvollziehbar. Hatten wir uns ehrlich gesagt auch keine Gedanken drüber gemacht, allerdings würden wir es wohl so in Kauf nehmen, denn anders herum wollen wir es einfach nicht.


Die Terrasse vor dem Esstisch dürfte nicht existent sein, da ich das Fenster darunter im Gästezimmer so interpretiere, als ob da eine Abgrabung hin müsste.
s. o. - KG wird überarbeitet


Der Abstand zum TV ließ sich durch einen noch tieferen Vorsprung in der Wand lösen. Ob das dem Fassadenbild gut tut - keine Ahnung. Ich kann mir die vielen unterschiedlichen Versprünge aber auch jetzt schon nicht wirklich vorstellen mangels Fantasie...
Auch hierzu noch einige Anlagen mit Visualisierungen. Finden wir gut (bis auf das Eingangsportal und optische Details, was noch überarbeitet wird).

Du meinst, du würdest das Wohnzimmer dort, wo die Couch steht, nach hinten erweitern? Habe ich auch überlegt allerdings übersteigen wir dann die 220m² (und damit wohl das Budget). Und die Fläche die wir bspw. in der Küche theoretisch zu viel haben, bringt uns da eher nicht weiter. Aber man müsste mal rechnen und schauen.....


Im OG fällt mir eine absolute Kleinigkeit sehr negativ auf: die Tür in die Ankleide liegt so, dass man gegen einen Schrank läuft. Lässt sich ganz simpel ändern.
Dazu bekommt der Architekt auch noch Feedback. Uns gefällt oben noch nicht, dass man vom Schlafzimmer an der Ankleide (das ist noch Ok) und dann am Waschraum vorbei läuft, um an anderen Gebäudeende auf den Pott zu kommen. Ich sehe den Waschraum eher am rechten Gebäudeende und den Eingang zum Badezimmer direkt hinter der Ankleide....


Was nicht mehr ganz so simpel werden könnte: wie sollen die Bäder denn mal möbliert werden? Unbedingt Möbel einzeichnen lassen! Und auch mal die Frage stellen, wie alles entwässert werden kann.
Keine Ahnung. So weit sind wir noch nicht. Bisher stand oder steht ja noch kein Badezimmergrundriss fest, der einen an die Möblierung denken lassen könnte. Badewanne, Dusche, Toilette, Waschtisch (1 Waschbecken reicht). Das sollte bei der großen Fläche machbar sein. Aber wie gesagt; aus dem Ärmel schütteln kann ich da jetzt auch nichts. Klar kann ich den Architekten bitten, mal fiktive Möbel einzuzeichnen.


Ansonsten bin ich kein so großer Fan der schmalen, langen Flure. Geht schon irgendwie, aber in Relation zur Gesamtgröße schaut sowohl der im Keller als auch im OG schon sehr schmal aus- ich schramme auch in breiteren Fluren mal mitm Wäschekorb/ Handrücken an der Wand entlang. :-(
Das ist das Ergebnis der schräg stehenden Treppe (ein No Go war für uns eine Treppe links oder rechts neben dem Eingang wo der herein kommende direkt hoch schauen kann). Die Breite des Flurs im OG muss ich unbedingt anfragen! Wichtiger Hinweis; danke!! Wir haben aktuell eine Breite von 1,47m zuhause, was gut ist.


Joah, und sollte sich mein Verdacht bestätigen, dass entweder ein Kind das Zimmer oder der Balkon in Richtung Norden ausgerichtet ist, würden mich dafür die Gründe interessieren?
Balkon Richtung Nordwesten. Ist halt zum Garten hin. Hauptsächlich aus optischen Gründen haben wir den Balkon und um Wäsche heraus zu hängen. Nutzen wird man den zum sitzen eher weniger. Der große Garten wird einem überall schöne Plätzchen bieten, wenn man in die Sonne möchte. Wir haben viele Anforderungen gestellt was das Raumprogramm etc. angeht. Bei der Ausrichtung besteht dafür mehr Flexibilität. Wir müssen da nicht unbedingt die klassischen Ausrichtungen haben.


Jetzt wollt ich grad den Kamin als Beispiel loben, da fällt mir auf, dass da in den anderen Geschossen der Schornstein fehlen müsste?!
Du meinst, da hätte im OG was eingezeichnet werden müssen? Was genau?


Ich sammele jetzt mal ein paar Punkte und Fragen und gebe dem Architekten dann Rückmeldung. Hoffe nicht, dass wir noch mal von vorne anfangen; die Zeit rennt leider.


Was soll an dem Haus denn 720t kosten? Oder was ist da alles dabei?
Hallo Lumpi,

da ist neben dem Haus auch der Abriss des Altgebäudes, Vermesserkosten etc. drin. Ebenfalls mehr als die Bauleistungsbeschreibung, z. B. € 50,- /m² Fußboden statt der standardmäßigen € 25,-. Ich habe vor der Entscheidung für einen Anbieter mit mehreren Firmen Kontakt gehabt. Die unterschiedlichen Grundrisse mit unseren Anforderungen kamen immer in etwa auf den gleichen Preis.

Grundriss eines Hauses: Küche, Essen/Wohnen, Arbeitszimmer, Garage, Eingang, Terrasse.


Grundriss eines Wohnhauses mit Schlafzimmer, Ankleide, Waschen, Bad, Flur, Balkon und Kinderzimmer.


Vorderansicht eines braunen Einfamilienhauses mit Hecken, Baum und geparktem Auto.


Straßenansicht eines Wohnviertels mit Häusern, Bäumen und gepflasterter Straße


Handskizze eines Hausgrundrisses: Garage links, Wohnzimmer mit Couchtisch, Sofa, Kamin, Küche, Fenster.


Modernes Zweistöckhaus mit großer Garage links und Glaseingang.


Moderne zweistöckige Villa bei Nacht mit weißer Fassade, Glasfronten und Balkon.
 
RobsonMKK

RobsonMKK

Das mit dem Sitzabstand für den Fernseher will mir nicht einleuchten.
Zum einen würde ich das als "eher untergeordnet" betrachten, zum anderen...hat der TV eine Diagonale von 2 Meter das du so einen Sitzabstand brauchst?

Mir gefällt das mit der Küche auch nicht so recht. Der Durchgang Wohnzimmer Küche schaut mir zu "schmal" aus. Wenn man wirklich mal Gäste hat und essen auffährt steht man sich ja in der Tür dauern in der Quere.
Die Flure sind ja schon angesprochen. Aus leidlicher Erfahrung finde ich auch Kind 2 tricky, schlauchige Kinderzimmer sind "doof" (es bleibt im Zentrum kaum Platz zum Spielen).

Eine Anmerkung am Rande, bitte nicht persönlich nehmen. Ich habe das Gefühl das die meisten kleineren Häuser sinniger geplant sind als solch große. Irgendwie scheinen die Architekten das dann auszunutzen und machen großen Raum an großen Raum (z.B. Wohnzimmer mit 50 qm oder mehr. Natürlich schön, aber irgendwann muss man sich auch Fragen, brauche ich ein Wohnzimmer in dem Sonst eine 3-4 köpfige Familie wohnen kann).
 
M

Maria16

Soll das ein Holz-Kamin werden?
Irgendwo muss ja der Rauch hinziehen können- kenn ich nur mit einem Schornstein, der sich halt durch alle Geschosse zieht und ÜBER dem Dach endet.

Übrigens: wenn Abstand Couch-TV Priorität hat, würde ich evtl. darüber nachdenken, aus Kostengründen den Balkon zu streichen und die Wäsche wo anders trocknen zu lassen. Bin immer noch der Meinung, dass ihr ein eher repräsentatives Haus wollt- da passt ein Wäscheständer über der Hauptterrasse dann eher nicht so.

Allerdings vermute ich, dass der Entwurf noch ein, zwei runden drehen muss. Nur weil es in der Küche zu viel Platz gibt, kann man den ja nicht "einfach so" an ein ganz anderes Eck schieben. Und wenn die Küche kleiner wird, funktioniert die Möblierung wie bisher eingezeichnet nicht mehr. Der Schornstein wird ein ziemliches Problem geben, da er im OG wohl im Weg umgehen dürfte.

Beim Bad geht es mir nicht darum, schon konkrete Möbel im Laden auszusuchen. Aber irgendwas, vermutlich eine freistehende Badewanne, wird vor dem bodentiefen Fenster landen müssen, um alles unterzubringen.

Durch skizzenhafte Möbel erkennt man auch gut, ob die Positionen passen/ gefallen. und wenn man die Möbel auch mal nachmisst, kann man sich mal überlegen, ob sie ausreichend groß eingezeichnet sind/ der viele Platz an manchen Stellen doch nicht reicht.
 
Y

ypg

Boah, wird das riesig. Da würde ich auf eine Lüftungsanlage nicht verzichten. Man läuft sich sonst Blasen .
Welches EG ist denn jetzt das aktuelle?
Mir mag die Küche zB auch nicht behagen, mir fehlt der schöne Blick von einem gewissen Abstand auf die Insel.
Auffällig bei so großen Häusern ist, dass immer Zusatzflure geplant werden müssen, wie oben im Waschbereich/Bad zu sehen.


In aller Kürze Grüsse
 
R

R.Hotzenplotz

Soll das ein Holz-Kamin werden?
Irgendwo muss ja der Rauch hinziehen können- kenn ich nur mit einem Schornstein, der sich halt durch alle Geschosse zieht und ÜBER dem Dach endet.
Das wäre ein Thema für die Detailplanung. Wir sind da noch nicht eingestiegen. Ein moderner Kamin war angedacht. Wenn das so kompliziert wird oder wie ansonsten wieder bei Null anfangen, können wir den auch rausnehmen. Finden das ganz schick aber das wäre etwas, worauf wir auch verzichten können. Ist es nicht komisch, dass der Architekt keinen Kaminschacht oben eingezeichnet hat? Einfach vergessen?


Welches EG ist denn jetzt das aktuelle?
Aktuell ist der digitale Architektenentwurf. Zum Hintergrund der Handskizze noch mal mein Zitat aus meinem zweiten Beitrag des Threads:

"Du wirst lachen. Ich hatte dem Architekten selbst mal einen Vorschlag aufgezeichnet, der so aussieht wie in der laienhaften Handskizze im Anhang. Er hat uns aber dann doch erst mal den geposteten Vorschlag mitgebracht, da die Anbindung Garage, Speisekammer, Küche am Ende höher gewogen hat als die Garderobe.... aber sicherlich ist beides möglich. Mir gefällt besser so die Richtung meiner Handskizze, meiner Frau gefällt der Architektenentwurf besser."

Mir mag die Küche zB auch nicht behagen, mir fehlt der schöne Blick von einem gewissen Abstand auf die Insel.

Auf der einen Seite verständlich, auf der anderen Seite haben wir uns bewusst für einen eher geschlossenen Grundriss entschieden, insbesondere die Küche sollte nicht offen sein sondern in einem separaten Raum untergebracht werden. Beides ist wohl nur schwer miteinander in Einklang zu bringen.
 
Zuletzt aktualisiert 05.10.2025
Im Forum Grundrissplanung / Grundstücksplanung gibt es 2510 Themen mit insgesamt 87152 Beiträgen


Ähnliche Themen zu Grundrissentwurf für 220m² Einfamilienhaus
Nr.ErgebnisBeiträge
1Platzierung der Möbel im Wohnzimmer im Grundriss 10
2Wohnzimmer Grundrissplanungs-Ideen? - Seite 239
3Grundriss Einfamilienhaus 136m² mit Garage & Keller 17
4Grundriss Landhausneubau in großem Garten nach §34 (mit Abriss) 37
5Kombination Fliesen und Parkett im Wohnzimmer mit offener Küche - Seite 330
6Grundrissplanung Wohnzimmer-Küche 18
7Grundriss für Doppelhaus an Hanglage - Optimierungsideen? 33
8Balkon auf Garage auf Grenze 11
9Bungalow mit 140qm und Garage im Grundriss 13
10Grundrissentwurf eines Passivhauses 170m² mit Garage - Seite 318
11Hausausrichtung / Hauseingang und Garage - Seite 214
12Grundriss Halboffene Küche mit großem Essbereich - Detailfragen 12
13Einfamilienhaus mit Einliegerwohnung & Garage 14
14Haus ohne Garage und Keller? Ausbau Dachboden? Fresswarze? - Seite 585
15Grundriss Einfamilienhaus mit Garage 18
16 2 Vollgeschosse, Durchgang Garage, Hauswirtschaftsraum unter Treppe 25
17Fenster / Türen / Garderobe 13
18Esstisch in einer kleinen Küche 49
19Lage von Haus & Garage im Baufenster planen *Vorplanung* - Seite 2129
20Einfamilienhaus - Stadtvilla: Wohnzimmer L oder I Form? 25

Oben