Grundrissentwurf Einfamilienhaus165qm ohne Keller auf 400qm Grundstück

4,90 Stern(e) 23 Votes
Zuletzt aktualisiert 19.11.2025
Sie befinden sich auf der Seite 26 der Diskussion zum Thema: Grundrissentwurf Einfamilienhaus165qm ohne Keller auf 400qm Grundstück
>> Zum 1. Beitrag <<

M

Maulwurfbau

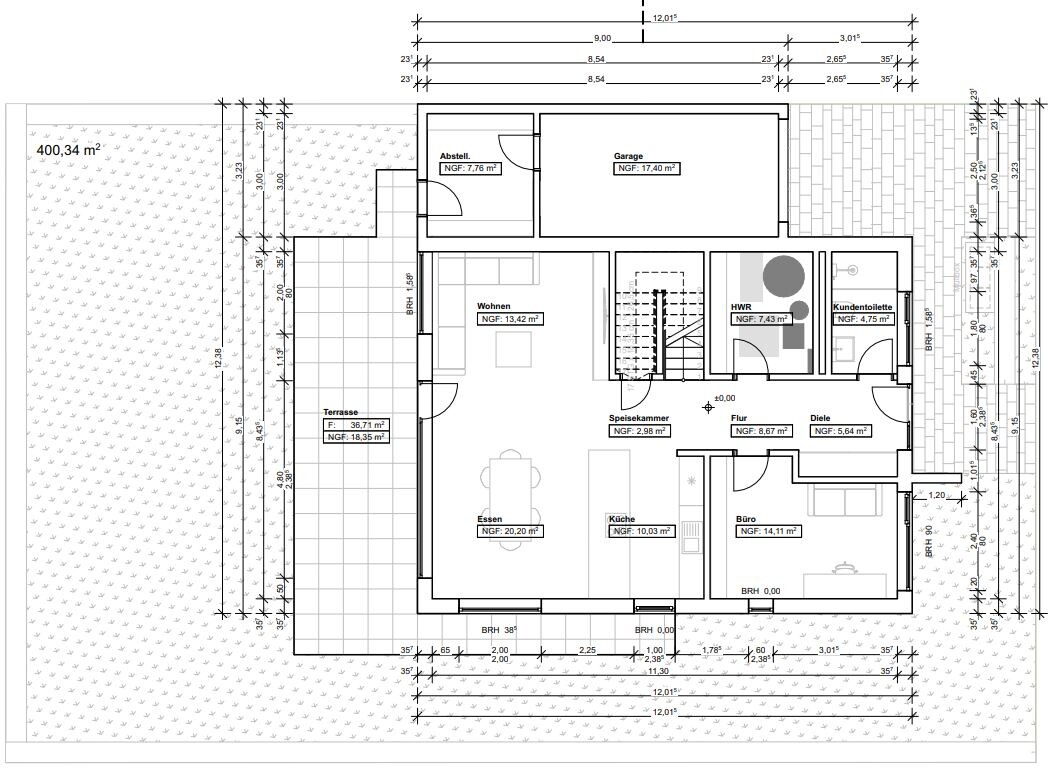
Sorry. Hier der Grundriss. Da wollen wir jetzt eigentlich auch nicht mehr dran herummachen.
Grundriss Erdgeschoss eines Hauses mit Terrasse, Garage, Wohnen, Essen, Küche, Büro, HWR.
 
Zuletzt bearbeitet von einem Moderator:
H

hanse987

Der Raum hat mit der hohen Brüstungshöhe für das Fenster einen Scharm wie ein Kellerraum. Muss aber du wissen was dir wichtiger ist. Symmetrie von Außen oder Raumfeeling im Raum? Mit wäre aber auch bei einer 90er Brüstungshöhe das 80cm hohe Fenster zu niedrig. Da ist ja die Oberkante des Glas bei nur etwa 1,60m über dem Boden.
 
kbt09

kbt09

Warum im Arbeitszimmer überhaupt nur so ein Fensterband .. so, wie es jetzt ist, kann man doch im Stehen nicht raussehen. Wie wäre es so:


Außenansicht eines zweigeschossigen Hauses mit Satteldach, Fensterfront, Eingang und Garage.
 
Zuletzt bearbeitet von einem Moderator:
M

Maulwurfbau

Der Raum hat mit der hohen Brüstungshöhe für das Fenster einen Scharm wie ein Kellerraum. Muss aber du wissen was dir wichtiger ist. Symmetrie von Außen oder Raumfeeling im Raum? Mit wäre aber auch bei einer 90er Brüstungshöhe das 80cm hohe Fenster zu niedrig. Da ist ja die Oberkante des Glas bei nur etwa 1,60m über dem Boden.
Raumfeeling im Raum wäre wichtiger. Das mit der Brüstungshöhe wäre tatsächlich noch zu überdenken. ggf auf 100- 110cm setzen. Dann kann man im Sitzen rausgucken und im stehen, wenn man halbwegs normalgroß ist. Kellerraum trifft es fast gut. Danke.
 
Zuletzt aktualisiert 19.11.2025
Im Forum Grundrissplanung / Grundstücksplanung gibt es 2535 Themen mit insgesamt 87976 Beiträgen


Ähnliche Themen zu Grundrissentwurf Einfamilienhaus165qm ohne Keller auf 400qm Grundstück
Nr.ErgebnisBeiträge
1Brüstungshöhe Fenster, Balkon & Geländer – Was beachten? 15
2Badewanne vor Fenster - Brüstungshöhe? 14
3Problem Berechnung Brüstungshöhe bei ins Fenster laufender Arbeitsplatte - Seite 324
4Neubau Fenster Brüstungshöhe für Gäste-WC 30
5Fenster Brüstungshöhe 130 im Schlafzimmer / Arbeitszimmer? 93
6Fenster Brüstungshöhe 25 oder 50 - Höhe Absturzsicherung - Seite 228
7Meinungen zu Brüstungshöhe Fenster gesucht 30
8Gutachter Mängelfeststellung, Feststellung Einbau Fenster 10
9Fenster Anordnung 10
10Fehlende Brüstungshöhe mit Styrodurplatten ausgleichen - Seite 218
11Fenster & Fenstergröße was wählen? Zweiflügelige Fenster? - Seite 346
12Bodentiefe Fenster - Warum bodentiefe Fenster? Vor- Nachteile? - Seite 8112
13Bungalow 135qm: Grundriss + Fenster - Seite 10104
14Grenzbebauung Garage, Fenster möglich 19
15Fenster sind kleiner als im Bauantrag/Werkplan - Seite 540
16Bodentiefe Fenster im OG ohne Brüstung - Seite 565
17Badplanung 14m², Neubau, quadratisch, zwei Fenster 70
18Hilfe bei der Anordnung der Fenster benötigt! 32
19Brüstungshöhe feststehendes Küchenfenster 1,35 m? 47
20Einbruchsichere Fenster? - Seite 233

Oben