Grundrissentwurf Einfamilienhaus165qm ohne Keller auf 400qm Grundstück

4,90 Stern(e) 21 Votes
Zuletzt aktualisiert 04.10.2025
Sie befinden sich auf der Seite 9 der Diskussion zum Thema: Grundrissentwurf Einfamilienhaus165qm ohne Keller auf 400qm Grundstück
>> Zum 1. Beitrag <<

Y

ypg

Klingt auch ein wenig nach, wenn du schon die gerade Treppe behalten willst, dann dann behalte sie aber Rest lieber anders anordnen.
Nicht unbedingt. Ich würde das planen, was am besten passt! Das „Leiden mögen“ kann auch vergehen. Außerdem baut man ja auch nicht alles in sein Häusle, was man mag. Ansonsten müsste man ja 500qm aufwärts planen, so vieles ist nett anzusehen.
Aber was soll ich denn auch gegen Mühlen reden, wenn Ihr da festgefahren seid. Ich bin nicht zum Stänkern hier, sondern will konstruktive Kritik geben. Aber wie schon gesagt: Theorie ist das eine, in der Praxis schließt man Kompromisse.
 
Y

ypg

Eine Sache interessiert mich dann doch.
Was wäre denn modern dann?
Das ist recht subjektiv.
Modern ist ja nicht, Mainstream-Dinge haben zu wollen oder je mehr, desto moderner.
Modern in der Audrucksform hier heißt zeitgemäß.
Das Gesamtbild muss stimmen. Für mich persönlich gehören zu einem modernen Haus auf jeden Fall Sichtachsen, die sich in einem Entwurf wiederfinden sollten., dazu.
Das hat das Haus eine - der Weg von der Treppe runter mit Blick durch ein Fenster.
 
H

hanghaus2023

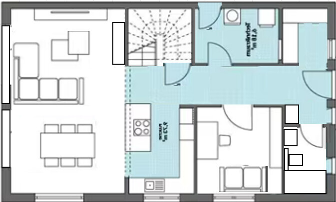
Hier mal noch mein Vorschlag etwas optimiert. Das OG kann auch noch angepasst werden an Deine Vorgaben. Die hatte ich ja damals noch nicht.


Lageplan eines Hauses mit Terrasse, roter Grundstücksgrenze und Innenaufteilung der Räume.


Die Treppe umgekehrt dann kann man noch ne speisekammer drunter nutzen. Oder kommt da ein Kellerabgang hin?
 
Ibdk14

Ibdk14

Ähnelt meinem gestrigen ersten Versuch, den ich eigentlich nicht zeigen wollte, weil selbst für eine "Skizze" noch einige Sachen fehlen bzw. nicht stimmig sind. Ist auch etwas länger als gewünscht.


Grundriss eines Hauses mit Wohnen-Essen, Kueche, Gaestezimmer, HWR, WC und Garage

Grundriss eines Hauses mit Kinder-, Eltern-, Arbeitszimmer, Bad und Fluren.
 
Zuletzt aktualisiert 04.10.2025
Im Forum Grundrissplanung / Grundstücksplanung gibt es 2509 Themen mit insgesamt 87148 Beiträgen


Ähnliche Themen zu Grundrissentwurf Einfamilienhaus165qm ohne Keller auf 400qm Grundstück
Nr.ErgebnisBeiträge
1Treppe im Flur, Grundriss steht eigentlich schon :o( - Seite 320
2Frage zu Grundriss, insbesondere Treppe 13
3Treppe Grundriss Planung, Auftritt und Unterzug - Seite 321
4Welche Treppe habt ihr genommen - Seite 277
5Gerade Treppe - warum? 14
6Baumangel - Treppe nicht in Ordnung - Seite 212
7Treppe - Sind die Treppenmaße 2.00x2.00m in Ordnung? - Seite 868
8Einfamilienhaus ca. 150 qm Grundriss - Treppe wie planen? - Seite 665
9Treppe - Welches Material, welche Optik? - Seite 214
10Farbgestaltung der Treppe im Wohnraum, Materialwahl - Seite 350
11Fliesenlegen in Neubau OG - keine Treppe vorhanden - Seite 222
12Gerade Treppe für Einfamilienhaus: Maße in Ordnung? 18
13Treppe um 10cm versetzt, Optionen? - Seite 339
14Jemand Ideen für Umgestaltung Treppe 20
15LED-Treppenbeleuchtung Abstände bei geschwungener Treppe 21
16Technikraum so klein wie möglich - Unter der Treppe? - Seite 210
17Treppe im Wohnzimmer als Hype - Pro & Contra? - Seite 526
18In welche Richtung die Treppe? Erfahrungswerte und Meinungen - Seite 632
19Grundrissfrage: Tausch gerader Treppe durch L-Treppe - Seite 231
20Abschluss Treppe - Parkett 28

Oben