Grundrissentwurf Einfamilienhaus165qm ohne Keller auf 400qm Grundstück

4,90 Stern(e) 24 Votes
Zuletzt aktualisiert 10.01.2026
Sie befinden sich auf der Seite 21 der Diskussion zum Thema: Grundrissentwurf Einfamilienhaus165qm ohne Keller auf 400qm Grundstück
>> Zum 1. Beitrag <<

M

Maulwurfbau

Nein, selbstverständlich nicht, da soll ja auch keiner rein. Zumindest keiner den der deutsche Durchschnittsbüreger so im Sinn hat, wenn das Wort Wäscheständer fällt.
 
M

Maulwurfbau

Gern. Für Genaueres müßte ich ahnen, wo Du hin willst: sammelst Du noch Grundrissideen, und am 31. September ;-) machst Du Redaktionsschluß und ziehst mit verbundenen Augen einen aus dem Hut heraus ? (dann passe aber auf, daß Du nicht versehentlich "Simsalabim" statt "Abrakadabra" sagst, und ein Kaninchen in der Hand hast).
Ja so soll es laufen. Und das auch nur, damit die Architekten die hier so hilfsbereit kommunizieren, darin bestätigt werden. ;)
 
M

Maulwurfbau

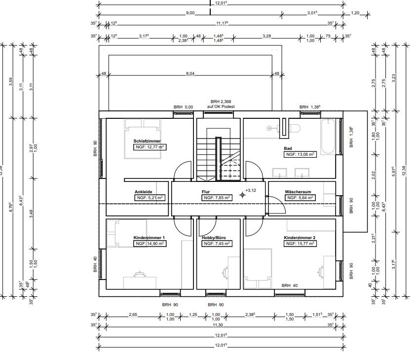
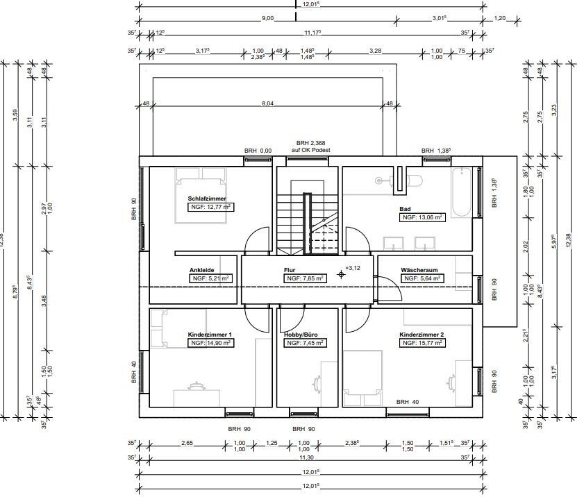
Hier mal noch einige Verbesserungen.
Anhang anzeigen 81299

Ja 12*9.15

Podesttreppe ist 3 m * 2,25 die passt.
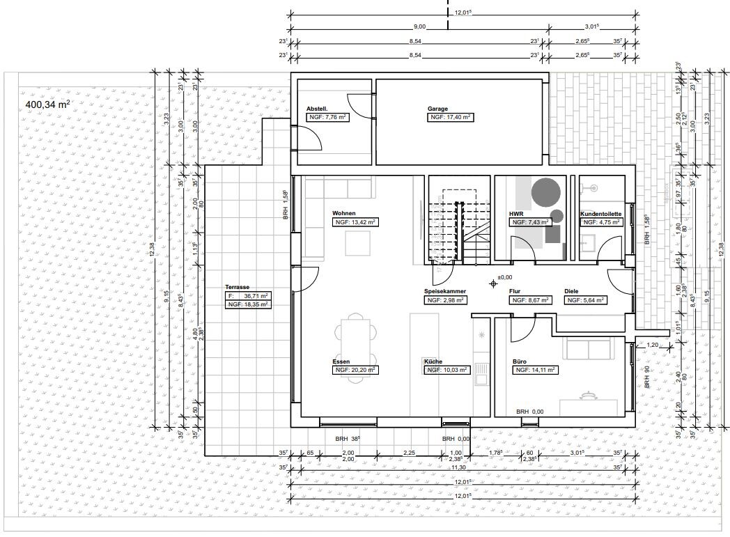
So danke nochmal für die Ideen, wir finden diese grundsätzliche Anordnung von hanghaus wesentlich passender für uns. So in etwa ist es jetzt auch mit dem Architekten abgestimmt. Im OG Denken wir darüber nach die Kinderzimmer ganz nach Süden zu packen. Deine Vorschläge haben uns gut geholfen uns vorzustellen, dass es so auch gehen kann. Die Podesttreppe macht wesentlich mehr Optionen der Raumanordnung im OG möglich, bei gleichbleibender moderater Verkehrsfläche. Im EG sind ja auch noch einige Variationen denkbar, ohne die Grundidee stark zu verändern. Der Kompromiss ist im EG, dass wir auf eine "vollwertige" Speisekammer verzichten und nur etwas Stellfläche unter der Treppe bekämen, aber das können wir gut verkraften. Der Rest gewinnt dafür stark.
 
G

Gerddieter

Bitte. Ein wenig überarbeitet. Wir sind damit nun sehr zufrieden.
Ich habe mir auch so eine nutzlose Wand ins Schlafzimmer packen lassen. Ärger mich heute darüber. Ist massiv und wenn ich die raus haben wollte müsste ich die ganze Statik Kiste wieder anfassen...

Eure Wand engt den Raum nur ein und was soll die bringen ? Lass die sein und wenn dann nur in Trockenbau - dann ist sie schnell wieder weg...
GD
 
Zuletzt aktualisiert 10.01.2026
Im Forum Grundrissplanung / Grundstücksplanung gibt es 2565 Themen mit insgesamt 88793 Beiträgen


Ähnliche Themen zu Grundrissentwurf Einfamilienhaus165qm ohne Keller auf 400qm Grundstück
Nr.ErgebnisBeiträge
1Wir brauchen einen Architekten - oder soll ich das selbst machen? - Seite 214
2Erfahrungen mit Architekten 15
3Schlüsselfertig oder mit Architekten bauen? 19
4Kostenschätzung zweier Architekten liegen weit auseinander! 10
5Braucht man unbedingt einen Architekten? 10
6Vorplanung mit dem Architekten - eigener Grundriss sinnvoll? 18
7Baukosten bei Bau mit Architekten. Was sagt eure Erfahrung? 18
8Kostenplanung Einfamilienhaus inkl. Grundstück, Nebenkosten, Architekten 32
9Architekten finden - aber wie? - Seite 426
10Massivhaus vom Architekten, ungefähre Kosten? 16
11Pflichten des Architekten bei Ausschreibung 18
12Grundstückskauf an Architekten gebunden ist das Normal? 16
13Bauvorhaben mit Architekten 31
14Haus durch GU oder Architekten planen lassen? 30
15Bezahlung des Architekten 16
16Kosten Umbauter Raum. Erstentwurf mit Architekten besprochen 27
17Baubeschreibung von Architekten: Wer hat Erfahrung? 13
18Vorschläge vom Architekten enttäuschend - Wie weiter? 32
19Stress mit dem Architekten - Vorvertrag blauäugig unterschrieben 17
20Kamin - Fehlplanung durch Architekten / Generalunternehmer - Seite 331

Oben