Grundrissentwurf Einfamilienhaus165qm ohne Keller auf 400qm Grundstück

4,90 Stern(e) 23 Votes
Zuletzt aktualisiert 21.11.2025
Sie befinden sich auf der Seite 12 der Diskussion zum Thema: Grundrissentwurf Einfamilienhaus165qm ohne Keller auf 400qm Grundstück
>> Zum 1. Beitrag <<

M

Maulwurfbau

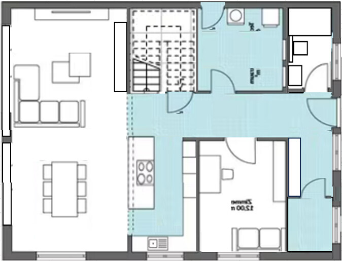
Na, das sind mir ja schöne Scherzkekse. Machen seitlich mehr Bauwich für mehr Einfahrtsbreite wegen Podest, trotz Eingang an der Giebelseite.
Ich habe versucht nochmal eine Skizze am Handy zu machen. Was heißt Bauchweh. Es wurde als Hinweis gegeben bei der Enge des Grundstücks und der Baulücke daran zu denken, dass der Eingang eine Stufe benötigen wird und eine sehr enge Situation am Eingang entstehen könnte, wenn man nicht aufpasst. Sprich Auto direkt vor dem podest bzw muss drüber fahren um in Garage zu gelangen. Das ist alles.
Abstrakte blaue Strichzeichnung eines Gebäudes mit Türen auf schwarzem Hintergrund.
 
M

Maulwurfbau

Edit: was heißt das nun für das weitere Vorgehen ?
A. "zurück" zum Beibehalt des giebelseitigen Einganges
B. das Haus so schmal zu lassen, um den Preis einer doofen Treppenlage
C. vielleicht doch ein Steinhaus (innen mit Lehmputz) ?
Nun, wie ich sagte, es ist ein Entwurf, und keine Genehmigte Version. Ich überdenke gerade alle Vorschläge und Kommentare.

Zur Breite. Max 10m kann das Haus werden, der aktuelle Plan ist 9.15 oder so. Viel mehr geht also nicht. Plus, es macht nix wenn für den Baukörper eine gewisse proportionalität gewährt wird. Daher ist der Plan gerade so wie er ist bzgl Länge, Breite und Dachneigung. Die Treppe ist ja nicht fix für mich.

Tja, mit dem Holzhaus ist es ja so eine Sache. Ich will es mal so sagen. Wenn ich ins Autohazs gehe, und ein 2 Sitzer will, ist es etwas daneben mich vom Kombi überzeugen zu wollen. Und ehrlich gesagt kann ich gerade nicht nachvollziehen warum es besser wäre in Stein zu bauen. Ich sehe keine no-gos für ein Holzhaus.
Einzig der Plaan ist noch nicht da wo er sein sollte bzw könnte.
 
M

Maulwurfbau

Grundsätzlich heißt es erstmal, dass ich den Plan so nicht umsetzen werde. In welcher Form wir weiter gemacht wird, lasse ich gerade in mir reifen.
Edit: was heißt das nun für das weitere Vorgehen ?
A. "zurück" zum Beibehalt des giebelseitigen Einganges
B. das Haus so schmal zu lassen, um den Preis einer doofen Treppenlage
C. vielleicht doch ein Steinhaus (innen mit Lehmputz) ?
Grundsätzlich heißt es erstmal, dass ich den Plan so nicht umsetzen werde. In welcher Form wir weiter gemacht wird, lasse ich gerade in mir reifen.

(die wenigen Minuten Korrekturfenster hier, gehen mir gerade etwas auf den. Geist... )
 
Zuletzt aktualisiert 21.11.2025
Im Forum Grundrissplanung / Grundstücksplanung gibt es 2535 Themen mit insgesamt 87978 Beiträgen


Ähnliche Themen zu Grundrissentwurf Einfamilienhaus165qm ohne Keller auf 400qm Grundstück
Nr.ErgebnisBeiträge
1Einfamilienhaus mit seitlichem Eingang -Grundrissdiskussion? 17
2Vordach über Eingang zu dunkel? - Seite 220
3Eingang Grundriss welche Treppenvariante - Seite 231
4Knifflige Grundstücksplanung: Garage + Eingang nach SW oder NO? 21
5Rückspringender Eingang beim Fertighaus: mit Bodenplatte oder ohne 11
6Ziegel- oder Holzhaus 11
7Passiv-Holzhaus mit Schwimmteich und Gartensauna 24
8Massivhaus Stein auf Stein, das ökologische Holzhaus oder... 19
9Schlüsselfertiges Holzhaus unter 300000 € möglich? - Seite 743
10Erfahrungsberichte zu Engelhardt & Geissbauer (E&G Holzhaus 10
11Massivhaus energetisch viel schlechter als Holzhaus? 15

Oben