Grundrissdiskussion aufbauend auf bestehendem Thread

4,90 Stern(e) 12 Votes
Zuletzt aktualisiert 22.12.2025
Sie befinden sich auf der Seite 6 der Diskussion zum Thema: Grundrissdiskussion aufbauend auf bestehendem Thread
>> Zum 1. Beitrag <<

kbt09

kbt09

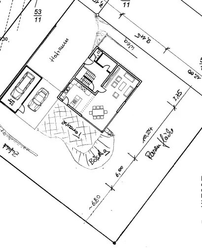
Mir fehlt die Bemaßung auch des Grundrisses. Ich bezweifle, dass das eine Podesttreppe werden kann. Der Schrankraum hat nur wenig Stellraum in normaler Raumhöhe. Welche Auswirkungen die 37 cm Verlängerung bringen sollen, kann ich auch nicht erfassen.
 
D

Dachshund90

Also zusammenfassend:
- Der dargestellte Entwurf ist lückenhaft
- Kosten noch nicht bestimmt, aber Budget arg begrenzt für die Größe
- Trotzdem redet Ihr über die finale Umsetzung eines nicht gezeigten Entwurfs:


Kommt mir komisch vor...
Hallo SoL,

stimmt schon, der Entwurf muss eben jetzt überarbeitet werden und die Kosten müssen jetzt einfach herbei ;-)
Das mit der finalen Umsetzung habe ich etwas unglücklich formuliert. Ich meinte eher, dass ich jetzt die überarbeitet Version und Kosten brauche um mit der Finanzierung weiter zu kommen. Gerade scheint es noch ein guter Zeitpunkt zu sein, ich gehe fest davon aus, dass die Zinsen im Mai wieder ein höheres Niveau erreichen.
Von der finalen Version sind wir sicher noch etwas weg...

Der Kniestock wäre mir bei 30 Grad Dachneigung zu klein. Ist die Höhe so ausgereizt?

Mit dem Stein kenne ich niemanden, der den verbaut hätte. Das allein würde meine Skepsis schüren. Womit bauen denn die anderen in Eurer Gegend so?
Laut Architekt haben wir so die 8m Firsthöhe von der gemittelten Geländehöhe ausgereitz

In der Nähe gibt es einige die mit dem Stein gebaut haben, allerdings meist auch mit "unserem" Architekten. Ansonsten wird natürlich auch mit anderen Steinen gebaut. Gibt es hier dahingehend Experten? Gibt es wirklich so relevante Unterschiede, dass wir nicht mit Bimsstein bauen sollten? Das Thema Wasser ist natürlich bekannt, allerdings unklar, inwieweit das wirklich Probleme gibt?

Mir fehlt die Bemaßung auch des Grundrisses. Ich bezweifle, dass das eine Podesttreppe werden kann. Der Schrankraum hat nur wenig Stellraum in normaler Raumhöhe. Welche Auswirkungen die 37 cm Verlängerung bringen sollen, kann ich auch nicht erfassen.
Hallo kbt09

Die Bemaßung fehlt uns auch, mussten uns einiges aus dem 1:100 Maßstab raus messen. Ich hoffe die nächste Version des Architekten wird hier detaillierter.
Die 37cm Verbreiterung sollen den Durchgang neben dem Ehebett sowie den Eingangsbereich hinter der Haustür verbreitern. Macht doch Sinn, oder?
 
H

hanghaus2023

Bin heute zufällig auf den Beitrag gestoßen. Ich schaue mir das morgen mal an. Wann ist denn der Termin beim Architekten?
 
D

Dachshund90

Hallo hanghaus!

Das wäre nett! Versuche morgen mit ihm zu telefonieren und einen Termin abzustimmen. Ein paar Tage sind sicher noch Zeit.

Grüße
 
H

hanghaus2023

Ich habe es nochmals überarbeitet. Das Haus kann auf 499,5m und der Carport auch. Der Abstellraum dann mit eingeschränkter Deckenhöhe und oder etwas tiefer. Der Weg hinter dem Abstellraum bleibt erhalten.

Der Carport (6*5m) hat 1 m Dachüberstand zur Straße, der sich bis zum Eingang als Überdachung fortsetzt.

Das Fenster im WC sollte dann Richtung Westen.

Die max. Gebäudehöhe ist wenn man das Haus dreht 506,83m das sind 20 cm mehr Kniestock (nach meiner Rechnung 1,7m bei 30° DN).

Wenn man die Geschosshöhen reduziert sind es nochmals einige cm mehr.

@K a t j a die Referenzhöhe ist Der Mittelwert aus den 4 Eckpunkten des Hauses mit dem Schnittpunkt des Urgeländes. Das sind in meinem Beispiel 498,83m + 8m (max. Firsthöhe). Beim Entwurf des Bauzeichners sind es 498,62m.

@ypg Der Keller schaut nur 1,1m heraus. Da ist der Turm nicht mehr ganz so krass.

Zu den Grundrissen sag ich mal nix, da gibt es hier die Experten.


2D-Grundrissplan eines Hauses auf Geländetopografie mit Konturlinien
 
D

Dachshund90

Ich habe es nochmals überarbeitet. Das Haus kann auf 499,5m und der Carport auch. Der Abstellraum dann mit eingeschränkter Deckenhöhe und oder etwas tiefer. Der Weg hinter dem Abstellraum bleibt erhalten.

Der Carport (6*5m) hat 1 m Dachüberstand zur Straße, der sich bis zum Eingang als Überdachung fortsetzt.

Das Fenster im WC sollte dann Richtung Westen.

Die max. Gebäudehöhe ist wenn man das Haus dreht 506,83m das sind 20 cm mehr Kniestock (nach meiner Rechnung 1,7m bei 30° DN).

Wenn man die Geschosshöhen reduziert sind es nochmals einige cm mehr.

@K a t j a die Referenzhöhe ist Der Mittelwert aus den 4 Eckpunkten des Hauses mit dem Schnittpunkt des Urgeländes. Das sind in meinem Beispiel 498,83m + 8m (max. Firsthöhe). Beim Entwurf des Bauzeichners sind es 498,62m.

@ypg Der Keller schaut nur 1,1m heraus. Da ist der Turm nicht mehr ganz so krass.

Zu den Grundrissen sag ich mal nix, da gibt es hier die Experten.

Anhang anzeigen 79501
Hallo Hanghaus,

vielen Dank für deine Unterstützung!
Nur zum Verständnis: als Abstellraum bezeichnest du den dunkelblauen Bereich? Die Idee mit der Überdachung zum Eingang gefällt mir sehr gut, ebenfalls die Anmerkungen zu den Höhen. Es scheint, als wäre gegenüber dem Architektenentwurf noch etwas Kniestock "rauszuholen". Das nehme ich gerne mit in den Termin.
Holst du die 20cm durch das Drehen raus, oder ergeben sich diese auch bei rechtwinkliger Anordnung?

Du würdest also bei der Anordnung von Carport und Haus weiterhin das Carport im Norden sehen? Nicht wie vom Architekt ausgearbeitet im Westen (siehe Anhang)? Dadurch ergeben sich dann auch im Keller Änderungen, da der Eingang in den Keller nicht wie geplant möglich ist, richtig? Wie könnte Alternativ der Eingang in den Keller aussehen und wie sehen die Höhen aus dem Keller Richtung Garten aus...


viele Grüße
Grundriss eines Hauses mit Wohnzimmer, Küche, Treppe und Garage für zwei Autos.
 
Zuletzt aktualisiert 22.12.2025
Im Forum Grundrissplanung / Grundstücksplanung gibt es 2554 Themen mit insgesamt 88554 Beiträgen


Ähnliche Themen zu Grundrissdiskussion aufbauend auf bestehendem Thread
Nr.ErgebnisBeiträge
1Entwurf EFH, 2 Vollgeschosse, Satteldach, kein Keller, Doppelgarage - Seite 431
2Erster Entwurf Einfamilienhaus 150m² mit Keller 38
3Grundriss-Entwurf: Einfamilienhaus mit Keller; 560qm Grundstück - Seite 365
4Grundriss Einfamilienhaus ~165m² plus Keller - Seite 9165
5Erster Grundriss L-Form-Haus (190m²) mit Einlieger (80m²), Keller 15
6Grundriss-Check Neubau Einfamilienhaus mit Keller 43
71. Entwurf Grundriss Einfamilienhaus 150 qm 50
8Grundrissplanung Einfamilienhaus mit Keller in Hanglage 44
9Grundriss für 11m x 8,25m ok? 43
10Kosteneinschätzung: Fertighaus, Keller, Carport, Einzelgarage 10
11Bauen ohne Keller - Carport, Garage? - Seite 318
12Entwurf / Verbesserung Einfamilienhaus 150-175m² mit Walmdach und Keller 39
13Grundriss-Entwurf: Einfamilienhaus; mit Keller; 800qm Grundstück - Seite 210
14Planung Grundriss / Erster Entwurf für erstes Feedback 32
15Ideen zu Entwurf für Einfamilienhaus mit Keller - Seite 547
16Kniestock Danwood Haus in Schleswig-Holstein - Was geht maximal? - Seite 323
17Doppelhaushälfte am Hang mit Keller Grundriss suche. 17
18Einfamilienhaus, ~160m², Bauhausstil; Erster Entwurf nach unseren Wünschen - Seite 10420
19Einfamilienhaus ca. 155qm + ELW40qm. Erster Entwurf. Verbesserungsvorschläge? 52
20Entwurf Einfamilienhaus mit ca. 168m² Feedback 37

Oben