Grundriss Stadtvilla - Was gefällt was nicht?

4,20 Stern(e) 5 Votes
Zuletzt aktualisiert 23.12.2025
Sie befinden sich auf der Seite 4 der Diskussion zum Thema: Grundriss Stadtvilla - Was gefällt was nicht?
>> Zum 1. Beitrag <<

Y

ypg

Also, ich finde, wie oben von mir schon gelesen, kleine Fehler gut behebbar. Ankleide und Schlafzimmer kann man tauschen, wenn ihr auf Eure Winddurchreiche beharrt und unbedingt wollt. Ich finde sie im Flur und Windfang überflüssig und würde mir stattdessen dort eine Leseecke einrichten.
Das Haus ist großzügig und funktioniert.
Aber mal ehrlich: diese schöne Grundfläche an Küche bekommt eine Arbeitszeile von 3,60... wenn man Herd, Spüle und Ablagefläche für Küchengeräte abzieht, verbleibt eine reine Arbeitsfläche von ca. 1,20. ich finde das reichlich mager und viel zu wenig.

Kocht ihr nicht oft?


Gruß, Yvonne

P.s. Aha, die soll noch verlängert werden - glatt überlesen


Ich wollte noch auf die Fenster eingehen: ich finde, es sieht immer merkwürdig aus, wenn die Außenwände links und rechts recht schmal neben den äußeren Fenstern ausfallen.
Aus Deinen Perspektiven ist das nicht erkenntlich.
Auch ist die Frontansicht zwar fast symmetrisch, aber eben nur fast, was einer Schieflage gleichkommt.
 
Zuletzt bearbeitet:
R

research86

EG macht dann 2,45 und OG unter 2,40...
Das wäre ein Desaster für uns und wurde im Gespräch nicht erwähnt.
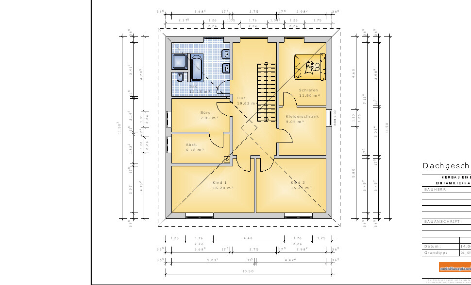
Ankleide und Schlafzimmer kann man tauschen
Vielen Dank für den guten Hinweis. Das macht auf jeden Fall Sinn und wurde auch direkt übernommen (siehe Anhang)
Auch ist die Frontansicht zwar fast symmetrisch, aber eben nur fast, was einer Schieflage gleichkommt.
In der Tat, das stimmt. Der Küchenflügel ist halt breiter. Ob man das noch symmetrisch ausgleichen kann?!
Aber mal ehrlich: diese schöne Grundfläche an Küche bekommt eine Arbeitszeile von 3,60... wenn man Herd, Spüle und Ablagefläche für Küchengeräte abzieht, verbleibt eine reine Arbeitsfläche von ca. 1,20. ich finde das reichlich mager und viel zu wenig.
Zu der Arbeitsfläche kommt bei Bedarf ( z.b. beim Backen und groß Kochen) noch der Küchentisch in gleicher Höhe und gleichem Material noch mit dazu. Somit reicht das für uns. Die Küchenarbeitsplatte wird auch eine Tiefe von 75 cm haben.

Grundriss-Dachgeschoss: Flur, Bad, Büro, Abstellraum, Schlafen, Kleiderschrank, 2 Kinderzimmer.
 
kbt09

kbt09


Und jetzt noch das Fenster in der Ankleide versetzen, damit auch an die Wand zum Schlafzimmer Schränke passen. Ich rechne da immer mit Pax-Kleiderschrankmaß incl. Schiebetür mind. 66 cm, also idealerweise 70 cm.
-------------------
Im EG hatte ich gedacht, dass da eine Schiebetür zwischen Küche und Essen kommen soll. So wie jetzt in neuem Grundriss:


ist das dann aber eher ein offener Durchgang. Und, wenn man dann nicht an einem Puppentisch (wie eingezeichnet) sitzt, sondern einem Tisch von 180x90/100 cn, bleibt vom Stuhl aus nicht viel Platz zum Ofen. Könnte ein unangenehm heißer Platz werden.
Angesprochene Küchenplanung .. Tisch in der Planung wie geschildert wird dann aber eher nur von planunten nutzbar sein, da ja der Gang planoben zum Arbeiten genutzt werden soll. Für einen 16 qm großen Küchenraum finde ich die Planung noch optimierbar.

Und wo soll die Terrasse liegen?
 
Zuletzt aktualisiert 23.12.2025
Im Forum Grundrissplanung / Grundstücksplanung gibt es 2554 Themen mit insgesamt 88557 Beiträgen


Ähnliche Themen zu Grundriss Stadtvilla - Was gefällt was nicht?
Nr.ErgebnisBeiträge
1OG Stadtville optimieren. Fenster Bodentief - Seite 16104
2Grundriss Stadtvilla / Anordnung Fenster, Feedback erwünscht - Seite 216
3Pfiffige Schlafzimmer Idee mit Ankleide gesucht 19
4Neubau Einfamilienhaus 150qm Wohnfläche, Saarland - Seite 11141
5Grundriss Schlafzimmer, Ankleide und Bad en Suite - Seite 336
6Grundriss Schlafzimmer mit Bad und Ankleide 62
7Fenster Brüstungshöhe 130 im Schlafzimmer / Arbeitszimmer? - Seite 493
8Wohnen/Essen/Küche: Wie wohnt ihr oder werdet ihr wohnen? - Seite 552
9 Küchenplanung mit tiefen Fenster - Seite 643
10Grundriss Bungalow 150qm geschlossene Küche, überdachte Terrasse 40
11Durchbruch Bad und Ankleide ohne Türe? - Seite 212
12Grundriss Neubau Einfamilienhaus: Fenster/Türen/Innenwände Größe/Anordnung ok? - Seite 220
13Neubau einer ca. 8x11 Doppelhaushälfte, Einschätzung Grundriss und Fenster - Seite 235
14Bungalow 135qm: Grundriss + Fenster - Seite 2104
15Hilfe bei der Anordnung der Fenster benötigt! 32
16Riesiges Problem mit dem Kondenswasser am Fenster 34
17Geschlossene oder offene Küche ? 11
18Sichere Fenster/Haustüre für Randlage - Seite 534
19IKEA Metod Küche - Ideen / Anregungen zum Plan? - Seite 529
20Bestandshaus umbauen - Mehr Platz für Küche und Bad - Ideen? - Seite 220

Oben