Grundriss-Planung Einfamilienhaus mit rund 150 m²

4,10 Stern(e) 34 Votes
Zuletzt aktualisiert 21.11.2025
Sie befinden sich auf der Seite 74 der Diskussion zum Thema: Grundriss-Planung Einfamilienhaus mit rund 150 m²
>> Zum 1. Beitrag <<

11ant

11ant

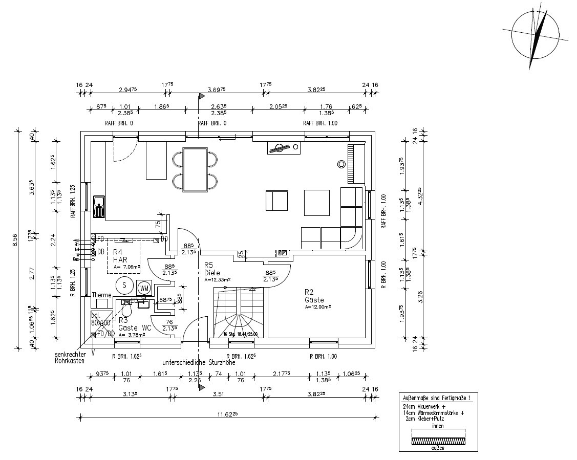
Das wollte ich auch gerade sagen: das Sofa in Beitrag #437 steht schon "nur" in einer Dimension frei (der kurze Schenkel mit Abstand zur Fensterseite) und in der anderen (langer Schenkel) an der Wand, dennoch wird hier (hoffentlich) deutlich sichtbar, daß das "Platz" braucht, weil sonst keine "Weite" mehr dazwischenpaßt - und ohne die wäre es trotz Minimalismus erdrückend.
 
Climbee

Climbee

hmm, ich glaube wirklich, das ist dein Grundproblem. Du siehst zwar was dir irgendwo gefällt, aber du kriegst es nicht hin, dir vorzustellen, wie es in deiner Situation ausschaut. Damit bist du nicht allein, das Problem haben viele. Da du aber anscheinend doch einen gewissen Anspruch daran stellst, wie es dann im Endzustand ausschauen soll, denke ich, du/ihr solltet euch da echt jemanden holen, der euch unterstützt. Sonst kauft ihr euch ein an und für sich tolles Sofa - nur leider für eure Situation total unpassend.

Das Sofa aus dem Bild ist toll, keine Frage. Aber einfach ein Sofa, das für euch unter keinen Umständen in Frage kommt. Wie 11ant schon sagte: selbst das Sofa, das ihr da gerade stehen habt, ist eigentlich zu wuchtig für den Platz. Und das liegt nicht nur daran, daß das keine filigranen Füßchen hat. Die Art Sofa halte ich bei euch nicht für geschickt. Ihr habe eh schon viel Wand und mit so einem Sofa macht ihr noch einen Layer "dicht". Daher würde ich ganz bewußt eine Sofalösung suchen, die eben nicht so eine geschlossene Phalanx ist, sondern "luftiger" wirkt. Ein filigranes Zweiersofa an die Wand unter dem Westfenster, Einzelsessel da, wo jetzt das Sofa steht, weil das Klavierchen (mehr ist das wirklich nicht *g*) ja auch noch "dicht" macht - daneben würde ich kein Sofa mehr stellen. Dann noch einen Sessel in den Raum oder vielleicht besser noch einen passenden Hocker, kein Sessel. Dazwischen die von mir schon angesprochenen Lösungen für Lichtelemente - also Beistelltischchen mit Lampe, Stehlampe oder Bodenlampe.

Der zentrale Tisch in der Mitte wird am wenigstens gebraucht, den würde ich klein und zart halten (wenn man im Sofa fläzt, sind die seitlichen Beistelltischchen viel besser!). Und bitte nie mit einem Deckchen darauf *schüddel*.

Fenstersimse leer räumen - jedenfalls nicht dieses Konglomerat an unterschiedlichen vor sich hin siechenden Pflanzen. Ein Dekoobjekt gut platziert oder eine schöne Orchidee - sonst nichts. Die Fenster sind nicht groß genug um sie so voll zu stellen.
 
Climbee

Climbee

Katja, ich glaube, das Problem ist, daß die TV-Anschlüsse an der anderen Wand sind - also da ist man doch etwas eingeschränkt. Ich hätte auch keine Lust durch's gesamte Wohnzimmer entlang der Außenwand ein Verlängerungskabel zu legen, damit der TV an die andere Seite kann.
 
Climbee

Climbee

Es nicht zu bunt treiben in so einem kleinen Raum - entscheidet euch für einen Farbenstrang. Und da sehr konsequent dran bleiben - auch z.B. bei den Blumentöpfen. Die können unterschiedlich sein, aber alle z.B. weiß oder in einer zu eurem Farbkonzept passenden Farbe.

Das dunkle Sofa, die rote Decke, die bunten Töpfe auf dem Fenster und die sieche Palme im orangen Topf... dann graue Stühle in einem ganz anderen Stil und die Küche, wenn ich es richtig sehe, mit Kassettentüren, oder? Da ist kein roter Faden, der die einzelnen Bereiche verbindet, weder in der Farbe noch vom Stil her.

Macht euch da Gedanken. Die Küche ist jetzt drin und wahrscheinlich neu. Mit Kassettentüren wohl eher in Richtung rustikal (stell doch mal Bilder ein!). Jetzt kann man das durch ziehen, aber wenn ich sehe, was dir anscheinend gefällt und wie der Kamin auch gemacht ist, würde ich die Küche jetzt mal als stand-alone-Objekt rustikal lassen und den Rest ganz bewußt reduziert und zurückhaltend und als Kontrast zu dieser Küche machen. Da kann die Küche in ihrer rustikalen Art ein paar Farbkleckser kriegen (knallrote Küchenmaschine, blauer Toaster oder so), aber der Rest bleibt sehr dezent. Naturfarben, nicht dunkel, minimalistische, "leichte" Formen. Keine wuchtigen Möbel mehr. Auch die Deko zurückhaltend, nicht zu viel, auf keinen Fall, nur ein paar ausgewählte Objekte - das kann auch mal eine einzelne Blüte in einer schlichten Vase sein. Keinen Firlefanz an die Fenster hängen, wie so Dekoketten. Puristisch gelassen wirken die Fenster größer. Ich wäre auch mit zu vielen und zu bunten Bildern vorsichtig. Auch die nur wohldosiert.
 
Zuletzt aktualisiert 21.11.2025
Im Forum Grundrissplanung / Grundstücksplanung gibt es 2535 Themen mit insgesamt 87978 Beiträgen


Ähnliche Themen zu Grundriss-Planung Einfamilienhaus mit rund 150 m²
Nr.ErgebnisBeiträge
1Bodentiefe Fenster - wie Sofa stellen? 12
2Wohnzimmer: Wie Sofa, TV und Schränke stellen? 32
3Einteilung Grundriss Allraum Küche Wohnen Essen - Seite 458
4Heizung in Küche "notwendig"? - Seite 435
5Mögliche Sofa- und TV-Position im Wohnzimmer gesucht. 15
6Planung Wohnraum & Küche eines Doppelhaushälfte in Nürnberg 13
7Küche: geschlossen oder offen? Welche Raumaufteilung? - Seite 286
8Bungalow 135qm: Grundriss + Fenster - Seite 12104
9Varianten zur Anordnung TV- und Sofa-Bereich! - Seite 424
10Bodentiefe Fenster nach außen öffnend, für mehr nutzbaren Platz innen - Seite 333
11Offene Küche bereut oder doch das Non plus Ultra? - Seite 6104
12Grundriss EG Wohnen / Küche - Trennwand - Seite 219
13Geschlossene oder offene Küche ? 11
14Hilfe bei der Anordnung der Fenster benötigt! 32
15Riesiges Problem mit dem Kondenswasser am Fenster 34
16Probleme bei der aufteilung Küche, Essen , Wohnen 16
17 Küchenplanung mit tiefen Fenster 43
18Grundrissfrage, Treppe, Fenster, Ausrichtung 12
19Feedback zur Ikea-Küche - Seite 15167
20Sichere Fenster/Haustüre für Randlage - Seite 534

Oben