Grundriss Einfamilienhaus - Feedback erwünscht

4,00 Stern(e) 3 Votes
Zuletzt aktualisiert 18.11.2025
Sie befinden sich auf der Seite 6 der Diskussion zum Thema: Grundriss Einfamilienhaus - Feedback erwünscht
>> Zum 1. Beitrag <<

A

Alex85

Ist eigentlich nichts anderes, als ein klassischer Schwedenofen. Warum glaubst Du dass er überheizt?
Auch ein klassischer Schwedenofen ist im Neubau problematisch. Man kauft (und bedient) die Öfen heute so, dass sie möglichst wenig Wärme in den Raum abgeben, weil es sonst auf Grund der Dämmung viel zu heiß wird.

Ich habe gerade mal bei Lohberger geschaut und ein 75cm breites Modell heraus gepickt (LC 75A). Der hat eine Heizleistung von 6kw. Dies entspricht etwa der Heizleistung die du brauchst, um im tiefsten Winter das komplette Haus inkl. gefüllter Badewanne angenehm warm zu halten.

Und so ein Feuerchen willst du ganzjährig an einem Punkt im Haus betreiben?
Soll das der einzige Herd sein oder ist das nur für ab und zu als Hobby?

Wo kommt eigentlich die Zuluft für einen solchen Herd her oder sind die raumluftunabhängig? Sonst wären noch weitergehende Maßnahmen zur Zwangsbelüftung notwendig.
 
B

Baufix7

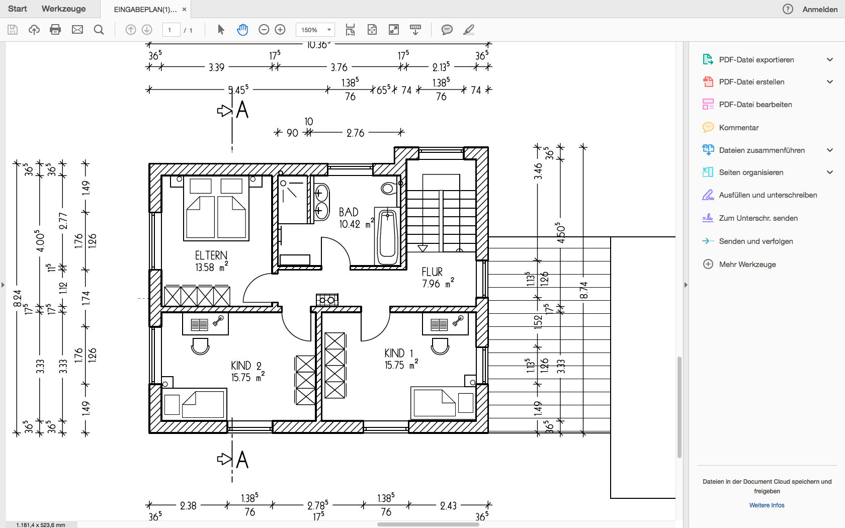
So nun nach langer Zeit und vielen grübeln, mein hoffentlich fast fertiger Plan. Herzlichen Dank an Euch. Ich konnte mehrere Ideen einbauen. Der Holzherd hat übrigens immer noch Platz am Schornstein. wird aber nun wahrscheinlich in den Keller kommen. Ich hoffe mein Grundriss ist nun nicht mehr so daneben....

Grundriss eines Hauses: Elternzimmer, zwei Kinderzimmer, Bad, Flur, Treppe, Terrasse.


Zweistöckiges Haus mit rotem Dach, Glasfronten und Naturgelände im Süden


Zweistöckiges Haus mit rotem Satteldach, großen Glasfronten, Baum links.


Grundriss eines Hauses: offenes Küchen-Essen-Wohnen, WC, Diele, Speis, Treppe, Carport
 
kbt09

kbt09

Warum ist der Ausgang zum Freisitz durch ein Sofa blockiert? Wäre doch sinnvoller den Ausgang beim Esstisch zu setzen.

Wie breit ist denn der Carport? Passt da noch sinnvoll der Eingang hin?

Warum hat das Haus den 50 cm Versatz?

Es scheint sich nicht um ein komplettes Vollgeschoss im OG zu handeln. Kniestock? Dusche im OG prüfen, ob der Duschkopf hoch genug hängen kann.

Kaminschacht im OG steht mehr als ungünstig, Flurbreite wird sich da auf gut 70 cm reduzieren, und das ggü. dem Badausgang. Und wo soll denn im Wohnzimmer mal ein Kamin hin oder ist der Kaminschacht nur weg dem Holzofen im Keller? Was soll der denn im Keller?

Es scheint ja einen Keller zu geben, da halte ich eine echte Speisekammer für eher überflüssig. Frage ist halt, was da rein soll. Warum der Versatz in der EG-Diele?
 
B

Baufix7

Der Grundriss ist so ausgelegt, dass ich das WZ noch abtrennen kann. Es kommt auch eine Sturz direkt vom Gang ins WZ.

Der Kniestock ist ohne Bodenaufbau 2,12. Das müsste für die Brause reichen oder?

Speisekammer soll auch für Staubsauger usw. genutzt werden.

Ja, die 70cm vor der Badtür finde ich auch schlecht. Ich überlege daher das Bad um 20 cm zu kürzen...bin mir nur unsicher zwecks der Anordnung im Bad. Alternative Ideen?

Das Sofa kommt natürlich an die Ostwand.
Zwecks Abtrennung WZ, wollten wir dort eine Tür und nicht nur ein Fenster.

Der Carport ist 3,75. Mir wurde gesagt das reicht für Auto + Eingang.

Ich nutzt meinen Holzofen aktuell zum Backen und möchte das gern auch weiter tun...aus Platzgründen kommt er evtl in den Keller.

Schöne Grüße
 
Y

ypg

Der Schrankplatz im Schlafzimmer wäre nach meiner Meinung für ein Ehepaar viel zu wenig. Zudem lagert man ja auch Bett- und ggf Tischwäsche darin. Da würde ich die Wände auch der anderen Zimmer etwas vermitteln, damit hinter der Tür ein ordentlich langer Kleiderschrank hinpasst.
Dafür gefällt mir das Bad außerordentlich gut. Würde da nur die Tür weiter nach rechts setzen und anders herum anschlagen lassen.
Der Schornstein geht dort absolut nicht. Dafür reicht die Flurbreite nicht aus.
 
Zuletzt aktualisiert 18.11.2025
Im Forum Grundrissplanung / Grundstücksplanung gibt es 2536 Themen mit insgesamt 87964 Beiträgen


Ähnliche Themen zu Grundriss Einfamilienhaus - Feedback erwünscht
Nr.ErgebnisBeiträge
1Grundriss, Hausanordnung EFW 150m2, Keller + Einliegerwohnung - Feedback erwünscht - Seite 967
2Bodentiefe Fenster - wie Sofa stellen? - Seite 212
3Unser Grundriss steht zur Diskussion - Seite 539
4Grundriss Einfamilienhaus mit Keller 19
5Grundriss Einfamilienhaus, ~180m², Keller mit Satteldach - Seite 281
6Grundriss für 11m x 8,25m ok? 43
7Einfamilienhaus ohne Keller - Diskussion Grundriss 19
8Grundriss Bungalow 160-170qm mit Keller - Seite 5175
9Grundriss Einfamilienhaus 2 Vollgeschosse +Keller ca. 130m² Wohnfläche 30
10Grundriss für Einfamilienhaus mit 200m² mit Einliegerwohnung 75 +Keller 140m² +Garage 56m² - Seite 659
11Grundriss Einfamilienhaus 190m2 mit Keller Feedback? 41
12Grundriss Einfamilienhaus ~165m² plus Keller - Seite 6165
13Grundriss Einfamilienhaus-Sattelhaus mit Keller, ca. 200 qm - Seite 1076
14Grundriss Einfamilienhaus in Hanglage mit Keller - Seite 651
15Grundriss Einfamilienhaus 2 Stockwerke ohne Keller 11
16Hilfe beim Grundriss des Hauses, Verbesserungsvorschläge? 28
17Grundriss mit Stift auf Papier - Kritik erwünscht - Seite 340
18Grundriss Einfamilienhaus 8,80 m x 14,00 m 11
19Grundrissfrage, Treppe, Fenster, Ausrichtung 12
20Grundriss im Villenstil - Seite 221

Oben