Grundriss Einfamilienhaus ca. 180 qm

4,90 Stern(e) 10 Votes
Zuletzt aktualisiert 18.11.2025
Sie befinden sich auf der Seite 4 der Diskussion zum Thema: Grundriss Einfamilienhaus ca. 180 qm
>> Zum 1. Beitrag <<

P

Peppoderwilde

Vielen Dank für die zahlreichen Rückmeldungen.

Der Grundriss ist wie folgt entstanden. Wir wollten von Anfang an eine klassische Stadtvilla bauen. Um hierfür ein Raumgefühl zu bekommen haben wir uns einige Häuser im Musterhauspark Kaarst (Viebrockhaus) angesehen. Die dort platzierte Stadtvilla hat uns nicht gefallen. Die anderen Häuser haben uns in Ihrer Bauform nicht gefallen, wir haben sie uns dennoch alle einmal angeschaut. Hierbei ist uns das V480 Edition II ins Auge gestoßen. Auf diesem Grundriss basiert der zuletzt aufgestellte Grundriss. Hier hat uns der offene Wohnbereich besonders gut gefallen.

Ich denke wir haben uns hier in etwas verrannt und wollten dies mit aller Macht umsetzen ohne das uns dabei aufgefallen ist, dass dies in einer Katastrophe endet. Ihr habt uns hier die Augen geöffnet.

Also back to the roots...

Hier auch noch die Liste, die im ersten Beitrag fehlte.

Bebauungsplan/Einschränkungen
Größe des Grundstücks: ca. 600 qm
Hang : nein
Grundflächenzahl: 0,6
Geschossflächenzahl
Baufenster, Baulinie und -grenze
Randbebauung
Anzahl Stellplatz
Geschossigkeit: 2
Dachform: Walmdach
Stilrichtung: keine
Ausrichtung:
Maximale Höhen/Begrenzungen
weitere Vorgaben

Anforderungen der Bauherren
Stilrichtung, Dachform, Gebäudetyp: Stadtvilla
Keller, Geschosse: nein
Anzahl der Personen, Alter: 2 Erwachsene / 2 Kleinkinder
Raumbedarf im EG, OG
Büro: Familiennutzung oder Homeoffice? nicht zwingend erforderlich.
Schlafgäste pro Jahr: 2-3
offene oder geschlossene Architektur
konservativ oder moderne Bauweise: modern
offene Küche, Kochinsel: gewünscht
Anzahl Essplätze: 1
Kamin: nein
Musik/Stereowand: nein
Balkon, Dachterrasse: nein
Garage, Carport: Doppelgarage
Nutzgarten, Treibhaus: nein
weitere Wünsche/Besonderheiten/Tagesablauf, gern auch Begründungen, warum dieses oder das nicht sein soll

Hausentwurf
Von wem stammt die Planung: Bauzeichnerin
-Planer eines Bauunternehmens: ja
-Architekt
-Do-it-Yourself
Was gefällt besonders? Warum?: offener Wohn- / Essbereich , die Kinderzimmer gefallen uns gut.
Was gefällt nicht? Warum? Die Küche gefällt uns noch nicht. Das Badezimmer ist in unseren Augen noch nicht stimmig.
Preisschätzung lt Architekt/Planer:
Persönliches Preislimit fürs Haus, inkl Ausstattung:
favorisierte Heiztechnik:

Wenn Ihr verzichten müsst, auf welche Details/Ausbauten
-könnt Ihr verzichten:
-könnt Ihr nicht verzichten: große Kinderzimmer

Warum ist der Entwurf so geworden, wie er jetzt ist? ZB
Standardentwurf vom Planer? Freie Planung
Entsprechende/Welche Wünsche wurden vom Architekten umgesetzt? Wir würden gerne einen freistehenden Kühlschrank haben. Dies wurde in dem Grundriss berücksichtigt, ist in unseren Augen aber noch nicht ganz stimmig.
Ein Gemisch aus vielen Beispielen aus div. Magazinen...
Was macht ihn in Euren Augen besonders gut oder schlecht?

Wir haben den letzten Grundriss komplett verworfen und uns wieder auf die ursprüngliche Planung konzentriert. Hierbei ist der folgenden Entwurf entstanden.

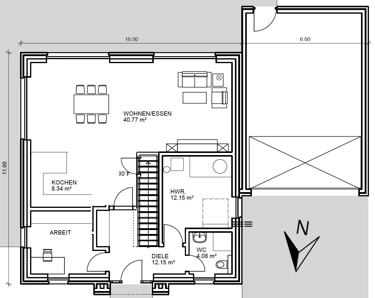
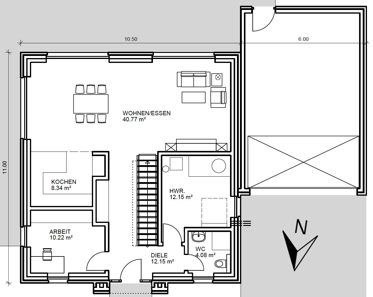
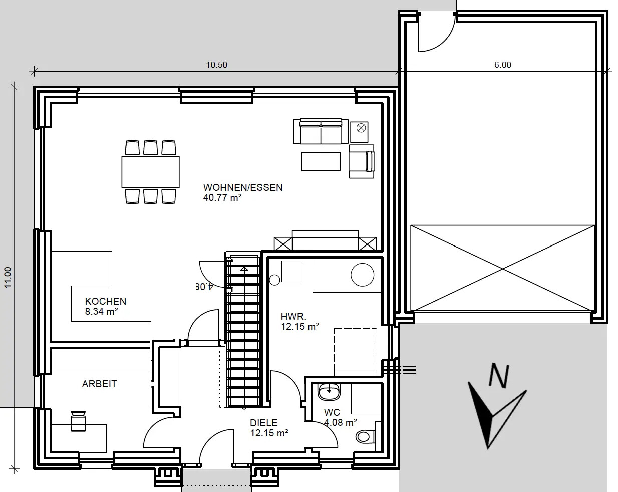
Grundriss: Offener Wohn-/Essbereich mit Küche, Arbeitszimmer, Diele, HWR, WC, Treppe, Garage.


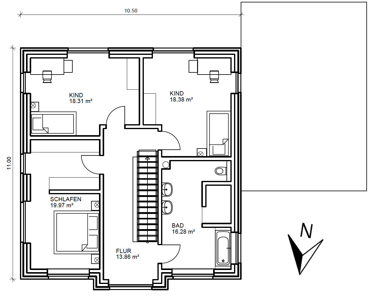
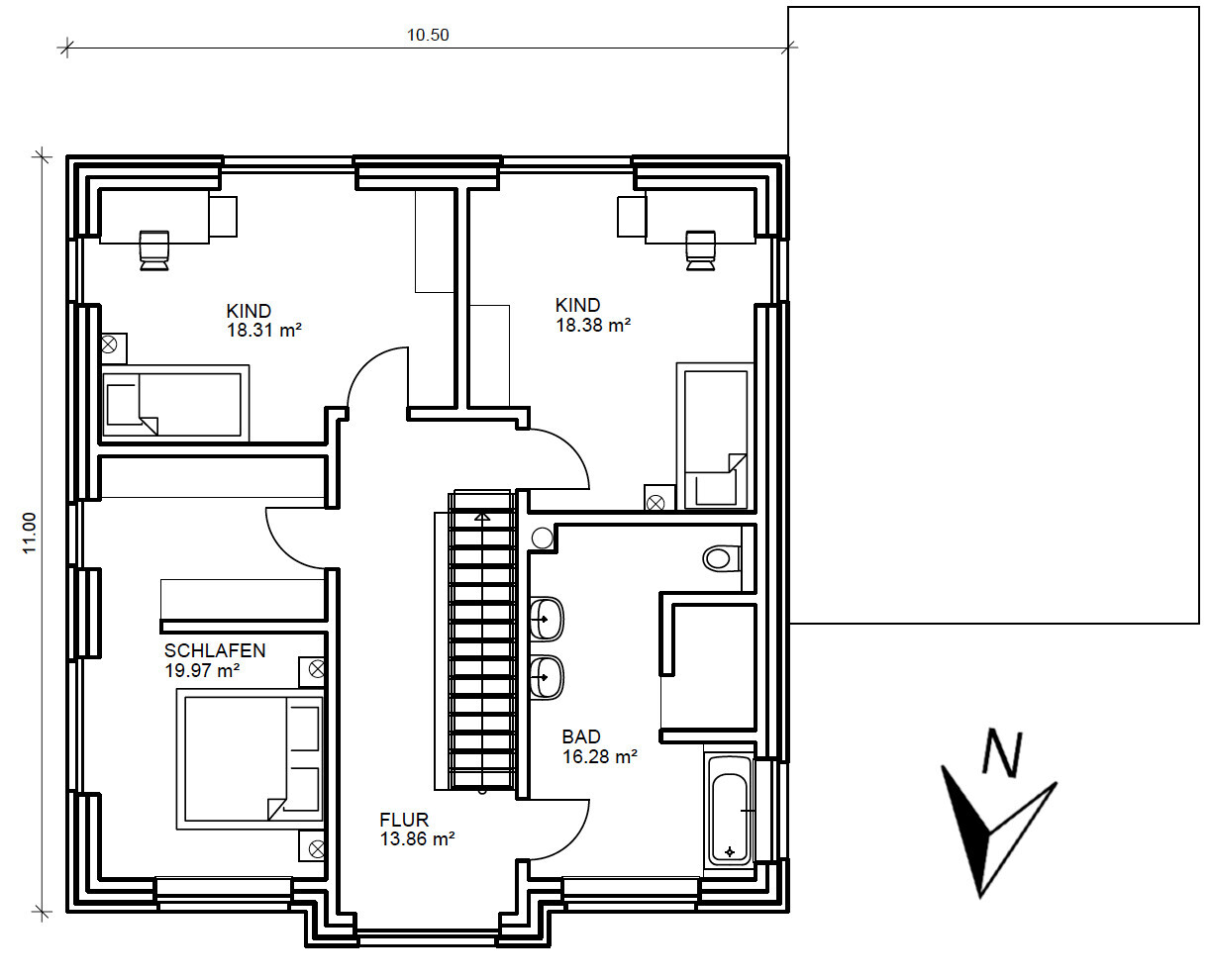
Grundriss eines Hauses: zwei Kinderzimmer, Schlafzimmer, Flur, Bad und Treppenhaus
 
K a t j a

K a t j a

Wichtig wäre, mal den Lageplan (Grundstück mit eingezeichnetem Haus platziert) zu sehen. Dann könnten wir konkrete Vorschläge rauskramen, wo evtl. alle Wünsche vereint wurden.
Die Küche ist ja hier nicht so der Brüller.
Muss die Treppe eine Gerade sein?
 
P

Peppoderwilde

Habe den Grundriss mal auf unser Grundstück ( Eckgrundstück ) geschoben. Ich glaube ich habe den Nordpfeil im ersten Grundriss falsch gesetzt :p Jetzt passt es. Eine gerade Treppe hätten wir schon gerne. Welche Treppenform würdest du hier eher sehen ? Die Küche könnte echt noch etwas anders gestaltet werden. Hier haben wir allerdings noch keine Idee.:rolleyes:

Grundriss eines Hauses in blauer Bauzone; rote Grenze, gelber Hintergrund, Nordpfeil.
 
K a t j a

K a t j a

Das ist knapper, als ich dachte. Sorry aber da braucht es dann doch noch wenigstens die Breite des Baufensters.
 
P

Peppoderwilde

Im vorderen Bereich des Baufensters ca. 16,5 m und im hinteren Bereich des Baufensters ca. 17,0 m Breite.
 
K a t j a

K a t j a

Bei den Maßen finde ich diesen Entwurf nicht so verkehrt. Man könnte die Küche noch öffnen - der Mehrwert ist aber nicht spektakulär:


Grundriss eines Hauses mit Wohn- und Essbereich, Küche, Diele und HWR


Die Doppelgarage frisst Euren wertvollen Bauplatz. Wie wichtig ist die? Gibt es Alternativen wie z.B. kompaktes Carport näher zur Straße? Mindestabstand zur Straße vorgeschrieben?
 
Zuletzt aktualisiert 18.11.2025
Im Forum Grundrissplanung / Grundstücksplanung gibt es 2536 Themen mit insgesamt 87965 Beiträgen


Ähnliche Themen zu Grundriss Einfamilienhaus ca. 180 qm
Nr.ErgebnisBeiträge
1Einfamilienhaus,Zwei Varianten Grundriss vom Architekt 39
2Grundriss-Optimierung 155 qm Einfamilienhaus 44
3Grundriss-Entwurf Einfamilienhaus in Hanglage, Einliegerwohnung, Doppelgarage - Seite 271
4Entwurf Grundriss Neubau Stadtvilla >160 m² 14
5Grundriss Bungalow - Was gibt es zu beachten? - Seite 6164
6Grundrissplanung 130qm Stadtvilla mit zwei Vollgeschossen 37
7Grundrissentwurf Einfamilienhaus mit VPD und Doppelgarage 15
8Grundriss-Bewertung - was haltet ihr von dem ersten Grundriss? 15
9Grundrissplanung Stadtvilla, flachgeneigtes Dach 33
10Grundriss Einfamilienhaus 190qm mit Doppelgarage und Frontgarten - Ideen - Seite 220
11Vorentwurf Grundriss Einfamilienhaus mit Doppelgarage, Feedback 23
12Grundriss Stadtvilla - Bitte um Anregungen 60
13Grundriss für 200qm Stadtvilla - Wünsche umsetzbar? 98
14Standard Grundriss Stadtvilla 133qm Meinungen 38
15Grundriss-Entwurf für Einfamilienhaus 135 qm - Ideen und Ratschläge gesucht 29
16Hausbau 2.0 - erster Grundriss-Entwurf 155
17Grundriss Einfamilienhaus ohne Keller, 3 Kinderzimmer und Büro 18
18Grundriss Stadtvilla 164 qm2 Massiv auf Hinterliegergrundstück - Seite 325
19Bitte schaut kritisch über unseren Grundriss-Entwurf 13
20Grundrissplanung / Entwurf Einfamilienhaus Flachdach mit Doppelgarage 87

Oben