Grundriss Einfamilienhaus ca. 180 qm

4,90 Stern(e) 10 Votes
Zuletzt aktualisiert 18.11.2025
Sie befinden sich auf der Seite 7 der Diskussion zum Thema: Grundriss Einfamilienhaus ca. 180 qm
>> Zum 1. Beitrag <<

kbt09

kbt09

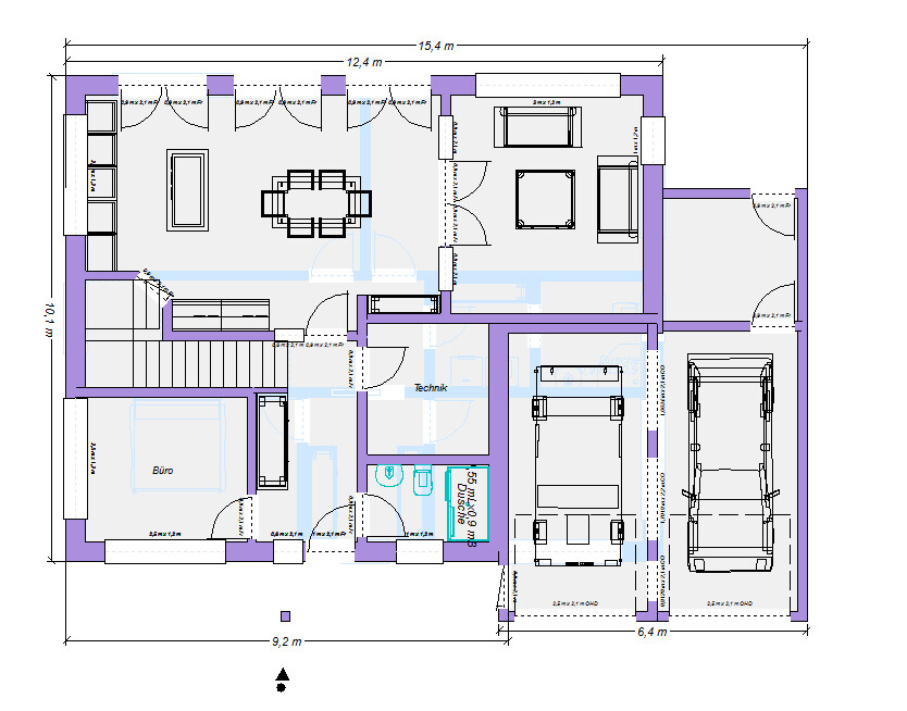
Ich habe mal in meinen "alten" Grundrissen gewühlt und den folgenden gefunden. Den hänge ich mal im Original an, im Lageplan habe ich das EG einmal an der Längsachse gespiegelt eingesetzt. Damit wäre der Hauseingang dann planlinks.
Dazu einen Carport mit Aufbewahrungsanbau.

Mich stört an den sonst gerade mal Außenbreite 6 m Garagen direkt am Haus und an der Grundstücksgrenze immer, dass Fahrradunterbringung etc. maximal erschwert wird, wenn die Garage von 2 Autos benutzt ist. Daher finde ich es immer gut, wenn man den Aufbewahrungsbereich von Straße UND Garten erreichen kann.

Zum Grundriss:
- Küchenstauraum unter der Treppe
- HAR gleich planoben links (in der gespiegelten Version)
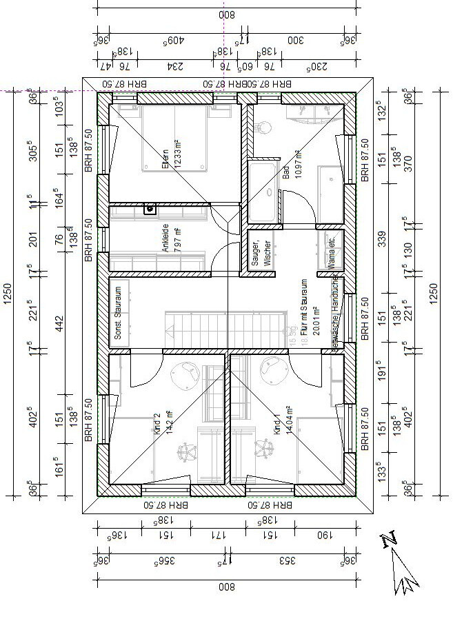
- Hauswirtschaftsraum im Grunde im OG vorm Bad
- im OG auch Platz im Flur für allgemeinen Stauraum. Bei der Spiegelung könnte man sich entschließen, das Flurfenster lieber auf der Ostseite zu lassen.
- Mit Zaun von "Aufbewahrung draußen" bis zur Hauswand kann man auch eine Art gemütliche Innenhofecke im Südwesten gestalten.

Lageplan: Grundriss eines Gebäudes mit Grenzlinien, Maßangaben und Nordausrichtung.


Alter Originalgrundriss (wie gesagt, im Lageplan bereits gespiegelt, Nordpfeil stimmt bis auf ein paar Grad)
EG
Grundriss eines Hauses: Wohnzimmer, Küche, Diele, Schlafzimmer und Treppe.
und OG
Grundrissplan eines Hauses von oben mit Zimmern, Abmessungen und Nordpfeil.
 
kbt09

kbt09

Der Beispielgrundriss hat übrigens insgesamt "nur" 150qm.

Was ich noch nicht sehe, sind die Bebauungsplan-Vorgaben. Das hat ja @11ant auch schon bemängelt. Auf Seite 4 in der Wunschliste steht Walmdach .. das wäre natürlich bei dem Beispiel eher unpraktisch, sondern ein nicht so steiles Satteldach wäre hier sinnvoll.
 
K a t j a

K a t j a

Man könnte eine Garage überbauen, falls die Anordnung der Wohnräume als I präferiert wird.
Treppe im Beispiel = Podesttreppe. Straße planunten. Beim OG gäbe es noch Alternativen, falls dieses nicht gefällt.


Grundriss eines Hauses mit Büro, Technikraum, Küche, Wohnzimmer, Essbereich und Doppelgarage.


Grundriss eines Hauses: zwei Küchen, Schlafzimmer, Bad, Waschküche, Dusche, Flur, Garage mit Auto.


Zweistöckiges Haus mit grauer Fassade, dunklem Dach, vorderer Veranda und zwei Garagen mit Einfahrt


Zweistöckiges graues Haus mit vielen Fenstern, Vordach am Eingang, auf grasigem Gelände.


Zweistöckiges graues Haus mit Fenstern und Glasfronten auf grünem Rasen unter blauem Himmel.
 
kbt09

kbt09

Ich finde das OG gut aufgeteilt.

Aber, ist es nicht so, dass wenn die Garage quasi Bestandteil des Hauses ist, dass sie dann die 3 m Grenzabstand einhalten muss? Ich bin mir jetzt nicht sicher, ob diese Hausgestaltung davon betroffen wäre.
 
Zuletzt aktualisiert 18.11.2025
Im Forum Grundrissplanung / Grundstücksplanung gibt es 2536 Themen mit insgesamt 87966 Beiträgen


Ähnliche Themen zu Grundriss Einfamilienhaus ca. 180 qm
Nr.ErgebnisBeiträge
1 2 Vollgeschosse, Durchgang Garage, Hauswirtschaftsraum unter Treppe 25
2Grundriss Einfamilienhaus / Garage im EG? 10
3Frage zu Lageplan - 3m Abstand Pflicht? 12
4Grundriss, längliches Einfamilienhaus, integrierte Garage kein Keller 16
5Grundriss Einfamilienhaus (ca. 170 qm) mit Garage - Hanglage 35
6Grundriss 140 m2 Einfamilienhaus mit Garage - Hausausrichtung ok? - Seite 218
7Einfamilienhaus mit Garage am leichten Hang 17
8Grundriss: 150qm Einfamilienhaus+Einliegerwohnung - Carport / Garage + Schuppen / Werkstatt - Seite 545
9Grundriss Einfamilienhaus mit Keller und Garage - Seite 650
10Grundriss Einfamilienhaus 240 m² mit teilüberbauter Garage 96
11Ideen für Anbau über Garage zusätzlicher Wohnraum - Seite 224
12Grundriss Einfamilienhaus 136m² mit Garage & Keller 17
13Grundrissplanung und Überdachung Garage 11
14Grundriss Einfamilienhaus ca. 135 m³, Grundriss. Garage, 1,5 Geschossig, 4 Personen 11
15Haus ohne Garage und Keller? Ausbau Dachboden? Fresswarze? - Seite 585
16Grundstück - Baufenster - Lage von Haus und Garage - Seite 544
17Lage von Haus & Garage im Baufenster planen *Vorplanung* - Seite 4129
18Grundriss verbessern Einfamilienhaus 1 1/2 geschossig - Seite 642
19Garage direkt an Einfamilienhaus. Fundament ausreichend? 20
20Hausfinanzierung - Haus, Garage und Bodenplatte ca. 290.000 EUR 11

Oben