Grundriss Einfamilienhaus, 140 qm mit Keller

4,40 Stern(e) 5 Votes
Zuletzt aktualisiert 04.10.2025
Sie befinden sich auf der Seite 2 der Diskussion zum Thema: Grundriss Einfamilienhaus, 140 qm mit Keller
>> Zum 1. Beitrag <<

B

Bieber0815

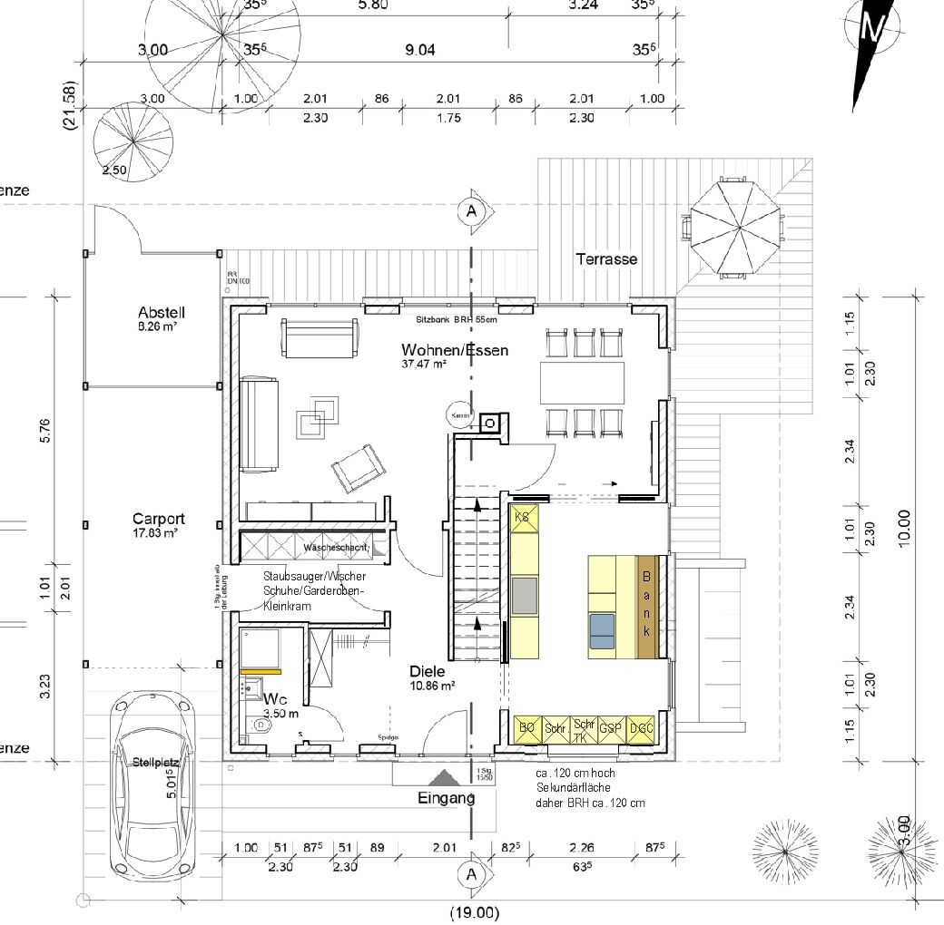
Mir gefällt der Grundriss auch. Den Abstellraum im EG wird man gerne nutzen (Schuhe, Staubsauger, Getränkevorrat ...). Man kann aber auch zugunsten eines repräsentativen und großzügigen Eingangsbereichs (mit Garderobe), diesen Abstellraum verkleinern.

Den Abstellraum im OG kann man ersatzlos streichen, dann erhält man einen schönen Flur mit Licht.

Bitte schaut euch mal die Steigung der Treppe an. Mir kommt sie eher steil vor, das sollte man prüfen.
 
Y

ypg

Ich habe auch wenig zu mosern
Allerdings hat mich auf den ersten Blick die Küchenaufteilung gestört und bin da gedanklich auch hängen geblieben. Mir sagen die Hochschränke am äussersten Ende nicht zu. Da kann man nicht schnell mal das Huhn aus dem Ofen raus und wieder rein oder die Pommes wenden. Blech raus und auf der Insel ablegen, um dann Richtung Spüle... irgendwie behagt mir das nicht. Und nun sehe ich sogar, dass dieser Zwischengang ja so ziemlich schmal ist. Kühlschrank kommt da sicherlich auch in die Ecke...
Auch wenn die Küche sehr wahrscheinlich ein Platzhalter ist, fällt mir ad hoc aber auch nichts besseres ein...
Leider ist die Küche sehr schmal... Die Größe des HWRs haben wir tatsächlich als TK/Hauswirtschaftsraum, summa summarum habt Ihr einen Keller für das Büro...
Dafür ist planlinks zu viel, planrechts (Küche) zu wenig Raum. Dzu kommt dann die Kellertreppe, die vom WZ aus geht. Mal nen Fahrrad oder die Gartenmöbel relaxt nach unten, ist nicht. Und wenn die Kinder flügge werden mit Partyraum und Freunde, müssen die dann auch durchs WZ

Warum denn der Keller, anstatt mehr Wohnfläche im EG und OG dafür ohne Keller???
 
kbt09

kbt09

So, hier mal wie angedeutet mein Küchenvorschlag.

Fenster planunten schmaler, Brüstungshöhe ca. 120 cm ... dann können da unter dem Fenster erhöhte Geschirrspüler und Schränke stehen. Evtl. sogar durchgehend in 120 cm Höhe .. Man nennt dies auch Sekundärabstellfläche. Hier haben Kaffeevollautomat, Kaffeemaschinen etc. sehr gut Platz. Backöfen, Kombidampfgarer etc. können hier integriert werden.

Planoben links in der Küche dann der Kühlschrank .. könnte dann auch sehr gut ein Stand-Alone sein. Der ist vom Essbereich, Terrasse, Kochzeile und Vorbereitungsinsel gleich gut zu erreichen.

Planlinks die Kochzeile aus 3x90er Unterschränken und in der Mitte die Spüleninsel, die nach rechts 40 cm Überstand hat und dort am Wandstück eine Sitzbank mit Sitzhöhe ca. 63 cm.

-------------
Vom Wohnbereich würde ich den Abgang in den Keller mit Wand schließen und am Übergang Kochen/Essen dann eine Tür, die die Kellertreppe erschließt.

------------
Hauswirtschaftsraum auch mal kleiner ... das wird ja eigentlich der Raum für Staubsauger, Wischer, Schuhe, Schals, Mützen, Einkaufstaschen etc. und dafür den Eingangsbereich etwas weitläufiger.

In der EG-Dusche wird die Dusche ja wohl über die gesamte Raumbreite gehen und nur wie orange eingezeichnet eine Trennwand .. Gemauert oder Glas haben --- oder?

Grundriss EG: Eingang, Diele, Wohn/Esszimmer, Küche, WC, Abstellraum, Carport, Terrasse.
 
J

jfwes

Vielen Dank für die sehr konstruktive Kritik. Die Idee von Kbt09, wie der Abstellraum zugunsten der Diele erweitert werden kann, gefällt mir gut. Würden Schrank und Stange da dann vermutlich tauschen und da einen Schrank eines großen schwedischen Einrichtungshauses "einmauern" - also so quasi als Einbauschrank. Die Dusche im EG hätten wir wirklich gerne begehbar... Das sieht mir auf der Zeichnung aber eng aus. Oder? Möglicherweise könnte man mit der größeren Diele auch die planlinke wand des Bads etwas verschieben. Die Küche ist bisher wirklich noch hauptsächlich Platzhalter.
Die Idee, den Eingang zur Kellertreppe zur Küche zu machen ist interessant. Was genau hat dich dazu bewogen, das so einzuzeichnen? Wenn es geht, hätten wir da auch gerne ne Schiebetür.

Wäscheschacht im Flur ist super. Den Abstellraum oben würden wir weglassen. Vielleicht sogar da doppelte Dachfenster hinmachen, damit der Flur wirklich hell ist.
 
J

jfwes

Zur Steigung der Treppe müssen wir mal den Architekten befragen. Da kann ich als Laie nichts zu sagen
Könnte mir schon vorstellen, dass die so steil wie möglich ist, weil das Haus ja kurz ist.
Es ist schon so, dass das Büro den Ausschlag gegeben hat, einen Keller zu bauen. Leider ist das Grundstück ja wirklich nicht sehr groß, aber hier in der Gegend war das schon sehr schwierig zu bekommen und zu bezahlen.
Über eine größere Solaranlage haben wir uns noch keine Gedanken gemacht, deshalb stört uns der Kamin auf der Südseite noch nicht.
 
Zuletzt aktualisiert 04.10.2025
Im Forum Grundrissplanung / Grundstücksplanung gibt es 2509 Themen mit insgesamt 87147 Beiträgen


Ähnliche Themen zu Grundriss Einfamilienhaus, 140 qm mit Keller
Nr.ErgebnisBeiträge
1Grundriss Zugang von Küche in Speis / Abstellraum - Seite 329
2Speisekammer vs. größere Küche vs. Hauswirtschaftsraum - Seite 213
3Küche und Abstellraum Etagenwohnung Grundriss optimieren 34
4 2 Vollgeschosse, Durchgang Garage, Hauswirtschaftsraum unter Treppe 25
5Grundrissplanung für schmales Grundstück - Seite 216
6Grundrissplanung: Flur im EG breit genug? - Seite 357
7Grundriss 170m2 - Hauswirtschaftsraum zu klein? Verbesserungsvorschläge? - Seite 642
8Wie findet ihr unseren Grundriss??? - Seite 221
9Fliesen oder Vinyl in Küche und Flur 19
10Geschlossene Küche planen mit Durchgang zum Hauswirtschaftsraum - Seite 318
11Grundrissoptimierung Einfamilienhaus mit Keller auf kleinem Grundstück 178
12Eigenheim Bauen? Grundstück in Aussicht - Seite 219
13Grundriss, Ideen zur räumlichen Trennung innerhalb der Küche 23
14Wohnen/Essen/Küche: Wie wohnt ihr oder werdet ihr wohnen? - Seite 852
15Grundrissfrage. Grundstück 369qm. Hausgröße 9x9 Meter 20
16Küche: geschlossen oder offen? Welche Raumaufteilung? - Seite 1486
17130 m² Bungalow mit Doppelcarport bei 600m² Grundstück? - Seite 364
18Grundrissplanung für schmales Grundstück, 2. Versuch. 14
19Welcher Bodenbelag im Eingang/Flur? Wer hat Erfahrungen? Bilder? 14
20Wie das Haus auf das Grundstück stellen - Tipps erbeten :-) - Seite 213

Oben