Grundriss Einfamilienhaus, 140 qm mit Keller

4,40 Stern(e) 5 Votes
Zuletzt aktualisiert 19.11.2025
Sie befinden sich auf der Seite 6 der Diskussion zum Thema: Grundriss Einfamilienhaus, 140 qm mit Keller
>> Zum 1. Beitrag <<

J

jfwes

Ne, wir sind Chaoten... Zugang durch den Voratsraum geht nicht... ich versuche noch mal meine Lösung zu zeichnen.
 
kbt09

kbt09

Nachdem ihr einen Keller habt, sollte eigentlich dieser Bereich dort nicht chaotisch werden. Und, wer chaotisch werden will, muss halt sein Zeugs im Keller ablegen.

Sonst habe ich da ja nur Schrank angedacht
 
kbt09

kbt09

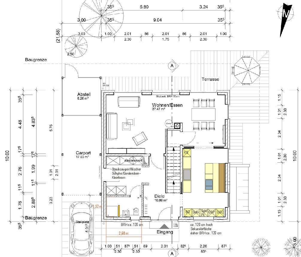
@ypg ... es sind "nur" 4,48 m und Stummel weg so wie jetzt:

Grundriss eines Hauses: Wohnen/Essen, Diele, Küche, Terrasse, Carport, Abstellraum.


Evtl. kann man ja wirklich mit der Wand noch 20 bis 50 cm nach planunten. Mehr braucht es aber meiner Meinung nach nicht. Allerdings gibt es dann Schwierigkeiten mit dem Wäscheschacht von oben.
 
J

jfwes

Okay. Wenn das Wohnzimmer tief genug ist, muss man die wand wirklich nicht verschieben. Der wandstummel kann wirklich weg...

Wo würdeSt du den Kamin denn hinmachen, Yvonne?
 
Y

ypg

@ypg ... es sind "nur" 4,48 m und Stummel weg so wie jetzt:
Anhang anzeigen 13029

Evtl. kann man ja wirklich mit der Wand noch 20 bis 50 cm nach planunten. Mehr braucht es aber meiner Meinung nach nicht. Allerdings gibt es dann Schwierigkeiten mit dem Wäscheschacht von oben.
4,48... jetzt seh ich es auch... gibt kleinere Maße, kleiner sollte es aber nicht sein . Vielleicht könnte man mal für einen Finalplan ein Orientierungsmasz für diesen Schacht einzeichnen? Dann die Wand entsprechend vermitteln.
Man könnte den Schacht auch etwas ins WZ reinragen lassen, so ca. 30 cm - dann entsteht an der Wand eine Art Nische, in der man Borde einbauen kann.

Kamin finde ich gut so - leicht zur Sitzecke gedreht... Ich finde es etwas schade, dass man den Kamin nicht von der Küche aus sieht.


Grüsse
 
Zuletzt aktualisiert 19.11.2025
Im Forum Grundrissplanung / Grundstücksplanung gibt es 2536 Themen mit insgesamt 87971 Beiträgen


Ähnliche Themen zu Grundriss Einfamilienhaus, 140 qm mit Keller
Nr.ErgebnisBeiträge
1Erster Entwurf Einfamilienhaus 150m² mit Keller 38
2Grundrissplanung für Einfamilienhaus mit Keller auf Hanggrundstück 23
3Einfamilienhaus mit Keller und Doppelgarage 9,2x11m Grundriss-Plan optimieren 20
4Einfamilienhaus zwei Vollgeschosse, Pultdach, kein Keller 31
5Grundrissplanung Stadtvilla Neubau mit Keller 36
6Optimierungsbedarf? Einfamilienhaus mit 130 m² + Keller 26
7Neubau Einfamilienhaus ~160m² + Keller - Erster Entwurf 46
8Grundriss Einfamilienhaus ca. 200qm Doppelgarage Keller - Seite 432
9Einfamilienhaus-Optimierung und -Planung (180qm + DG ohne Keller) 159
10Kontrollierte-Wohnraumlüftung + Kamin + Abluft für Küche, funktioniert das? - Seite 256
11Einfamilienhaus mit Keller in Hanglage - Meinungen (Dachform, allgemein) 26
12Einfamilienhaus Bauhausstil/Flachdach, 2 Vollgeschosse + Keller 23
13Grundrissidee 200qm (+ exkl. Keller) Satteldach 30
14Grundriss für Einfamilienhaus mit 200m² mit Einliegerwohnung 75 +Keller 140m² +Garage 56m² 59
15Grundrissoptimierung - Kamin-Problem - Seite 546
16Budget für Bau eines Einfamilienhaus mit WU-Beton Keller - Seite 227
17Grundriss Einfamilienhaus ca. 160m², Haupteingang im Keller, Nordhang 1700m² 52
18Mögliches Baugrundstück - Schacht auf Grundstück - Seite 228
19Feuchter Keller von innen oder außen? - Seite 315
20Wasser im Schacht der Hebeanlage 19

Oben