Grundriss Einfamilienhaus, 140 qm mit Keller

4,40 Stern(e) 5 Votes
Zuletzt aktualisiert 04.10.2025
Sie befinden sich auf der Seite 5 der Diskussion zum Thema: Grundriss Einfamilienhaus, 140 qm mit Keller
>> Zum 1. Beitrag <<

J

jfwes

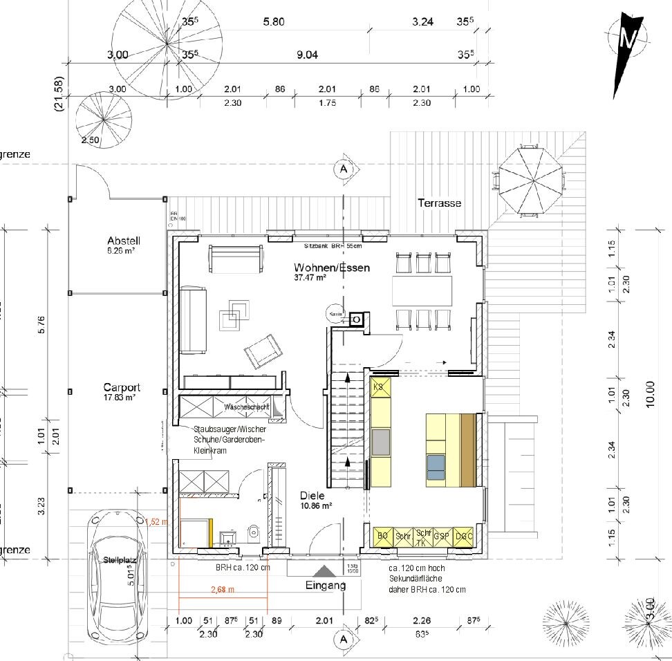
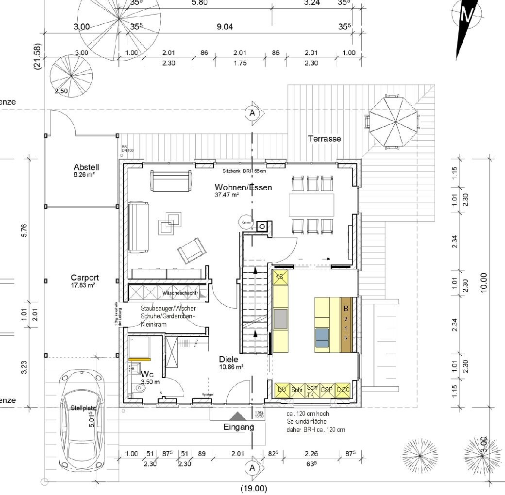
Haben uns jetzt dazu entschieden, die Treppe nach oben doch an der Haustür zu lassen... Die Treppe ist ja schon zentral für das Haus. Das Schmuckstück im Prinzip, die wollen wir nicht verstecken.

Überlegen halt immer noch, wo der Kamin hin soll.
Außerdem könnte man überlegen, das Gästebad im neuen Plan weiter nach planlinks auszudehnen und dafür flacher anzulegen.
 
J

jfwes

Oh, planrechts ausdehnen.
und dafür nicht so tief. Dann könnte der Voratsraum weiter nach planunten rücken. Und man würde im Wohnzimmer vielleicht einen Meter mehr gewinnen auf Kosten der Diele. Bin gerade unterwegs. Kann das später skizzieren.
Was denkst du zur Kamin-Position?
 
kbt09

kbt09

Mit dem Kamin habe ich doch geschrieben .. so ähnlich wi in der Zeichnung von Beitrag 26.

Was soll 1 m dem Wohnzimmer bringen? Ist die Einrichtung da so in etwa, wie ihr es haben wollt?
 
J

jfwes

Oh sorry, den Satz über der Skizze hatte ich übersehen auf den Handy. Der Durchgang wird dann nicht zu eng durch den Kamin?

Eigentlich ist das Wohnzimmer so, wie es sein soll. Hab nur versucht, verkehrsflächen zu reduzieren
Ist vielleicht auch nicht nötig.
 
kbt09

kbt09

Gäste-Bad vielleicht so?

Grundriss: Haus mit Wohnen/Essen, Diele, Küche, Schlafzimmer, Terrasse, Carport.


Am Eingang dann Schuhregale und Offene Garderobe für die aktuellen Jacken oder Gäste

Im Durchgangsbereich zum Carport dann die restliche Garderobe, Schuhe, Einkaufstaschen, Staubsauger, Wischer etc. .. Pax ... die 2x75er z. B. mit Spiegeltüren.

EDIT:
Nee, Durchgang Kamin ist nicht zu klein. Sollten doch mind. 150 cm sein.
 
Zuletzt aktualisiert 04.10.2025
Im Forum Grundrissplanung / Grundstücksplanung gibt es 2509 Themen mit insgesamt 87147 Beiträgen


Ähnliche Themen zu Grundriss Einfamilienhaus, 140 qm mit Keller
Nr.ErgebnisBeiträge
1Grundriss: Offenes Wohnzimmer inkl. Kamin - Feedback 11
2Treppe im Wohnzimmer als Hype - Pro & Contra? - Seite 426
3 2 Vollgeschosse, Durchgang Garage, Hauswirtschaftsraum unter Treppe 25
4Grundrissplanung Wohnzimmer und Flur zu schmal? 21
5Planung Einfamilienhaus - Grundrisse und Ansichten 23
6Wohnzimmer: Wie Sofa, TV und Schränke stellen? 32
7Kamin innen- oder außenliegend? - Seite 222
8Grundrissplanung Wohnzimmer-Küche 18
9Kamin und kohlenstoffmonoxid - Seite 329
103. Zimmer im 40qm Wohnzimmer unterkriegen. Ideen - Seite 374
11Wohnzimmer / Esszimmer gestalten. Ideen gesucht 10
12Luftwärmepumpe und Wasserführender Kamin - Erfahrungen 12
13Ist ein Kamin heute noch sinnvoll im Neubaut - Erfahrungen? - Seite 1063
14Einseitiger oder zweiseitiger Kamin - Seite 550
15Wärmepumpe und wasserführender Kamin kombinieren - Seite 260
16Wohin mit der Treppe? Dachausbau Walmdachbungalow - Seite 319
17Wohnzimmer Grundrissplanungs-Ideen? - Seite 239
18Treppe im Flur, Grundriss steht eigentlich schon :o( 20
19Grundrissfrage, Treppe, Fenster, Ausrichtung 12
20Fenster / Türen / Garderobe 13

Oben