Grundriss Einfamilienhaus 1 Vollgeschoss Technik und Tageslicht

4,90 Stern(e) 14 Votes
Zuletzt aktualisiert 12.01.2026
Sie befinden sich auf der Seite 13 der Diskussion zum Thema: Grundriss Einfamilienhaus 1 Vollgeschoss Technik und Tageslicht
>> Zum 1. Beitrag <<

K

klabauter8614

Ok, hab zwar keine Erfahrung mit Wintergärten, aber gut zu wissen, was die Möglichkeiten sind.
Apropos Möglichkeiten, wenn ich den Gast abends nicht mit dem TV Programm belästigen will, wo passt das Gästezimmer dann hin? Wohl nur links vom Eingang hin, anstelle von TK oder links von der Küche oder?
 
K a t j a

K a t j a

Apropos Möglichkeiten, wenn ich den Gast abends nicht mit dem TV Programm belästigen will, wo passt das Gästezimmer dann hin? Wohl nur links vom Eingang hin, anstelle von TK oder links von der Küche oder?
Du meinst, Deine Wände sind so dünn und Du drehst regelmäßig Nachts den Gruselschocker des Monats auf volle Lautstärke? Ich würde einfach die Wand dicker machen bzw. besser gegen Schall isolieren, wenn die Oma sonst aus dem Schlaf gerissen würde.
 
K

klabauter8614

Oh die zweite Variante hat auch einige interessante Möglichkeiten. Ich hoffe, nächste Woche kommt der neue Entwurf, vielleicht auch mit Details zum Dach, dann können wir mal vergleichen. Wäre schön, den Grundriss mit max 2 updates zu fixieren.
 
K

klabauter8614

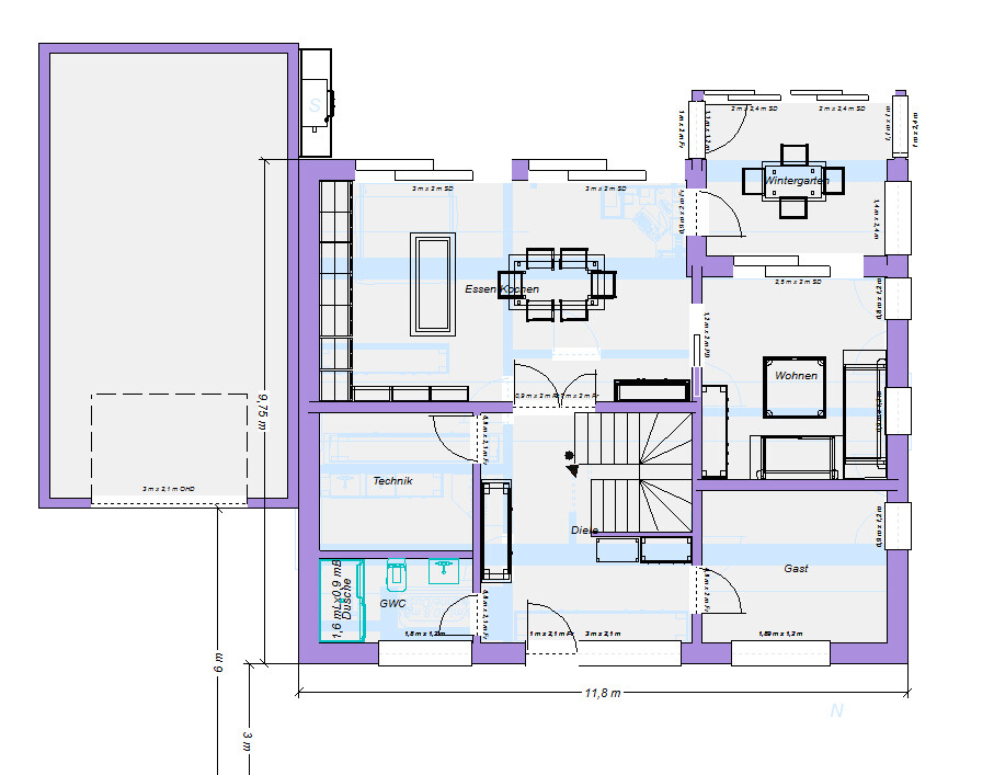
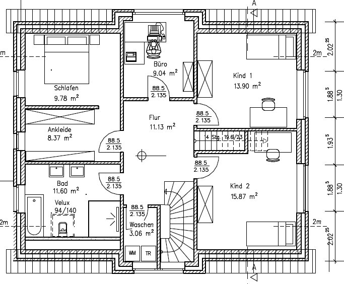
So hier der neueste Entwurf. Eigentlich hatten wir gesagt, das OG so zu lassen wie vorher, aber gut. Beim EG, ich weiß nicht recht.
Architektonischer Hausquerschnitt mit Speicher, Gästezimmer, Wohnen, Kind 1 und Kind 2, Treppe.

Grundriss eines Hauses: Garage, Heizung, HWR, Diele, Küche/Essen, Wohnen, Gästezimmer, Terrasse.

Grundriss eines Dachgeschosses: Schlafzimmer, Ankleide, Bad, Flur, Büro und zwei Kinderzimmer.
 
Zuletzt aktualisiert 12.01.2026
Im Forum Grundrissplanung / Grundstücksplanung gibt es 2565 Themen mit insgesamt 88794 Beiträgen


Ähnliche Themen zu Grundriss Einfamilienhaus 1 Vollgeschoss Technik und Tageslicht
Nr.ErgebnisBeiträge
1Grundriss erster Entwurf - Meinungen erwünscht 21
2Entwurf Grundriss Bungalow Meinungen 22
3Einfamilienhaus-Grundriss Entwurf - Seite 223
4Unser Grundriss-Entwurf, eure Meinungen - Seite 220
5Bauen mit GU - Angebot vom GU inkl. Entwurf - Seite 322
6Ideen zu Entwurf für Einfamilienhaus mit Keller - Seite 347
7Entwurf - alle Richtungen bei Neubau vom Einfamilienhaus 91
8Entwurf Einfamilienhaus mit Garage/Carport - bitte um Bewertung 22
9Grundriss-Entwurf Stadtvilla Feedback - Seite 213
10Erster Entwurf Einfamilienhaus 150m² mit Keller 38
11Grundriss-Entwurf Stadtvilla mit Doppelgarage - Seite 238
12Haus-Entwurf Einfamilienhaus - Zukünftig als Zweifamilienhaus trennbar - Seite 572
131. Entwurf Grundriss Einfamilienhaus 150 qm 50
14Erster Entwurf Grundriss Einfamilienhaus (ca. 200qm) - Bitte um Feedback 46
15Meinungen zu unserem Grundriss Entwurf erwünscht - Seite 470
16Allererster Grundriss-Entwurf des Erdgeschosses 267
17Einfamilienhaus - Meinungen zu unserem Entwurf - Seite 11159
18Grundrissplanung / Entwurf Einfamilienhaus Flachdach mit Doppelgarage - Seite 787
19Einfamilienhaus mit 190qm - Was hält ihr von dem Entwurf? Feedback? 51
20Entwurf für ein Einfamilienhaus mit 160-180qm - Verbesserungsvorschläge? - Seite 7122

Oben