ᐅ Grundriss Einfamilienhaus 1,5 + Keller / 1. Vorentwurf - Vorschläge?
Erstellt am: 06.01.22 19:25
A
Andi1980Ein freundliches „Hallo“ in die Runde 🙂
nach langem Warten haben wir endlich einen Bauplatz in einen Neubaugebiet kaufen können und möchten uns nun den Traum eines Eigenheims erfüllen. Wir beschäftigen uns nun schon seit ein paar Monaten mit dem für uns optimalen Grundriss. Wir sind mit dem Ergebnis soweit ganz zufrieden.
Was ist generell zum Grundriss zu sagen? Was gefällt euch gut oder wo seht ihr Verbesserungsbedarf? Wir lesen uns zwar schon einige Zeit ein und sind fleißige, stille Mitleser hier im Forum, aber wir denken, ihr seht vielleicht eher die Stellen, wo man nochmal nachbessern könnte. Wo seht ihr Schwächen? Wir freuen uns auf konstruktive Kritik und eure Rückmeldungen!
Im Voraus herzlichen Dank!
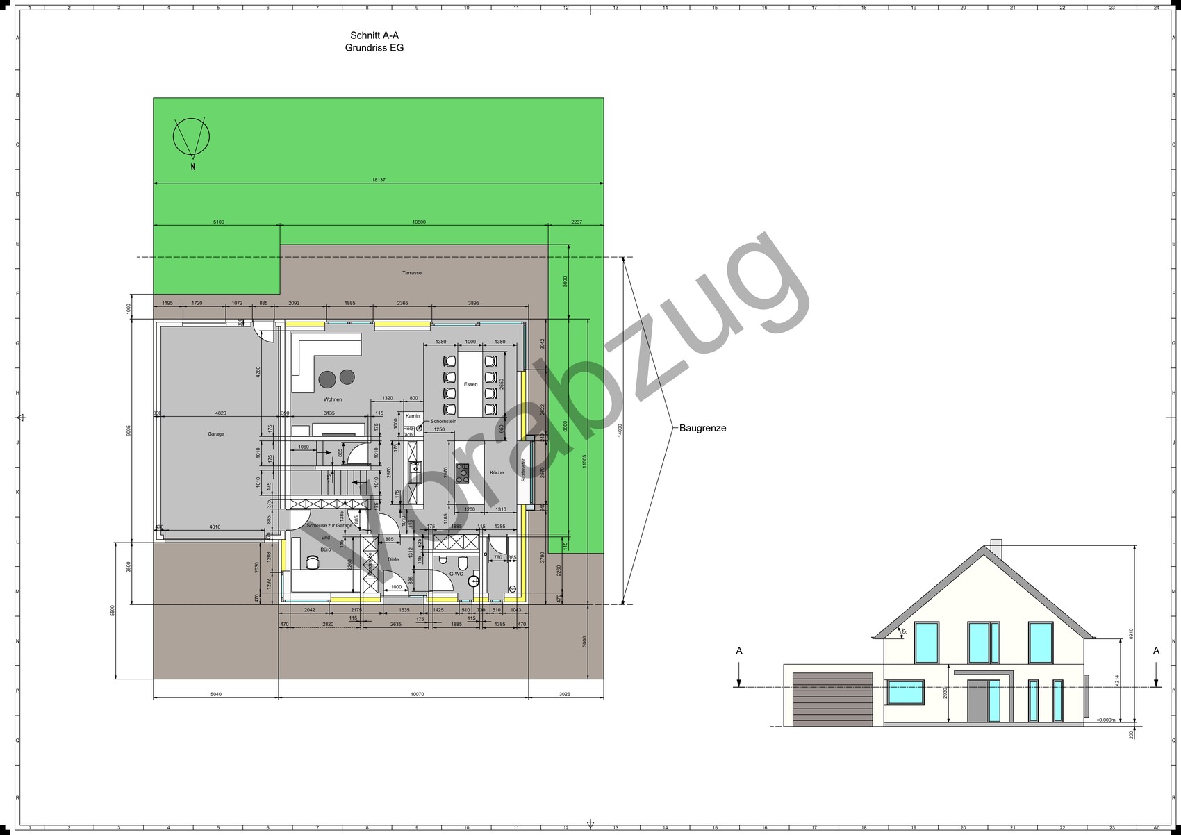
Bebauungsplan/Einschränkungen
Größe des Grundstücks: 435 m²
Hang: nein
Grundflächenzahl: 04
Geschossflächenzahl: 08
Anzahl Stellplatz: 2
Geschossigkeit: vom Bungalow bis 2 Vollgeschosse alles möglich
Dachform: offen
Ausrichtung: offen
Maximale Höhen/Begrenzungen: Firsthöhe 10 m, Traufenhöhe 6,50 m
Anforderungen der Bauherren
Stilrichtung, Dachform, Gebäudetyp: Einfamilienhaus mit Satteldach, modern
Keller, Geschosse: Mit Keller, 1,5 Geschoss
Anzahl der Personen, Alter: 3
Raumbedarf im EG, OG
Büro: Familiennutzung oder Homeoffice?: Homeoffice
Schlafgäste pro Jahr: Häufig
offene oder geschlossene Architektur: offen
konservativ oder moderne Bauweise: konservativ
offene Küche, Kochinsel: Ja
Anzahl Essplätze: 6-8
Kamin: Ja
Balkon, Dachterrasse: Nein
Garage, Carport: Ja
Hausentwurf
Von wem stammt die Planung: Do-It-Yourself
Was gefällt besonders? Warum?
Großer, offener Wohnbereich, Treppe im Wohnbereich, Zugang zur Garage vom Haus
Was gefällt nicht? Warum?
Die Garage ist auf Grund der geringen Grundstücksbreite zu schmal, wir hätten gerne eine Doppelgarage gebaut.
Persönliches Preislimit fürs Haus, inkl Ausstattung: 480 K
favorisierte Heiztechnik: Erdwärme, Fußbodenheizung, Photovoltaikanlage auf’s Dach
Wenn Ihr verzichten müsst, auf welche Details/Ausbauten
-könnt Ihr verzichten:
Sauna
-könnt Ihr nicht verzichten:
große Küche, offene Raumgestaltung, Büro im Erdgeschoss, Gästezimmer, großes Ankleidezimmer, Zugang zur Garage vom Haus
Warum ist der Entwurf so geworden, wie er jetzt ist? ZB
Der Entwurf hat sich auf Grund unser Wünsche und Ideen „so“ entwickelt – wir haben versucht diese bestmöglich für das schmale Grundstück umzusetzen. Außerdem haben wir noch verschiedene Musterhäuser besucht und natürlich unzählige Grundrisse im Internet durchforstet.
Vielen Dank fürs lesen und liebe Grüße
Andi1980


nach langem Warten haben wir endlich einen Bauplatz in einen Neubaugebiet kaufen können und möchten uns nun den Traum eines Eigenheims erfüllen. Wir beschäftigen uns nun schon seit ein paar Monaten mit dem für uns optimalen Grundriss. Wir sind mit dem Ergebnis soweit ganz zufrieden.
Was ist generell zum Grundriss zu sagen? Was gefällt euch gut oder wo seht ihr Verbesserungsbedarf? Wir lesen uns zwar schon einige Zeit ein und sind fleißige, stille Mitleser hier im Forum, aber wir denken, ihr seht vielleicht eher die Stellen, wo man nochmal nachbessern könnte. Wo seht ihr Schwächen? Wir freuen uns auf konstruktive Kritik und eure Rückmeldungen!
Im Voraus herzlichen Dank!
Bebauungsplan/Einschränkungen
Größe des Grundstücks: 435 m²
Hang: nein
Grundflächenzahl: 04
Geschossflächenzahl: 08
Anzahl Stellplatz: 2
Geschossigkeit: vom Bungalow bis 2 Vollgeschosse alles möglich
Dachform: offen
Ausrichtung: offen
Maximale Höhen/Begrenzungen: Firsthöhe 10 m, Traufenhöhe 6,50 m
Anforderungen der Bauherren
Stilrichtung, Dachform, Gebäudetyp: Einfamilienhaus mit Satteldach, modern
Keller, Geschosse: Mit Keller, 1,5 Geschoss
Anzahl der Personen, Alter: 3
Raumbedarf im EG, OG
Büro: Familiennutzung oder Homeoffice?: Homeoffice
Schlafgäste pro Jahr: Häufig
offene oder geschlossene Architektur: offen
konservativ oder moderne Bauweise: konservativ
offene Küche, Kochinsel: Ja
Anzahl Essplätze: 6-8
Kamin: Ja
Balkon, Dachterrasse: Nein
Garage, Carport: Ja
Hausentwurf
Von wem stammt die Planung: Do-It-Yourself
Was gefällt besonders? Warum?
Großer, offener Wohnbereich, Treppe im Wohnbereich, Zugang zur Garage vom Haus
Was gefällt nicht? Warum?
Die Garage ist auf Grund der geringen Grundstücksbreite zu schmal, wir hätten gerne eine Doppelgarage gebaut.
Persönliches Preislimit fürs Haus, inkl Ausstattung: 480 K
favorisierte Heiztechnik: Erdwärme, Fußbodenheizung, Photovoltaikanlage auf’s Dach
Wenn Ihr verzichten müsst, auf welche Details/Ausbauten
-könnt Ihr verzichten:
Sauna
-könnt Ihr nicht verzichten:
große Küche, offene Raumgestaltung, Büro im Erdgeschoss, Gästezimmer, großes Ankleidezimmer, Zugang zur Garage vom Haus
Warum ist der Entwurf so geworden, wie er jetzt ist? ZB
Der Entwurf hat sich auf Grund unser Wünsche und Ideen „so“ entwickelt – wir haben versucht diese bestmöglich für das schmale Grundstück umzusetzen. Außerdem haben wir noch verschiedene Musterhäuser besucht und natürlich unzählige Grundrisse im Internet durchforstet.
Vielen Dank fürs lesen und liebe Grüße
Andi1980
Andi1980 schrieb:
Wir freuen uns auf konstruktive Kritik und eure Rückmeldungen!Grundsätzlich gerne, aber vielleicht solltest Du Deine Gigapixel-Bilder hier erst einmal lesbar hochladen, z.B. einzeln statt Grundrisse und Ansichten auf einem gemeinsamen Bild, und maximal 2000 Pixel breit.https://www.instagram.com/11antgmxde/
https://www.linkedin.com/company/bauen-jetzt/
@11ant sogar ich kann das gut erkennen 😀
Grundätzlich gefällt mir die Idee. Ich würde allerdings die Tür Garage/Büro streichen, die Speis in Frage stellen, (so wie sie ist passt noch nicht einmal ein Gefrierschrank rein), die Türen auf den normalen Standard von 95 verbreitern und das Budget bei den Ausführungen (Eckfenster, Sitzfenster, Keller, Photovoltaik) um 100000€+ erhöhen.
Die Raumwirkung durch den Flur Richtung WZ vom Eingang aus ist sehr trüb.
Allerdings hast Du oben einen 2-Geschosser, denn die Dachneigung wurde nicht berücksichtigt: Toilette, Dusche und Treppe dürften bei einem Kniestock von 100/130 nicht funktionieren.
Grundätzlich gefällt mir die Idee. Ich würde allerdings die Tür Garage/Büro streichen, die Speis in Frage stellen, (so wie sie ist passt noch nicht einmal ein Gefrierschrank rein), die Türen auf den normalen Standard von 95 verbreitern und das Budget bei den Ausführungen (Eckfenster, Sitzfenster, Keller, Photovoltaik) um 100000€+ erhöhen.
Die Raumwirkung durch den Flur Richtung WZ vom Eingang aus ist sehr trüb.
Allerdings hast Du oben einen 2-Geschosser, denn die Dachneigung wurde nicht berücksichtigt: Toilette, Dusche und Treppe dürften bei einem Kniestock von 100/130 nicht funktionieren.
Ich finde es angenehm unaufgeregt und schlicht. Ich schliesse mich allerdings @ypg bei folgenden Punkten an:
V.a. der Punkt mit dem 2-Geschosser bedarf allerdings der Klärung bevor wir hier weiter diskutieren. Wo verläuft die 2m Linie im DG?
ypg schrieb:
Ich würde allerdings die Tür Garage/Büro streichen, die Speis in Frage stellen
...
Allerdings hast Du oben einen 2-Geschosser, denn die Dachneigung wurde nicht berücksichtigt: Toilette, Dusche und Treppe dürften bei einem Kniestock von 100/130 nicht funktionieren.
V.a. der Punkt mit dem 2-Geschosser bedarf allerdings der Klärung bevor wir hier weiter diskutieren. Wo verläuft die 2m Linie im DG?
Hangman schrieb:
V.a. der Punkt mit dem 2-Geschosser bedarf allerdings der Klärung bevor wir hier weiter diskutieren. Wo verläuft die 2m Linie im DG?Deshalb muss man auch nicht ins Detail gehen. Auch Budget-mäßig fehlt es ja an dem Keller.Ich finde das allerdings immer merkwürdig, wenn Fragesteller ihre Frage einstellen und dann nicht mehr online gehen, bzw interessiert sind. Ich wäre auch als Mann neugierig, was man so davon hält.
Ähnliche Themen