ᐅ Grundriss Einfamilienhaus 1 Vollgeschoss Technik und Tageslicht
Erstellt am: 22.07.24 08:21
K
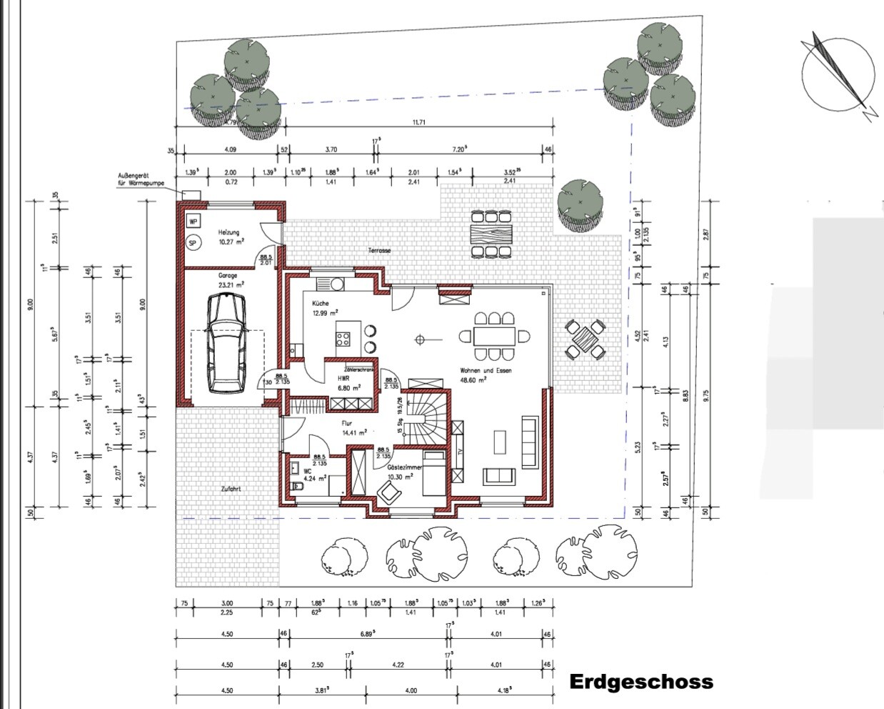
klabauter861422.07.24 08:21Hallo, ich würde gerne Feedback versammeln für den Grundriss, um den Entwurf zu fixieren. Schnitte und Höhen haben wir nicht, ansonsten sind alle Zeichnungen im Anhang (Haus im Lageplan schematisch). Danke
Bebauungsplan/Einschränkungen
Größe des Grundstücks: 473
Hang: nein
Grundflächenzahl: 0,4
Geschossflächenzahl
Baufenster, Baulinie und -grenze
Randbebauung
Anzahl Stellplatz: maximal 2 ohne Garage
Geschossigkeit: 1 Vollgeschoss
Dachform: Satteldach
Stilrichtung
Ausrichtung: Dach NNO - SSW
Maximale Höhen/Begrenzungen: Traufhöhe 4,2m, Firsthöhe 9,5m.
weitere Vorgaben: nur regenerative Energieträger, Muldenversickerung
Anforderungen der Bauherren
Stilrichtung, Dachform, Gebäudetyp
Keller, Geschosse: ohne Keller (GW bei 1m Tiefe), 1 Vollgeschoss
Anzahl der Personen, Alter: 4, 40-40-7-2J
Raumbedarf im EG, OG: EG Gästezimmer, OG Büro.
Büro: Familiennutzung oder Homeoffice? Homeoffice
Schlafgäste pro Jahr: Jede Woche 2 Nächte ein Elternteil (auch noch für die nächsten Jahre), Schwiegereltern alle Jahre mehrere Wochen
offene oder geschlossene Architektur
konservativ oder moderne Bauweise
offene Küche, Kochinsel: Halb offen (Schiebetür), Kochinsel
Anzahl Essplätze: fest 6, erweiterbar
Kamin: nein
Musik/Stereowand: nein
Balkon, Dachterrasse: nein
Garage, Carport: Garage
Nutzgarten, Treibhaus: Kräutergarten
weitere Wünsche/Besonderheiten/Tagesablauf, gern auch Begründungen, warum dieses oder das nicht sein soll
Hausentwurf
Von wem stammt die Planung:
-Synergie Architekt + Bauherr, 4. Entwurf jetzt
Was gefällt besonders? Warum? Gästezimmer und WC + Dusche, ähnliche Konstruktion bereits jetzt, funktioniert (ist zwar ein Bett gezeichnet, ist aber Schlafsofa), Büro im Norden, KZ Größe mehr als ausreichend, Garderobe am Eingang, WZ hell, WM+TR im OG.
Was gefällt nicht? Warum?
- Hauswirtschaftsraum ist zur Hälfte nicht nutzbar durch den Einschub der Garderobe (welche eigentlich sinnvoll ist) und damit zu klein, Speicher muss aus Garage in die thermische Hülle in den Hauswirtschaftsraum, Innengerät könnte da bleiben. Kontrollierte-Wohnraumlüftung müsste auch noch in den Hauswirtschaftsraum. Mögliche Lösung: Küche nach hinten vergrößern und Hauswirtschaftsraum entsprechend erweitern. Haus wird dadurch aber noch größer... Andere Lösung bis jetzt nicht thematisiert.
- Treppe zu steil, Architekt schlägt jetzt 17,2/26 vor. Das wäre dann wohl grenzwertig Schrittmaß.
- Tageslicht in den Kinderzimmern könnte wenig sein durch die Fensterausrichtung West und ~12,5% Fensterfläche/Raumgröße, müsste man sich vielleicht in einer Simulation angucken. Velux würde das nicht viel verbessern, nur eine Gaube und dann kleinere Fenster im Giebel.
- So wir die Kücheninsel gezeichnet ist, passt es mir nicht, zu enger Durchgang vom Hauswirtschaftsraum. Müsste auf die andere Seite und die Spüle + Fenster nach links.
- Im Schlafzimmer und KZ müssten noch Klimaanlagen hin, aber das sieht so nicht praktikabel aus mit Fenstern und Schränken.
- Dusche im OG an der Schräge, muss nicht sein. Ist aber ein untergeordneter Punkt.
- Oberlicht Gäste-WC nicht auf Kopfhöhe, etwas höher, ebenfalls Kleinigkeit
- Tür Bad OG sollte nach außen öffnen
- Fehlt noch Stauraum unter der Treppe
- Wand in Garage muss nicht sein
Preisschätzung laut Architekt/Planer: kA
Persönliches Preislimit fürs Haus, inkl. Ausstattung: 650k
favorisierte Heiztechnik: Luftwärmepumpe
Wenn Ihr verzichten müsst, auf welche Details/Ausbauten
-könnt Ihr verzichten: Ankleide
-könnt Ihr nicht verzichten: Büro, GZ
Warum ist der Entwurf so geworden, wie er jetzt ist?
Eigener Entwurf auf Basis von Raumbedarf und Gegenentwurf Architekt weiterentwickelt
Was macht ihn in Euren Augen besonders gut oder schlecht?
Wichtigsten Punkte zu klären sind Hauswirtschaftsraum + Technik und Tageslicht.






Bebauungsplan/Einschränkungen
Größe des Grundstücks: 473
Hang: nein
Grundflächenzahl: 0,4
Geschossflächenzahl
Baufenster, Baulinie und -grenze
Randbebauung
Anzahl Stellplatz: maximal 2 ohne Garage
Geschossigkeit: 1 Vollgeschoss
Dachform: Satteldach
Stilrichtung
Ausrichtung: Dach NNO - SSW
Maximale Höhen/Begrenzungen: Traufhöhe 4,2m, Firsthöhe 9,5m.
weitere Vorgaben: nur regenerative Energieträger, Muldenversickerung
Anforderungen der Bauherren
Stilrichtung, Dachform, Gebäudetyp
Keller, Geschosse: ohne Keller (GW bei 1m Tiefe), 1 Vollgeschoss
Anzahl der Personen, Alter: 4, 40-40-7-2J
Raumbedarf im EG, OG: EG Gästezimmer, OG Büro.
Büro: Familiennutzung oder Homeoffice? Homeoffice
Schlafgäste pro Jahr: Jede Woche 2 Nächte ein Elternteil (auch noch für die nächsten Jahre), Schwiegereltern alle Jahre mehrere Wochen
offene oder geschlossene Architektur
konservativ oder moderne Bauweise
offene Küche, Kochinsel: Halb offen (Schiebetür), Kochinsel
Anzahl Essplätze: fest 6, erweiterbar
Kamin: nein
Musik/Stereowand: nein
Balkon, Dachterrasse: nein
Garage, Carport: Garage
Nutzgarten, Treibhaus: Kräutergarten
weitere Wünsche/Besonderheiten/Tagesablauf, gern auch Begründungen, warum dieses oder das nicht sein soll
Hausentwurf
Von wem stammt die Planung:
-Synergie Architekt + Bauherr, 4. Entwurf jetzt
Was gefällt besonders? Warum? Gästezimmer und WC + Dusche, ähnliche Konstruktion bereits jetzt, funktioniert (ist zwar ein Bett gezeichnet, ist aber Schlafsofa), Büro im Norden, KZ Größe mehr als ausreichend, Garderobe am Eingang, WZ hell, WM+TR im OG.
Was gefällt nicht? Warum?
- Hauswirtschaftsraum ist zur Hälfte nicht nutzbar durch den Einschub der Garderobe (welche eigentlich sinnvoll ist) und damit zu klein, Speicher muss aus Garage in die thermische Hülle in den Hauswirtschaftsraum, Innengerät könnte da bleiben. Kontrollierte-Wohnraumlüftung müsste auch noch in den Hauswirtschaftsraum. Mögliche Lösung: Küche nach hinten vergrößern und Hauswirtschaftsraum entsprechend erweitern. Haus wird dadurch aber noch größer... Andere Lösung bis jetzt nicht thematisiert.
- Treppe zu steil, Architekt schlägt jetzt 17,2/26 vor. Das wäre dann wohl grenzwertig Schrittmaß.
- Tageslicht in den Kinderzimmern könnte wenig sein durch die Fensterausrichtung West und ~12,5% Fensterfläche/Raumgröße, müsste man sich vielleicht in einer Simulation angucken. Velux würde das nicht viel verbessern, nur eine Gaube und dann kleinere Fenster im Giebel.
- So wir die Kücheninsel gezeichnet ist, passt es mir nicht, zu enger Durchgang vom Hauswirtschaftsraum. Müsste auf die andere Seite und die Spüle + Fenster nach links.
- Im Schlafzimmer und KZ müssten noch Klimaanlagen hin, aber das sieht so nicht praktikabel aus mit Fenstern und Schränken.
- Dusche im OG an der Schräge, muss nicht sein. Ist aber ein untergeordneter Punkt.
- Oberlicht Gäste-WC nicht auf Kopfhöhe, etwas höher, ebenfalls Kleinigkeit
- Tür Bad OG sollte nach außen öffnen
- Fehlt noch Stauraum unter der Treppe
- Wand in Garage muss nicht sein
Preisschätzung laut Architekt/Planer: kA
Persönliches Preislimit fürs Haus, inkl. Ausstattung: 650k
favorisierte Heiztechnik: Luftwärmepumpe
Wenn Ihr verzichten müsst, auf welche Details/Ausbauten
-könnt Ihr verzichten: Ankleide
-könnt Ihr nicht verzichten: Büro, GZ
Warum ist der Entwurf so geworden, wie er jetzt ist?
Eigener Entwurf auf Basis von Raumbedarf und Gegenentwurf Architekt weiterentwickelt
Was macht ihn in Euren Augen besonders gut oder schlecht?
Wichtigsten Punkte zu klären sind Hauswirtschaftsraum + Technik und Tageslicht.
N
nordanney22.07.24 11:00klabauter8614 schrieb:
Persönliches Preislimit fürs Haus, inkl. Ausstattung: 650kBudget überdenken. Ist ein sehr großes Haus mit Garage für einen schmalen Taler. Für Grundrisse sind andere zuständig.
klabauter8614 schrieb:
Hauswirtschaftsraum ist zur Hälfte nicht nutzbar durch den Einschub der Garderobe (welche eigentlich sinnvoll ist) und damit zu kleinNee, der Hauswirtschaftsraum ist nicht nutzbar wegen der zwei Türen.Was soll dnen da rein?
Und warum eine Tür, wenn doch die Eingangstür genau daneben liegt?
Je mehr ich drauf schaue, desto verwinkelter finde ich den Zugang zum Allraum. Dafür ist mir dann das Sofa dann doch gefühlt zu weit weg.
HAR ist viel zu klein für Deine Multifunktion. Und der Allraum ist alles zu langgezogen.
hier mal mein Vorschlag, allerdings nur als Skizze zu sehen. Die Treppe müsste vergrößert werden und gespiegelt, die Pappwände angepasst.


HAR ist viel zu klein für Deine Multifunktion. Und der Allraum ist alles zu langgezogen.
hier mal mein Vorschlag, allerdings nur als Skizze zu sehen. Die Treppe müsste vergrößert werden und gespiegelt, die Pappwände angepasst.
K
K a t j a23.07.24 05:29ypg schrieb:
Je mehr ich drauf schaue, desto verwinkelter finde ich den Zugang zum Allraum. Dafür ist mir dann das Sofa dann doch gefühlt zu weit weg.
HAR ist viel zu klein für Deine Multifunktion. Und der Allraum ist alles zu langgezogen.
hier mal mein Vorschlag, allerdings nur als Skizze zu sehen. Die Treppe müsste vergrößert werden und gespiegelt, die Pappwände angepasst.Bin voll bei Dir. Was mich am Ausgangsentwurf am meisten stört ist diese wenig einladende Diele. Man kommt rein und geht in ein dunkles Loch mit Treppe. Der Ausweg liegt verwinkelt, eng und unscheinbar um die Ecke.Deine Skizze ist dagegen schon besser. Ich würde ihn noch drehen und spiegeln, bis der Eingang wieder Planlinks liegt. Möglicherweise dann noch die Treppe austauschen, um einfacher alle Räume im EG zu erschließen.
K a t j a schrieb:
Ich würde ihn noch drehen und spiegeln, bis der Eingang wieder Planlinks liegt.So fing ich an.Allerdings ist oben nur ein kleines Platzfenster für die Treppe. Und so meidet man auch oben wirre Gänge.
Es war auch immer die Treppe im EG im Weg.
Ähnliche Themen