ᐅ Grundriss-Check Doppelhaushälfte - Optimierung allgemein + Stauraum
Erstellt am: 08.12.24 18:28
A
AllaFeinBebauungsplan/Einschränkungen
Größe des Grundstücks: 342 qm (11 m x 31 m)
Grundflächenzahl: -
Geschossflächenzahl: -
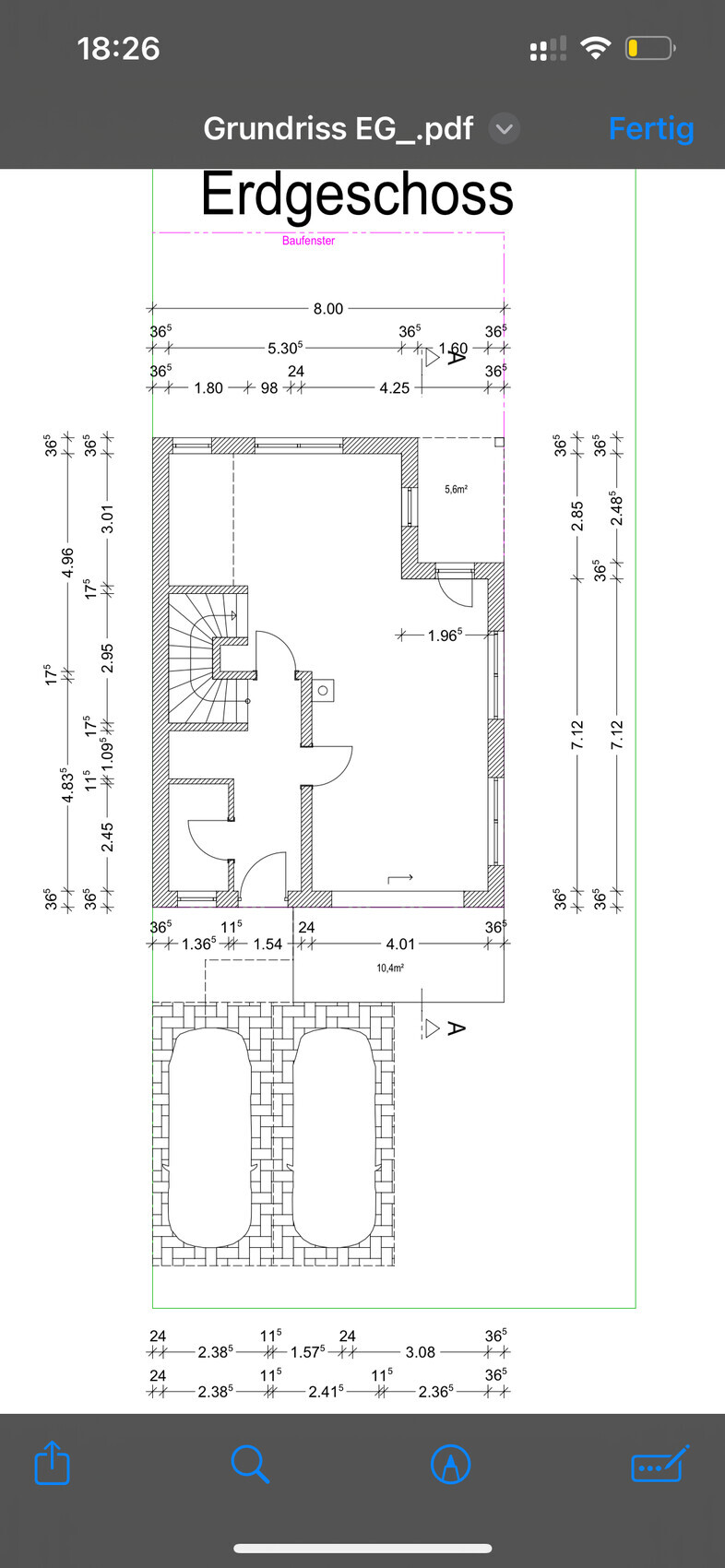
Baufenster, Baulinie und -grenze: 80 qm Grundfläche (Außenmaß)
Randbebauung: die ersten Bauherren, die Bauantrag einreichen, dürfen Hausdimensionen entscheiden
Anzahl Stellplatz: 2
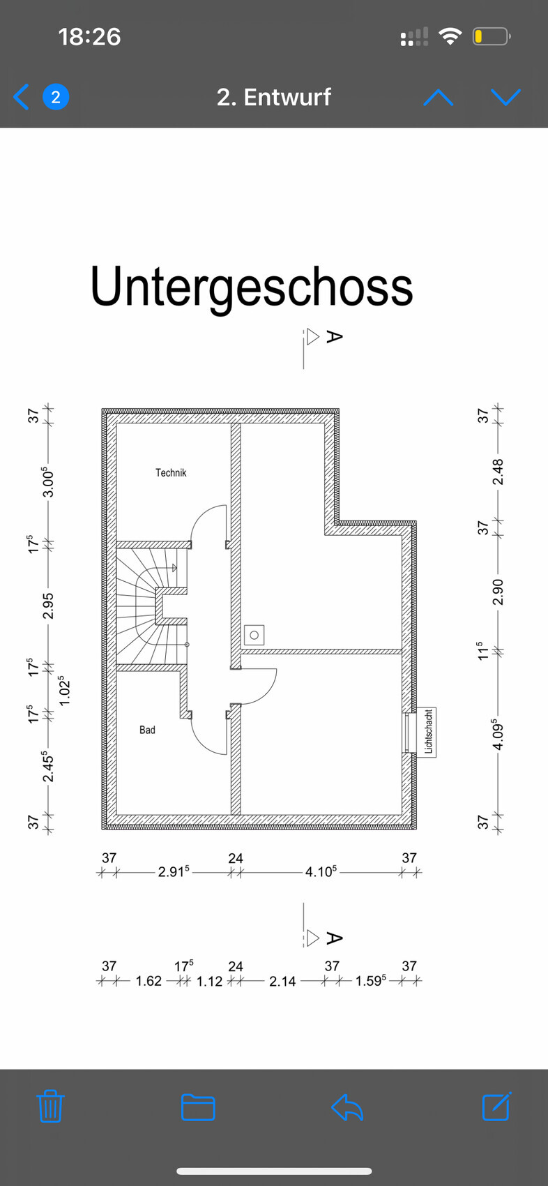
Geschossigkeit: 2 Vollgeschosse, 1 DG, 1 Keller
Dachform: Satteldach
Stilrichtung:
Ausrichtung: Küche Nordosten, Wohnzimmer Südwesten
Maximale Höhen/Begrenzungen: Wandhöhe 6,75 m
weitere Vorgaben
Anforderungen der Bauherren
Stilrichtung, Dachform, Gebäudetyp: Doppelhaushälfte, Satteldach
Keller, Geschosse: siehe oben
Anzahl der Personen, Alter: 2 Erwachsene, 2 Kinder
Raumbedarf im EG, OG: Raumaufteilung wie im Grundriss gewünscht
offene oder geschlossene Architektur: offen
konservativ oder moderne Bauweise: modern
offene Küche, Kochinsel: Küche mit Insel im nordosten
Anzahl Essplätze: 6
Kamin: ja wie eingezeichnet
Musik/Stereowand: nein
Balkon, Dachterrasse: ja, Max. 16 qm Terrassen und 8 qm Balkon laut Bauplan
Garage, Carport: Nein Stellplatz
Nutzgarten, Treibhaus: nein
weitere Wünsche/Besonderheiten/Tagesablauf, gern auch Begründungen, warum dieses oder das nicht sein soll: im Nordosten ist eine Sicht auf freies Feld, wo in den nächsten 10-15 Jahren sicher nicht gebaut wir und wahrscheinlich immer freie Sicht bleibt. Diese Sicht wollen wir nutzen und gleichzeitig auch die Sinne im Südwesten, wo gerade das Wohnzimmer ist.
Hausentwurf
Von wem stammt die Planung:
-Planer eines Bauunternehmens: nein
-Architekt: ja
-Do-it-Yourself: ja
Was gefällt besonders? Warum?
Was gefällt nicht? Warum?: super, dass die Raumaufteilung genau nach unsere Wünschen gemacht wurde. Aber der Plan wurde eben 1:1 übernommen und wir hätten gerne noch Meinungen, ob das überhaupt sinnvoll ist was wir gezeichnet haben.
favorisierte Heiztechnik: Luftwärmepumpe
Wenn Ihr verzichten müsst, auf welche Details/Ausbauten
-könnt Ihr verzichten: Breite des Flurs
-könnt Ihr nicht verzichten: Bad im EG, Ecketerrasse + Balkon
Warum ist der Entwurf so geworden, wie er jetzt ist? ZB
Standardentwurf vom Planer?: nein individuell
Entsprechende/Welche Wünsche wurden vom Architekten umgesetzt?
Zimmer Aufteilung, Eckterrasse
Was macht ihn in Euren Augen besonders gut oder schlecht? Gut: wünsche wurden aufgenommen. Aber: gibt es Optimierung bzgl. Stauraum? Sind die Bäder groß genug?
Wichtig zu wissen: im EG soll links noch die Speisekammer sein, aber keine Wand. Dh Küche ist 460m breit und Speise 120m. Bad OG im Nordosten: hier soll ebenfalls eine Trennwand für Hauswirtschaftsraum ca 140m breit geplant werden.
Freue mich sehr auf euer Feedback!





Größe des Grundstücks: 342 qm (11 m x 31 m)
Grundflächenzahl: -
Geschossflächenzahl: -
Baufenster, Baulinie und -grenze: 80 qm Grundfläche (Außenmaß)
Randbebauung: die ersten Bauherren, die Bauantrag einreichen, dürfen Hausdimensionen entscheiden
Anzahl Stellplatz: 2
Geschossigkeit: 2 Vollgeschosse, 1 DG, 1 Keller
Dachform: Satteldach
Stilrichtung:
Ausrichtung: Küche Nordosten, Wohnzimmer Südwesten
Maximale Höhen/Begrenzungen: Wandhöhe 6,75 m
weitere Vorgaben
Anforderungen der Bauherren
Stilrichtung, Dachform, Gebäudetyp: Doppelhaushälfte, Satteldach
Keller, Geschosse: siehe oben
Anzahl der Personen, Alter: 2 Erwachsene, 2 Kinder
Raumbedarf im EG, OG: Raumaufteilung wie im Grundriss gewünscht
offene oder geschlossene Architektur: offen
konservativ oder moderne Bauweise: modern
offene Küche, Kochinsel: Küche mit Insel im nordosten
Anzahl Essplätze: 6
Kamin: ja wie eingezeichnet
Musik/Stereowand: nein
Balkon, Dachterrasse: ja, Max. 16 qm Terrassen und 8 qm Balkon laut Bauplan
Garage, Carport: Nein Stellplatz
Nutzgarten, Treibhaus: nein
weitere Wünsche/Besonderheiten/Tagesablauf, gern auch Begründungen, warum dieses oder das nicht sein soll: im Nordosten ist eine Sicht auf freies Feld, wo in den nächsten 10-15 Jahren sicher nicht gebaut wir und wahrscheinlich immer freie Sicht bleibt. Diese Sicht wollen wir nutzen und gleichzeitig auch die Sinne im Südwesten, wo gerade das Wohnzimmer ist.
Hausentwurf
Von wem stammt die Planung:
-Planer eines Bauunternehmens: nein
-Architekt: ja
-Do-it-Yourself: ja
Was gefällt besonders? Warum?
Was gefällt nicht? Warum?: super, dass die Raumaufteilung genau nach unsere Wünschen gemacht wurde. Aber der Plan wurde eben 1:1 übernommen und wir hätten gerne noch Meinungen, ob das überhaupt sinnvoll ist was wir gezeichnet haben.
favorisierte Heiztechnik: Luftwärmepumpe
Wenn Ihr verzichten müsst, auf welche Details/Ausbauten
-könnt Ihr verzichten: Breite des Flurs
-könnt Ihr nicht verzichten: Bad im EG, Ecketerrasse + Balkon
Warum ist der Entwurf so geworden, wie er jetzt ist? ZB
Standardentwurf vom Planer?: nein individuell
Entsprechende/Welche Wünsche wurden vom Architekten umgesetzt?
Zimmer Aufteilung, Eckterrasse
Was macht ihn in Euren Augen besonders gut oder schlecht? Gut: wünsche wurden aufgenommen. Aber: gibt es Optimierung bzgl. Stauraum? Sind die Bäder groß genug?
Wichtig zu wissen: im EG soll links noch die Speisekammer sein, aber keine Wand. Dh Küche ist 460m breit und Speise 120m. Bad OG im Nordosten: hier soll ebenfalls eine Trennwand für Hauswirtschaftsraum ca 140m breit geplant werden.
Freue mich sehr auf euer Feedback!
K
K a t j a08.12.24 19:11Bitte alles möblieren und beschriften! Wo ist denn Norden?
Mit Keller solltet Ihr vor dem Hälftennachbarn bauen (und auch sonst: das Hausprofil an der Klebekante abstimmen), siehe Goalkeeperthread und Stichwort Unterfangung. Wenn ich mich nicht verrechnet habe, ist der Grenzabstand um 15 cm zu gering.
https://www.instagram.com/11antgmxde/
https://www.linkedin.com/company/bauen-jetzt/
https://www.instagram.com/11antgmxde/
https://www.linkedin.com/company/bauen-jetzt/
Das große Rätselraten zum Jahresabschluss
Allerdings glaube ich nicht, dass der Bebauungsplan die Lage der Küche vorschreibt.
Vielleicht einfach mal lesen, was für Informationen Dein Beitrag uns gibt:
Vielleicht solltest du noch mal in Dich gehen und erst einmal die Grundrisse beschriften und dann Möbel einzeichnen.
Wenn Du sie hier einstellen möchtest, dann bitte bildfüllend ohne Deinen Akkustatus.
Wir können zwar nicht hellsehen, aber zwischen den Zeilen lesen und kombinieren. Aber wo drei Unbekannte sind, bleiben sie.
Die Stellplätze sind übrigens gut zu erkennen.
AllaFein schrieb:Wo ist Norden, wo ist die Küche? Wenn wir das wissen, wäre Westen auch klar und das Wohnzimmer.
Ausrichtung: Küche Nordosten, Wohnzimmer Südwesten
Allerdings glaube ich nicht, dass der Bebauungsplan die Lage der Küche vorschreibt.
Vielleicht einfach mal lesen, was für Informationen Dein Beitrag uns gibt:
AllaFein schrieb:…
Warum ist der Entwurf so geworden, wie er jetzt ist? ZB
Standardentwurf vom Planer?: nein individuell
Entsprechende/Welche Wünsche wurden vom Architekten umgesetzt?
Zimmer Aufteilung, Eckterrasse
Was macht ihn in Euren Augen besonders gut oder schlecht? Gut: wünsche wurden aufgenommen. Aber: gibt es Optimierung bzgl. Stauraum? Sind die Bäder groß genug?
AllaFein schrieb:Wo links? Wo ist die Küche? Wo ist das Bad?
Wichtig zu wissen: im EG soll links noch die Speisekammer sein, aber keine Wand. Das heisst Küche ist 460m breit und Speise 120m. Bad OG im Nordosten: hier soll ebenfalls eine Trennwand für Hauswirtschaftsraum ca. 140m breit geplant werden.
Vielleicht solltest du noch mal in Dich gehen und erst einmal die Grundrisse beschriften und dann Möbel einzeichnen.
Wenn Du sie hier einstellen möchtest, dann bitte bildfüllend ohne Deinen Akkustatus.
Wir können zwar nicht hellsehen, aber zwischen den Zeilen lesen und kombinieren. Aber wo drei Unbekannte sind, bleiben sie.
Die Stellplätze sind übrigens gut zu erkennen.
Ähnliche Themen