ᐅ Einfamilienhaus an Hanglage, ca. 220 m², 2,5 Geschossig, Satteldach - Ideen?
Erstellt am: 15.07.18 18:46
M
Markus_21M
Markus_2115.07.18 18:46Hallo zusammen,
wir würden uns über Euer konstruktives Feedback zu unserem Bauvorhaben sehr freuen.
Bebauungsplan/Einschränkungen
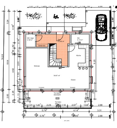
Größe des Grundstücks: 508 m² (ca. 17 Meter breit)
Hang: ja (Südhang), 8-9 Meter Gefälle zur Straße
Grundflächenzahl: 0,4, Geschossflächenzahl: 0,8
Baufenster, Baulinie und -grenze: -
Geschossigkeit: 2,5
Dachform: Satteldach
Anforderungen der Bauherren
Stilrichtung, Dachform, Gebäudetyp: Massivhaus, Satteldach
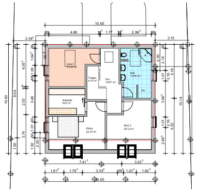
Keller, Geschosse: Keller, EG, OG
Anzahl der Personen, Alter: 2 (36), (29)
Büro: Familiennutzung oder Homeoffice?: Homeoffice
offene Küche, Kochinsel: offene Küche mit Kochinsel
Kamin: ja
Balkon, Dachterrasse: Balkon im EG
Garage, Carport: Carport
Nutzgarten, Treibhaus: nein
Hausentwurf
Von wem stammt die Planung:
- GU & eigene Ideen
Was gefällt nicht? Warum?: Platzierung der Treppe. Hausform (wirkt etwas langweilig..)
Preisschätzung lt Architekt/Planer: noch nicht vorhanden
Persönliches Preislimit fürs Haus, inkl Ausstattung: 450.000
favorisierte Heiztechnik: Luftwärme
Wenn Ihr verzichten müsst, auf welche Details/Ausbauten
Warum ist der Entwurf so geworden, wie er jetzt ist?: Planung nach unseren Wünschen
Was ist die wichtigste/grundlegende Frage zum Grundriss:
Wir sind an einem offenen, ehrlichen Feedback (jeglicher Art) zu den Grundrissen interessiert. Was kann man ggf. schöner / eleganter lösen. Passt die Anordnung der Fenster?
Vielen Dank für Eure Unterstützung.




wir würden uns über Euer konstruktives Feedback zu unserem Bauvorhaben sehr freuen.
Bebauungsplan/Einschränkungen
Größe des Grundstücks: 508 m² (ca. 17 Meter breit)
Hang: ja (Südhang), 8-9 Meter Gefälle zur Straße
Grundflächenzahl: 0,4, Geschossflächenzahl: 0,8
Baufenster, Baulinie und -grenze: -
Geschossigkeit: 2,5
Dachform: Satteldach
Anforderungen der Bauherren
Stilrichtung, Dachform, Gebäudetyp: Massivhaus, Satteldach
Keller, Geschosse: Keller, EG, OG
Anzahl der Personen, Alter: 2 (36), (29)
Büro: Familiennutzung oder Homeoffice?: Homeoffice
offene Küche, Kochinsel: offene Küche mit Kochinsel
Kamin: ja
Balkon, Dachterrasse: Balkon im EG
Garage, Carport: Carport
Nutzgarten, Treibhaus: nein
Hausentwurf
Von wem stammt die Planung:
- GU & eigene Ideen
Was gefällt nicht? Warum?: Platzierung der Treppe. Hausform (wirkt etwas langweilig..)
Preisschätzung lt Architekt/Planer: noch nicht vorhanden
Persönliches Preislimit fürs Haus, inkl Ausstattung: 450.000
favorisierte Heiztechnik: Luftwärme
Wenn Ihr verzichten müsst, auf welche Details/Ausbauten
- könnt Ihr verzichten: Partyraum im Keller
- könnt Ihr nicht verzichten: Ankleideraum & Balkon, Vorratsraum bei Küche
Warum ist der Entwurf so geworden, wie er jetzt ist?: Planung nach unseren Wünschen
Was ist die wichtigste/grundlegende Frage zum Grundriss:
Wir sind an einem offenen, ehrlichen Feedback (jeglicher Art) zu den Grundrissen interessiert. Was kann man ggf. schöner / eleganter lösen. Passt die Anordnung der Fenster?
Vielen Dank für Eure Unterstützung.
M
Markus_2115.07.18 19:24Danke! In den Keller zu gehen zum "Wohnen" ist für uns keine Option. Die Hangseite ist Süden und von dort hat man einen traumhaften "Blick".
C
chand198615.07.18 19:45Markus_21 schrieb:
In den Keller zu gehen zum "Wohnen" ist für uns keine Option.Wieso nicht?
Für Büro und einen ab-und-zu Raum werden hier die besten Zimmer verbraucht...
Küche/Ess direkt am Garten wäre einer der Gründe, warum ich überhaupt ein Haus bauen würde.
Das ist kein einfacher Keller, sondern guter Wohnraum wegen des Hangs.
Markus_21 schrieb:
Danke! In den Keller zu gehen zum "Wohnen" ist für uns keine Option. Die Hangseite ist Süden und von dort hat man einen traumhaften "Blick".Warum nicht?
Bei dem Hang habt ihr im UG auch eine gute Aussicht.
Ihr baut ein großes Haus mit Nachteilen einer Wohnung.
M
Markus_2115.07.18 20:06Die Aussicht vom Balkon ist noch besser wie unten. Wir haben das Thema den Wohnraum in den Keller zu legen diskutiert, abgewogen und uns dagegen entschieden. Man soll sich ja auch wohlfühlen. Im Keller kann man nicht so ohne Weiteres die Schiebetüren offen stehen lassen (z.B. bei Kindern), meine Freundin würde außerdem gerne von der Küche aus auf die Straße sehen, wir möchten keine Treppen hoch und runter jeden Tag, um zum Beispiel jemandem die Haustür zu öffnen. Für den großen Wohn- und Essbereich ist oben mehr Platz, da die hinteren Räume im Keller ja dunkel sind. Ggf. kann man später die Räume unten immer noch anders verplanen.
Trotzdem habt Ihr natürlich beide recht und ich kenne viele Leute, die eben genau aus dem Wohnraum in den Garten gehen möchten. Wir gehören nicht dazu.
Trotzdem habt Ihr natürlich beide recht und ich kenne viele Leute, die eben genau aus dem Wohnraum in den Garten gehen möchten. Wir gehören nicht dazu.
Ähnliche Themen