ᐅ Grundrissidee 200qm (+ exkl. Keller) Satteldach
Erstellt am: 25.03.22 17:59
T
Teilzeitplaner25.03.22 17:59Servus liebe Hausbau-Community,
coole Idee der Grundrissbewertung, da möchte ich meinen ebenfalls in den Topf werfen 😉.
Dieser ist selbst gezeichnet (Ausgangsbasis war ein Architektenplan).
Grundstück ist in Aussicht jedoch sind wir noch mit den Behörden am "verhandeln" :p.
Ansonsten sind keine weiteren Schritte eingeleitet, also quasi Konzeptphase.
Nachfolgend schonmal die ersten Fragen, die ich beantworten kann, aus dem Fragenkatalog.
Einige habe ich rausgelöscht, primär geht es mir darum, ob wir auf den richtigen Weg sind oder der Grundriss absolut für die Tonne ist 🙂.
Bebauungsplan/Einschränkungen
Größe des Grundstücks = ca. 850 qm
Hang = Nein
Geschossigkeit = E + 1
Dachform = Satteldach 30°
Stilrichtung = Satteldach modern / schlicht (keine Erker etc.) / Dachüberstand gering
Ausrichtung = Giebel OST-WEST / Nordzugang / Wohnräume im Süden
Anforderungen der Bauherren
Also hier nun das Wunschkonzert:
Garagenzugang
2x Terrassen / WEST = Lounge bzw. ggf. Grillplatz / SÜD = Essen etc.
Aktuell noch 2x Personen
Raumbedarf im EG, OG = siehe Grundriss
Was soll noch in den Keller = Hauswirtschaftsraum / Werkstatt / Fitness-Sportraum / Technik / Hobbyraum
Büro: Homeoffice
Kamin = Nein
5.1 Anlage im Wohnzimmer
Balkon, Dachterrasse = Nein
Hausentwurf
Von wem stammt die Planung = mir auf großer Basis von einem Architektenplan
Was gefällt besonders? Warum? = hat so ziemlich all unsere Wünsche enthalten
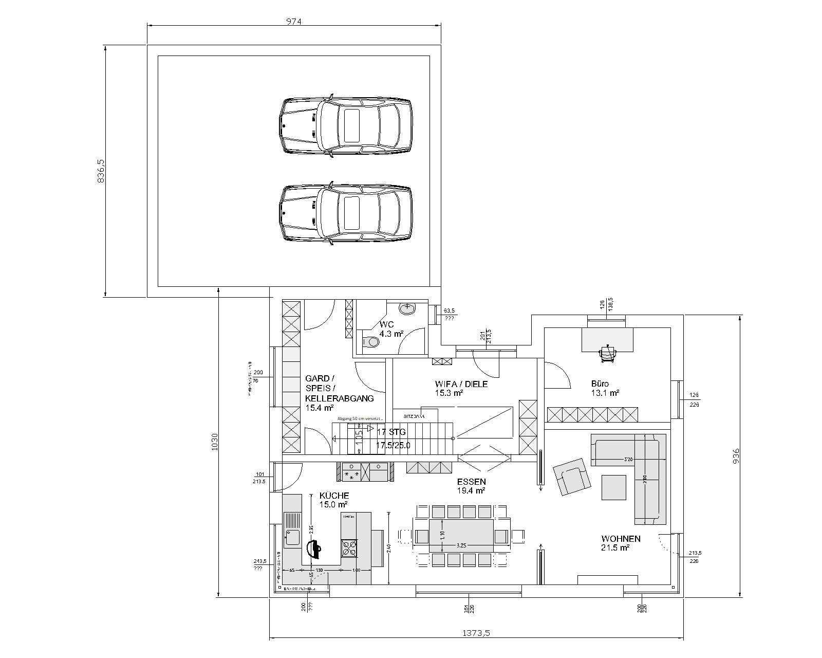
Was gefällt nicht? Warum? = Gefallen ist das falsche wort eher: Unsicherheit bei 3in1-Raum GARD/SPEIS/KELLERABGANG
Persönliches Preislimit fürs Haus, inkl Ausstattung: 650.000€ mit viel Eigenleistung
favorisierte Heiztechnik: Luft-Wasser Wärmepumpe
Wenn Ihr verzichten müsst, auf welche Details/Ausbauten
-könnt Ihr verzichten: generell ggf. etwas groß, aber die Süd-Ausrichtung wird eben super genutzt bzw. werden es 3x Kinder? 😉
-könnt Ihr nicht verzichten: Kamin und der ist schon raus 🙂
Was ist die wichtigste/grundlegende Frage zum Grundriss in 130 Zeichen zusammengefasst?
Grundlegende Frage: ist das ein guter Grundriss?
Ich habe schon viel Zeit in Grundrissideen etc. investiert.
Mir gefällt z. B. auch ein Esszimmertisch in einer Ecke von dem Haus + dazu 2x große Fenster.
Jedoch ist das - aus all meinen Eindrücken - der beste Kompromiss den ich aktuell hinbekomme.
Und noch die Frage, braucht es einen Keller?
Vorab schonmal vielen Dank für euren Input.
Viele Grüße!


coole Idee der Grundrissbewertung, da möchte ich meinen ebenfalls in den Topf werfen 😉.
Dieser ist selbst gezeichnet (Ausgangsbasis war ein Architektenplan).
Grundstück ist in Aussicht jedoch sind wir noch mit den Behörden am "verhandeln" :p.
Ansonsten sind keine weiteren Schritte eingeleitet, also quasi Konzeptphase.
Nachfolgend schonmal die ersten Fragen, die ich beantworten kann, aus dem Fragenkatalog.
Einige habe ich rausgelöscht, primär geht es mir darum, ob wir auf den richtigen Weg sind oder der Grundriss absolut für die Tonne ist 🙂.
Bebauungsplan/Einschränkungen
Größe des Grundstücks = ca. 850 qm
Hang = Nein
Geschossigkeit = E + 1
Dachform = Satteldach 30°
Stilrichtung = Satteldach modern / schlicht (keine Erker etc.) / Dachüberstand gering
Ausrichtung = Giebel OST-WEST / Nordzugang / Wohnräume im Süden
Anforderungen der Bauherren
Also hier nun das Wunschkonzert:
Garagenzugang
2x Terrassen / WEST = Lounge bzw. ggf. Grillplatz / SÜD = Essen etc.
Aktuell noch 2x Personen
Raumbedarf im EG, OG = siehe Grundriss
Was soll noch in den Keller = Hauswirtschaftsraum / Werkstatt / Fitness-Sportraum / Technik / Hobbyraum
Büro: Homeoffice
Kamin = Nein
5.1 Anlage im Wohnzimmer
Balkon, Dachterrasse = Nein
Hausentwurf
Von wem stammt die Planung = mir auf großer Basis von einem Architektenplan
Was gefällt besonders? Warum? = hat so ziemlich all unsere Wünsche enthalten
Was gefällt nicht? Warum? = Gefallen ist das falsche wort eher: Unsicherheit bei 3in1-Raum GARD/SPEIS/KELLERABGANG
Persönliches Preislimit fürs Haus, inkl Ausstattung: 650.000€ mit viel Eigenleistung
favorisierte Heiztechnik: Luft-Wasser Wärmepumpe
Wenn Ihr verzichten müsst, auf welche Details/Ausbauten
-könnt Ihr verzichten: generell ggf. etwas groß, aber die Süd-Ausrichtung wird eben super genutzt bzw. werden es 3x Kinder? 😉
-könnt Ihr nicht verzichten: Kamin und der ist schon raus 🙂
Was ist die wichtigste/grundlegende Frage zum Grundriss in 130 Zeichen zusammengefasst?
Grundlegende Frage: ist das ein guter Grundriss?
Ich habe schon viel Zeit in Grundrissideen etc. investiert.
Mir gefällt z. B. auch ein Esszimmertisch in einer Ecke von dem Haus + dazu 2x große Fenster.
Jedoch ist das - aus all meinen Eindrücken - der beste Kompromiss den ich aktuell hinbekomme.
Und noch die Frage, braucht es einen Keller?
Vorab schonmal vielen Dank für euren Input.
Viele Grüße!
H
Hausbautraum2025.03.22 18:50Würde mir auch gefallen.
Freunde von uns haben sich grad ein Angebot für 200qm Wohnfläche plus Keller in Bayern machen lassen und das Ergebnis waren 880k.
Allerdings ohne Eigenleistung.
Nur als Hinweis bevor ihr noch 100 Stunden in nicht zu realisierende Grundrisse steckt.
Freunde von uns haben sich grad ein Angebot für 200qm Wohnfläche plus Keller in Bayern machen lassen und das Ergebnis waren 880k.
Allerdings ohne Eigenleistung.
Nur als Hinweis bevor ihr noch 100 Stunden in nicht zu realisierende Grundrisse steckt.
Finde ich gar nicht mal so toll...
EG:
- Kombinierte Garderobe / Speisekammer / Schmutzschleuse ist sicher innovativ. Praktisch aber leider nicht: Meine Speisekammer soll sauber bleiben, meine Schmutzschleuse soll den Schmutz aufnehmen. Das beißt sich...
- Die Küche hat kaum Stauraum trotz passabler Größe. Beim Ausräumen der Spülmaschine fällt zusätzlich noch Stauraum weg, weil die gegenüberliegenden Küchenschränke nicht geöffnet werden können.
- Anordnung in der Küche ist optimierbar. Ich sehe lange Laufwege fürs Kochen
- Eckfenster sind teuer mit wenig Mehrwert, müsst Ihr wissen, ob Ihr den Trend mitmachen wollt.
OG:
- Flur ist reine Platzverschwendung. 22m², dafür 14m² Kinderzimmer.
- Doppeltür im Bad ist unpraktisch bzgl. Abschließen
- Schiebetür im Bad unnötig. Entweder man möchte dabei sein, wenn der andere sich entleert oder halt nicht. Eine Schiebetür hält weder die Geräusche, noch die Gerüche ordentlich ab.
- Ankleide ist mit den asymmetrischen Türen nicht schön
- Luftraum ist zu klein für eine ordentliche Wirkung, somit reine Platzverschwendung
Allgemein:
- Hauswirtschaftsraum im Keller, bedeutet, dass Ihr die komplette Wäsche zweimal durchs Haus schleppt. Wäre mir zu doof.
Schön finde ich die eingeplante Sitzbank und die Abtrennbarkeit des Wohnzimmers.
Außerdem endlich mal jemand, der eine große Badewanne mag.
Viele Grüße
SoL
EG:
- Kombinierte Garderobe / Speisekammer / Schmutzschleuse ist sicher innovativ. Praktisch aber leider nicht: Meine Speisekammer soll sauber bleiben, meine Schmutzschleuse soll den Schmutz aufnehmen. Das beißt sich...
- Die Küche hat kaum Stauraum trotz passabler Größe. Beim Ausräumen der Spülmaschine fällt zusätzlich noch Stauraum weg, weil die gegenüberliegenden Küchenschränke nicht geöffnet werden können.
- Anordnung in der Küche ist optimierbar. Ich sehe lange Laufwege fürs Kochen
- Eckfenster sind teuer mit wenig Mehrwert, müsst Ihr wissen, ob Ihr den Trend mitmachen wollt.
OG:
- Flur ist reine Platzverschwendung. 22m², dafür 14m² Kinderzimmer.
- Doppeltür im Bad ist unpraktisch bzgl. Abschließen
- Schiebetür im Bad unnötig. Entweder man möchte dabei sein, wenn der andere sich entleert oder halt nicht. Eine Schiebetür hält weder die Geräusche, noch die Gerüche ordentlich ab.
- Ankleide ist mit den asymmetrischen Türen nicht schön
- Luftraum ist zu klein für eine ordentliche Wirkung, somit reine Platzverschwendung
Allgemein:
- Hauswirtschaftsraum im Keller, bedeutet, dass Ihr die komplette Wäsche zweimal durchs Haus schleppt. Wäre mir zu doof.
Schön finde ich die eingeplante Sitzbank und die Abtrennbarkeit des Wohnzimmers.
Außerdem endlich mal jemand, der eine große Badewanne mag.
Viele Grüße
SoL
M
Myrna_Loy26.03.22 08:52200 qm inklusive Ausstattung plus Keller für 650.000 ist dieser Tage nicht machbar.
Sind das nun 2 Geschosse oder mit ausgebauten Dachgeschoss? Was sagt denn der Bebauungsplan?
Ist die Garage Grenzbebauung?
Falls 2 Vollgeschosse und dann noch das Satteldach, Keller und RIESIGE Garage? Da reicht das Budget nie.
Die Frage nach dem Keller würde ich mit nein beantworten. Den kannst Dir eh nicht leisten.
Ist das Grundstück schon bezahlt?
Sind 3 Kinder geplant?
Ist die Garage Grenzbebauung?
Falls 2 Vollgeschosse und dann noch das Satteldach, Keller und RIESIGE Garage? Da reicht das Budget nie.
Die Frage nach dem Keller würde ich mit nein beantworten. Den kannst Dir eh nicht leisten.
Ist das Grundstück schon bezahlt?
Sind 3 Kinder geplant?
Ähnliche Themen