ᐅ Klassisches Einfamilienhaus Satteldach ~130qm
Erstellt am: 17.07.17 08:20
Hallo,
habt ihr eventuell noch ein paar nützliche Tipps zu den Grundrissen?
Bebauungsplan/Einschränkungen
Größe des Grundstücks: 800qm
Hang: nein
Grundflächenzahl: 0,3
Randbebauung: Fertiggarage an Grenze mit evtl Zugang zum Hauswirtschaftsraum
Anzahl Stellplatz: 2
Geschossigkeit: 2
Dachform: Satteldach 40-50°
Stilrichtung: klassisches Einfamilienhaus
Maximale Höhen/Begrenzungen: 4,40m Traufhöhe
Anforderungen der Bauherren
Stilrichtung, Dachform, Gebäudetyp: 40°, klassisches Einfamilienhaus
Keller, Geschosse: kein Keller, 2 Geschosse
Anzahl der Personen, Alter: zwei Erwachsene, zwei Kinder < 5J
Raumbedarf im EG, OG: je ~60qm
Büro: Familiennutzung oder Homeoffice?
Schlafgäste pro Jahr: 0
offene oder geschlossene Architektur: lediglich offene Küche
konservativ oder moderne Bauweise: konservativ
offene Küche, Kochinsel: offene Küche ohne Insel
Anzahl Essplätze: 8-10
Kamin: nein
Garage, Carport: Fertiggarage
Hausentwurf
Von wem stammt die Planung: DIY
Was gefällt besonders? Warum?:
Was gefällt nicht? Warum?: zu kleiner Hauswirtschaftsraum?
Preisschätzung lt Architekt/Planer: 230000€
Persönliches Preislimit fürs Haus, inkl Ausstattung: 250000€
favorisierte Heiztechnik: luftwärmepumpe

habt ihr eventuell noch ein paar nützliche Tipps zu den Grundrissen?
Bebauungsplan/Einschränkungen
Größe des Grundstücks: 800qm
Hang: nein
Grundflächenzahl: 0,3
Randbebauung: Fertiggarage an Grenze mit evtl Zugang zum Hauswirtschaftsraum
Anzahl Stellplatz: 2
Geschossigkeit: 2
Dachform: Satteldach 40-50°
Stilrichtung: klassisches Einfamilienhaus
Maximale Höhen/Begrenzungen: 4,40m Traufhöhe
Anforderungen der Bauherren
Stilrichtung, Dachform, Gebäudetyp: 40°, klassisches Einfamilienhaus
Keller, Geschosse: kein Keller, 2 Geschosse
Anzahl der Personen, Alter: zwei Erwachsene, zwei Kinder < 5J
Raumbedarf im EG, OG: je ~60qm
Büro: Familiennutzung oder Homeoffice?
Schlafgäste pro Jahr: 0
offene oder geschlossene Architektur: lediglich offene Küche
konservativ oder moderne Bauweise: konservativ
offene Küche, Kochinsel: offene Küche ohne Insel
Anzahl Essplätze: 8-10
Kamin: nein
Garage, Carport: Fertiggarage
Hausentwurf
Von wem stammt die Planung: DIY
Was gefällt besonders? Warum?:
Was gefällt nicht? Warum?: zu kleiner Hauswirtschaftsraum?
Preisschätzung lt Architekt/Planer: 230000€
Persönliches Preislimit fürs Haus, inkl Ausstattung: 250000€
favorisierte Heiztechnik: luftwärmepumpe
Ist ja relativ "einfach" geplant, was nicht negativ sein muss und solche Häuser werden zu tausenden gebaut.
Nur das Übliche: Treppenansatz im Schmutzbereich der Türe, Größe Hauswirtschaftsraum evtl. zu klein, bitte mal an Möblierungen denken.
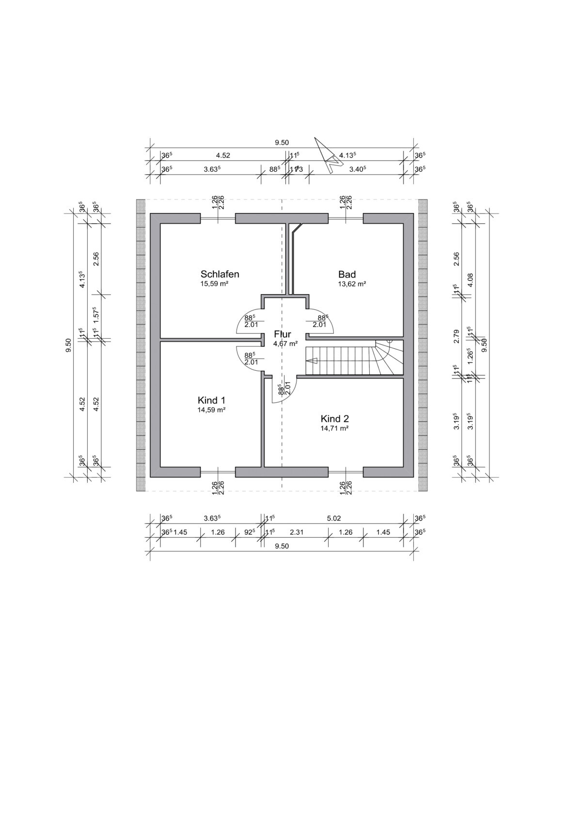
Was mich eher irritiert: Ihr baut ein 9,50x9,50 (klein, quadratisch) mit Satteldach auf einem 800qm Grundstück? würde da eher ein Rechteck, und größer, sehen. Könnte sonst putzig aussehen ...
Nur das Übliche: Treppenansatz im Schmutzbereich der Türe, Größe Hauswirtschaftsraum evtl. zu klein, bitte mal an Möblierungen denken.
Was mich eher irritiert: Ihr baut ein 9,50x9,50 (klein, quadratisch) mit Satteldach auf einem 800qm Grundstück? würde da eher ein Rechteck, und größer, sehen. Könnte sonst putzig aussehen ...
Das Haus ist eher kompakt. Das Wohnzimmer finde ich im Verhältnis dazu sehr groß. Da der Hauswirtschaftsraum sehr klein ist (für uns wär das schon ohne Kinder nicht zu machen), würde ich eher auf das große WZ verzichten und noch einen zusätzlichen Raum schaffen, indem ich die Küche in den Wohnbereich schiebe.
Die Türen klappen alle in den Flur. Das ist zwar ungewöhnlich aber wir haben es auch bei einigen Türen aus Platzgründen so gemacht, Bei der WC-Tür würde ich es aber nicht machen. Sonst schlagen die Türen möglicherweise aneinander.
Ich würde bei Satteldachhaus auch keine quadratische Grundform wählen.
Die Türen klappen alle in den Flur. Das ist zwar ungewöhnlich aber wir haben es auch bei einigen Türen aus Platzgründen so gemacht, Bei der WC-Tür würde ich es aber nicht machen. Sonst schlagen die Türen möglicherweise aneinander.
Ich würde bei Satteldachhaus auch keine quadratische Grundform wählen.
Im OG fehlt regelmäßig hinter den Türen der Platz für schränke. Ganz wichtig zum Beurteilen des Platzes im DG ist, daß man die Höhenlinien 1m und 2m einzeichnet; und in allen Geschossen ist eine Beispielmöblierung hilfreich.
zeig auch mal die Fassaden dazu - spontan würde ich sagen, die quadratischen Fenster oben aber unten andere Formate könnten etwas merkwürdig zusammengehen.
Aus welchem Grund springst Du mehrfach aus dem Baurichtmaß aus ?
https://www.instagram.com/11antgmxde/
https://www.linkedin.com/company/bauen-jetzt/
zeig auch mal die Fassaden dazu - spontan würde ich sagen, die quadratischen Fenster oben aber unten andere Formate könnten etwas merkwürdig zusammengehen.
Aus welchem Grund springst Du mehrfach aus dem Baurichtmaß aus ?
https://www.instagram.com/11antgmxde/
https://www.linkedin.com/company/bauen-jetzt/
Kein Keller, zwei Kinder <5, dann ist der Hauswirtschaftsraum aber sehr viel zu klein! Ihr habt sonst nirgendwo Stauraum.
Im Flur sehe ich auch kaum Platz für Garderobe, bis auf den beschränkten Platz unter der Treppe. Wie wollt ihr hier allein einen Kinderwagen platzieren?
Anschlag der Türen überdenken (zumindest in den Hauswirtschaftsraum die Tür nach innen aufmachen, sonst kommt man zur Haustür rein und kriegt u.U. gleich mal die Hauswirtschaftsraum-Tür auf die Nase), auch die Platzierung, ggf. kann man so noch Platz gewinnen.
Insgesamt gibt es für ein 800qm Grundstück mit Grundflächenzahl = 0,3 doch sicher etwas komfortablere Lösungen. Quadratisch ist nicht immer praktisch und gut (und auch bei Schokolade nur angeblich).
Im Flur sehe ich auch kaum Platz für Garderobe, bis auf den beschränkten Platz unter der Treppe. Wie wollt ihr hier allein einen Kinderwagen platzieren?
Anschlag der Türen überdenken (zumindest in den Hauswirtschaftsraum die Tür nach innen aufmachen, sonst kommt man zur Haustür rein und kriegt u.U. gleich mal die Hauswirtschaftsraum-Tür auf die Nase), auch die Platzierung, ggf. kann man so noch Platz gewinnen.
Insgesamt gibt es für ein 800qm Grundstück mit Grundflächenzahl = 0,3 doch sicher etwas komfortablere Lösungen. Quadratisch ist nicht immer praktisch und gut (und auch bei Schokolade nur angeblich).
Ähnliche Themen