Entwurf Einfamilienhaus mit ca. 168m² Feedback

4,70 Stern(e) 7 Votes
Zuletzt aktualisiert 25.11.2025
Sie befinden sich auf der Seite 6 der Diskussion zum Thema: Entwurf Einfamilienhaus mit ca. 168m² Feedback
>> Zum 1. Beitrag <<

H

HappyEnd

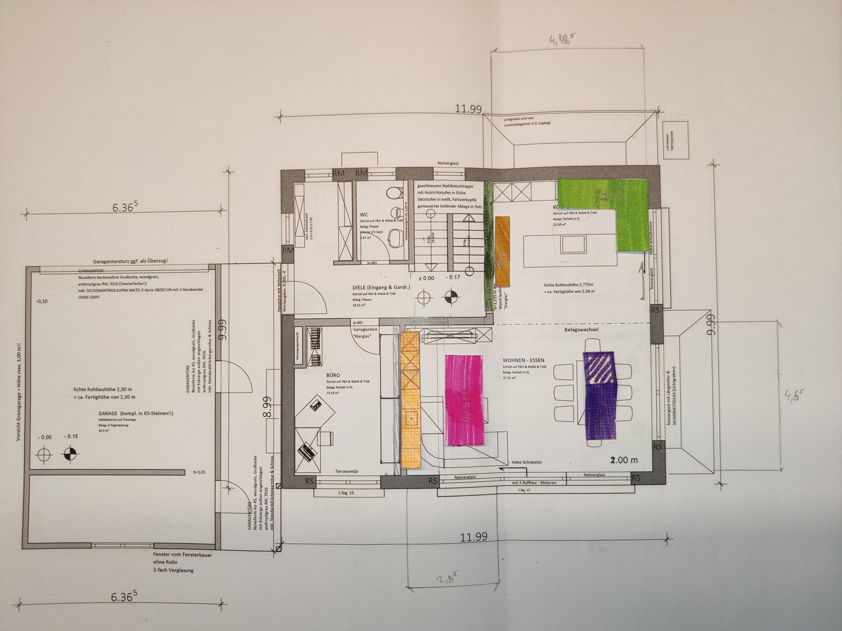
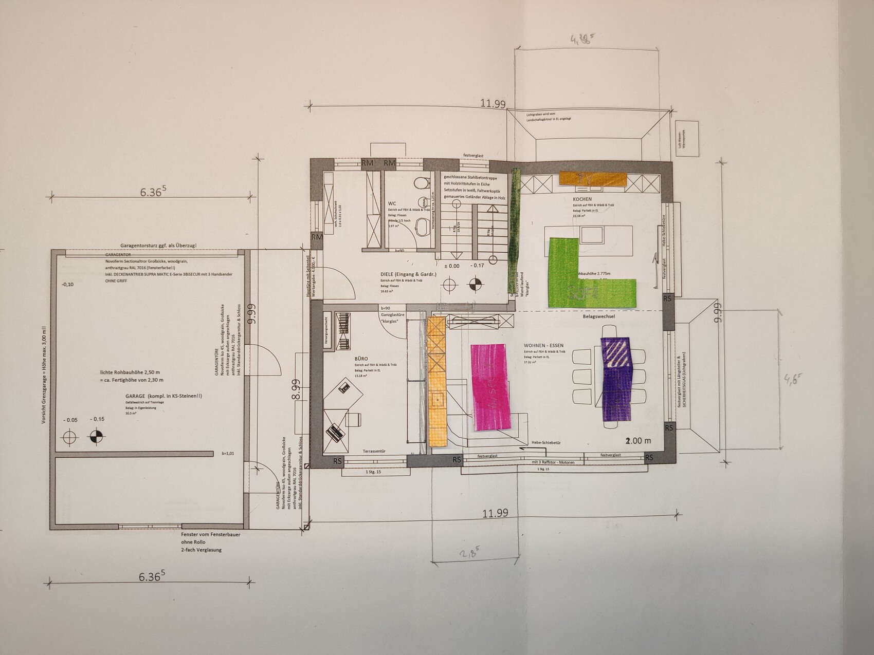
Ich sehe das Wohnzimmereck als größten Kritikpunkt bei Euch, evtl. könnte man sich überlegen die Wand zwischen Wohnzimmer und Büro um die Schrankbreite zu verschieben, damit das Wohnzimmer mehr Raum gewinnt und die Couch auf die anderen Seite der Wand platzieren und den TV neben die große Fensterfront in das Eck platzieren. Dann wäre die kurze Seite des Sofos Richtung TV gerichtet, bietet aber Platz für 2-3.

Terrassenüberdachung ist angedacht und im Budget vorgehalten um den Gewächshauscharakter entgegenzuwirken.

Ich werde versuchen es mal heute Abend aufzuzeichnen.

Den Grundriss von ivenho gefällt mir auch sehr gut, aber grundlegend anders mit einer geraden Treppe. Bei einer geraden Treppe mit Zugang zum Keller gelang mir kein guter Grundriss.
 
I

ivenh0

Den Grundriss von ivenho gefällt mir auch sehr gut, aber grundlegend anders mit einer geraden Treppe. Bei einer geraden Treppe mit Zugang zum Keller gelang mir kein guter Grundriss.
Falsch, wir haben die gleiche Treppenform. Ich kann gleich einen Link einstellen. Du wirst die Ähnlichkeit zu eurem Grundriss direkt feststellen. Aber auch hoffentlich die entscheidende Unterschiede

 
H

HappyEnd

Vielen Dank für das Teilen des Links, die Ähnlichkeit ist erkennbar und wir nähern uns langsam an! :)

Wir freunden uns langsam aber sicher mit dem Tausch des WZ und der Küche an. DIe Glasschiebetüre würde mit der Küche mitwandern. Evtl. würden dann auch eine Schiebetüre in Kombi mit einem festverglasten Element gut aussehen.

Kücheninsel müsste ca. 20cm verkleinert werden. Kücheninsel wäre bei diesem Vorschlag parallel zum esstisch. Gefühlt hätte mir ein rechter Winkel zwischen Insel und Esstisch besser gefallen. Die Küche hätte jetzt keinen direkten Zugang zur Terrasse. Mit den Nachteilen könnte man leben. Das Wohnzimmer würde defintiv an Gemütlichkeit gewinnen.

Die Wand zwischen Küche und AZ würde ich schieben wollen, für einen Aktenschrank sollte eine Tiefe von 40cm an sich ausreichend sein.

Seht ihr noch Optimierungspotential im EG?

Detaillierter Hausgrundriss mit Wohn-, Essbereich, Küche und Eingang
 
M

matte

Und ich bin kein Fan davon, immer Möbel vor bodentiefen Fenstern oder Schiebetüren zu stellen. Dann kann ich´s mir doch gleich sparen....
Tausch Küche/WZ macht definitiv Sinn. Möchte die Küche neben der Terrasse nicht mehr missen.

Wieso nicht einfach die Couch wie in V1 und die Schiebetüre überdenken? Da geht doch eh keiner raus... ;)
 
H

HappyEnd

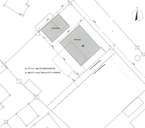
Wir haben bei uns die Besonderheit, dass wir min. die nächsten 10 Jahre ein relativ großes Grundstück haben werden. Plan ist es nach 10-15 Jahren einen Teil davon zu verkaufen. Daher wäre uns wichtig zu beiden Seiten des Gartens hinaus zu können. Terrasse soll Richtung SW / planunten erstellt werden. Anbei noch einmal der Lageplan...

Lageplan eines Grundstücks mit Wohnhaus und Doppelgarage, Maße, Nordpfeil, alte und neue Teilung.
 
Zuletzt aktualisiert 25.11.2025
Im Forum Grundrissplanung / Grundstücksplanung gibt es 2536 Themen mit insgesamt 88016 Beiträgen


Ähnliche Themen zu Entwurf Einfamilienhaus mit ca. 168m² Feedback
Nr.ErgebnisBeiträge
1Grundriss für 150qm Einfamilienhaus mit Wohnzimmer nach Norden 21
2Grundriss Einfamilienhaus mit Keller 19
3Grundriss 165 m² mit Keller eure Meinung - Seite 552
4Grundriss: Offenes Wohnzimmer inkl. Kamin - Feedback 11
5Grundriss Satteldachhaus 172 qm - Bitte um eure Meinungen - Seite 223
6Grundrissentwurf Einfamilienhaus mit Keller und Doppelgarage auf 540qm - Seite 326
7Grundriss Bauvorhaben Stadtvilla mit Walmdach 15
8Grundriss Einfamilienhaus, leichte Hanglage, NW-Ausrichtung - Seite 1074
9Grundriss Einfamilienhaus mit Doppelgarage und Terrasse - Seite 219
10Treppe im Flur, Grundriss steht eigentlich schon :o( 20
11Treppe im Wohnzimmer als Hype - Pro & Contra? - Seite 426
12Grundriss Einfamilienhaus ca. 200qm mit Keller - Hinterbebauung 20
13Grundriss Einfamilienhaus 2 Vollgeschosse +Keller ca. 130m² Wohnfläche 30
14Besonderer Grundriss oder langweilig mit Keller? - Seite 220
15Grundriss Bungalow 150qm geschlossene Küche, überdachte Terrasse - Seite 440
16Grundriss Einfamilienhaus 190m2 mit Keller Feedback? - Seite 341
17Grundriss Einfamilienhaus ~165m² plus Keller - Seite 8165
18Grundriss Einfamilienhaus in Hanglage mit Keller - Seite 651
19Grundriss, Hausanordnung EFW 150m2, Keller + Einliegerwohnung - Feedback erwünscht - Seite 967
20Grundriss Einfamilienhaus mit Keller, 150qm, nur eingeschossig erlaubt - Seite 4115

Oben