Einfamilienhaus - Flachdach - Waldrandlage - 175 qm

4,10 Stern(e) 15 Votes
Zuletzt aktualisiert 19.11.2025
Sie befinden sich auf der Seite 13 der Diskussion zum Thema: Einfamilienhaus - Flachdach - Waldrandlage - 175 qm
>> Zum 1. Beitrag <<

B

benediktr

Zu eurem Entwurf

Zeichnet Möbel im Maßstab ein und zwar eure vorhanden bzw gewünschten

Gerade im OG gehört alles auf Null
2 Meterlinie fehlt
Galerie zu klein um zu wirken. Die überträgt nur sämtliche Geräusche
Zimmer sehr dunkel
Ankleide nicht gewünscht raus mit
Badewanne fehlt

Wirkt wie ein Laienentwurf
Verstehe deine Aussage nicht.

- 2 Meter Linie: Gibt ein Pultdach -> Höheneinstellung gibt der Architekt an. Jedoch wird nichts unter 2 m sein.
- Galerie kann man es nennen, aber auch Flur
- Zimmer sehr dunkel verstehe ich überhaupt nicht. Bis auf das Schlafzimmer hat jedes Zimmer 2 Fenster. Eckfenster im Bad ist noch zu überdenken
- Ankleide sogar großer Wunsch
- Badewanne fehlt nicht
 
H

haydee

Verstehe deine Aussage nicht.

- 2 Meter Linie: Gibt ein Pultdach -> Höheneinstellung gibt der Architekt an. Jedoch wird nichts unter 2 m sein.
- Galerie kann man es nennen, aber auch Flur
- Zimmer sehr dunkel verstehe ich überhaupt nicht. Bis auf das Schlafzimmer hat jedes Zimmer 2 Fenster. Eckfenster im Bad ist noch zu überdenken
- Ankleide sogar großer Wunsch
- Badewanne fehlt nicht
Äh ja gehört auch nicht hierher.
Weiß nicht warum der Post in deinen Thread gelandet ist
 
B

benediktr

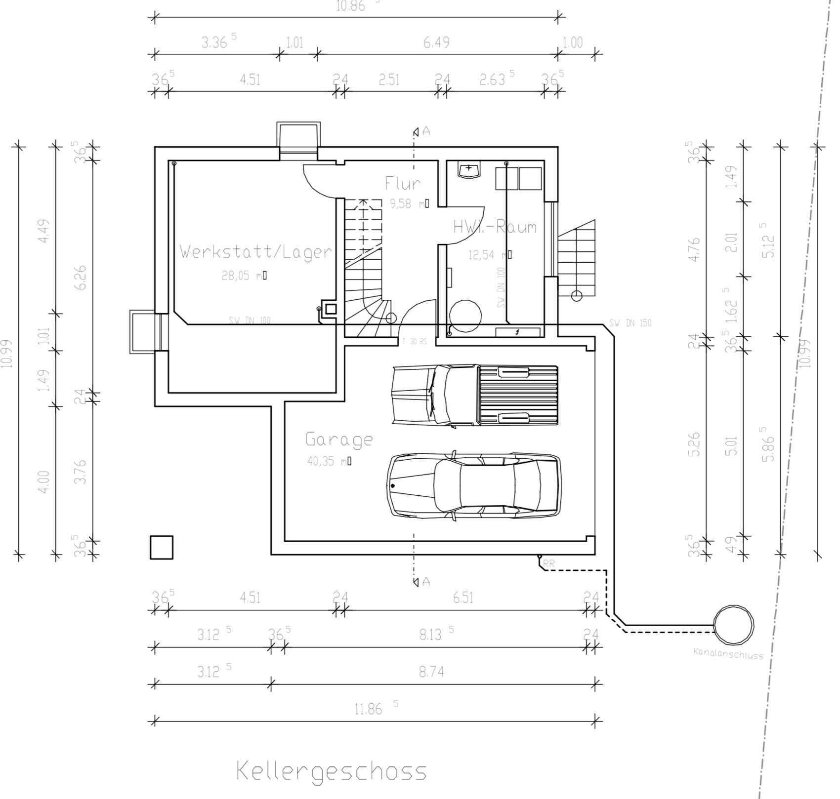
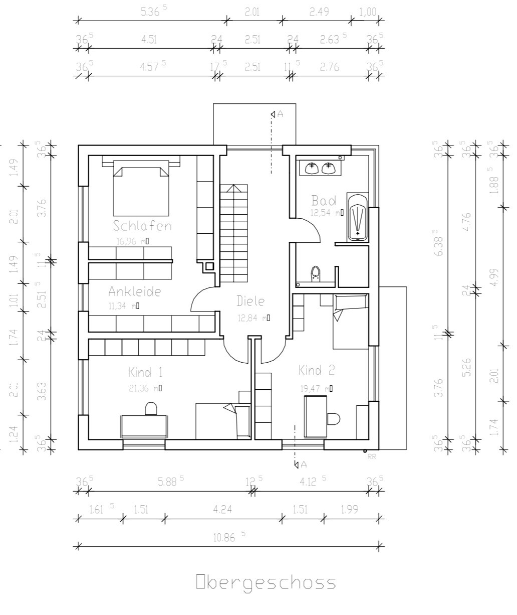
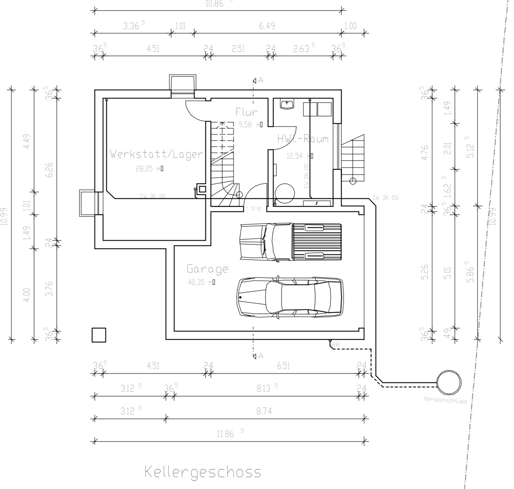
Wir sind mittlerweile ein ganzes Stück weiter gekommen. Bauantrag wurde gestellt, Statik fertig, Gewerke wie Rohbau, Dach und Fenster stehen fest. Im Grunde wurde unsere Grundidee nahezu lückenlos umgesetzt. Nachfolgend die Pläne. Entschuldigt die etwas schlechte Layerstärke, ich habe noch selbst etwas an der Einrichtung gespielt und hatte Probleme mit den Layern und den verschiedenen Plotstilen...


Kellergeschoss-Plan: Garage mit zwei Autos, Werkstatt/Lager, Flur, HW-Raum, Treppen.


Grundriss Erdgeschoss eines Hauses mit Wohnen, Kochen + Essen, Diele, WC, Speis, Freisitz, Treppen.


Obergeschoss: Schlafen, Ankleide, Diele, Kind 1, Kind 2, Bad; Treppenhaus in Mitte.

Moderne Doppelhaushälfte: Frontansichten Süd- und Westseite mit großen Fenstern und Bäumen.


Nord- und Ostansicht eines modernen Hauses auf Hanglage, mit Garage, Treppen und Bäumen.


Im Kellergeschoss sind wir noch unsicher ob wir die Werkstatt in 2 Räume teilen, was zur Folge hätte, das eine zweite Nebeneingangstüre benötigt wird. (T30 Anforderung, Wärmedämmung usw.)

Im Erdgeschoss sind wir uns noch nicht einig, wie wir den Eingangsbereich mit der Garderobe gestalten wollen. Hier sind wir durch sämtliche 11,5er Wände flexibel da Trockenbau und Eigenleistung. Die 24er Wand zwischen Speise und Flur wird in Sichtbeton hergestellt.

Obergeschoss sind ebenso alle 11,5er Wände nicht tragend und können wenn die Kinder wieder aus dem Haus sind geändert werden. Die Nordfassade ist natürlich aufgrund der wenigen Fenster gewöhnungsbedürftig, jedoch gingen hier die Stellmöglichkeiten innen, sowie energetische Aspekte vor.

Tageslicht am WC im Bad OG könnte etwas gering ausfallen, doch damit können wir leben. Die Mauer an der Dusche zur Wand wird nur halbhoch in Trockenbau herstellt, die obere Hälfte mit einer Glasscheibe um Licht in die Dusche zu bekommen.
 
wrobel

wrobel

Moin

Aufteilung und Grundriss gefällt mir sehr gut.
Ich find aber eine Öffnung des Gebäudes mit dem Dach und Fenster zum Süden besser, aber da gibt es sicherlich mehrere richtige Lösungen.
Wie sieht denn die Dacheindeckung aus?
Mit der Glaswand zur Dusche sehe ich nicht das es zu dunkel wird. In den Sommermonaten scheint da morgens früh auch noch schön die Sonne rein.


Olli
 
kaho674

kaho674

Gefällt mir auch richtig gut, obwohl ich kein Pultdach mag.
Wann ist Spatenstich? Kriegen wir Bilder?
 
Zuletzt aktualisiert 19.11.2025
Im Forum Grundrissplanung / Grundstücksplanung gibt es 2536 Themen mit insgesamt 87977 Beiträgen


Ähnliche Themen zu Einfamilienhaus - Flachdach - Waldrandlage - 175 qm
Nr.ErgebnisBeiträge
1Bodengleiche Dusche mit Fenster in der Nähe 13
2Dusche direkt am Fenster - kompatibel oder inkompatibel? - Seite 422
3Begehbare Dusche, Trockenbau oder lieber mauern, alternativ Glaswand 20
4Parkett von Flur in Zimmer durchlegen 17
5Grundriss Einfamilienhaus geplant, Fenster gefallen uns 43
6Flur-Grundriss vergrößern REH von 1921: Tipps? - Seite 227
7Badplanung 14m², Neubau, quadratisch, zwei Fenster - Seite 470
8Grundrissplanung Stadthaus 150qm mit Satteldach 6 Zimmer - Seite 19150
9Walk-in Dusche, bitte um Ratschläge 27
10Trockenbauwand mit Ziegelbauweise / Trockenbau Eigenschaften 14
11Einfamilienhaus Grundriss mit Keller, Version 2 23
12Kostenabschätzung Architekt Einfamilienhaus. Eure Einschätzung - Seite 244
13Versetztes Doppelhaus mit durchgez. Pultdach 12
14Pultdach 20Grad - ohne Dachboden? 19
15feuchte Wände an Terrassentüren und Haustür - Seite 211
16Architekt total geschlampt - Erfahrungen? 17
17Wände aus Styrodur oder Styropor? 10
18Riesiges Problem mit dem Kondenswasser am Fenster 34
19 Küchenplanung mit tiefen Fenster 43
20Kniestockhöhe 2 GeschossIg Fenster Traufseite - Seite 214

Oben