Einfamilienhaus ca. 180 m² - Was meint ihr dazu?

4,70 Stern(e) 3 Votes
Zuletzt aktualisiert 21.12.2025
Sie befinden sich auf der Seite 2 der Diskussion zum Thema: Einfamilienhaus ca. 180 m² - Was meint ihr dazu?
>> Zum 1. Beitrag <<

N

niri09

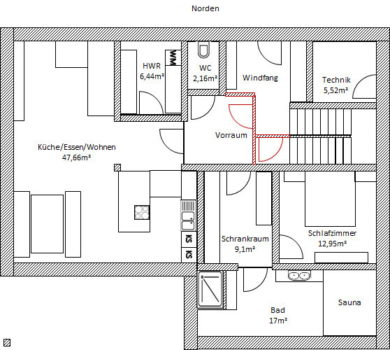
Es ist ein so großes Haus und darin befinden sich so viele kleine Zimmer, das es echt schon im Herzen weh tut. Es ist ein Labyrinth! Ins Schlafzimmer und ins Bad kommt man nur über den Schrankraum? Ich würde diesen Raum komplett weglassen und dafür die Küche und Schlafzimmer vergrößern.

Die Gästetoilette ist wirklich sehr klein, unbedingt größer planen!

Entfernung von der Couch bis zum TV Max. 3,80 ist zu gering...da passt keine große Couch hin und auch mit dem Couchtisch davor wird es eng.

Es muss natürlich euch gefallen, aber überdenkt ob ihr das Schachtel-System im Haus wirklich so haben wollt
 
kaho674

kaho674

Für einen ersten Entwurf nicht so schlecht, finde ich. Ob es allerdings wirklich lohnt, daran rumzubasteln, ist zweifelhaft.
Ich würde zunächst mal Treppe und Technik tauschen und den Hauswirtschaftsraum an die Technik dran hängen. Dann ist zumindest die Trennung einfacher.


Grundriss eines Hauses mit Küche/Essen/Wohnen, Bad, Schlafzimmer, Sauna, WC.


Merkwürdig bleibt aber die Badgeschichte an der Terrasse. Möglicherweise tritt man ja von der Sauna an den Pool oder dergleichen. Falls nicht, liegt üblicherweise eher das Schlafzimmer an dieser Position. Auch ist ja bislang nicht mal ein WC integriert. Bleibt also die Frage, ob man damit weiter macht, oder lieber einen Architekten fragt.
 
E

emundem

Die Trennung zwischen EG und OG stelle ich mir so vor wie im Plan. Wir hätten gerne, dass man nicht durch den Schmutzbereich muss, um ins OG zu kommen.
Ganz generell sind aber die Glastüren zwischen Vorraum und Allraum bzw. Windfang und Vorraum noch nicht gesetzt.

Zum Bad: genau das ist der Plan, eine große Glasfront, mit Türe auf die Terrasse um nach dem Saunagang draußen liegen zu können.

Das Grundstück ist das letzte und in einigen Hundert Metern Entfernung kommt dann ein kleiner Wald. Von daher stellen wir uns das sehr nett vor

Grundriss eines Hauses mit offener Küche, Essen/Wohnen, Schlafraum, Bad, Sauna, WC, HWR, Vorraum
 
kaho674

kaho674

Wer soll denn später oben wohnen?
Die dreckige Wäsche durchs WZ zu tragen, ist für ein neues Haus wirklich ein Armutszeugnis. Auch ist es wenig prickelnd, wenn zu Mozart aus dem Hi-Fi-Gerät dann die Waschmaschine mitrumpelt. So dick kannste die Wand gar nicht bauen, dass Ihr die nicht hört. Andere machen ja für Technik & Co auch einfach mal nen Anbau neben den Eingang, wenn der Platz nicht reicht...
 
Zuletzt bearbeitet:
Climbee

Climbee

Wenn ihr fest entschlossen seid, daß Haus so zu konzipieren, daß man es in zwei verschiedene Wohneinheiten trennen kann, dann macht der Vorschlag von Kaho zur Treppenverlegung mehr als Sinn.

Verlaßt euch nicht darauf, daß vor euch nicht mehr gebaut wird. Ich kenn hier einige, die noch vor 20 Jahren über ihre unverbaubare (!!) schöne Aussicht gejubelt haben und jetzt in Reihe 5 oder so wohnen... Als die dort gebaut haben hieß es aber: da wird ganz sicher nie und nimmer hingebaut werden!
Nix ist so sicher wie der Wandel.
 
G

Grantlhaua

Andere machen ja für Technik & Co auch einfach mal nen Anbau neben den Eingang, wenn der Platz nicht reicht...
Oder ihr legt das ganze in den Keller unter dem Carport wenns denn unbedingt der Keller außerhalb sein soll. So hats meine Tante gemacht. Da steht die Wärmepumpe im Keller, der nur über eine Außentreppe erreichbar ist.
 
Zuletzt aktualisiert 21.12.2025
Im Forum Grundrissplanung / Grundstücksplanung gibt es 2552 Themen mit insgesamt 88534 Beiträgen


Ähnliche Themen zu Einfamilienhaus ca. 180 m² - Was meint ihr dazu?
Nr.ErgebnisBeiträge
1Schlafzimmer im Keller 13
2Einfamilienhaus - Bayern 150m² inkl Keller, Terrasse - Kostenaufstellung 11
3Werkplanung Einfamilienhaus 180qm Flachdach mit Keller & Doppelgarage - Seite 2142
4Einfamilienhaus bauen mit/ohne Keller bei kleinem Grundstück - Seite 965
5Finanzierung Bauvorhaben Einfamilienhaus 140qm + Keller (Bayern) - Seite 234
6Grundrissoptimierung Einfamilienhaus in Hanglage Eingeschossig + Keller - Seite 232
7Grundriss Einfamilienhaus ~165m² plus Keller - Seite 8165
8Grundriss Einfamilienhaus ohne Keller, 3 Kinderzimmer und Büro - Seite 218
9Grundrissentwurf Einfamilienhaus ca. 230qm plus Keller - Seite 536
10Besonderer Grundriss oder langweilig mit Keller? 20
11Sauna im Haupt-Bad oder im Keller? - Seite 634
12Erster Grundriss L-Form-Haus (190m²) mit Einlieger (80m²), Keller - Seite 215
13Grundriss Einfamilienhaus 155m², ohne Keller, 3 Kinderzimmer, 1 Büro 38
14Grundriss, Hausanordnung EFW 150m2, Keller + Einliegerwohnung - Feedback erwünscht - Seite 667
15Grundrisse für Einfamilienhaus, ca. 140m², ohne Keller - Seite 1378
16Eine weitere Walmdach Stadtvilla (240qm) - Seite 4164
17Grundriss Einfamilienhaus mit Doppelgarage und Terrasse - Seite 219
18Grundriss Einfamilienhaus mit Keller - Eure Meinungen bitte - Seite 316
19Häuser ohne Keller: Stauraum Hobby-Keller? - Seite 349
20Büro in den Keller verlegen? - Seite 320

Oben