Einfamilienhaus bauen mit/ohne Keller bei kleinem Grundstück

4,00 Stern(e) 29 Votes
Zuletzt aktualisiert 18.11.2025
Sie befinden sich auf der Seite 9 der Diskussion zum Thema: Einfamilienhaus bauen mit/ohne Keller bei kleinem Grundstück
>> Zum 1. Beitrag <<

S

Scout

2,5 Geschosse dürften da für 4 Köpfe m.E. gerade ausreichen. Wenn noch 2 Kinder kommen statt 1, wirds aber eng. Dann sollte der Keller schon dazu kommen, finde ich. (3 Kinder muss man sich leisten können. Da Hammer'se wieder, die Platz- und Kinderdiskussion.)
Sehe ich anders. Ursprünglich war mal von 9x9 Metern die Rede. Das sind 125 bis 130 m2 in 2 Vollgeschosse, also jeweils gut 60 m2 je Etage. Das ist eine ganz typische Doppelhaushälfte für eine Familie mit 2 Kindern!

EG kleiner Hauswirtschaftsraum und große einbauschränke im Flur, dazu kleiner Abstellraum unter der Treppe.

OG 3 Kinderzimmer mit Bad und kleiner Abstellraum.

Dazu kommt der Joker SG, also noch mal um die 35 m2:

1 Duschbad, 1 Eltern-Schlafzimmer (ohne Flur, direkt an die Treppe angrenzend) und ein HAR/Technik. Neben dem Schlafzimmer eine drei Meter tiefe Terrasse über 9 m Breite.

Solange nur zwei Kinder oder Kind 1 plus zwei weitere kleine Kinder da sind kann man eines der Kinderzimmer als Arbeitszimmer nutzen. Ansonsten kann man auch mal schauen ob man im SG evt. mit Schiebetüren sich bedarfsweise eine Ecke abtrennen kann.



Keller ja oder nein klingt auch so floppig locker. Wie steht's denn mit den Finanzen? Wenn der sowieso kein Problem ist, würd ich ihn immer bauen.
wenn er das nicht wäre würde der TE kaum nachfragen, vermute ich mal ganz naiv.
 
11ant

11ant

Zu Keller ist meine Meinung sonst klar (bei Bodenplattengrundstück Luxus ihn zu bauen, bei starkem Hanggrundstück Luxus ihn nicht zu bauen, dazwischen Einzelfallrechnung), aber hier steht offenbar ein Konzept hinter der Entwicklung des Baugebietes - ob das nun eine schöne ist oder nicht. Ich kann mich irren, aber ich lese hier in der Gesamtschau der Rahmenbedingungen die oben darauf gesetzten Keller als Wink mit dem Zaunpfahl, in den Sumpf oder sonstige Geländelasten lieber nicht hineinzustechen
Grundstücksentwickler - ob Bauträger oder Gemeinden - haben (nicht mehrheitlich, aber) regelmäßig Motive, die Altruismus, Volkswohlfahrt & Co in etwa hundertsiebziggradig gegenüberstehen.
 
kaho674

kaho674

Ja, eine Frage, die jeder anders empfindet. Wenn ich die Entwürfe bei Tolentino

sehe, dann ist er dort mit 10x6,50m für 3 Kinder ja auch ordentlich am schwimmen. 9x9 wären etwas mehr, aber eben nicht sehr viel mehr. Außerdem sind 9x9 ein sehr ungünstiges Maß, wo viel Standards oft nicht passen und dann Raum verloren geht.

Mit 5 Leuten wär es mir zu eng auf 9x9 - aber es steht ja noch die Option auf 10,5 x 9 - das wäre vermutlich ok ohne Keller. Aber dann ist auch wieder die Frage, ob man nicht lieber mit Keller baut und dafür eine größere Terrasse hat. Tja - schwierig. Ich denke, der TE muss erst mal ein komplettes Raumkonzept erstellen - was er alles braucht und ob es denn nun für 2 oder 3 Kinder reichen muss.
 
S

Scout

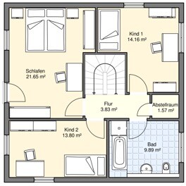
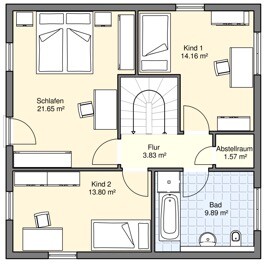
Mal so als Beispiel was auf 9x9 mit SG möglich wäre, basierend auf der Villa Casa 131 von bgw (die Fenster für die Garage müssen noch umversetzt werden): 3 Kinderzimmer, ein Technikraum, ein Wirtschaftsraum im EG, eine abtrennbare Arbeitsnische, auf jeder Etage ein Abstellraum und die Dachterrasse kann man sogar nutzen ohne durchs Schlafzimmer zu müssen, dieses hat dann ein Panoramafenster ins Freie, idealerweise mit Raffrollos.



Grundriss eines Einfamilienhauses mit Wohnbereich, Küche, Diele, HWR und WC


Grundriss eines Obergeschosses mit Schlafzimmer, zwei Kinderschlafzimmern, Bad und Flur.


Zweidimensionaler Grundriss eines Stockwerks mit Treppe, Abstellraum und Raumaufteilung
 
11ant

11ant

Außerdem sind 9x9 ein sehr ungünstiges Maß, [...]
Mit 5 Leuten wär es mir zu eng auf 9x9 - aber es steht ja noch die Option auf 10,5 x 9
Umgekehrt sehe ich hier dringend geboten, die Option, in diesem Baufenster auch noch freiwillige Selbstbeschränkung zu üben, nicht zu ziehen. Neunmalneun sind sozialer Villenbau - da braucht man schon 3D mit Dolby Surround und Puppenmöbeln, um das zu verschleiern. Zu viert und mit einfachen Ansprüchen reicht das, aber schon mit "oder" verknüpft eher nicht. Das Staffelgeschoss bleibt bei diesen Maßen auf weitem Abstand zu einem Penthouse, aber zum Hefte korrigieren kann man es sich da oben noch recht nett machen.
 
kaho674

kaho674

Mal so als Beispiel was auf 9x9 mit SG möglich wäre, basierend auf der Villa Casa 131 von bgw
Uiuiui, das find ich jetzt aber nicht sehr erstrebenswert, mal abgesehen davon, dass ich bei den Außenwandstärken so meine Zweifel hab. Aber lassen wir uns mal überraschen, was dem TE so vorschwebt.
 
Zuletzt aktualisiert 18.11.2025
Im Forum Keller gibt es 359 Themen mit insgesamt 3730 Beiträgen


Ähnliche Themen zu Einfamilienhaus bauen mit/ohne Keller bei kleinem Grundstück
Nr.ErgebnisBeiträge
1Grundrisse für Einfamilienhaus, ca. 140m², ohne Keller - Seite 1378
2Grundrissentwurf Einfamilienhaus ca. 230qm plus Keller - Seite 536
3DG als abgeschlossene Wohneinheit planen sinnvoll? 10
4Schlafzimmer im Keller 13
5Grundriss für schmale Doppelhaushälfte - Keller + 2 VG+ DG ohne Kniestock 53
6Grundriss Einfamilienhaus ohne Keller, 3 Kinderzimmer und Büro 18
7Grundriss Einfamilienhaus 155m², ohne Keller, 3 Kinderzimmer, 1 Büro 38
8Werkplanung Einfamilienhaus 180qm Flachdach mit Keller & Doppelgarage - Seite 2142
9Einfamilienhaus mit Keller und Doppelgarage 9,2x11m Grundriss-Plan optimieren 20
10Treppe im Wohnzimmer als Hype - Pro & Contra? - Seite 426
11Grundrissplanung Einfamilienhaus (Stadtvilla) ca.140m² (3 Kinderzimmer) 42
12160m2 Einfamilienhaus in Holzständerbauweise am Nordhang mit Keller - Seite 2100
13Einfamilienhaus (2Etagen+Wohn-Keller+ausgebautes Dach) etwa 200qm -Änderungen - Seite 7162
14Grundriss Einfamilienhaus ca. 200qm Doppelgarage Keller - Seite 232
15Grundrissplanung Stadtvilla Doppelgarage | Keller | KFW40+ | 205m² - Seite 326
16Grundrissoptimierung Einfamilienhaus in Hanglage Eingeschossig + Keller - Seite 232
17Grundriss Bungalow 160-170qm mit Keller - Seite 5175
18Grundriss Einfamilienhaus 190m2 mit Keller Feedback? - Seite 441
19Einschätzung & Hilfe Doppelhaushälfte, ca 180 qm im DIY-Grundriss 62
20Sauna im Haupt-Bad oder im Keller? - Seite 634

Oben