Einfamilienhaus ca. 180 m² - Was meint ihr dazu?

4,70 Stern(e) 3 Votes
Zuletzt aktualisiert 21.11.2025
Sie befinden sich auf der Seite 6 der Diskussion zum Thema: Einfamilienhaus ca. 180 m² - Was meint ihr dazu?
>> Zum 1. Beitrag <<

M

Maria16

Auf welches Klo wollt ihr im Alter mal gehen? Mit Rollator ist das im EG schon raus, zu eng.

Der TV vor/ neben einem Westfenster wird immer dazu führen, dass dort der Rollo runter muss, wenn man was sehen will. Gegen das helle Fenster schauen ist ja auch nicht das Wahre.
 
E

emundem

Hallo zusammen,

ich möchte mich noch mal für die Kritik/Rückmeldungen bedanken. Wir haben nun noch mal einiges geändert und würden auch da gerne eure Meinungen und Bedenken hören.

Also was haben wir geändert:
Den Teilungsquark zwischen EG und OG lassen wir bleiben, aber die Kinder sollen oben ihren eigenen Bereich bekommen.
Die Waschmaschine/Wäschetrockner kommen in den Hauswirtschaftsraum/Technik.
Kochen/Essen/Wohnen wurde vergrößert und ich denke doch wohnlicher gestaltet.
Keller unter Garage/Carport kommt weg
Das Labyrinth wurde entwirrt

Was meint ihr zu dieser Richtung, was hat sich eurer Meinung nach verbessert, was verschlechtert?

Grundriss: Garage, Lager, Kueche/Essen/Wohnen, Speis, Vorraum, Schlafzimmer, Bad, WC, HWR/Technik


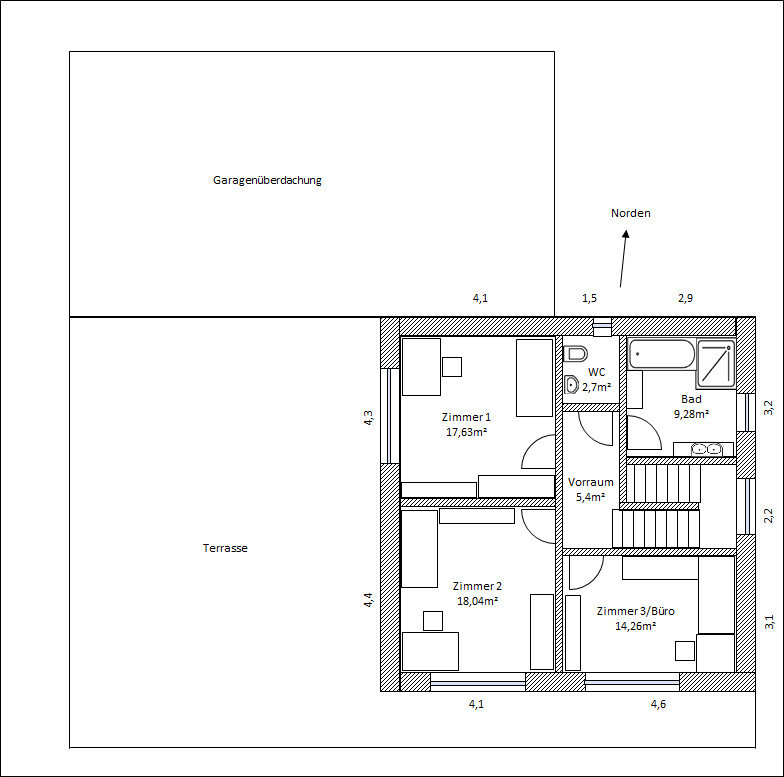
Grundriss eines Hauses: drei Zimmer, Bad, WC, Vorraum, Terrasse, Garageüberdachung, Norden oben.


Grundriss eines Hauses mit Küche/Essen/Wohnen, Garage, Schlafzimmer, Bad, WC, HWR, Speis, Lager.
 
kaho674

kaho674

Also man kann so bauen und wohnen - es ist jetzt kein dramatischer Murks, würde ich sagen. Außer die Treppe im Bad. Die ist für mich ein Planungsfehler. Soll die aus Holz sein im Nassbereich?
Davon ab:
- 17m² Bad und kein Platz für eine große Dusche oder Badewanne.
- Der Wohn-/Essbereich ist zwar funktionstüchtig, aber ist der so auch schön? So eine abbe Ecke sieht auf dem Papier vielleicht interessant aus. Beim drin wohnen rennt man gefühlt immer auf die Ecke zu, die einem entgegen springt. Hier würde ich dringend zu 3D-Animation raten und mal durchlaufen.
 
E

emundem

Also man kann so bauen und wohnen - es ist jetzt kein dramatischer Murks, würde ich sagen. Außer die Treppe im Bad. Die ist für mich ein Planungsfehler. Soll die aus Holz sein im Nassbereich?
Davon ab:
- 17m² Bad und kein Platz für eine große Dusche oder Badewanne.
- Der Wohn-/Essbereich ist zwar funktionstüchtig, aber ist der so auch schön? So eine abbe Ecke sieht auf dem Papier vielleicht interessant aus. Beim drin wohnen rennt man gefühlt immer auf die Ecke zu, die einem entgegen springt. Hier würde ich dringend zu 3D-Animation raten und mal durchlaufen.
Na immerhin kein großer Murks, also schon mal eine eindeutige Verbesserung zum Ausgangsentwurf

Die Treppe würde betoniert sein, und so eine Dachschräge im Bad ergeben. Dort könnte ein Handtuchtrockner hin und/oder WC Vorbereitung für den Fall der Fälle.

Die 17m² sind groß, meinst du, man kann das Bad noch anders möblieren? Die Entscheidung zu nur Dusche im EG ist aber bewusst gefallen.

Was war noch mal der Grund wieso oben das WC vom Bad getrennt ist? Find ich unnötig.
Das WC oben vom Bad getrennt, da eventuell drei Kinder und wir das als angenehmer empfinden, vor allem in der Stoßzeit in der Früh. Ist aber auch kein Muss.
 
E

emundem

- Der Wohn-/Essbereich ist zwar funktionstüchtig, aber ist der so auch schön? So eine abbe Ecke sieht auf dem Papier vielleicht interessant aus. Beim drin wohnen rennt man gefühlt immer auf die Ecke zu, die einem entgegen springt. Hier würde ich dringend zu 3D-Animation raten und mal durchlaufen.
Wie meinst du könnte man diese Ecke entschärfen?
 
Zuletzt aktualisiert 21.11.2025
Im Forum Grundrissplanung / Grundstücksplanung gibt es 2535 Themen mit insgesamt 87982 Beiträgen


Ähnliche Themen zu Einfamilienhaus ca. 180 m² - Was meint ihr dazu?
Nr.ErgebnisBeiträge
1Grundrissfrage, Treppe, Fenster, Ausrichtung - Seite 212
2Grundrissfrage, Garage, Treppe 33
3Dusche auf Podest und Schubfach 13
4Grundrissfrage: Tausch gerader Treppe durch L-Treppe 31
5 2 Vollgeschosse, Durchgang Garage, Hauswirtschaftsraum unter Treppe 25
6Wohin mit der Treppe? Dachausbau Walmdachbungalow - Seite 319
7Treppe im Flur, Grundriss steht eigentlich schon :o( 20
8Was ist bei einer Treppe beachten/Unterschie Wendeluing 22
9Frage zu Grundriss, insbesondere Treppe 13
10Treppe Grundriss Planung, Auftritt und Unterzug - Seite 221
11Technikraum so klein wie möglich - Unter der Treppe? 10
12Treppe ohne Geländer geliefert und ich muss nun nachzahlen? - Seite 319
13Welche Treppe habt ihr genommen 77
14Gerade Treppe - warum? 14
15Baumangel - Treppe nicht in Ordnung - Seite 212
16Treppe - Sind die Treppenmaße 2.00x2.00m in Ordnung? - Seite 668
17Einfamilienhaus ca. 150 qm Grundriss - Treppe wie planen? 65
18Stadtvilla mit gerader Treppe, offene moderne Bauweise, 140m² - Seite 218
19Treppe im Wohnzimmer als Hype - Pro & Contra? - Seite 426
20Fliesen auf halbgewendelter Treppe - Wer hat da Erfahrungen? - Seite 638

Oben