Einfamilienhaus - ca. 150qm² - ohne Keller - Wer hat Ideen? Danke

4,00 Stern(e) 6 Votes
Zuletzt aktualisiert 23.11.2025
Sie befinden sich auf der Seite 30 der Diskussion zum Thema: Einfamilienhaus - ca. 150qm² - ohne Keller - Wer hat Ideen? Danke
>> Zum 1. Beitrag <<

kaho674

kaho674

Also da bin ich jetzt echt enttäuscht, dass der den selben Quark wieder anbietet, nur die Namen der Zimmer ändert. Lach! Ich würd ja mal fragen, ob er noch ne ganz neue Idee hat oder ob er nur einen Entwurf kann.
Das WZ gefällt mir nicht. Komische Form. Oben hat sich nichts geändert.
 
T

tumaa

Also da bin ich jetzt echt enttäuscht, dass der den selben Quark wieder anbietet, nur die Namen der Zimmer ändert. Lach! Ich würd ja mal fragen, ob er noch ne ganz neue Idee hat oder ob er nur einen Entwurf kann.
Das WZ gefällt mir nicht. Komische Form. Oben hat sich nichts geändert.
ehrlich gesagt, verstehe ich es auch nicht ganz, hatte es ihm gesagt , dass mir das im OG nicht ganz passt.

ich werde wieder alles sammeln und ich sage es ihm noch mal , solange bis es passt .Hatte ihn beim letzten Gespräch darauf hingewiesen, dass mit sowas zu rechnen ist, immer wieder Änderungen vornehmen soll, er konnte es verstehen .
 
T

tumaa

Moin Katja , danke für deine Mühe, vom Gefühl her, gefiel mir der andere besser, welcher sinnvoller ist, das kann ich nicht sagen.

Bei dem Vorgänger würde ich die Ankleide im OG weglassen und dafür ein Kinderzimmer größer machen wollen (sollte natürlich im Rahmen ), sollte zumindest für 2 Kids ausreichend sein.
Die Tür zur Speisekammer könnte vom Flur aus sein, so hat man l-förmige Küche (bevorzugt meine Frau).

Vielleicht jemanden noch was ein.....

Ein schönes Wochenende!!

Gruss

Ps: Ein neues Backvideo kommt morgen oder so online

Grundriss einer Wohnung: Küche links, Wohnen rechts, Diele Mitte, Dusche links, Medien rechts.


Grundriss eines Dachgeschosses mit Zimmern, Treppe, Ankleide und Dusche.
 
T

tumaa

Wollte mich hier noch mal zurückmelden ....

Update, werden ca. 190qm²:

EG und OG wurden angepasst

weiteres zum EG:
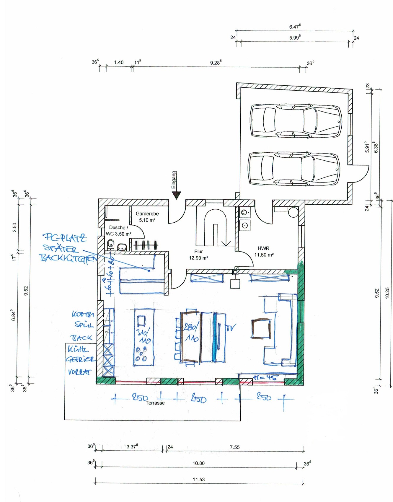
- die Tür vom Hauswirtschaftsraum zur Garage kommt weg
- die Garagentür kommt nach Süden
- das östliche Fenster im Osten kommt ebenfalls weg

zum OG:
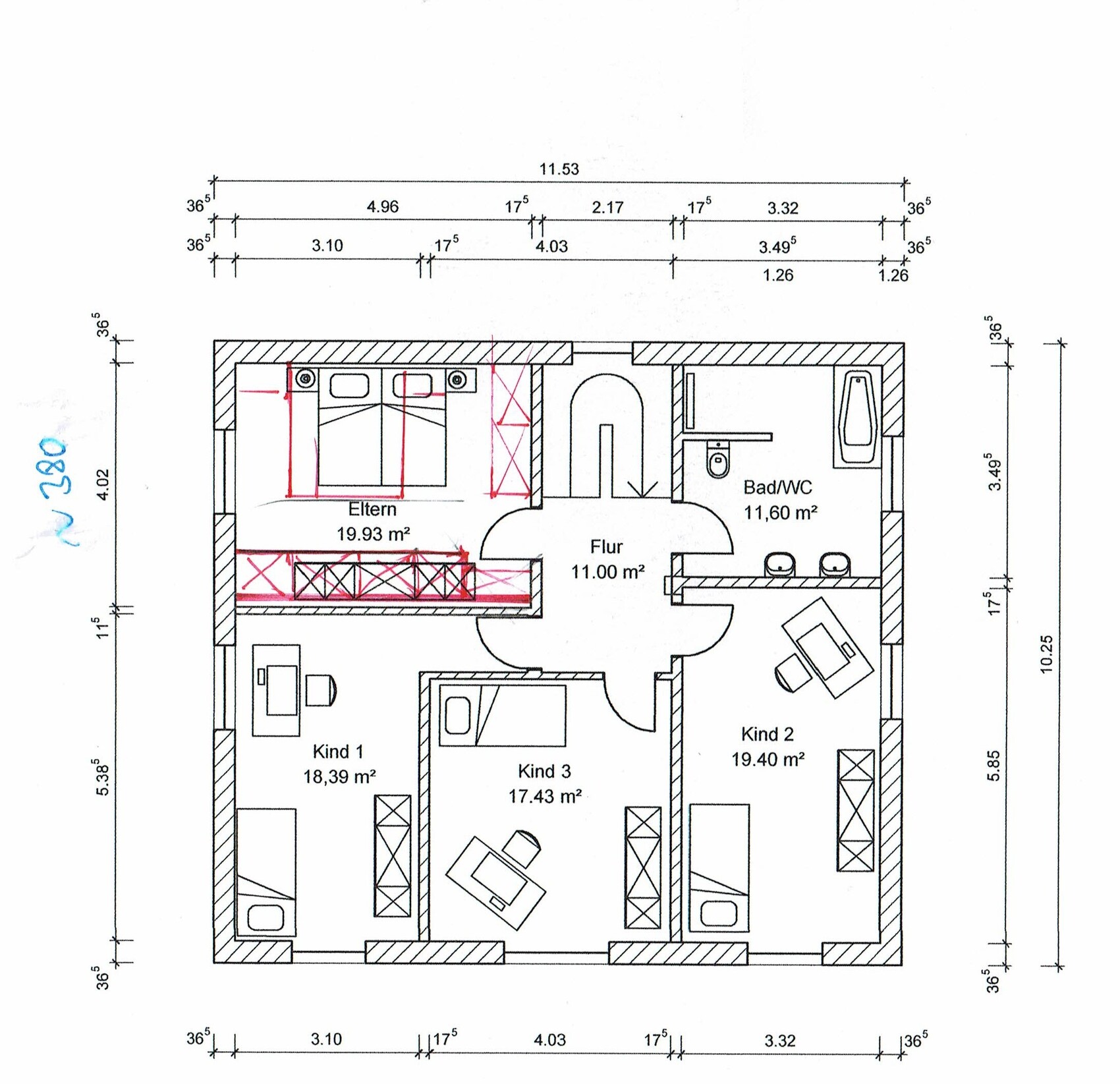
- das Schlafzimmer wird ein wenig kleiner gemacht, damit der Eingang zum Kinderzimmer 1 nicht so eng wirkt.
- Die südlichen Fenster im Kinderzimmer 1&2 werden die gleiche Größe wie vom Kinderzimmer 3 haben
- es werden keine bodentiefe Fenster, sondern normale mit einer Fensterbank

Was meint ihr, sind dann die seitlichen Fenster im Kinderzimmer 1&2 überflüssig ?, der Architekt hatte mir diese empfohlen (da die Zimmer größer sind)


zum Dachboden:
- es war ein Walmdach geplant, wollte diesen gerne ausbauen lassen, zumindest Vorbereitungen schon mal dafür treffen. Nun ist ein flacheres Satteldach geplant mit einer Kniestockhöhe von 50cm (sollte diese Woche erfolgen)


Verwendungsmöglichkeiten für uns:
- zusätzlicher Stauraum
- gemeinersamer Rückzugsort für die Kinder
- Gäste-Zimmer
- höchstwahrscheinlich in paar Jahren ein weitere Kiz



Fällt euch noch was ein ?


Bitte nur Kommentare zum Entwurf , danke!

Grundriss eines Hauses: Garage, offener Wohnbereich, Küche, Flur, Garderobe, Dusche/WC und Terrasse


Grundriss eines Hauses mit Elternzimmer, drei Kinderzimmern, Flur und Bad/WC.
 
Zuletzt aktualisiert 23.11.2025
Im Forum Grundrissplanung / Grundstücksplanung gibt es 2535 Themen mit insgesamt 87992 Beiträgen


Ähnliche Themen zu Einfamilienhaus - ca. 150qm² - ohne Keller - Wer hat Ideen? Danke
Nr.ErgebnisBeiträge
1Umbau Kinderzimmer - Fenster in zwei Fenster aufteilen? 20
2Einfamilienhaus, ~160m², Bauhausstil; Erster Entwurf nach unseren Wünschen - Seite 13420
3Planung unseres Einfamilienhaus - Was meint ihr zum Entwurf? - Seite 656
4Entwurf EFH, 2 Vollgeschosse, Satteldach, kein Keller, Doppelgarage - Seite 331
5Rensch-Haus Erfahrungen und Preise - Fertighaushersteller - Seite 458
6Hanse Haus oder Rensch-Haus Niederbayern 34
7Schalter für Rollläden am Fenster oder an der Tür? 38
8Grundriss erster Entwurf - Meinungen erwünscht - Seite 321
9OG Stadtville optimieren. Fenster Bodentief - Seite 13104
10Erst-Entwurf vom Architekten - Optimierung 28
11Allererster Grundriss-Entwurf des Erdgeschosses - Seite 42267
12Einfamilienhaus 180-190qm auf 10x20m Baufenster, erster Entwurf GU - Seite 278
13Grundriss Bungalow 150qm geschlossene Küche, überdachte Terrasse - Seite 540
14Unser Hausentwurf mit 259qm Wohnfläche EG und OG, Doppelgarage 50
15 Küchenplanung mit tiefen Fenster - Seite 643
16Grundriss Einfamilienhaus geplant, Fenster gefallen uns - Seite 343
17Jalousien in Kinderzimmer und Bad auf der Südseite 12
18Größe vom Schlafzimmer und Kinderzimmer - Seite 238
19Aufmusterung Elektro, Q2, Badfliesen, Drempel, bodentiefe Fenster 23
20Kinderzimmer und Schlafzimmer - Welche Größe ist zu empfehlen? - Seite 856

Oben