Einfamilienhaus - ca. 150qm² - ohne Keller - Wer hat Ideen? Danke

4,00 Stern(e) 6 Votes
Zuletzt aktualisiert 20.11.2025
Sie befinden sich auf der Seite 33 der Diskussion zum Thema: Einfamilienhaus - ca. 150qm² - ohne Keller - Wer hat Ideen? Danke
>> Zum 1. Beitrag <<

T

tumaa

Ein Bekannter hatte mir gesagt, dass das Dach eine Neigung von 30° haben soll und es stehen mir dadurch dann ca. 53qm² zur Verfügung.

Die Raumaufteilungen gefallen mir sehr gut....



die Außenansicht (Fenster) noch nicht ganz, fehlt mir etwas irgendwie.

-Ich hatte an einer Giebelverglasung nachgedacht, vielleicht auch an der Nordseite ?

-Breitere Fenster in den Kinderzimmer (Südseite, glaube sind momentan 1,76m? ) , dadurch könnten man die seitlichen Fenster im Kinderzimmer 1 und 3 entfernen ?

-Im EG (Südseite) kommt rechts auch ein bodentiefes hin.

- Die Fenster an der Nordseite



Vielleicht fällt noch jemanden was ein, sonst sage ich es noch mal meinem Architekten (hoffe, er wird es zusätzlich nicht berechnen, über Geschmack lässt sich ja streiten ).
 
T

tumaa

Hallo zusammen,

die Ansichten werden angepasst.

Bin momentan an der lichter Raumhöhe stehen geblieben, diese doch von 2,50m auf min. 2,60 zu erhöhen ? ( der wohn- und Essbereich ist offen mit ca. 63qm2)

Kann wer was dazu sagen bzw. einen Tipp geben ?


Danke!

Gruss
 
T

tumaa

Grüß Gott.....

Update: Bauantrag wurde unterschrieben.....

- das Gäste-WC hat noch Verbesserungspotenzial, die Dusche wird noch bisschen vergrößert
- neben der Küche ist ein Videoschnittplatz geplant, später eine Backupküche
- die Trennwand im Wohnbereich geht nicht bis zur Decke, Max. 1,40m hoch.
- das OG-Bad wird von der Aufteilung anders aussehen

Ein schönes Wochenende !


Gruß

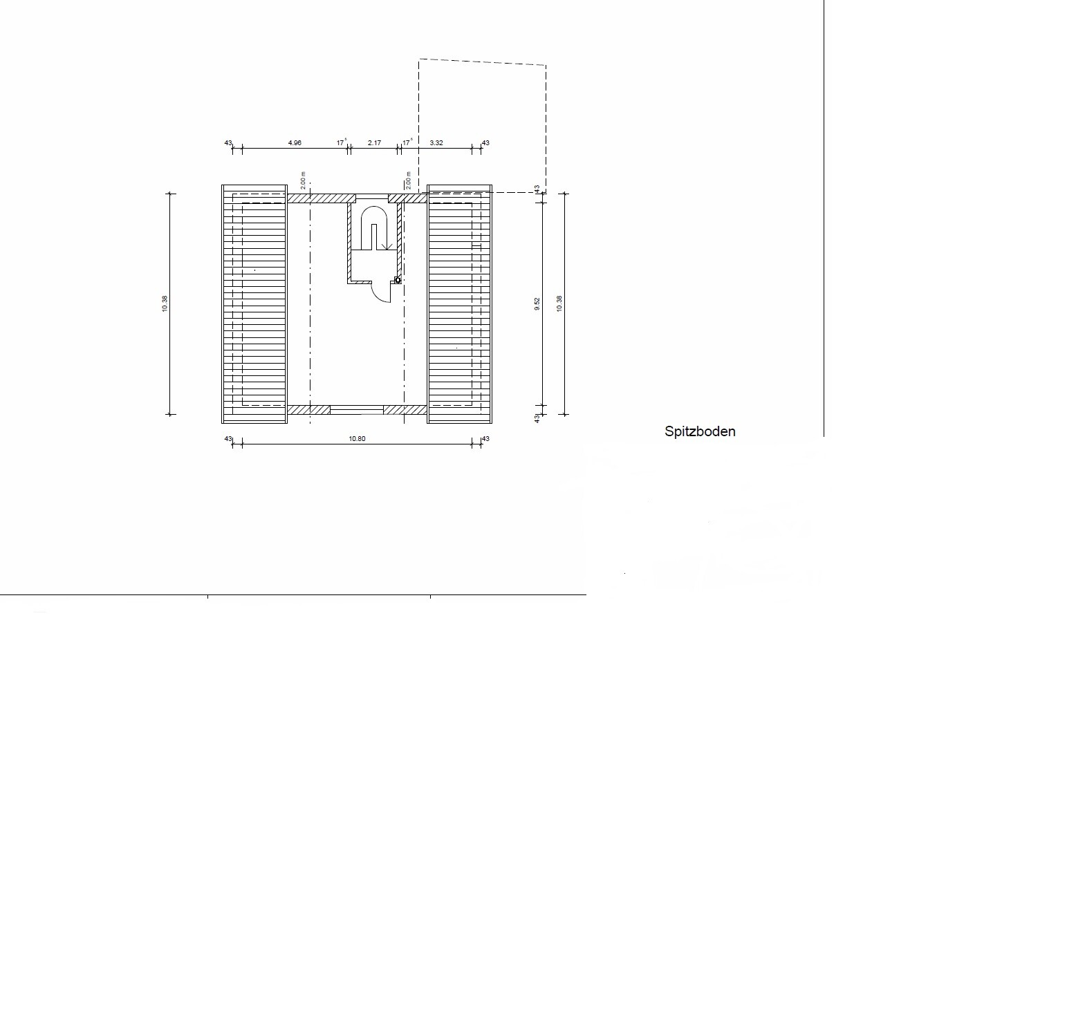
Grundriss Spitzboden mit Treppe, Wänden und Maßangaben.


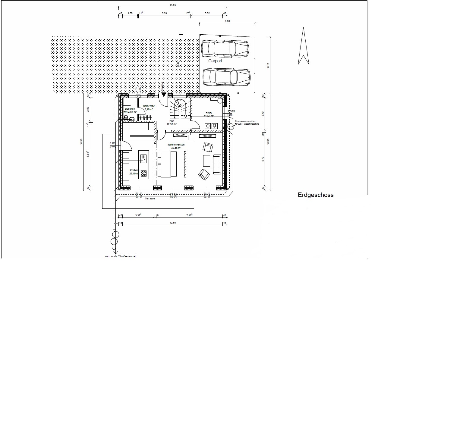
Grundriss Erdgeschoss: Küche, Wohnen/Essen, Bad, Garderobe, Flur, Carport (2 Autos), Terrasse.


Zweigeschossiges Haus mit Carport, Turmfenstern, Eingang und Busch; Nord- und Ostansicht.


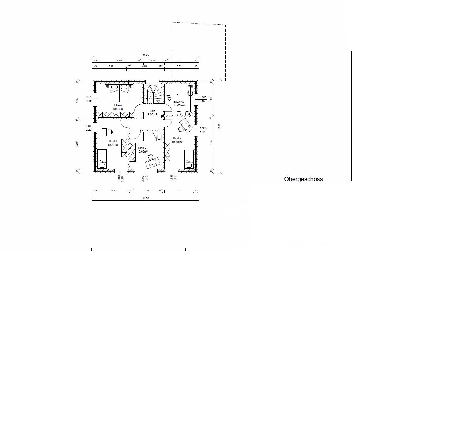
Grundriss Obergeschoss: Eltern-Schlafzimmer, drei Kinderzimmer, Flur und Bad/WC.


Querschnitt durch ein zweigeschossiges Haus mit Treppen und Maßlinien (Schnitt).


Süd- und Westansicht eines zweigeschossigen Hauses mit Carport und Baum.
 
Zuletzt aktualisiert 20.11.2025
Im Forum Grundrissplanung / Grundstücksplanung gibt es 2535 Themen mit insgesamt 87978 Beiträgen


Ähnliche Themen zu Einfamilienhaus - ca. 150qm² - ohne Keller - Wer hat Ideen? Danke
Nr.ErgebnisBeiträge
1Umbau Kinderzimmer - Fenster in zwei Fenster aufteilen? 20
2 Küchenplanung mit tiefen Fenster - Seite 643
3Grundriss Einfamilienhaus geplant, Fenster gefallen uns - Seite 343
4Jalousien in Kinderzimmer und Bad auf der Südseite 12
5Größe vom Schlafzimmer und Kinderzimmer - Seite 338
6Aufmusterung Elektro, Q2, Badfliesen, Drempel, bodentiefe Fenster 23
7Kinderzimmer und Schlafzimmer - Welche Größe ist zu empfehlen? - Seite 856
8Einrichtung Kinderzimmer - Wie sollen wir die gestalten? - Seite 215
9Grundrissplanung Einfamilienhaus (Stadtvilla) ca.140m² (3 Kinderzimmer) - Seite 242
10Bodentiefe Fenster - Warum bodentiefe Fenster? Vor- Nachteile? - Seite 2112
11Bodentiefe Fenster - Was habt Ihr für Vorhänge? 21
12OG Stadtville optimieren. Fenster Bodentief - Seite 13104
13Entwurf Einfamilienhaus mit 3 Kinderzimmer, Keller und Grenzbebauung 32
14Kinderzimmer in Dachgeschoss zu klein geplant? - Seite 633
15Fenster Stadtvilla 1,26x1,45 optisch ein Fehler ? - Seite 210
16Frontansicht Fenster sind suboptimal und müssen optimiert werden - Seite 990
17Kinderzimmer Richtung Norden - eure Meinung? - Seite 213
18Grundriss-Aufteilung OG - Elternbereich / 2 Kinderzimmer mit Bad 26
19Einbruchsichere Fenster? 33
20Innenraum Gestaltung - Fenster 14

Oben