Einfamilienhaus - ca. 150qm² - ohne Keller - Wer hat Ideen? Danke

4,00 Stern(e) 6 Votes
Zuletzt aktualisiert 23.11.2025
Sie befinden sich auf der Seite 29 der Diskussion zum Thema: Einfamilienhaus - ca. 150qm² - ohne Keller - Wer hat Ideen? Danke
>> Zum 1. Beitrag <<

kaho674

kaho674

Nein, Backup-Küche und Hauswirtschaftsraum sind 2 paar Schuhe. Das eine gehört zur Traumküche Deiner Frau und ist gleichzeitig Lagerplatz. Glaub mir, den willst Du.
Im Hauswirtschaftsraum hingegen liegt die dreckige Wäsche rum. Die sollte möglichst nicht neben dem Weihnachtsbraten lagern. Außerdem Eimer, Staubsauger und ähnliches Gedöns. Mach den nicht zu klein - Du brauchst den Platz.

Das Notebook samt Arbeitsplatz mit im WZ seh ich auch undramatisch. Tatsächlich werde ich mein WZ beim nächsten Einkauf auch mit PC-Tisch einrichten. Die Notebooks liegen derzeit immer auf unserem Sofa rum, obwohl wir ein Büro haben. Ist halt einfach schöner zusammen in der Kuschelecke.

Du willst gern Platz sparen, versteh ich. Aber was Du unten wegrationalisierst, muss auch oben weg und da fehlt es Dir dann.

Nun, je mehr Wünsche und Menschlein, desto schwieriger wird es. Das Haus wächst von Beitrag zu Beitrag. Ich fürchte, irgendwann musst Du dann doch mal den Rotstift rausholen.
 
T

tumaa

Ja....werde deinen letzten Plan als Grundlage nehmen und werde es dem Architekten sagen, was ggf. noch geändert werden muss.


Was kann ich noch ausser *vielen Dank* sagen ?!

Melde mich dann....

Schönes Wochenende!!
 
kaho674

kaho674

Wenn das kleine Bad oben raus fliegt, entspannt das die Situation noch ein wenig. Ich komm jetzt auf 9,45 x 11,5m + Erker.

Hab mal nur ein paar gängige Sachen in die Wirtschaftsräume gestellt, damit Du den Platzbedarf erkennst. Im Hauswirtschaftsraum Waschmaschine + Trockner, ein Wäscheständer + 1 Wäschekorb (der nicht reichen wird). Im Technikraum Heizung + Wasserspeicher, Elektrik, Wasseranschluss und ein Schrank für Werkzeuge + Eimer und Besen.


Grundriss eines Wohnhauses mit mehreren Zimmern, Küche, Bad und Treppenhaus.

Grundriss eines Hauses mit Diele, Treppe, Küche, Technik, HWR, SPK, GWC und Waschplatz.



Zweistöckiges graues Haus mit Holztüren und Fenstern auf grünem Rasen
 
T

tumaa

Wenn das kleine Bad oben raus fliegt, entspannt das die Situation noch ein wenig. Ich komm jetzt auf 9,45 x 11,5m + Erker.

Hab mal nur ein paar gängige Sachen in die Wirtschaftsräume gestellt, damit Du den Platzbedarf erkennst. Im Hauswirtschaftsraum Waschmaschine + Trockner, ein Wäscheständer + 1 Wäschekorb (der nicht reichen wird). Im Technikraum Heizung + Wasserspeicher, Elektrik, Wasseranschluss und ein Schrank für Werkzeuge + Eimer und Besen.

Anhang anzeigen 29700 Anhang anzeigen 29701

Wow.......God Bless U !!!!!!!
 
T

tumaa

Hallo zusammen,

noch mal n Update von mir:

- nicht wundern, hatte es schon Katja gesagt, ihren Entwurf konnte ich so nicht direkt umsetzen lassen, war was mit den Wänden etc. (laut Architekten).

der erste Vorentwurf des Architekten wurde nochmals überarbeitet.

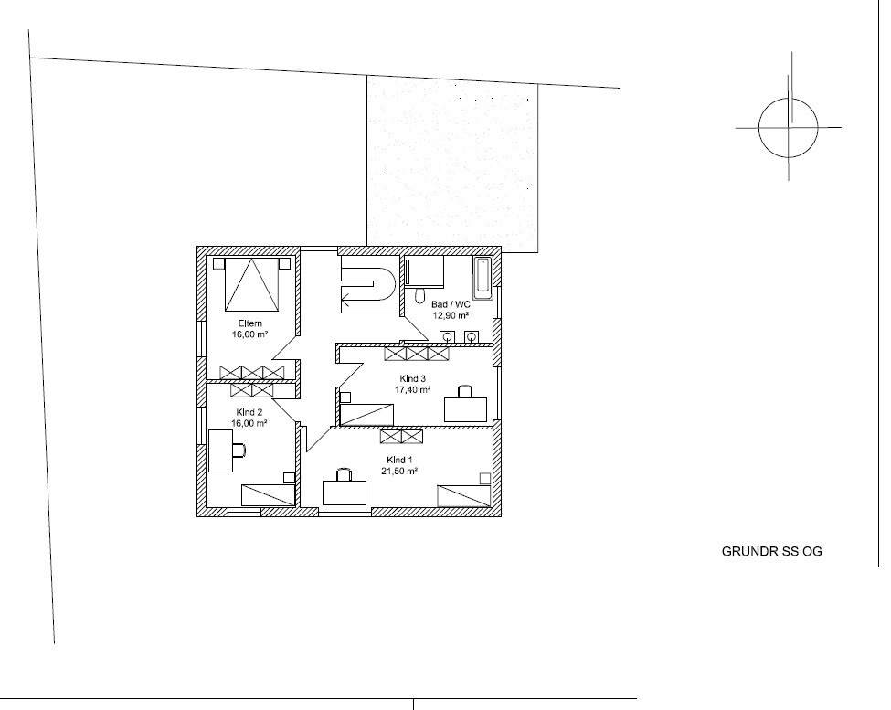
-oben sollte ein Kinderzimmer größer gemacht werden, falls noch mal Nachwuchs kommen sollte (wäre dann das 4.Kind), dann wären erst mal zwei Geschwisterchen zusammen in einem Zimmer, denke es ist zumutbar bis zu einem gewissen Alter bzw. vielleicht klappt es auch nicht mit dem Nachwuchs .,

Wir wissen, wie viel wir brauchen , mich stört noch immer dieses unrunde oben, vielleicht ist es architektonisch schwer umzusetzen ? (hatte es dem Architekten vorher gesagt)......

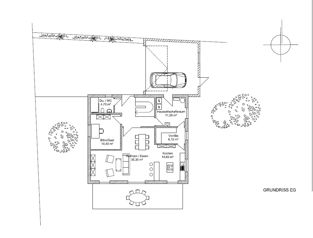
Im EG sollte eig. das Gäste/Bürozimmer weg, vielleicht war es zu schade und der Architekt hat es trotzdem drin gelassen (tote Fläche), oder wenn es altersbedingt für uns sinnvoller ist ?. ggf. könnte man diesen kleiner gestalten, damit der Wohnbereich größer wird ?

Vielleicht sollte man im OG Schlafzimmer mit Kinderzimmer 3 tauschen ?

Eben alles frisch bekommen .......habe mich noch nicht beim Architekten dazu geäußert , will erst mal sammeln.



Jetzt bin ich wieder dran, ihr könnte euch gerne auskotzen ...nein Spaß bei Seite , bin froh über jede weitere Anregung.

Euch noch n schönen Tag !

Danke !

Grundriss EG: Wohnen/Essen, Küche, Büro/Gast, Dusche/WC, Vorrat, Hauswirtschaftsraum, Garage


Grundriss OG: Elternzimmer, drei Kinderzimmer, Bad/WC, Flur
 
Zuletzt bearbeitet:
Zuletzt aktualisiert 23.11.2025
Im Forum Grundrissplanung / Grundstücksplanung gibt es 2535 Themen mit insgesamt 87992 Beiträgen


Ähnliche Themen zu Einfamilienhaus - ca. 150qm² - ohne Keller - Wer hat Ideen? Danke
Nr.ErgebnisBeiträge
1Grundrissplanung Hanghaus mit 5 Kinderzimmer - Seite 4370
2Kataloghaus oder freie Planung mit Architekten - Seite 212
3Neubau Einfamilienhaus 160-170qm, 3 Kinderzimmer 39
4Minimale Grundfläche - Hauswirtschaftsraum und AZ im EG - Ohne Keller 19
5Hauswirtschaftsraum im OG - Probleme mit Lärm? 27
6Grundriss Einfamilienhaus ohne Keller, 3 Kinderzimmer und Büro 18
7Grundriss 3 Kinderzimmer Einfamilienhaus - Potenziale? 43
8Grundriss Einfamilienhaus 155m², ohne Keller, 3 Kinderzimmer, 1 Büro - Seite 538
9Grundriss Einfamilienhaus, ca. 200qm ohne Keller - Einschätzung - Seite 2172
10Wir brauchen einen Architekten - oder soll ich das selbst machen? - Seite 214
11Erfahrungen mit Architekten 15
12Schlüsselfertig oder mit Architekten bauen? 19
13Kostenschätzung zweier Architekten liegen weit auseinander! 10
14Braucht man unbedingt einen Architekten? 10
15Vorplanung mit dem Architekten - eigener Grundriss sinnvoll? 18
16Baukosten bei Bau mit Architekten. Was sagt eure Erfahrung? 18
17Kostenplanung Einfamilienhaus inkl. Grundstück, Nebenkosten, Architekten 32
18Architekten finden - aber wie? - Seite 426
19Massivhaus vom Architekten, ungefähre Kosten? 16
20Pflichten des Architekten bei Ausschreibung 18

Oben