Willkommen in meinem 2. Grundriss Thema.
Im ersten Thema war der Input des Forums wirklich toll, allerdings sind wir weder mit dem Entwurf noch mit der Baufirma zusammen gekommen. Daher jetzt der 2. Ansatz. Der Übersichtlichkeit halber im neuen Thema.
Zur Situation:
Am Plan, der genordet ist:
rot: das Grundstück, Zufahrt via Weg rosa, Haus wäre momentan am blauen Standpunkt. Bestehendes Gebäude Gelb als Garage und Kellerersatz, rundherum am Grundstück Garten.
auf der westlichen Grundstücksgrenze Bestandsbau vom Nachbarn, hohe landwirtschaftliche Lagerhallen.
2 Vollgeschosse möglich.
"Geschlossene Bauweise" ist ein Muss. d.h. mindestens an eine Seite anbauen, an die andere Seite zumindest mittels Mauer/Tor o.ä.
Grundstück ist an der schmalsten Stelle, ganz nördlich, exakt 12m breit. Eine Durchfahrtsmöglichkeit wäre nett (auch wegen bestehender Garage), daher 9m maximale Breite des Hauses.
Größe des Grundstücks: 630m²
Hang: nein, nur sehr leicht abfallend
kein Keller, zusätzliche Garage vorhanden, siehe gelbe Markierung am Plan.
2 Geschosse, momentan 2 Erwachsene, 34 und 35. 1-2 Kinder geplant.
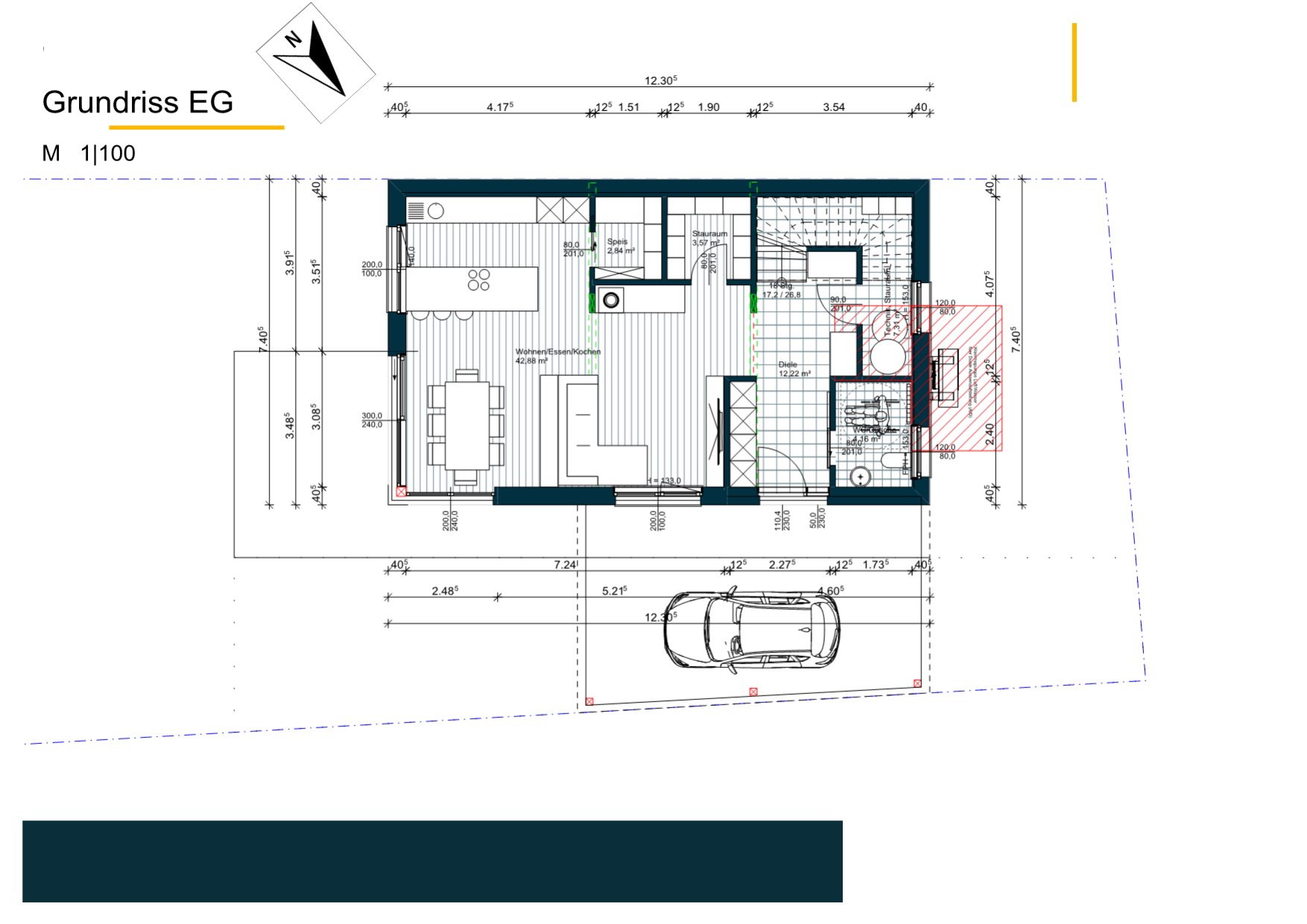
gewünschte Räume:
EG:
Wohnzimmer / Essen / Küche, mit Kamin
Speis / Abstellraum
WC+Dusche
Vorraum/Garderobe
Technikraum
OG:
Schlafzimmer,
Ankleide/Wirtschaftsraum mit Waschmaschine
1 Kinderzimmer
Bad
Büro zur Homeoffice Nutzung (falls es wirklich ein 2. Kind gibt, wird der Raum zum Kinderzimmer)
Gäste: eher sehr selten, ausziehbare Couch im Büro ausreichend.
Stilrichtung: klassisch-modern, Satteldach
unbedingt offene Küche, Insel wäre nett, 6 Essplätze, mit Möglichkeit auf mehr.
"normale" Wohnzimmerwand mit TV, nichts besonderes.
Größe: 140-170m²
momentaner Hausentwurf:
vom Architekten eines FTH Anbieters
Wir schon recht zufrieden damit. Exakte Einrichtung des Bades vielleicht noch bessere machbar?
Aufteilung im OG noch nicht perfekt? Schlafzimmer und Kinderzimmer tauschen? Kamin "durchs" Kinderzimmer?
Der momentane Entwurf hat ca. 148m² Wohnfläche.
400.000,- Budget fürs Haus, Schlüsselfertig.
Technik: Wärmepumpe. Kontrollierte-Wohnraumlüftung und KNX noch in Diskussion (würde dann vermutlich das Budget "ändern"...)
Wenn Ihr verzichten müsst, auf welche Details/Ausbauten
-könnt Ihr nicht verzichten: offener Wohnraum, mit Terrasse.
Sonst eher flexibel.
Offene Fragen:
Grundsätzliche Kommentare sind erwünscht. Meinungen zur Raumaufteilung? Welche Schwachstellen hat der Plan?
Herzlichen Dank für alle Beiträge!

Im ersten Thema war der Input des Forums wirklich toll, allerdings sind wir weder mit dem Entwurf noch mit der Baufirma zusammen gekommen. Daher jetzt der 2. Ansatz. Der Übersichtlichkeit halber im neuen Thema.
Zur Situation:
Am Plan, der genordet ist:
rot: das Grundstück, Zufahrt via Weg rosa, Haus wäre momentan am blauen Standpunkt. Bestehendes Gebäude Gelb als Garage und Kellerersatz, rundherum am Grundstück Garten.
auf der westlichen Grundstücksgrenze Bestandsbau vom Nachbarn, hohe landwirtschaftliche Lagerhallen.
2 Vollgeschosse möglich.
"Geschlossene Bauweise" ist ein Muss. d.h. mindestens an eine Seite anbauen, an die andere Seite zumindest mittels Mauer/Tor o.ä.
Grundstück ist an der schmalsten Stelle, ganz nördlich, exakt 12m breit. Eine Durchfahrtsmöglichkeit wäre nett (auch wegen bestehender Garage), daher 9m maximale Breite des Hauses.
Größe des Grundstücks: 630m²
Hang: nein, nur sehr leicht abfallend
kein Keller, zusätzliche Garage vorhanden, siehe gelbe Markierung am Plan.
2 Geschosse, momentan 2 Erwachsene, 34 und 35. 1-2 Kinder geplant.
gewünschte Räume:
EG:
Wohnzimmer / Essen / Küche, mit Kamin
Speis / Abstellraum
WC+Dusche
Vorraum/Garderobe
Technikraum
OG:
Schlafzimmer,
Ankleide/Wirtschaftsraum mit Waschmaschine
1 Kinderzimmer
Bad
Büro zur Homeoffice Nutzung (falls es wirklich ein 2. Kind gibt, wird der Raum zum Kinderzimmer)
Gäste: eher sehr selten, ausziehbare Couch im Büro ausreichend.
Stilrichtung: klassisch-modern, Satteldach
unbedingt offene Küche, Insel wäre nett, 6 Essplätze, mit Möglichkeit auf mehr.
"normale" Wohnzimmerwand mit TV, nichts besonderes.
Größe: 140-170m²
momentaner Hausentwurf:
vom Architekten eines FTH Anbieters
Wir schon recht zufrieden damit. Exakte Einrichtung des Bades vielleicht noch bessere machbar?
Aufteilung im OG noch nicht perfekt? Schlafzimmer und Kinderzimmer tauschen? Kamin "durchs" Kinderzimmer?
Der momentane Entwurf hat ca. 148m² Wohnfläche.
400.000,- Budget fürs Haus, Schlüsselfertig.
Technik: Wärmepumpe. Kontrollierte-Wohnraumlüftung und KNX noch in Diskussion (würde dann vermutlich das Budget "ändern"...)
Wenn Ihr verzichten müsst, auf welche Details/Ausbauten
-könnt Ihr nicht verzichten: offener Wohnraum, mit Terrasse.
Sonst eher flexibel.
Offene Fragen:
Grundsätzliche Kommentare sind erwünscht. Meinungen zur Raumaufteilung? Welche Schwachstellen hat der Plan?
Herzlichen Dank für alle Beiträge!
kaho674 schrieb:
Interessant. Jetzt nicht so mein Ding, aber wenn's gefällt.
Mir scheint der Hauswirtschaftsraum zu fehlen. Wo wird Wäsche gewaschen und aufgehängt?In der Ankleide, die hoffentlich groß genug ist. Wollten eigentlich einen eigenen Raum, ist dann aber schon "weg-rationalisiert" worden.
T
toxicmolotof11.12.17 19:56Waschmaschine und Trockner gehören in einen getrennten "Feuchtraum". Sei es der Hauswirtschaftsraum, HTR, das Bad oder ein Extraraum.
Aber in der Ankleide ist der Tod für Kleidung und Möbel. Mit einer passend geplanten Kontrollierte-Wohnraumlüftung, die diesen Umstand berücksichtigt, kommst du eventuell hin, aber die Probleme sind eigentlich fast vorprogrammiert.
Wenn ich in unserem Bad (immerhin 12qm) mal 3 Wäschen und Trocknerladungen am Tag fahren lasse, geht trotz lüften die Feuchte auf 70% rauf, obwohl auch die Temperatur steigt. Also du pumpst dir da Feuchtigkeit in die Kleidung. Überlege dir das lieber nochmal.
Das Design ist sicherlich individuell, ich mag auch die Idee der verdrehten Riegel, aber dir sollte eins klar sein: Energetisch ist das der Supergau. Noch mehr Außenfläche geht nur noch beim Bungalow. Also stell dich darauf ein, dass die Heizkosten höher sind als bei einem 0815 Haus mit gleicher Wohnfläche. Bitte nicht falsch verstehen, ich mag das und habe selber auch ein Haus mit absolut ungünstiger Außenhülle.
Auf die Raumdetails bin ich nicht eingegangen.
Aber in der Ankleide ist der Tod für Kleidung und Möbel. Mit einer passend geplanten Kontrollierte-Wohnraumlüftung, die diesen Umstand berücksichtigt, kommst du eventuell hin, aber die Probleme sind eigentlich fast vorprogrammiert.
Wenn ich in unserem Bad (immerhin 12qm) mal 3 Wäschen und Trocknerladungen am Tag fahren lasse, geht trotz lüften die Feuchte auf 70% rauf, obwohl auch die Temperatur steigt. Also du pumpst dir da Feuchtigkeit in die Kleidung. Überlege dir das lieber nochmal.
Das Design ist sicherlich individuell, ich mag auch die Idee der verdrehten Riegel, aber dir sollte eins klar sein: Energetisch ist das der Supergau. Noch mehr Außenfläche geht nur noch beim Bungalow. Also stell dich darauf ein, dass die Heizkosten höher sind als bei einem 0815 Haus mit gleicher Wohnfläche. Bitte nicht falsch verstehen, ich mag das und habe selber auch ein Haus mit absolut ungünstiger Außenhülle.
Auf die Raumdetails bin ich nicht eingegangen.
Danke einmal für die Hinweise.
Wie gesagt, wie hatten einen extra Hauswirtschaftsraum geplant. War dann für uns nicht sinnvoll unterzubringen im momentanen Grundriss. Wir wohnen momentan in einer Wiener Altbau Wohnung, Waschmaschine in der Küche und Wäsche trocknen im 12m² Schlafzimmer. Daher war das mit der Ankleide ein für uns akzeptierbarer Kompromiss.
Werden uns das aber nochmal anschauen und durchdenken.
Bezüglich Energie: Stimmt, man hat zusätzlich ca. 33m² Flachdach und genausoviel "Unterseite". Dadurch dass wir allerdings an der Seite quasi anbauen kühlt die Seite weniger aus? Ist jetzt nur mal eine uninformierte Annahme?
Danke!
Wie gesagt, wie hatten einen extra Hauswirtschaftsraum geplant. War dann für uns nicht sinnvoll unterzubringen im momentanen Grundriss. Wir wohnen momentan in einer Wiener Altbau Wohnung, Waschmaschine in der Küche und Wäsche trocknen im 12m² Schlafzimmer. Daher war das mit der Ankleide ein für uns akzeptierbarer Kompromiss.
Werden uns das aber nochmal anschauen und durchdenken.
Bezüglich Energie: Stimmt, man hat zusätzlich ca. 33m² Flachdach und genausoviel "Unterseite". Dadurch dass wir allerdings an der Seite quasi anbauen kühlt die Seite weniger aus? Ist jetzt nur mal eine uninformierte Annahme?
Danke!
Ähnliche Themen