ᐅ Einfamilienhaus 1,5-Geschosser ca. 150qm Grundrissplanung Do-It-Yourself Entwurf
Erstellt am: 31.10.19 21:00
M
marti01Hallo zusammen,
wir planen nächstes Jahr auf einem Grundstück zu bauen und machen uns nun schon einige Wochen Gedanken zum Grundriss / Grundstücksplanung und allen möglichen Dingen. Wir haben auch schon 2 Angebote auf Grundlage des Grundrisses für das Haus vorliegen, sind uns aber noch nicht sicher ob wir mit diesen Firmen bauen wollen oder doch zu einem Architekten gehen. Leider gab es kein großes Feedback zum Grundriss sondern nur ein Angebot.
Daher wollen wir das Projekt hier mal vorstellen und Meinungen einholen, ob dieser Do-It-Yourself-Grundriss so geht und auch sinnvoll ist.
Bebauungsplan/Einschränkungen
Größe des Grundstücks: 1460m², 59m x 24,5m
Hang: nein
Grundflächenzahl: 0,4
Geschossflächenzahl: 0,5
Baufenster, Baulinie und -grenze: ca.17m von Straßenfront.
Randbebauung: nicht gewollt
Anzahl Stellplatz: 2 gewünscht
Geschossigkeit: Max. 2 Vollgeschosse, obere als Dachgeschoss
Dachform: Satteldach
Stilrichtung: Einfamilienhaus
Ausrichtung: SWW-NOO
Maximale Höhen/Begrenzungen:
weitere Vorgaben: Soll sich an die anliegende Bebauung orientieren. Hinterer Bereich aktuell verpachtet (Gartennutzung / Hühner / Schuppen).
Befahrung des hinteren Berechs sollte möglich bleiben.
Anforderungen der Bauherren
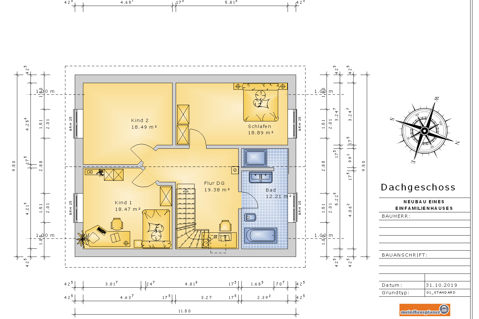
Stilrichtung, Dachform, Gebäudetyp: Satteldach, normales Einfamilienhaus, Drempel bei ca 140cm
Keller, Geschosse: 0, 1,5
Anzahl der Personen, Alter: 2 Erwachsene (31J) 2 Kinder (2J, Zwillinge)
Raumbedarf im EG, OG: ca.150 m²
Büro: Familiennutzung oder Homeoffice?: Büro nicht notwendig, wenn Platz für schreibtisch ist.
Schlafgäste pro Jahr: sehr wenige, kein Gästezimmer. Platz für Aufstellbett im Wohnzimmer
offene oder geschlossene Architektur: teils teils
konservativ oder moderne Bauweise: modern
offene Küche, Kochinsel: Küche und Esszimmer zusammen, Anzahl Essplätze: 6 dauerhaft aber mit Reserve auf 8/10.
Kamin: optional
Musik/Stereowand: normaler TV-Tisch + Stereoboxen
Balkon, Dachterrasse: nein
Garage, Carport: Carport, Geräteschuppen (Kellerersatz)
Nutzgarten, Treibhaus: Rasen + etwas Nutzgarten
weitere Wünsche/Besonderheiten/Tagesablauf, gern auch Begründungen, warum dieses oder das nicht sein soll
Hausentwurf
Von wem stammt die Planung: Do-It-Yourself
Was gefällt besonders? Warum?
EG: Küche mit Licht von 3 Seiten.
OG: große Kinderzimmer, Platz für Schreibtisch
Was gefällt nicht? Warum?
relativ schmales Badezimmer / Hauswirtschaftsraum
relativ schmaler Durchgang hinter den Sitzplätzen in der Küche oder geht das?
Schonsteinposition nicht optimal.
Preisschätzung lt Architekt/Planer:
Persönliches Preislimit fürs Haus, inkl Ausstattung: 260.000 ohne Möbel
favorisierte Heiztechnik: Wärmepumpe (LW oder Erdwärme)
Wenn Ihr verzichten müsst, auf welche Details/Ausbauten
-könnt Ihr verzichten: Schonstein
-könnt Ihr nicht verzichten:
Warum ist der Entwurf so geworden, wie er jetzt ist? ZB
Wir wollen 2 getrennte Aufenthaltsbereiche haben, also kein offenes Küche-Esszimmer-Wohnzimmer. Jedoch auch einen großen Tisch für bis zu 8 Personen.
Da wir aktuell auch eine große Küche haben und damit zufrieden sind, wurde dies übertragen.
Die Kinderzimmer sollen ansprechend groß sein und Sonne bekommen.
Im Hauseingangsbereich soll das Dach verlängert werden (als Wetterschutz, nicht im Grundriss zu sehen).
Was ist die wichtigste/grundlegende Frage zum Grundriss in 130 Zeichen zusammengefasst?
Ist die Treppe in dieser Form so möglich, ohne zu stören? Fallen Engstellen auf oder gibt es Optimierungspotenzial?
Vielen Dank schon mal für eure Meinungen!





wir planen nächstes Jahr auf einem Grundstück zu bauen und machen uns nun schon einige Wochen Gedanken zum Grundriss / Grundstücksplanung und allen möglichen Dingen. Wir haben auch schon 2 Angebote auf Grundlage des Grundrisses für das Haus vorliegen, sind uns aber noch nicht sicher ob wir mit diesen Firmen bauen wollen oder doch zu einem Architekten gehen. Leider gab es kein großes Feedback zum Grundriss sondern nur ein Angebot.
Daher wollen wir das Projekt hier mal vorstellen und Meinungen einholen, ob dieser Do-It-Yourself-Grundriss so geht und auch sinnvoll ist.
Bebauungsplan/Einschränkungen
Größe des Grundstücks: 1460m², 59m x 24,5m
Hang: nein
Grundflächenzahl: 0,4
Geschossflächenzahl: 0,5
Baufenster, Baulinie und -grenze: ca.17m von Straßenfront.
Randbebauung: nicht gewollt
Anzahl Stellplatz: 2 gewünscht
Geschossigkeit: Max. 2 Vollgeschosse, obere als Dachgeschoss
Dachform: Satteldach
Stilrichtung: Einfamilienhaus
Ausrichtung: SWW-NOO
Maximale Höhen/Begrenzungen:
weitere Vorgaben: Soll sich an die anliegende Bebauung orientieren. Hinterer Bereich aktuell verpachtet (Gartennutzung / Hühner / Schuppen).
Befahrung des hinteren Berechs sollte möglich bleiben.
Anforderungen der Bauherren
Stilrichtung, Dachform, Gebäudetyp: Satteldach, normales Einfamilienhaus, Drempel bei ca 140cm
Keller, Geschosse: 0, 1,5
Anzahl der Personen, Alter: 2 Erwachsene (31J) 2 Kinder (2J, Zwillinge)
Raumbedarf im EG, OG: ca.150 m²
Büro: Familiennutzung oder Homeoffice?: Büro nicht notwendig, wenn Platz für schreibtisch ist.
Schlafgäste pro Jahr: sehr wenige, kein Gästezimmer. Platz für Aufstellbett im Wohnzimmer
offene oder geschlossene Architektur: teils teils
konservativ oder moderne Bauweise: modern
offene Küche, Kochinsel: Küche und Esszimmer zusammen, Anzahl Essplätze: 6 dauerhaft aber mit Reserve auf 8/10.
Kamin: optional
Musik/Stereowand: normaler TV-Tisch + Stereoboxen
Balkon, Dachterrasse: nein
Garage, Carport: Carport, Geräteschuppen (Kellerersatz)
Nutzgarten, Treibhaus: Rasen + etwas Nutzgarten
weitere Wünsche/Besonderheiten/Tagesablauf, gern auch Begründungen, warum dieses oder das nicht sein soll
Hausentwurf
Von wem stammt die Planung: Do-It-Yourself
Was gefällt besonders? Warum?
EG: Küche mit Licht von 3 Seiten.
OG: große Kinderzimmer, Platz für Schreibtisch
Was gefällt nicht? Warum?
relativ schmales Badezimmer / Hauswirtschaftsraum
relativ schmaler Durchgang hinter den Sitzplätzen in der Küche oder geht das?
Schonsteinposition nicht optimal.
Preisschätzung lt Architekt/Planer:
Persönliches Preislimit fürs Haus, inkl Ausstattung: 260.000 ohne Möbel
favorisierte Heiztechnik: Wärmepumpe (LW oder Erdwärme)
Wenn Ihr verzichten müsst, auf welche Details/Ausbauten
-könnt Ihr verzichten: Schonstein
-könnt Ihr nicht verzichten:
Warum ist der Entwurf so geworden, wie er jetzt ist? ZB
Wir wollen 2 getrennte Aufenthaltsbereiche haben, also kein offenes Küche-Esszimmer-Wohnzimmer. Jedoch auch einen großen Tisch für bis zu 8 Personen.
Da wir aktuell auch eine große Küche haben und damit zufrieden sind, wurde dies übertragen.
Die Kinderzimmer sollen ansprechend groß sein und Sonne bekommen.
Im Hauseingangsbereich soll das Dach verlängert werden (als Wetterschutz, nicht im Grundriss zu sehen).
Was ist die wichtigste/grundlegende Frage zum Grundriss in 130 Zeichen zusammengefasst?
Ist die Treppe in dieser Form so möglich, ohne zu stören? Fallen Engstellen auf oder gibt es Optimierungspotenzial?
Vielen Dank schon mal für eure Meinungen!
Will deinen Thread nicht zumüllen. Ich könnte mir das als Haus auf jeden Fall vorstellen darin zu leben außer, dass ich den Treppenantritt im Eingangsbereich nicht ertragen könnte. 10mal am Tag gehen dort Straßenschuhe lang und etwa 30mal am Tag Hausschuhe. Wir haben aktuell den Eingang zur Mietwohnung neben der Tür zum Bad. Wir tragen den ganzen Tag steinchen und Dreck durch die Wohnung. Am Auffälligsten wird das immer an kleinen Steinchen aus Kinderschuhen die dann unter der Tür hängen bleiben und den Fußboden zerkratzen. Aber das schient Geschmackssache zu sein, viele aktuellen Grundrissvarianten haben das so.
Meine Frage: die Brüstungshöhe 25 bei vielen bodentiefen Fenstern, soll das zum sitzen einladen? Wir überlegen auch gerade doch auf 2 bodentiefe Fenster im Schlaf und Kinderzimmer und diese sind dabei auch auf die Möglichkeit des sitzens auf der Fensterbank gekommen. aber 25cm ist doch dafür zu niedrig?
EDIT: 260k wird wohl aber auch ohne Baunebenkosten nicht zu halten denke ich mit Wärmepumpe. Und der Klinker soll der mit gebaut werden oder ist das nur Zierde? Wir hatten spaßeshalber bei uns auch gefragt und haben 30-50k fürs Haus für Klinker gesagt bekommen.
Meine Frage: die Brüstungshöhe 25 bei vielen bodentiefen Fenstern, soll das zum sitzen einladen? Wir überlegen auch gerade doch auf 2 bodentiefe Fenster im Schlaf und Kinderzimmer und diese sind dabei auch auf die Möglichkeit des sitzens auf der Fensterbank gekommen. aber 25cm ist doch dafür zu niedrig?
EDIT: 260k wird wohl aber auch ohne Baunebenkosten nicht zu halten denke ich mit Wärmepumpe. Und der Klinker soll der mit gebaut werden oder ist das nur Zierde? Wir hatten spaßeshalber bei uns auch gefragt und haben 30-50k fürs Haus für Klinker gesagt bekommen.
Ich finde das ganz gut. Besonders gefällt mir Eure Bescheidenheit. Also dass Ihr nicht noch 10 Zimmer irgendwo hinquetschen wollt.
Was ich nicht so gelungen finde: Der Koch-Essbereich ist doch sehr schmal und schlauchig. Das Wohnzimmer hingegen hat reichlich Platz. Hier würde ich zu Gunsten des Esszimmers mal ordentlich verschieben. Man kommt ja auch kaum zur Terrasse raus.
Oben find ich viel Platz verschwendet und am Ende doch nicht so richtig rund. Anbei mal ne Alternative für's OG (Treppe kein Podest):


Was ich nicht so gelungen finde: Der Koch-Essbereich ist doch sehr schmal und schlauchig. Das Wohnzimmer hingegen hat reichlich Platz. Hier würde ich zu Gunsten des Esszimmers mal ordentlich verschieben. Man kommt ja auch kaum zur Terrasse raus.
Oben find ich viel Platz verschwendet und am Ende doch nicht so richtig rund. Anbei mal ne Alternative für's OG (Treppe kein Podest):
Die Treppe am Eingang hab ich noch nie verstanden (aus oben genannten Gründen), außer es ist ein echtes Raumsparwunder bzw muss mit 109qm auskommen.
Grundsätzlich finde ich die nahezu 40qm Flur etwas großzügig geplant.
Die Wohnküche gefällt mir überhaupt nicht. Zu schmal, zu lang. Für einen Schrank zum Tisch ist kein Platz. Dazu kommt, dass es sehr dunkel in der Küche wird. Das Licht von Süd- und Westfenster würd nicht zur Arbeitsfläche gelangen. Die Terrassentür wird versperrt von Möbeln. Ist nur ein Stuhl besetzt, muss man sich quetschen.
Im Winter nützen die Westfenster nicht viel. Klar gibt es im WZ Helligkeit, aber gerade da braucht man Tageslicht nicht unbedingt.
Das Bad finde ich gar nicht zu schmal. Lieber so als ein ungemütlicher Tanzsaal.
Abstellraum, also Hauswirtschaftsraum von 9qm ist grenzwertig zu wenig bei 4 Personen.
Von wo soll denn der Pächter auf sein Grundstück?
Grundsätzlich finde ich die nahezu 40qm Flur etwas großzügig geplant.
Die Wohnküche gefällt mir überhaupt nicht. Zu schmal, zu lang. Für einen Schrank zum Tisch ist kein Platz. Dazu kommt, dass es sehr dunkel in der Küche wird. Das Licht von Süd- und Westfenster würd nicht zur Arbeitsfläche gelangen. Die Terrassentür wird versperrt von Möbeln. Ist nur ein Stuhl besetzt, muss man sich quetschen.
Im Winter nützen die Westfenster nicht viel. Klar gibt es im WZ Helligkeit, aber gerade da braucht man Tageslicht nicht unbedingt.
Das Bad finde ich gar nicht zu schmal. Lieber so als ein ungemütlicher Tanzsaal.
Abstellraum, also Hauswirtschaftsraum von 9qm ist grenzwertig zu wenig bei 4 Personen.
Von wo soll denn der Pächter auf sein Grundstück?
Hallo rericht: Die BRH25 haben wir nur gewählt, da die Dame es Hauses gerne Blumentöpfe auf Fensterbänke stellt. Zudem denke ich, dass es den Fußbodenaufbau vereinfacht (gerader Abschluss). Bzgl. Sitzen: 25cm sind wahrscheinlich eher eine Kindersitzbank, bequem ist anders
Bzgl. Klinker: In einem Angebot steht etwas von 16k fürs Klinkern. Wir sind diesbezüglich noch unschlüssig: schön, solide und haltbar vs. Mehrkosten und dickerer Wandaufbau.
Bzgl. Treppe: Dein Einwand ist berechtigt und klingt nachvollziehbar. Auf der ersten Blick habe ich leider keine Alternative zur aktuellen Treppe finden können. Sie müsste dann ja gedreht oder in U-Form sein. Vielleicht fällt mir ja noch was ein.
Hallo Katja: Danke für den schnellen Entwurf. Die Idee mit dem Sprung im der Küchenwand sieht ganz gut aus. Im Wohnzimmer haben wir ja in der Tat noch etwas Platz über. Das werden wir mal ausprobieren.
Deinen OG Entwurf entspricht mit dem separaten Büro nicht so recht unserem Vorstellungen. Ob ich nun ein Büro habe oder ein größeren Flur mit Schreibtisch und 2 Schränken. Der Platz ist der gleiche. Ich hoffe eher dass das Raumgefühl etwas besser ist, wenn man hoch kommt und nicht nur Türen sieht.
Bzgl. Klinker: In einem Angebot steht etwas von 16k fürs Klinkern. Wir sind diesbezüglich noch unschlüssig: schön, solide und haltbar vs. Mehrkosten und dickerer Wandaufbau.
Bzgl. Treppe: Dein Einwand ist berechtigt und klingt nachvollziehbar. Auf der ersten Blick habe ich leider keine Alternative zur aktuellen Treppe finden können. Sie müsste dann ja gedreht oder in U-Form sein. Vielleicht fällt mir ja noch was ein.
Hallo Katja: Danke für den schnellen Entwurf. Die Idee mit dem Sprung im der Küchenwand sieht ganz gut aus. Im Wohnzimmer haben wir ja in der Tat noch etwas Platz über. Das werden wir mal ausprobieren.
Deinen OG Entwurf entspricht mit dem separaten Büro nicht so recht unserem Vorstellungen. Ob ich nun ein Büro habe oder ein größeren Flur mit Schreibtisch und 2 Schränken. Der Platz ist der gleiche. Ich hoffe eher dass das Raumgefühl etwas besser ist, wenn man hoch kommt und nicht nur Türen sieht.
marti01 schrieb:
Ich hoffe eher dass das Raumgefühl etwas besser ist, wenn man hoch kommt und nicht nur Türen sieht.Dafür schaust Du auf einen Arbeitsplatz von 4 Personen - PC, Drucker, Aktenordner und Schreibkrams. Jede Menge Kabel, usw.
Einen Svhreibtisvh und seine Umgebung aufgeräumt zu halten, funktioniert Bei den wenigstens.
Wo soll denn der Staubsauger stehen?
Ähnliche Themen