Einfamilienhaus, ~160m², Bauhausstil; Erster Entwurf nach unseren Wünschen

4,80 Stern(e) 43 Votes
Zuletzt aktualisiert 24.11.2025
Sie befinden sich auf der Seite 18 der Diskussion zum Thema: Einfamilienhaus, ~160m², Bauhausstil; Erster Entwurf nach unseren Wünschen
>> Zum 1. Beitrag <<

W

Würfel*

Hallo Notstrom,

ich bin auch schon lange nur am mitlesen und habe mich damals nicht "getraut" meine Grundrisse einzustellen. Das Haus ist nun seit einem knappen Jahr fertig und ich bin sehr zufrieden, obwohl ich keine Meinungen eingeholt habe. Hatte damals wirklich Angst total verwirrt zu werden. Und ich glaube das passiert bei Dir auch langsam, Notstrom. Ich persönlich finde Dein Haus schon recht gelungen. Das ist auch der Grund warum ich hier doch mal eingreifen möchte, bevor Du den Architekten wechselst. Auch weil ich Würfel mag, ich habe selbst auch einen gebaut.

Um mal wieder etwas Konstruktives zum Thread beizutragen: Außenansichten/Fenster kommen später, sagst Du. Ich würde von diesen klassisch 2-geteilten "normalen" Fenstern weggehen und lieber stehende oder liegende Fenster setzen oder gleich große Glasfronten wie unten. Sieht moderner aus und passt besser zum Würfel (spreche da aus eigener Erfahrung). Den abgetrennten Wohnbereich mag ich, würde den nur noch etwas vergrößern, damit der Durchgang zum Esszimmer nicht so eng wird. Treppe etwas nach planrechts verschieben. Abstellraum streichen (Du hast einen Riesen Keller!), dafür garderobenschrank größer. Würde die Treppe nicht zum Essraum öffnen, weil das immer laut ist oben und die Essensgerüche hochsteigen (trotz Kontrollierte-Wohnraumlüftung und Abzugshaube, stell mal 20 min ne Lasagne auf den Tisch). Lieber eine große Glastür, die bringt dann auch viel Licht in den Flur. Kamin würde ich wohl auch versetzen zwecks engem Durchgang. Der Wohnbereich hat m.E. zu wenig Fenster nach Süden. Eckverglasung sähe da cool aus.

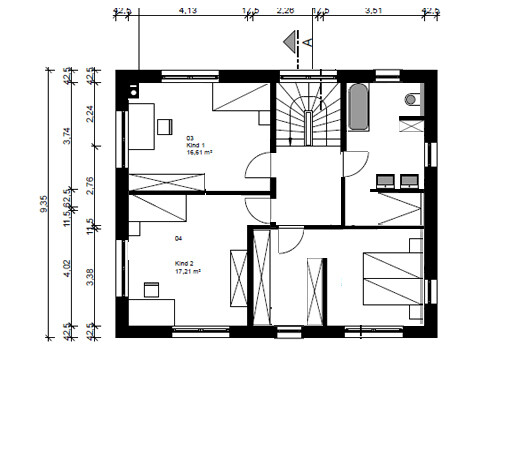
Oben finde ich den Ankleide-Schlaf-Bad-Bereich auch nicht optimal, wobei ich persönlich das Schlafzimmer kuschlig finde. Besser ist jedoch die Ankleide zwischen Kind und Schlafen zu haben. Auf die 2. Badtür würde ich auch unbedingt verzichten. Klaut Dir nur Stellfläche und spart genau 1 Tür zum Auf- und Zumachen. Dafür musst Du aber eine 2. Tür abschließen. Wenn man die Treppe nach planrechts verschiebt ergeben sich eh Änderungen. Die Kinderzimmer können größer werden und der Wandknick zwischen den beiden Zimmern kann verschwinden.

Und weil es gestern in Bayern 12 Stunden durchgeregnet hat, habe ich meine Gedankengänge mal per Photoshop in Deine Grundrisse eingearbeitet.

Vielleicht gibt Dir das ja ein paar Anregungen für weitere Gespräche mit Deinem Architekt.

P.S. Würde auf gar keinen Fall einen extra Zugang vom Flur aus zum Wohnzimmer machen. Das ist einfach nur ungemütlich und klaut Dir wieder Stellfläche. Mir wollte der Bauzeichner (Architekt hatten wir nicht) damals auch einen Durchgang aufschwatzen, weil man bei uns quasi fast durch die Küche laufen muss, um zum WZ zu gelangen. Bin heilfroh dass wir das nicht gemacht haben und ich dadurch ein großes kuschliges, geborgenes Sofaeck habe.


2D-Grundrissplan eines Hauses mit Terrasse, Eingang und Essbereich

Grundriss des Obergeschosses mit Treppe, Flur, Bad und zwei Kinderzimmern.
 
J

j.bautsch

euer Grundriss gefällt mir sehr gut, gibt eigentlich nichts das ich zu beanstanden hätte höchstens das nicht symmetrisch sitzende Fenster im Schlafzimmer :p

einen Zugang direkt zum Wohnzimmer fände ich auch wirklich überflüssig.
 
11ant

11ant

ich bin auch schon lange nur am mitlesen und habe mich damals nicht "getraut" meine Grundrisse einzustellen. Das Haus ist nun seit einem knappen Jahr fertig und ich bin sehr zufrieden, obwohl ich keine Meinungen eingeholt habe. Hatte damals wirklich Angst total verwirrt zu werden.
Obwohl oder weil, das ist hier die Frage

habe ich meine Gedankengänge mal per Photoshop in Deine Grundrisse eingearbeitet.
Wobei Du wohl der Einfachheit halber die Fenster nicht angepaßt hast, Deine Anregung
Ich würde von diesen klassisch 2-geteilten "normalen" Fenstern weggehen und lieber stehende oder liegende Fenster setzen oder gleich große Glasfronten wie unten. Sieht moderner aus und passt besser zum Würfel (spreche da aus eigener Erfahrung).
finde ich allerdings sehr gut. Das Mini-Lichtband aus nur zwei Segmenten ist - insbesondere bei "normalen" Höhen - ein sehr unoriginal-bauhausiges Detail

Würde die Treppe nicht zum Essraum öffnen, weil das immer laut ist oben und die Essensgerüche hochsteigen (trotz Kontrollierte-Wohnraumlüftung und Abzugshaube, stell mal 20 min ne Lasagne auf den Tisch).
Den Duft bemerken die Blagen immerhin auch mit Kopfhörern
 
Y

ypg

Der Wohnbereich hat m.E. zu wenig Fenster nach Süden. Eckverglasung sähe da cool aus.
Da braucht man sich keine Gedanken zu machen, wo das Geld bleibt
Nein..., alles nett und sollte funktionieren. Gut, finde ich Deinen Kommentar.
Das WZ halte ich allerdings nicht für kuschelig. Dafür ist die Sichtachse zum Essbereich zu offen und das Eckfenster komm da ja auch in gleicher Reihe.
 
W

Würfel*

Obwohl oder weil, das ist hier die Frage
Da hast Du recht, wahrscheinlich auch "weil". Aber egal ob dem Forum ein Grundriss gefällt oder nicht, das Ziel ist doch, dass der Bauherr später drin wohnt und sich denkt "Perfekt, ich fühle mich wohl und hätte im Nachhinein nichts anders gemacht". Die Realität ist aber leider oft eine andere (weiß ich aus dem Bekanntenkreis - und da hatten die meisten einen Architekten). Man sollte mal einen Thread eröffnen mit dem Titel "Was ich beim nächsten mal anders machen würde", da gäbe es bestimmt viele Posts

Wobei Du wohl der Einfachheit halber die Fenster nicht angepaßt hast, Deine Anregung
Korrekt, nur ansatzweise im WZ, Schlafzimmer und Bad. Über den Rest müsste ich selbst erst mal nachdenken.

Das WZ halte ich allerdings nicht für kuschelig.
So unterschiedlich sind eben die Ansichten und Gefühle. Für mich ist ein WZ kuschlig, wenn ich an 2 Seiten feste Wände im Rücken habe - also hinter dem Sofa. Der Blick darf dann ruhig in den Garten oder andere Räume schweifen und mir gleichzeitig ein Gefühl von mehr Raum geben. Eine fensterlose Höhle ist zwar auch kuschelig, aber nicht erstrebenswert Was für mich gar nicht geht und doch immer wieder gemacht wird: Sofa vors bodentiefe Fenster stellen, damit man irgendwie den TV unterbringt. Da fühle ich mich null geborgen, schon gar nicht wenn's dunkel wird oder Einsicht von Nachbarn oder Straße möglich ist.

Das WZ von Notstrom im ersten Grundriss war ungemütlich. 2 offene Eingänge und Fenster im Rücken.
 
Zuletzt aktualisiert 24.11.2025
Im Forum Grundrissplanung / Grundstücksplanung gibt es 2536 Themen mit insgesamt 88010 Beiträgen


Ähnliche Themen zu Einfamilienhaus, ~160m², Bauhausstil; Erster Entwurf nach unseren Wünschen
Nr.ErgebnisBeiträge
1Grundrissfrage: Tausch gerader Treppe durch L-Treppe 31
2Treppe im Wohnzimmer als Hype - Pro & Contra? - Seite 426
3Grundriss Bungalow, sucht wertvolle Tipps / Bemerkungen - Seite 324
4 2 Vollgeschosse, Durchgang Garage, Hauswirtschaftsraum unter Treppe 25
5Treppe im Flur, Grundriss steht eigentlich schon :o( - Seite 320
6 Küchenplanung mit tiefen Fenster - Seite 643
7Neubau einer ca. 8x11 Doppelhaushälfte, Einschätzung Grundriss und Fenster - Seite 235
8OG Stadtville optimieren. Fenster Bodentief - Seite 13104
9Idee Schlafzimmer - Bett / Schrank Anordnung 32
10Grundrissfrage, Treppe, Fenster, Ausrichtung 12
11Fenster Brüstungshöhe 130 im Schlafzimmer / Arbeitszimmer? - Seite 493
12Pfiffige Schlafzimmer Idee mit Ankleide gesucht 19
13Grundriss Schlafzimmer, Ankleide und Bad en Suite - Seite 336
14Grundriss Schlafzimmer mit Bad und Ankleide 62
15Grundriss Einfamilienhaus geplant, Fenster gefallen uns - Seite 343
16Grundriss Stadtvilla / Anordnung Fenster, Feedback erwünscht - Seite 216
17Bungalow 135qm: Grundriss + Fenster - Seite 11104
18Durchbruch Bad und Ankleide ohne Türe? - Seite 212
19auf welchen dieser Grundrisse können wir weiter aufbauen? - Seite 38287
20Welcher der Zwei Grundrisse ist besser? 20

Oben