
kaho674
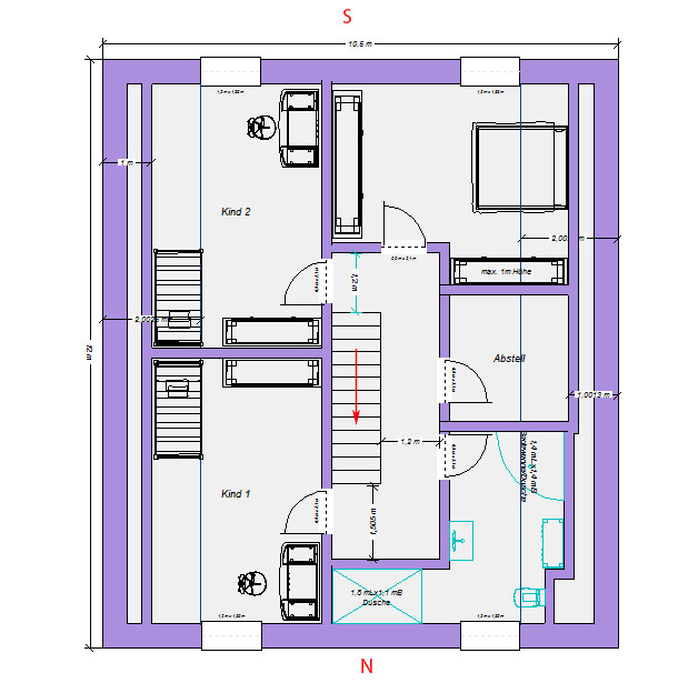
Find das ziemlich idiotisch, jetzt gleich auf beiden Seiten nen Flur zu machen. So verliert man ja noch mehr Fläche. Hier noch mal mein letzter Entwurf mit Einrichtung und breiterem Flur. Das ein Kind jetzt im Norden und das andere im Süden ist, find ich in dem Fall nicht ganz so dramatisch. Wichtiger ist, die Fläche sinnvoll zu nutzen. Eher mach ich später noch Dachflächenfenster rein. Treppe ist gedreht mit 1/4 Wendelung am Antritt.
Ich würd ja auch Yvonnes Vorschlag mal ins reine zeichnen, aber das Kauderwelsch kann ich echt nicht erkennen.
Ich würd ja auch Yvonnes Vorschlag mal ins reine zeichnen, aber das Kauderwelsch kann ich echt nicht erkennen.