EG ca. 100 qm, OG ausbaufähig (geplant Bad, 2 KZ, 1 Abstellraum)

4,10 Stern(e) 8 Votes
Zuletzt aktualisiert 18.11.2025
Sie befinden sich auf der Seite 42 der Diskussion zum Thema: EG ca. 100 qm, OG ausbaufähig (geplant Bad, 2 KZ, 1 Abstellraum)
>> Zum 1. Beitrag <<

kaho674

kaho674

@ypg
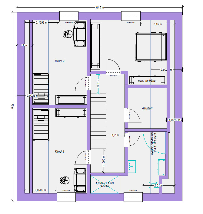
Weißt Du schon, wo genau die 2m Linie ist? Angesichts dieses Minikniestocks müsste sie doch etwa bei 2m von der äußersten Außenwand sein, oder?
Fenster müssten etwa hier sein. 2,17m von der Innenwand im Süden und ca. 2m im Norden hat der TE gemessen, oder?

Grundriss eines Hauses mit zwei Kinderzimmer, Dusche, Abstellraum, Flur und Treppenaufgang.
 
Y

ypg


Technische Zeichnung eines Gebäudeschnitts mit Türöffnung, Wandkonstruktion und Maße.
Ich hab alles nach den Angaben des TEs gezeichnet. Also Treppe und Fenster. Dann einen 0er-Kniestock... ergibt dann diesen Minidrempel, wenn man die Maße im DG des TE verfolgt... bei mir ist er ca. 73cm... dann meinen Schnitt ausgemessen. Kommt alles hin.
Schau Dir mal die Maße des TEs an, die er hier letztens ausgemessen hat und das Foto.
Ich habe sie aber auch übernommen
 
Zuletzt bearbeitet:
P

pffreestyler

Bezüglich des Kniestocks hatte ich ja aus Unwissenheit falsche Angaben gemacht. Glaube hier erkennt man, dass doch ein Mini-Kniestock vorhanden ist


Bauarbeiten im Dachstuhl: sichtbare Holzbalken, Holzplatten und Werkzeuge, roter Kreis markiert.


Ich habe das mal auf dem Schnitt M= 1:100 ausgemessen, 10 cm Fußbodenaufbau sind da bereits berücksichtigt. Die Fensterposition ist auf dem Schnitt falsch! Da muss man nach meinen gemessenen Maßen gehen.


Architekturzeichnung eines Hauses mit schrägem Dach (45° Neigung), Fenster und Maßangaben.

Ich glaube zu sehen, dass bei euren Grundrissen daher die 1m- und 2m-Linie ein Tick weiter nach außen kann?!

Von den Grundrissen würde mir ein Mix aus beiden gefallen. Vlt bei ypg's Vorschlag die Dusche und Toilette tauschen und dann die Wand bissl in den Norden verschieben, beim linken Kinderzimmer den Schrankraum streichen und da dann eine kleine Abstellkammer einrichten? Empfände diesen als sinnvoll für Staubsauger etc. Als Ausgleich die Zwischenwand bei den Kinderzimmer bissl nach rechts, damit im linken Kinderzimmer dort ein Schrank an die Wand passt. Der Schreibtisch kann ja weiter nach links. Das rechte Kinderzimmer könnte als Ausgleich den unteren Schrankraum aus dem Schlafzimmer erhalten.
 
Y

ypg

Sag mal, was willst Du mit den unteren Räumen machen, wenn Du alles nach oben quetscht?
Versuche, beide Kinderzimmer gleichberechtigt zu behandeln. Es geht nicht, wenn eines einen amerikanischen Schrank bekommt, das andere nicht.
Den Staubsauger kann man auch im Schlafzimmer unterbringen.
Wozu sind denn noch die EG-Räume?
 
P

pffreestyler

Berechtigter Einwand, dass es fair ist, beide Kinderzimmer gleich zu machen.

Staubsauger könnte in Schlafzimmer. Vlt sollten wir doch den Abstellraum überdenken.

Hintergedanke ist, dass meine Klamotten unten im Schlafzimmer bleiben und ich morgens auch das untere Bad nutze. Haben aktuell auch unsere Klamotten in getrennten Räumen, da ich früher aufstehen muss und wir uns so nicht gegenseitig wecken, wenn der andere noch weiter schlafen kann.
 
kaho674

kaho674

Ich hab alles nach den Angaben des TEs gezeichnet.
Das ist wirklich zum Haare raufen.
Wenn ich mir das Bild des Schnitts vom TE ansehe, dann hängt das Dach als Dachüberstand über der Außenwand. Der 45° Winkel startet daher noch wenige Zentimeter vor der Außenwand. Demnach müßte die 2m Grenze rein rechnerisch bei ca. 2m liegen, da 45° Dach. Sie läge sogar noch etwas unter 2m, aber die Dämmung tut dann ihr übriges, denke ich. Genau werden wir es wohl nie erfahren.
Die Fensterposition ist auf dem Schnitt falsch! Da muss man nach meinen gemessenen Maßen gehen.
Ach na super.
Von den Grundrissen würde mir ein Mix aus beiden gefallen.
Ja, das fehlt uns noch. Ne weitere Wunschliste.
 
Zuletzt aktualisiert 18.11.2025
Im Forum Grundrissplanung / Grundstücksplanung gibt es 2536 Themen mit insgesamt 87965 Beiträgen


Ähnliche Themen zu EG ca. 100 qm, OG ausbaufähig (geplant Bad, 2 KZ, 1 Abstellraum)
Nr.ErgebnisBeiträge
1Größe vom Schlafzimmer und Kinderzimmer - Seite 338
2Kinderzimmer und Schlafzimmer - Welche Größe ist zu empfehlen? - Seite 856
3Umbau Kinderzimmer - Fenster in zwei Fenster aufteilen? 20
4Schallschutztür Schlafzimmer / Kinderzimmer 23
5Fenster Brüstungshöhe 130 im Schlafzimmer / Arbeitszimmer? - Seite 493
6 Küchenplanung mit tiefen Fenster - Seite 643
7Grundriss Einfamilienhaus geplant, Fenster gefallen uns - Seite 343
8Grundrissplanung Einfamilienhaus (Stadtvilla) ca.140m² (3 Kinderzimmer) - Seite 242
9Keine Fußbodenheizung im Schlafzimmer? - Seite 322
10Einfamilienhaus (2Etagen+Wohn-Keller+ausgebautes Dach) etwa 200qm -Änderungen - Seite 27162
11OG Stadtville optimieren. Fenster Bodentief - Seite 13104
12Kinderzimmer Richtung Norden - eure Meinung? - Seite 213
13Dunstabzug / Dach oder Wand 14
14Grundriss 10x10 mit 2 Vollgeschossen 30
15Ankleide/Schlafzimmer Problem - Grundrissdiskussion - Seite 425
16Wanddicke Kinderzimmer / Bad 35
17Jalousien in Kinderzimmer und Bad auf der Südseite 12
18Aufmusterung Elektro, Q2, Badfliesen, Drempel, bodentiefe Fenster 23
19Ups...! Wir brauchen jetzt doch ein Kinderzimmer... 19
20Kinderzimmer mit bodentiefen Fenstern 22

Oben