Hallo liebe Forumsgemeinde,
nach langem "stillen" Mitlesen haben wir uns jetzt auch hier angemeldet und wollen Euch unsere Hausplanung nicht vorenthalten.
Vorab möchten wir Euch erstmal ein großes DANKESCHÖN aussprechen, die Infos die man hier bekommt sind echt Gold wert.
Jetzt zu uns, wir sind beide um die 50 und die beiden erwachsenen Kinder sind aus dem Haus. Wir leben aktuell in meinem Elternhaus, wollen uns aber
unseren eigenen Traum vom Haus erfüllen. Wir haben das große Glück uns den Hausbau problemlos leisten können, das Baugrundstück gehört uns, das örtliche Bauamt hat bislang mündlich die Zusage zum Bau erteilt (es gibt keinen Bebauungsplan da aktuell Ackerland). Wir müssen uns nur anteilmäßig an den Erschließungskosten beteiligen, aber das ist für uns O.K.
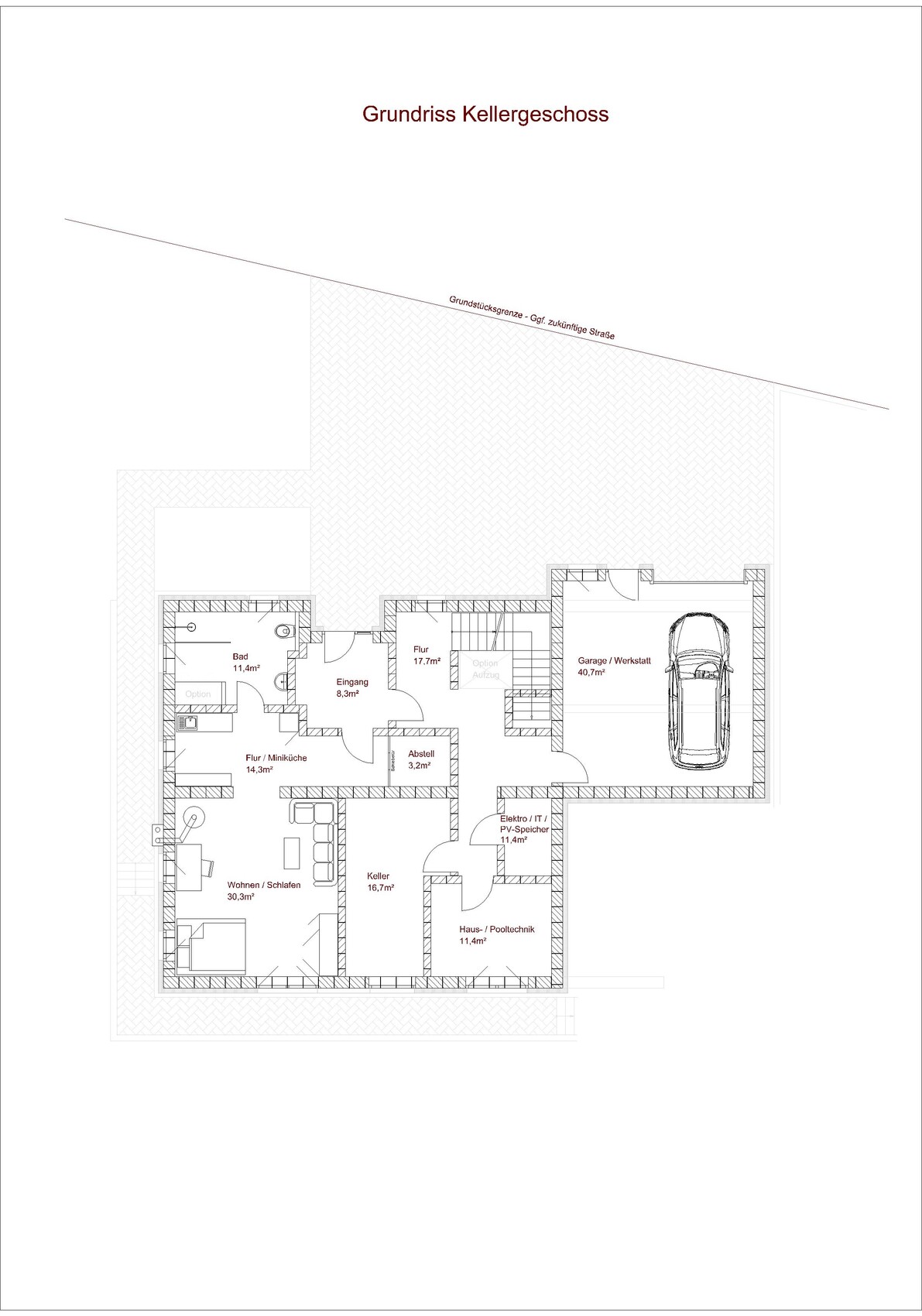
Unsere Kinder und Gäste kommen gerne zu Besuch, daher wollen wir im KG eine Gästewohnung einrichten, für das Alter haben wir unseren Entwurf so gestaltet das wir jederzeit durch kleinere Maßnahmen das EG barrierefrei ausbauen können, inkl. Aufzug bei Bedarf. Für den Fall der Fälle können wir die Gästewohnung auch für eine Pflegekraft zur Verfügung stellen, was hoffentlich nie erforderlich wird.
Bebauungsplan/Einschränkungen
Größe des Grundstücks 2.100m²
Hang Ja, siehe Ansichten
Grundflächenzahl kein Bebauungsplan
Geschossflächenzahl kein Bebauungsplan
Baufenster, Baulinie und -grenze kein Bebauungsplan, wir halten umlaufend min. 6,0m ein
Randbebauung Nein
Anzahl Stellplatz 2
Geschossigkeit 1-Geschossig, Keller
Dachform Angedeutetes "Sheddach"
Stilrichtung ???
Ausrichtung Nord/Süd
Maximale Höhen/Begrenzungen Keine Vorgaben
weitere Vorgaben Kein gültiger Bebauungsplan, bei normaler Wohnbebauung wird Genehmigung erteilt
Anforderungen der Bauherren
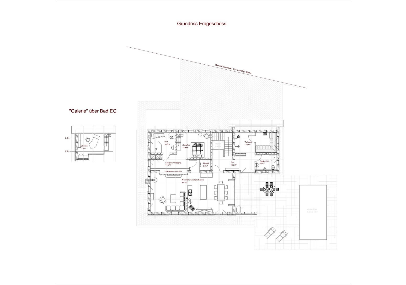
Stilrichtung, Dachform, Gebäudetyp 1-geschossiger Bungalow mit Keller (Vorbereitet für Barriererfrei)
Keller, Geschosse Keller Ja, 1-geschossig mit offener Dachstruktur
Anzahl der Personen, Alter 2, Ich 50, Sie 48, 1 Hund
Raumbedarf im EG, OG Siehe Grundriss
Büro: Familiennutzung oder Homeoffice? Ich gelegentlich im Homeoffice
Schlafgäste pro Jahr Viele
offene oder geschlossene Architektur Eher Offen
konservativ oder moderne Bauweise Speziell
offene Küche, Kochinsel Definitiv Ja
Anzahl Essplätze min. 8
Kamin Ja
Musik/Stereowand Nein
Balkon, Dachterrasse Nein
Garage, Carport Im Haus integriert
Nutzgarten, Treibhaus Nein
weitere Wünsche/Besonderheiten/Tagesablauf, gern auch Begründungen, warum dieses oder das nicht sein soll
Hausentwurf
Von wem stammt die Planung: DIY
-Planer eines Bauunternehmens
-Architekt
-Do-it-Yourself
Was gefällt besonders? Warum? Auf unsere persönlichen Wünsche optimiert Wir haben alle unsere Wünsche eingearbeitet
Was gefällt nicht? Warum?
Preisschätzung lt Architekt/Planer:
Persönliches Preislimit fürs Haus, inkl Ausstattung: Wir gehen von ca. 700-800 k€ Baukosten aus, soll aber hier nicht das Thema werden, Finanzierung ist gesichert
favorisierte Heiztechnik: Haben wir noch nicht final festgelegt, definitiv Photovoltaik und Solar auf dem Dach, Luft-Wasser-Wärmepumpe oder Erdwärme
Wenn Ihr verzichten müsst, auf welche Details/Ausbauten
-könnt Ihr verzichten: Gute Frage, im Zweifel der Pool wenn dafür ein Whirlpool rausspringt...
-könnt Ihr nicht verzichten: Den großen Allraum und die Gästewohnung
Warum ist der Entwurf so geworden, wie er jetzt ist? ZB
Standardentwurf vom Planer? Nein, wir haben einfach unsere Vorlieben geplant, offene Dachkonstruktion, großer Allraum weil wir gerne Gäste empfangen, Wellnessbereich ist Pflicht
Entsprechende/Welche Wünsche wurden vom Architekten umgesetzt?
Ein Gemisch aus vielen Beispielen aus div. Magazinen...
Was macht ihn in Euren Augen besonders gut oder schlecht?
Was ist die wichtigste/grundlegende Frage zum Grundriss in 130 Zeichen zusammengefasst?










nach langem "stillen" Mitlesen haben wir uns jetzt auch hier angemeldet und wollen Euch unsere Hausplanung nicht vorenthalten.
Vorab möchten wir Euch erstmal ein großes DANKESCHÖN aussprechen, die Infos die man hier bekommt sind echt Gold wert.
Jetzt zu uns, wir sind beide um die 50 und die beiden erwachsenen Kinder sind aus dem Haus. Wir leben aktuell in meinem Elternhaus, wollen uns aber
unseren eigenen Traum vom Haus erfüllen. Wir haben das große Glück uns den Hausbau problemlos leisten können, das Baugrundstück gehört uns, das örtliche Bauamt hat bislang mündlich die Zusage zum Bau erteilt (es gibt keinen Bebauungsplan da aktuell Ackerland). Wir müssen uns nur anteilmäßig an den Erschließungskosten beteiligen, aber das ist für uns O.K.
Unsere Kinder und Gäste kommen gerne zu Besuch, daher wollen wir im KG eine Gästewohnung einrichten, für das Alter haben wir unseren Entwurf so gestaltet das wir jederzeit durch kleinere Maßnahmen das EG barrierefrei ausbauen können, inkl. Aufzug bei Bedarf. Für den Fall der Fälle können wir die Gästewohnung auch für eine Pflegekraft zur Verfügung stellen, was hoffentlich nie erforderlich wird.
Bebauungsplan/Einschränkungen
Größe des Grundstücks 2.100m²
Hang Ja, siehe Ansichten
Grundflächenzahl kein Bebauungsplan
Geschossflächenzahl kein Bebauungsplan
Baufenster, Baulinie und -grenze kein Bebauungsplan, wir halten umlaufend min. 6,0m ein
Randbebauung Nein
Anzahl Stellplatz 2
Geschossigkeit 1-Geschossig, Keller
Dachform Angedeutetes "Sheddach"
Stilrichtung ???
Ausrichtung Nord/Süd
Maximale Höhen/Begrenzungen Keine Vorgaben
weitere Vorgaben Kein gültiger Bebauungsplan, bei normaler Wohnbebauung wird Genehmigung erteilt
Anforderungen der Bauherren
Stilrichtung, Dachform, Gebäudetyp 1-geschossiger Bungalow mit Keller (Vorbereitet für Barriererfrei)
Keller, Geschosse Keller Ja, 1-geschossig mit offener Dachstruktur
Anzahl der Personen, Alter 2, Ich 50, Sie 48, 1 Hund
Raumbedarf im EG, OG Siehe Grundriss
Büro: Familiennutzung oder Homeoffice? Ich gelegentlich im Homeoffice
Schlafgäste pro Jahr Viele
offene oder geschlossene Architektur Eher Offen
konservativ oder moderne Bauweise Speziell
offene Küche, Kochinsel Definitiv Ja
Anzahl Essplätze min. 8
Kamin Ja
Musik/Stereowand Nein
Balkon, Dachterrasse Nein
Garage, Carport Im Haus integriert
Nutzgarten, Treibhaus Nein
weitere Wünsche/Besonderheiten/Tagesablauf, gern auch Begründungen, warum dieses oder das nicht sein soll
Hausentwurf
Von wem stammt die Planung: DIY
-Planer eines Bauunternehmens
-Architekt
-Do-it-Yourself
Was gefällt besonders? Warum? Auf unsere persönlichen Wünsche optimiert Wir haben alle unsere Wünsche eingearbeitet
Was gefällt nicht? Warum?
Preisschätzung lt Architekt/Planer:
Persönliches Preislimit fürs Haus, inkl Ausstattung: Wir gehen von ca. 700-800 k€ Baukosten aus, soll aber hier nicht das Thema werden, Finanzierung ist gesichert
favorisierte Heiztechnik: Haben wir noch nicht final festgelegt, definitiv Photovoltaik und Solar auf dem Dach, Luft-Wasser-Wärmepumpe oder Erdwärme
Wenn Ihr verzichten müsst, auf welche Details/Ausbauten
-könnt Ihr verzichten: Gute Frage, im Zweifel der Pool wenn dafür ein Whirlpool rausspringt...
-könnt Ihr nicht verzichten: Den großen Allraum und die Gästewohnung
Warum ist der Entwurf so geworden, wie er jetzt ist? ZB
Standardentwurf vom Planer? Nein, wir haben einfach unsere Vorlieben geplant, offene Dachkonstruktion, großer Allraum weil wir gerne Gäste empfangen, Wellnessbereich ist Pflicht
Entsprechende/Welche Wünsche wurden vom Architekten umgesetzt?
Ein Gemisch aus vielen Beispielen aus div. Magazinen...
Was macht ihn in Euren Augen besonders gut oder schlecht?
Was ist die wichtigste/grundlegende Frage zum Grundriss in 130 Zeichen zusammengefasst?
Muss bei einer Erweiterung des Baugebiets innerer Kern nicht erst Gemeinderat etc. pp involviert und angehört werden?
Grundsätzlich tolles Grundstück.
Für den lockeren Geldbeutel muss ich aber sagen ist die Planung tatsächlich sehr konservativ und sehr groß für zwei Personen.
Muss im Alter auch alles gepflegt, und was viel wichtiger ist auch gelebt werden.
Ich würde das Gebäude etwas mehr ausrichten zum Grundstück. Volle Südseite ist bei vielen erst wichtig und wenn plötzlich die heiße Sonne jeden Sommer kommt ein Problem das mit Markisen, Raffstores, Segeln etc. gelöst wird und selten schön wirkt.
Ich persönlich finde kleine Nischen überall verteilt interessanter.
Bei den massiv vielen Dachfenster würde ich mir überlegen das grundlegend nicht anders zu konzipieren.
Gefühlt braucht ihr kein Satteldach wenn ihr sowieso das wieder zerschneidet mit Glas.
Garage würde ich immer an die Grenze ziehen. Auch wenn bei dieser Grundstücksgröße das zweitrangig ist. Ihr wisst nie welchen schönen Pool ihr wo hinstellen werdet 😉
Insgesamt finde ich es sehr verwinkelt. Viel Flurfläche (toter Raum). Aber das ist natürlich Geschmackssache.
Das Budget ist Netto? Kann mir bei dieser Größe schwer vorstellen das es reicht.
Wir liegen mit 153m2 Wohnfläche. und 50m2 Garage bei derselben Summe. Ohne Außenanlage und teure Spielchen wie KNX, Wintergärten etc.
Bin aber gespannt wie sich euer Projekt entwickelt.
Grundsätzlich tolles Grundstück.
Für den lockeren Geldbeutel muss ich aber sagen ist die Planung tatsächlich sehr konservativ und sehr groß für zwei Personen.
Muss im Alter auch alles gepflegt, und was viel wichtiger ist auch gelebt werden.
Ich würde das Gebäude etwas mehr ausrichten zum Grundstück. Volle Südseite ist bei vielen erst wichtig und wenn plötzlich die heiße Sonne jeden Sommer kommt ein Problem das mit Markisen, Raffstores, Segeln etc. gelöst wird und selten schön wirkt.
Ich persönlich finde kleine Nischen überall verteilt interessanter.
Bei den massiv vielen Dachfenster würde ich mir überlegen das grundlegend nicht anders zu konzipieren.
Gefühlt braucht ihr kein Satteldach wenn ihr sowieso das wieder zerschneidet mit Glas.
Garage würde ich immer an die Grenze ziehen. Auch wenn bei dieser Grundstücksgröße das zweitrangig ist. Ihr wisst nie welchen schönen Pool ihr wo hinstellen werdet 😉
Insgesamt finde ich es sehr verwinkelt. Viel Flurfläche (toter Raum). Aber das ist natürlich Geschmackssache.
Das Budget ist Netto? Kann mir bei dieser Größe schwer vorstellen das es reicht.
Wir liegen mit 153m2 Wohnfläche. und 50m2 Garage bei derselben Summe. Ohne Außenanlage und teure Spielchen wie KNX, Wintergärten etc.
Bin aber gespannt wie sich euer Projekt entwickelt.
Hallo Malunga,
Danke für dein Feedback.
Gerade die großen Dachflächen nach Norden geben Licht ohne direkte Sonneneinstrahlung.
Ich hab mich da von meiner Firma inspirieren lassen, wir haben noch eine alte Halle mit Sheddach und
Fenstern in der Nordseite, das Raumklima ist gerade im Sommer genial....
Was meins du mit verwinkelt? KG oder EG?
Danke für dein Feedback.
Gerade die großen Dachflächen nach Norden geben Licht ohne direkte Sonneneinstrahlung.
Ich hab mich da von meiner Firma inspirieren lassen, wir haben noch eine alte Halle mit Sheddach und
Fenstern in der Nordseite, das Raumklima ist gerade im Sommer genial....
Was meins du mit verwinkelt? KG oder EG?
Wenn Budget keine Rolle spielt würde ich euch empfehlen all eure Wünsche, Vorlieben und Anforderungen schriftlich, rein textuell, festzuhalten, und damit zu einem Architekten / professionellen Planer zu gehen.
Das ist nicht umsonst ein eigener Berufsstand und ihr wärt bestimmt erstaunt, was die rausholen können.
Ihr könnt den Architektenentwurf ja später trotzdem mit einem Bauunternehmen eurer Wahl umsetzen, aber ich würde da Profis ranlassen.
Zu den Grundrissen selber kann man jetzt gar nicht so viel sagen, da die Bemaßung fehlt, aber man sieht auf den ersten Blick schon einige Ecken die verwinkelt wirken und/oder zu knapp bemessen als Durchgang. Wenn man so großzügig baut muss man sich eigentlich nicht solche Engpässe einbauen.
Edit: Ich hab' die Bemaßung gefunden. 😉
Das ist nicht umsonst ein eigener Berufsstand und ihr wärt bestimmt erstaunt, was die rausholen können.
Ihr könnt den Architektenentwurf ja später trotzdem mit einem Bauunternehmen eurer Wahl umsetzen, aber ich würde da Profis ranlassen.
Zu den Grundrissen selber kann man jetzt gar nicht so viel sagen, da die Bemaßung fehlt, aber man sieht auf den ersten Blick schon einige Ecken die verwinkelt wirken und/oder zu knapp bemessen als Durchgang. Wenn man so großzügig baut muss man sich eigentlich nicht solche Engpässe einbauen.
Edit: Ich hab' die Bemaßung gefunden. 😉
Ich finde es auch zu verwinkelt. Eingangsbereich-Situation: da kommt man gefühlt gar nicht an mit dem Slalomgang zur Treppe und dann weiter. Für einen Garderobenschrank, den man gut füllen kann, dafür finde ich den Raum „Eingang„ zu verwinkelt.
Zum Keller allgemein: das wird doch schon ein Vollgeschoss sein? Insgesamt also ein II-Geschosser… es sieht aber so aus, als wenn die Fenster nicht ausreichend groß sind.
Insgesamt könnte man wohl überall etwas Stein und Türen wegnehmen. Zb der Zugang zur Ankleide. Da ist der Flur vor dem AB irgendwie „über“. Sparwanne im Bad?
Das sind Waschmaschine und Trockner in der Ankeide, oder? Das wäre ein Nogo für die Wäsche: der Raum wird trotz Abluft beim Trocknungsvorgang sehr feucht und ist nicht gut für Bekleidung. Auch würde ich jetzt hier die direkte Trocknungsmöglichkeit für Wäsche suchen, die nicht im Trockner getrocknet werden können. Bett würde ich generell so zum Eingang drehen, dass man nicht vom Kopfbereich aus den Raum betritt.
Toilette ist beim Saunagang 4! Türen entfernt. Vom Grundsatz finde ich die Anordnung des Sauna/Wellnessbereiches in einem separaten Flügel gut, aber eben mit weniger Türen und eventuell einem zugänglichen Ruhebereich mit eventuellem Fitnessbereich für später.
Raum Küche/Essen ist mir zu unruhig. Vom Tisch schaut man auf den Treppenlift, von der Küche in den Vorraum Ankleide, … und noch dazu noch eine halbhohe Trennwand zum Wohnraum. Fenstergitter… da scheint trotz Größe und Panoramafenster keine Großzügigkeit aufkommen. Das offene Dach zerrt dazu noch mehr an der unruhigen Ansicht.
Das Dach ist Geschmackssache. Die Dachneigung wird von der Wirkung her wohl etwas zu hoch/ zu viel sein. Das wird wie Kirche wirken. Ich mag offene Dächer, also Luftraum. Allerdings würde ich da eher eine schöne Galerie mit einem großen Raum planen, wo man runterschauen kann und nicht ein Kämmerlein, welches man mit einer Stiege betritt. Und einen Raum, der breiter ist als hoch empfindet der Mensch meist angenehmer. -> Sauna ist 3? Mal so hoch als breit?
(Wir haben ein offenes 26-Grad-Dach und bei einem Raum von 4,5 Meter ist das schon von der Wirkung grenzwertig, würde ich das nächste Mal flacher planen) Ich würde allerdings mit der heutigen Politik, die uns wahrscheinlich auch nachhaltig zu anderen Verhaltensweisen zwingen wird, auf leeres Volumen, was man mitheizen muss, verzichten.
Grundsätzlich, das wäre für mich ein Nogo, ist das „Hängen“ des Lebe-Geschosses in der Luft: wenn ich eine Wohnebene plane, dann möchte ich fast überall rausgehen können und Gartenanbindung haben. Ihr nicht? Gerade auch dann, wenn das Grundstück von der Größe her so viel hergeben könnte für einen Austritt aus Bad und/oder Schlafzimmer, Austritt aus Küche und Wohnbereich. Wie ich erkenne, ist das nur zur Terrasse vom Essbereich möglich? Das Konzept spiegelt sich in den Dachfenstern wieder. Es steht fast nichts in Verbindung mit dem Garten bzw Grundstück. Das könnte irgendwie einen „Erdhöhleneffekt„ haben, wenn man quasi eingeschlossen ist und nur den Himmel sieht.
Ich würde definitiv einen Architekten beauftragen für die Planung, ohne eine Zeichnung mitzubringen. Wenn man das Glück hat, durch eine gute Finanzierungskraft sich einiges an Haus leisten zu können, dann sollte man das auch an der Fachplanung sehen. Sichtachsen zb gibt es gar nicht. Nur weil Standardhäuser sich diese nicht leisten können, sollte ein individuelles Haus nicht auf diese wertvollen Details verzichten.
Allerdings muss ich auch sagen, dass ich _so_ ein Haus, wie Ihr es gezeichnet habt, bei dem Budget nicht sehe.
Zum Keller allgemein: das wird doch schon ein Vollgeschoss sein? Insgesamt also ein II-Geschosser… es sieht aber so aus, als wenn die Fenster nicht ausreichend groß sind.
Insgesamt könnte man wohl überall etwas Stein und Türen wegnehmen. Zb der Zugang zur Ankleide. Da ist der Flur vor dem AB irgendwie „über“. Sparwanne im Bad?
Das sind Waschmaschine und Trockner in der Ankeide, oder? Das wäre ein Nogo für die Wäsche: der Raum wird trotz Abluft beim Trocknungsvorgang sehr feucht und ist nicht gut für Bekleidung. Auch würde ich jetzt hier die direkte Trocknungsmöglichkeit für Wäsche suchen, die nicht im Trockner getrocknet werden können. Bett würde ich generell so zum Eingang drehen, dass man nicht vom Kopfbereich aus den Raum betritt.
Toilette ist beim Saunagang 4! Türen entfernt. Vom Grundsatz finde ich die Anordnung des Sauna/Wellnessbereiches in einem separaten Flügel gut, aber eben mit weniger Türen und eventuell einem zugänglichen Ruhebereich mit eventuellem Fitnessbereich für später.
Raum Küche/Essen ist mir zu unruhig. Vom Tisch schaut man auf den Treppenlift, von der Küche in den Vorraum Ankleide, … und noch dazu noch eine halbhohe Trennwand zum Wohnraum. Fenstergitter… da scheint trotz Größe und Panoramafenster keine Großzügigkeit aufkommen. Das offene Dach zerrt dazu noch mehr an der unruhigen Ansicht.
Das Dach ist Geschmackssache. Die Dachneigung wird von der Wirkung her wohl etwas zu hoch/ zu viel sein. Das wird wie Kirche wirken. Ich mag offene Dächer, also Luftraum. Allerdings würde ich da eher eine schöne Galerie mit einem großen Raum planen, wo man runterschauen kann und nicht ein Kämmerlein, welches man mit einer Stiege betritt. Und einen Raum, der breiter ist als hoch empfindet der Mensch meist angenehmer. -> Sauna ist 3? Mal so hoch als breit?
(Wir haben ein offenes 26-Grad-Dach und bei einem Raum von 4,5 Meter ist das schon von der Wirkung grenzwertig, würde ich das nächste Mal flacher planen) Ich würde allerdings mit der heutigen Politik, die uns wahrscheinlich auch nachhaltig zu anderen Verhaltensweisen zwingen wird, auf leeres Volumen, was man mitheizen muss, verzichten.
Grundsätzlich, das wäre für mich ein Nogo, ist das „Hängen“ des Lebe-Geschosses in der Luft: wenn ich eine Wohnebene plane, dann möchte ich fast überall rausgehen können und Gartenanbindung haben. Ihr nicht? Gerade auch dann, wenn das Grundstück von der Größe her so viel hergeben könnte für einen Austritt aus Bad und/oder Schlafzimmer, Austritt aus Küche und Wohnbereich. Wie ich erkenne, ist das nur zur Terrasse vom Essbereich möglich? Das Konzept spiegelt sich in den Dachfenstern wieder. Es steht fast nichts in Verbindung mit dem Garten bzw Grundstück. Das könnte irgendwie einen „Erdhöhleneffekt„ haben, wenn man quasi eingeschlossen ist und nur den Himmel sieht.
wolko22 schrieb:Ich habe nochmal nach oben gescrollt und frage mich, ob Du überhaupt Kritik hören möchtest oder doch nur Dein Hausprojekt ohne Wenn und Aber vorstellen möchtest.
und wollen Euch unsere Hausplanung nicht vorenthalten.
Ich würde definitiv einen Architekten beauftragen für die Planung, ohne eine Zeichnung mitzubringen. Wenn man das Glück hat, durch eine gute Finanzierungskraft sich einiges an Haus leisten zu können, dann sollte man das auch an der Fachplanung sehen. Sichtachsen zb gibt es gar nicht. Nur weil Standardhäuser sich diese nicht leisten können, sollte ein individuelles Haus nicht auf diese wertvollen Details verzichten.
Allerdings muss ich auch sagen, dass ich _so_ ein Haus, wie Ihr es gezeichnet habt, bei dem Budget nicht sehe.
Puh, viel Informatin auf einmal. Aber so soll es ja sein. Danke dafür.
@kati1337
Architekt ist natürlich gesetzt, wir sind noch ganz am Anfang und wollten uns erstmal selbst versuchen. Ist halt ein Hobby von mir...
@ypg
Der Eingangsbereich ist tatsächlich eher Schleusenartig und der Weg zur Treppe unglücklich, da müssen wir nochmal dran.
Evtl. auch optisch offener gestalten mit Glaselement und Türvesatz, aber komplett offen wollen wir den Eingang nicht haben.
Dank für den Hinweis mit dem KG-Vollgeschoss, nehm ich für die weitere Planung mit.
Ein umlaufender Zugang zum Garten hat natürlich seinen Charm, ich kann mir aber im Moment nicht vorstellen wie das bei einem Hanggrundstück wie unserem funktionieren soll wenn man den natürlichen Geländeverlauf mit berücksichtigt und das KG nicht komplett eingraben will.
Wir haben jetzt den direkten Zugang von der Küche und vom Flur / Wellnessbereich auf die Süd/Ost-Terrasse, findest du das zu wenig?
Was meinst du mit 4 Türen von der Sauna bis zur Toilette, wir nutzen natürlich auch die Gästetoilette selber und laufen nicht immer durch die Ankleide ins Hauptbad. Zum Bad, tatsächlich spielt die Badewanne keine große Rolle für uns, wir sind eher Duschgänger. Normal könnten wir die Wanne auch komplett weglassen, aber vielleicht zwickt es ja doch irgenwann mal im Rücken 😉
Zu deiner Frage der Kritik, wir wollen gerne Eure ehrlichen Meinungen hören und nehmen auch gerne Kritik an.
Zugegeben sind wir schon überzeugt von der offenen Dachgestaltung und wollen da ungern weg, aber wenn es
aus welchen Gründen auch immer gar keinen Sinn macht überdenken wir das ganze nochmal.
Aktuell haben wir auch ein offenes Satteldach mit 45° Neigung und ca. 4,20 Raumhöhe unter dem First und finden das
Klasse. Aber ob der Meter mehr und die Dachflächenfenster den Gesamteindruck negativ beeinflussen kann ich
schwer abschätzen.
Ich hab gesehen das ich gestern den Gebäudeschnitt mit den Raumhöhen nicht mit eingestellt hatte, das hol ich jetzt hier noch nach.
Da kann man z.B. auch sehen das im Wellnessbereich das Dach nicht bis zum First offen ist, Raumhöhe liegt bei ca. 3,50m.

@kati1337
Architekt ist natürlich gesetzt, wir sind noch ganz am Anfang und wollten uns erstmal selbst versuchen. Ist halt ein Hobby von mir...
@ypg
Der Eingangsbereich ist tatsächlich eher Schleusenartig und der Weg zur Treppe unglücklich, da müssen wir nochmal dran.
Evtl. auch optisch offener gestalten mit Glaselement und Türvesatz, aber komplett offen wollen wir den Eingang nicht haben.
Dank für den Hinweis mit dem KG-Vollgeschoss, nehm ich für die weitere Planung mit.
Ein umlaufender Zugang zum Garten hat natürlich seinen Charm, ich kann mir aber im Moment nicht vorstellen wie das bei einem Hanggrundstück wie unserem funktionieren soll wenn man den natürlichen Geländeverlauf mit berücksichtigt und das KG nicht komplett eingraben will.
Wir haben jetzt den direkten Zugang von der Küche und vom Flur / Wellnessbereich auf die Süd/Ost-Terrasse, findest du das zu wenig?
Was meinst du mit 4 Türen von der Sauna bis zur Toilette, wir nutzen natürlich auch die Gästetoilette selber und laufen nicht immer durch die Ankleide ins Hauptbad. Zum Bad, tatsächlich spielt die Badewanne keine große Rolle für uns, wir sind eher Duschgänger. Normal könnten wir die Wanne auch komplett weglassen, aber vielleicht zwickt es ja doch irgenwann mal im Rücken 😉
Zu deiner Frage der Kritik, wir wollen gerne Eure ehrlichen Meinungen hören und nehmen auch gerne Kritik an.
Zugegeben sind wir schon überzeugt von der offenen Dachgestaltung und wollen da ungern weg, aber wenn es
aus welchen Gründen auch immer gar keinen Sinn macht überdenken wir das ganze nochmal.
Aktuell haben wir auch ein offenes Satteldach mit 45° Neigung und ca. 4,20 Raumhöhe unter dem First und finden das
Klasse. Aber ob der Meter mehr und die Dachflächenfenster den Gesamteindruck negativ beeinflussen kann ich
schwer abschätzen.
Ich hab gesehen das ich gestern den Gebäudeschnitt mit den Raumhöhen nicht mit eingestellt hatte, das hol ich jetzt hier noch nach.
Da kann man z.B. auch sehen das im Wellnessbereich das Dach nicht bis zum First offen ist, Raumhöhe liegt bei ca. 3,50m.
Ähnliche Themen